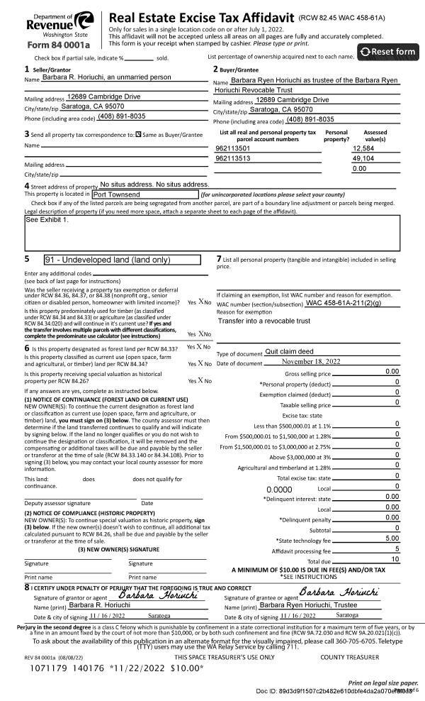
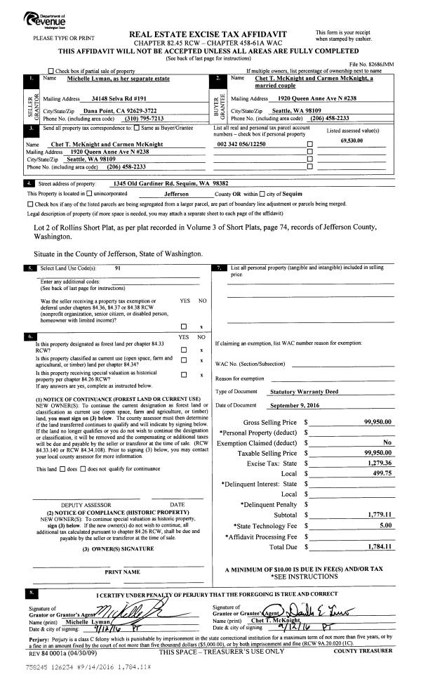
Property
Account |
| Property ID: | 19391 | Abbreviated Legal Description: | COUNTRY RIDGE LOT 14 SURVEY V10/P176 |
| Parcel # / Geo ID: | 801045014 | Agent Code: | |
| Type: | Real | | |
| Tax Area: | 0211 - 1-49F1E1H2L1 | Land Use Code | 11 |
| Open Space: | N | DFL | N |
| Historic Property: | N | Remodel Property: | N |
| Multi-Family Redevelopment: | N | | |
| Township: | 28N | Section: | 4 |
| Range: | 1W |
Location |
| Address: | 374 BLUE MOUNTAIN RD CHIMACUM, WA 98325 | Mapsco: | 250/014 |
| Neighborhood: | S3 & S4 T28N R1W; COUNTRY RIDGE; MT TOWNSEND VISTA; SHT PTS | Map ID: | |
| Neighborhood CD: | 4320 |
Owner |
| Name: | AMY P & KINNAN M MURRAY | Owner ID: | 94313 |
| Mailing Address: | 374 BLUE MOUNTAIN RD CHIMACUM, WA 98325-9772 | % Ownership: | 100.0000000000% |
| | | Exemptions: | |
Pay Tax Due
There is currently No Amount Due on this property.
Taxes and Assessment Details
Property Tax Information as of
10/24/2025
Click on "Statement Details" to expand or collapse a tax statement.
* Please enter a valid date ** Please enter a valid date *
Statement Details |
| | TOTAL: | $0.00 | $0.00 | $0.00 | $0.00 | $0.00 | $0.00 |
|
| | $0.00 | $0.00 | $0.00 | $0.00 | $0.00 | $0.00 |
Values
| (+) Improvement Homesite Value: | + | $0 | |
| (+) Improvement Non-Homesite Value: | + | $500,666 | |
| (+) Land Homesite Value: | + | $0 | |
| (+) Land Non-Homesite Value: | + | $151,851 | |
| (+) Curr Use (HS): | + | $0 | $0 |
| (+) Curr Use (NHS): | + | $0 | $0 |
| | | -------------------------- | |
| (=) Market Value: | = | $652,517 | |
| (–) Productivity Loss: | – | $0 | |
| | | -------------------------- | |
| (=) Subtotal: | = | $652,517 | |
| (+) Senior Appraised Value: | + | $0 | |
| (+) Non-Senior Appraised Value: | + | $652,517 | |
| | | -------------------------- | |
| (=) Total Appraised Value: | = | $652,517 | |
| (–) Senior Exemption Loss: | – | $0 | |
| (–) Exemption Loss: | – | $0 | |
| | | -------------------------- | |
| (=) Taxable Value: | = | $652,517 | |
Taxing Jurisdiction
| Owner: | AMY P & KINNAN M MURRAY | | |
| % Ownership: | 100.0000000000% | | |
| Total Value: | N/A | | |
| Tax Area: | 0211 - 1-49F1E1H2L1 |
| CE | COUNTY CURRENT EXPENSE | N/A | N/A | N/A | N/A | | |
| CNTYDD | DEVELOPMENTAL DISABILITIES | N/A | N/A | N/A | N/A | | |
| CNTYVET | VETERANS RELIEF | N/A | N/A | N/A | N/A | | |
| MENTAL | MENTAL HEALTH | N/A | N/A | N/A | N/A | | |
| ROADS | COUNTY ROADS | N/A | N/A | N/A | N/A | | |
| ROADSCU | COUNTY ROADS TO CUR EXP | N/A | N/A | N/A | N/A | | |
| HOSP2CASH | HOSP DIST #2 GENERAL | N/A | N/A | N/A | N/A | | |
| SCH49CP | SCHOOL DIST #49 CAP PROJ | N/A | N/A | N/A | N/A | | |
| SCH49MO | SCHOOL DIST #49 EP & O | N/A | N/A | N/A | N/A | | |
| CONSERVE | CONSERVATION FUTURES | N/A | N/A | N/A | N/A | | |
| EMS1 | FIRE DIST #1 EMS | N/A | N/A | N/A | N/A | | |
| FD1 | FIRE DIST #1 GENERAL | N/A | N/A | N/A | N/A | | |
| LIB1 | LIBRARY DIST #1 GENERAL | N/A | N/A | N/A | N/A | | |
| PORTPT | PORT OF PT GENERAL | N/A | N/A | N/A | N/A | | |
| PORTPTIDD | PORT OF PT IDD 2019 | N/A | N/A | N/A | N/A | | |
| PUD1 | PUD #1 GENERAL | N/A | N/A | N/A | N/A | | |
| STATE | STATE SCHOOL PART 1 | N/A | N/A | N/A | N/A | | |
| STATE2 | STATE SCHOOL PART 2 | N/A | N/A | N/A | N/A | | |
| | Total Tax Rate: | N/A | | | | | |
| | | | | Taxes w/Current Exemptions: | N/A | | |
| | | | | Taxes w/o Exemptions: | N/A | | |
Improvement / Building
| Improvement #1: | Residential Bldg | State Code: | 11 | 2011.0 sqft | Value: | $500,666 |
| Bathrooms (#): | 2 (FULL) | Bathrooms (#): | 1 (HALF) | | Bedrooms (#): | 3 | Exterior Wall: | SI/ST | | Fireplace: | WD ST-GOOD | Floor Construction: | FRAME | | Foundation: | CONPR | Heating/Cooling: | ELBB | | Roof Cover: | COMP |   |   |
|
| | Type | Description | Class CD | Sub Class CD | Year Built | Area |
| | MA | Main Area | 4+ | 2S | 1996 | 1146.0 |
| | MA2 | Second Floor Main Area | 4+ | 2S | 1996 | 865.0 |
| | HWPOR | House Wood Porch | 4 | * | 1996 | 224.0 |
| | HDECK | House Deck | 4 | * | 1996 | 250.0 |
| | GBSMT | Basement Garage | 3 | 2S | 1996 | 308.0 |
| | PATIO | House Patio | 2 | * | 1996 | 600.0 |
| | BSMTF | House basement finished | 3 | * | 1996 | 778.0 |
Sketch
Property Image
Land
| 1 | 1677A | Terr/Mtn/No View 6-15 Acres | 5.5400 | 241322.40 | 0.00 | 0.00 | 0.00 | $30,851 | $0 |
| 2 | 4320-1374S | Residential Sites 1+/- Ac Fair/Avg Terr. Views | 1.0000 | 43560.00 | 0.00 | 0.00 | 1.00 | $121,000 | $0 |
Roll Value History
| 2025 | N/A | N/A | N/A | N/A | N/A |
| 2024 | $478,898 | $144,948 | $0 | $623,846 | $623,846 |
| 2023 | $457,130 | $132,008 | $0 | $589,138 | $589,138 |
| 2022 | $380,987 | $124,930 | $0 | $505,917 | $505,917 |
| 2021 | $373,517 | $119,171 | $0 | $492,688 | $492,688 |
Deed and Sales History
| 1 | 04/06/2017 | QCD | Quit Claim Deed | AMY P MURRAY | AMY P & KINNAN M MURRAY | | | | 127428 | |
| 2 | 03/25/2015 | TRED | Trustee Deed | PRINCE FAMILY GRANDCHILD TRUST | AMY P MURRAY | | | | 122947 | |
| 3 | 10/22/2013 | SWD | Statutory Warranty Deed | CATHERINE HENDY | PRINCE FAMILY GRANDCHILD TRUST | | | $385,000.00 | 120190 | |
Payout Agreement
| No payout information available.. |