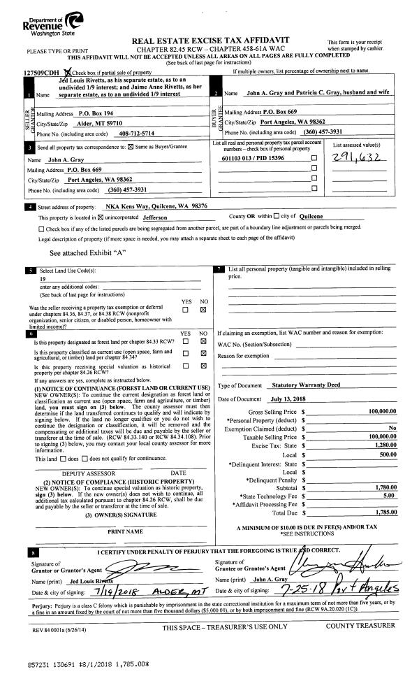
Property
Account |
| Property ID: | 19407 | Abbreviated Legal Description: | S5 T28 R1W TAX 6 |
| Parcel # / Geo ID: | 801051009 | Agent Code: | |
| Type: | Real | | |
| Tax Area: | 0151 - 1-50F5E5H2L1 | Land Use Code | 91 |
| Open Space: | N | DFL | N |
| Historic Property: | N | Remodel Property: | N |
| Multi-Family Redevelopment: | N | | |
| Township: | 28N | Section: | 5 |
| Range: | 1W |
Location |
| Address: | | Mapsco: | 073/014 |
| Neighborhood: | S 5-8 T28 R1W | Map ID: | |
| Neighborhood CD: | 5110 |
Owner |
| Name: | JOHN D HEIDECKER | Owner ID: | 102477 |
| Mailing Address: | PO BOX 451 CHIMACUM, WA 98325-0451 | % Ownership: | 100.0000000000% |
| | | Exemptions: | |
Pay Tax Due
There is currently No Amount Due on this property.
Taxes and Assessment Details
Property Tax Information as of
10/24/2025
Click on "Statement Details" to expand or collapse a tax statement.
* Please enter a valid date ** Please enter a valid date *
Statement Details |
| | TOTAL: | $0.00 | $0.00 | $0.00 | $0.00 | $0.00 | $0.00 |
|
| | $0.00 | $0.00 | $0.00 | $0.00 | $0.00 | $0.00 |
Values
| (+) Improvement Homesite Value: | + | $0 | |
| (+) Improvement Non-Homesite Value: | + | $0 | |
| (+) Land Homesite Value: | + | $0 | |
| (+) Land Non-Homesite Value: | + | $68,957 | |
| (+) Curr Use (HS): | + | $0 | $0 |
| (+) Curr Use (NHS): | + | $0 | $0 |
| | | -------------------------- | |
| (=) Market Value: | = | $68,957 | |
| (–) Productivity Loss: | – | $0 | |
| | | -------------------------- | |
| (=) Subtotal: | = | $68,957 | |
| (+) Senior Appraised Value: | + | $0 | |
| (+) Non-Senior Appraised Value: | + | $68,957 | |
| | | -------------------------- | |
| (=) Total Appraised Value: | = | $68,957 | |
| (–) Senior Exemption Loss: | – | $0 | |
| (–) Exemption Loss: | – | $0 | |
| | | -------------------------- | |
| (=) Taxable Value: | = | $68,957 | |
Taxing Jurisdiction
| Owner: | JOHN D HEIDECKER | | |
| % Ownership: | 100.0000000000% | | |
| Total Value: | N/A | | |
| Tax Area: | 0151 - 1-50F5E5H2L1 |
| CE | COUNTY CURRENT EXPENSE | N/A | N/A | N/A | N/A | | |
| CNTYDD | DEVELOPMENTAL DISABILITIES | N/A | N/A | N/A | N/A | | |
| CNTYVET | VETERANS RELIEF | N/A | N/A | N/A | N/A | | |
| MENTAL | MENTAL HEALTH | N/A | N/A | N/A | N/A | | |
| ROADS | COUNTY ROADS | N/A | N/A | N/A | N/A | | |
| ROADSCU | COUNTY ROADS TO CUR EXP | N/A | N/A | N/A | N/A | | |
| HOSP2CASH | HOSP DIST #2 GENERAL | N/A | N/A | N/A | N/A | | |
| SCH50BOND | SCHOOL DIST #50 BOND 2016 | N/A | N/A | N/A | N/A | | |
| SCH50CP | SCHOOL DIST #50 CAP PROJ | N/A | N/A | N/A | N/A | | |
| SCH50MO | SCHOOL DIST #50 EP & O | N/A | N/A | N/A | N/A | | |
| CONSERVE | CONSERVATION FUTURES | N/A | N/A | N/A | N/A | | |
| EMS5 | FIRE DIST #5 EMS | N/A | N/A | N/A | N/A | | |
| FD5 | FIRE DIST #5 GENERAL | N/A | N/A | N/A | N/A | | |
| FD5BOND | FIRE DIST #5 BOND 2016 | N/A | N/A | N/A | N/A | | |
| LIB1 | LIBRARY DIST #1 GENERAL | N/A | N/A | N/A | N/A | | |
| PORTPT | PORT OF PT GENERAL | N/A | N/A | N/A | N/A | | |
| PORTPTIDD | PORT OF PT IDD 2019 | N/A | N/A | N/A | N/A | | |
| PUD1 | PUD #1 GENERAL | N/A | N/A | N/A | N/A | | |
| STATE | STATE SCHOOL PART 1 | N/A | N/A | N/A | N/A | | |
| STATE2 | STATE SCHOOL PART 2 | N/A | N/A | N/A | N/A | | |
| | Total Tax Rate: | N/A | | | | | |
| | | | | Taxes w/Current Exemptions: | N/A | | |
| | | | | Taxes w/o Exemptions: | N/A | | |
Improvement / Building
Sketch
| No sketches available for this property. |
Property Image
Land
| 1 | 5110-1375S | Terr/Mtn View Sites 1+/- Acre | 1.0000 | 43560.00 | 0.00 | 0.00 | 1.00 | $55,000 | $0 |
| 2 | 1579A | Terr/Mtn/No View <6 Acres | 1.7500 | 76230.00 | 0.00 | 0.00 | 0.00 | $13,957 | $0 |
Roll Value History
| 2025 | N/A | N/A | N/A | N/A | N/A |
| 2024 | $0 | $68,957 | $0 | $68,957 | $68,957 |
| 2023 | $0 | $65,363 | $0 | $65,363 | $65,363 |
| 2022 | $0 | $61,375 | $0 | $61,375 | $61,375 |
| 2021 | $0 | $49,088 | $0 | $49,088 | $49,088 |
Deed and Sales History
| 1 | 03/30/2020 | SWD | Statutory Warranty Deed | GREELEY LIVING TRUST | JOHN D HEIDECKER | | | $42,000.00 | 134173 | |
| 2 | 04/23/2019 | DILF | Deed in Lieu of Foreclosure | GREGORY L SEITZ | GREELEY LIVING TRUST | | | $44,625.00 | 132192 | |
| 3 | 06/01/2012 | SWD | Statutory Warranty Deed | HUMENUK, ZINOVY | SEITZ, GREGORY/CHANA | 0 | 0 | $46,000.00 | 117650 | 0 |
| 4 | 10/31/2005 | SWD | Statutory Warranty Deed | HERTEL, CHRISTOPHER LEE | HUMENUK, ZINOVY & KATHERN | 0 | 0 | $39,000.00 | 105279 | 0 |
Payout Agreement
| No payout information available.. |