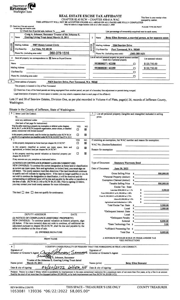
Property
Account |
| Property ID: | 19459 | Abbreviated Legal Description: | S9 T28 R1W SW SE(LS S100' & TAX 17)LS R/W BND TGTH BY BLA #112645 |
| Parcel # / Geo ID: | 801094002 | Agent Code: | |
| Type: | Real | | |
| Tax Area: | 0211 - 1-49F1E1H2L1 | Land Use Code | 11 |
| Open Space: | N | DFL | N |
| Historic Property: | N | Remodel Property: | N |
| Multi-Family Redevelopment: | N | | |
| Township: | 28N | Section: | 9 |
| Range: | 1W |
Location |
| Address: | 6464 CENTER RD CHIMACUM, WA 98325 | Mapsco: | 193/058 |
| Neighborhood: | S9, S10, & S11 T28N R1W | Map ID: | |
| Neighborhood CD: | 4330 |
Owner |
| Name: | HOWARD T BARNHOUSE JR | Owner ID: | 11030 |
| Mailing Address: | 6464 CENTER RD CHIMACUM, WA 98325-9600 | % Ownership: | 100.0000000000% |
| | | Exemptions: | |
Pay Tax Due
There is currently No Amount Due on this property.
Taxes and Assessment Details
Property Tax Information as of
10/24/2025
Click on "Statement Details" to expand or collapse a tax statement.
* Please enter a valid date ** Please enter a valid date *
Statement Details |
| | TOTAL: | $0.00 | $0.00 | $0.00 | $0.00 | $0.00 | $0.00 |
|
| | $0.00 | $0.00 | $0.00 | $0.00 | $0.00 | $0.00 |
Values
| (+) Improvement Homesite Value: | + | $0 | |
| (+) Improvement Non-Homesite Value: | + | $10,212 | |
| (+) Land Homesite Value: | + | $0 | |
| (+) Land Non-Homesite Value: | + | $133,100 | |
| (+) Curr Use (HS): | + | $0 | $0 |
| (+) Curr Use (NHS): | + | $0 | $0 |
| | | -------------------------- | |
| (=) Market Value: | = | $143,312 | |
| (–) Productivity Loss: | – | $0 | |
| | | -------------------------- | |
| (=) Subtotal: | = | $143,312 | |
| (+) Senior Appraised Value: | + | $0 | |
| (+) Non-Senior Appraised Value: | + | $143,312 | |
| | | -------------------------- | |
| (=) Total Appraised Value: | = | $143,312 | |
| (–) Senior Exemption Loss: | – | $0 | |
| (–) Exemption Loss: | – | $0 | |
| | | -------------------------- | |
| (=) Taxable Value: | = | $143,312 | |
Taxing Jurisdiction
| Owner: | HOWARD T BARNHOUSE JR | | |
| % Ownership: | 100.0000000000% | | |
| Total Value: | N/A | | |
| Tax Area: | 0211 - 1-49F1E1H2L1 |
| CE | COUNTY CURRENT EXPENSE | N/A | N/A | N/A | N/A | | |
| CNTYDD | DEVELOPMENTAL DISABILITIES | N/A | N/A | N/A | N/A | | |
| CNTYVET | VETERANS RELIEF | N/A | N/A | N/A | N/A | | |
| MENTAL | MENTAL HEALTH | N/A | N/A | N/A | N/A | | |
| ROADS | COUNTY ROADS | N/A | N/A | N/A | N/A | | |
| ROADSCU | COUNTY ROADS TO CUR EXP | N/A | N/A | N/A | N/A | | |
| HOSP2CASH | HOSP DIST #2 GENERAL | N/A | N/A | N/A | N/A | | |
| SCH49CP | SCHOOL DIST #49 CAP PROJ | N/A | N/A | N/A | N/A | | |
| SCH49MO | SCHOOL DIST #49 EP & O | N/A | N/A | N/A | N/A | | |
| CONSERVE | CONSERVATION FUTURES | N/A | N/A | N/A | N/A | | |
| EMS1 | FIRE DIST #1 EMS | N/A | N/A | N/A | N/A | | |
| FD1 | FIRE DIST #1 GENERAL | N/A | N/A | N/A | N/A | | |
| LIB1 | LIBRARY DIST #1 GENERAL | N/A | N/A | N/A | N/A | | |
| PORTPT | PORT OF PT GENERAL | N/A | N/A | N/A | N/A | | |
| PORTPTIDD | PORT OF PT IDD 2019 | N/A | N/A | N/A | N/A | | |
| PUD1 | PUD #1 GENERAL | N/A | N/A | N/A | N/A | | |
| STATE | STATE SCHOOL PART 1 | N/A | N/A | N/A | N/A | | |
| STATE2 | STATE SCHOOL PART 2 | N/A | N/A | N/A | N/A | | |
| | Total Tax Rate: | N/A | | | | | |
| | | | | Taxes w/Current Exemptions: | N/A | | |
| | | | | Taxes w/o Exemptions: | N/A | | |
Improvement / Building
| Improvement #1: | Manufactured Home | State Code: | 11 | 924.0 sqft | Value: | $10,212 |
| Bathrooms (#): | 1 (FULL) | Bedrooms (#): | 2 | | Exterior Wall: | ECONO | Fireplace: | WD ST-GOOD | | Floor Construction: | FRAME | Foundation: | PO&BL | | Heating/Cooling: | F/A | Roof Cover: | METAL |
|
| | Type | Description | Class CD | Sub Class CD | Year Built | Area |
| | MA | Main Area | 2- | MSG | 1980 | 924.0 |
| | OTHER | Other | * | * | 1980 | 0.0 |
| | MSKIRT_MTL | MH Skirting - Metal/Vinyl | 2 | * | 1980 | 156.0 |
Sketch
Property Image
Land
| 1 | 4330-1375S | Residential Sites 1+/- Ac SomeTerritorial Views | 1.0000 | 43560.00 | 0.00 | 0.00 | 1.00 | $93,500 | $0 |
| 2 | 4330-8775A | Terr View Acreage Used Primarily for Pasture | 16.0000 | 696960.00 | 0.00 | 0.00 | 0.00 | $39,600 | $0 |
Roll Value History
| 2025 | N/A | N/A | N/A | N/A | N/A |
| 2024 | $9,768 | $127,050 | $0 | $136,818 | $136,818 |
| 2023 | $8,880 | $116,000 | $0 | $124,880 | $124,880 |
| 2022 | $9,713 | $101,000 | $0 | $110,713 | $110,713 |
| 2021 | $8,094 | $87,113 | $0 | $95,207 | $95,207 |
Deed and Sales History
| 1 | 03/02/2009 | BLA | Boundary Line Adjustment | BARNHOUSE, HOWARD/FLORA | BARNHOUSE, HOWARD/FLORA | 0 | 0 | $0.00 | 112645 | 0 |
| 2 | 05/01/2000 | EASE | Assignment of Easement | BARNHOUSE, HOWARD T/SR & | JEFFERSON LAND TRUST | 0 | 0 | $0.00 | 89486 | 0 |
| 3 | 02/15/2000 | QCD | Quit Claim Deed | BARNHOUSE, HOWARD T/FLORA | BARNHOUSE, HOWARD T & FLORA/TR | 0 | 0 | $0.00 | 90676 | 0 |
| 4 | 02/15/1994 | QCD | Quit Claim Deed | BARNHOUSE TRSTE, HOWARD T | BARNHOUSE JR, HOWARD T | 0 | 0 | $40,000.00 | 116617 | 0 |
Payout Agreement
| No payout information available.. |