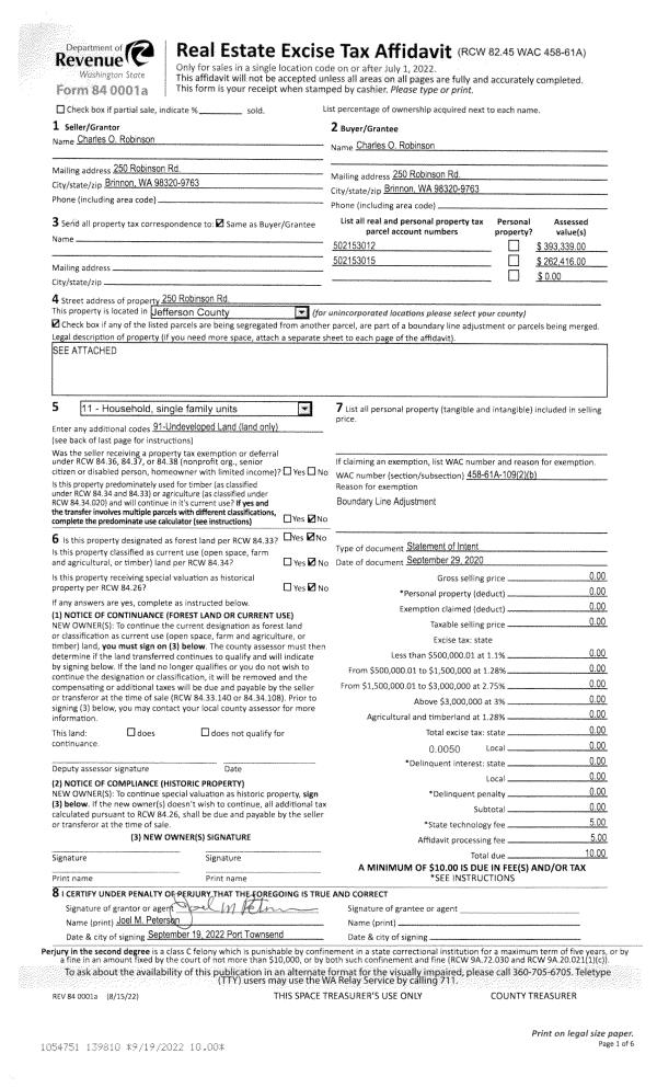
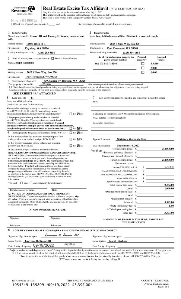
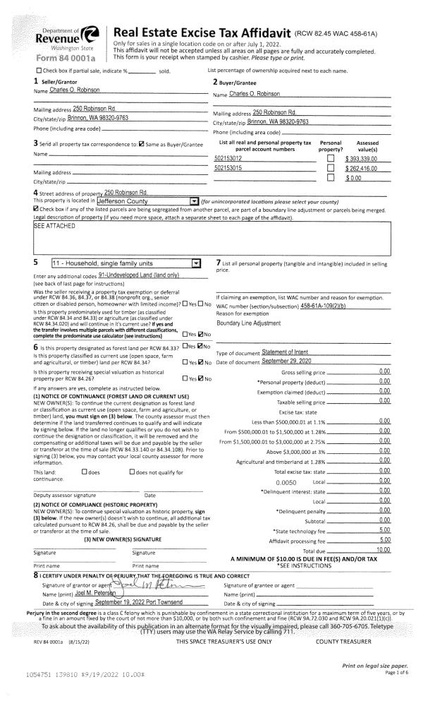
Property
Account |
| Property ID: | 19490 | Abbreviated Legal Description: | S10 T28 R1W TAX 24-PARCEL A-SURVEY V19/P79-80 |
| Parcel # / Geo ID: | 801104005 | Agent Code: | |
| Type: | Real | | |
| Tax Area: | 0211 - 1-49F1E1H2L1 | Land Use Code | 83 |
| Open Space: | Y | DFL | N |
| Historic Property: | N | Remodel Property: | N |
| Multi-Family Redevelopment: | N | | |
| Township: | 28N | Section: | 10 |
| Range: | 1W |
Location |
| Address: | 254 N SANDY SHORE LAKE RD CHIMACUM, WA 98325 | Mapsco: | 194/026 |
| Neighborhood: | S9, S10, & S11 T28N R1W | Map ID: | |
| Neighborhood CD: | 4330 |
Owner |
| Name: | WILLIAM J DENNING | Owner ID: | 14421 |
| Mailing Address: | JENNENE DENNING 254 N SANDY SHORE RD CHIMACUM, WA 98325-8770 | % Ownership: | 100.0000000000% |
| | | Exemptions: | |
Pay Tax Due
There is currently No Amount Due on this property.
Taxes and Assessment Details
Property Tax Information as of
10/24/2025
Click on "Statement Details" to expand or collapse a tax statement.
* Please enter a valid date ** Please enter a valid date *
Statement Details |
| | TOTAL: | $0.00 | $0.00 | $0.00 | $0.00 | $0.00 | $0.00 |
|
| | $0.00 | $0.00 | $0.00 | $0.00 | $0.00 | $0.00 |
Values
| (+) Improvement Homesite Value: | + | $0 | |
| (+) Improvement Non-Homesite Value: | + | $544,005 | |
| (+) Land Homesite Value: | + | $0 | |
| (+) Land Non-Homesite Value: | + | $22,000 | |
| (+) Curr Use (HS): | + | $0 | $0 |
| (+) Curr Use (NHS): | + | $320,117 | $4,293 |
| | | -------------------------- | |
| (=) Market Value: | = | $886,122 | |
| (–) Productivity Loss: | – | $315,824 | |
| | | -------------------------- | |
| (=) Subtotal: | = | $570,298 | |
| (+) Senior Appraised Value: | + | $0 | |
| (+) Non-Senior Appraised Value: | + | $570,298 | |
| | | -------------------------- | |
| (=) Total Appraised Value: | = | $570,298 | |
| (–) Senior Exemption Loss: | – | $0 | |
| (–) Exemption Loss: | – | $0 | |
| | | -------------------------- | |
| (=) Taxable Value: | = | $570,298 | |
Taxing Jurisdiction
| Owner: | WILLIAM J DENNING | | |
| % Ownership: | 100.0000000000% | | |
| Total Value: | N/A | | |
| Tax Area: | 0211 - 1-49F1E1H2L1 |
| CE | COUNTY CURRENT EXPENSE | N/A | N/A | N/A | N/A | | |
| CNTYDD | DEVELOPMENTAL DISABILITIES | N/A | N/A | N/A | N/A | | |
| CNTYVET | VETERANS RELIEF | N/A | N/A | N/A | N/A | | |
| MENTAL | MENTAL HEALTH | N/A | N/A | N/A | N/A | | |
| ROADS | COUNTY ROADS | N/A | N/A | N/A | N/A | | |
| ROADSCU | COUNTY ROADS TO CUR EXP | N/A | N/A | N/A | N/A | | |
| HOSP2CASH | HOSP DIST #2 GENERAL | N/A | N/A | N/A | N/A | | |
| SCH49CP | SCHOOL DIST #49 CAP PROJ | N/A | N/A | N/A | N/A | | |
| SCH49MO | SCHOOL DIST #49 EP & O | N/A | N/A | N/A | N/A | | |
| CONSERVE | CONSERVATION FUTURES | N/A | N/A | N/A | N/A | | |
| EMS1 | FIRE DIST #1 EMS | N/A | N/A | N/A | N/A | | |
| FD1 | FIRE DIST #1 GENERAL | N/A | N/A | N/A | N/A | | |
| LIB1 | LIBRARY DIST #1 GENERAL | N/A | N/A | N/A | N/A | | |
| PORTPT | PORT OF PT GENERAL | N/A | N/A | N/A | N/A | | |
| PORTPTIDD | PORT OF PT IDD 2019 | N/A | N/A | N/A | N/A | | |
| PUD1 | PUD #1 GENERAL | N/A | N/A | N/A | N/A | | |
| STATE | STATE SCHOOL PART 1 | N/A | N/A | N/A | N/A | | |
| STATE2 | STATE SCHOOL PART 2 | N/A | N/A | N/A | N/A | | |
| | Total Tax Rate: | N/A | | | | | |
| | | | | Taxes w/Current Exemptions: | N/A | | |
| | | | | Taxes w/o Exemptions: | N/A | | |
Improvement / Building
| Improvement #1: | Residential Bldg | State Code: | 83 | 2480.0 sqft | Value: | $544,005 |
| Bathrooms (#): | 3 (FULL) | Bathrooms (#): | 1 (HALF) | | Bedrooms (#): | 3 | Exterior Wall: | SI/ST | | Fireplace: | SIN 1-GOOD | Fireplace: | SIN 2-GOOD | | Floor Construction: | FRAME | Foundation: | CONPR | | Heating/Cooling: | F/A | Roof Cover: | COMP |
|
| | Type | Description | Class CD | Sub Class CD | Year Built | Area |
| | MA | Main Area | 4- | 2S | 2000 | 1980.0 |
| | MA2 | Second Floor Main Area | 4 | 2S | 2000 | 500.0 |
| | HWPOR | House Wood Porch | 4 | * | 2000 | 780.0 |
| | HCPOR | House Concrete Porch | 4 | * | 2000 | 217.0 |
| | GATT | House Attached Garage | 3 | 2S | 2000 | 816.0 |
| | BARN | Barn (Table Not Dep) | 3 | * | 2000 | 1728.0 |
| | CONCD | Concrete Drive | 3 | * | 2000 | 400.0 |
| | OTHER | Other | 2 | * | 2000 | 0.0 |
Sketch
Property Image
Land
| 1 | 1874A | Terr/Mtn/No View >25-40 Acres | 10.7800 | 469576.80 | 0.00 | 0.00 | 0.00 | $80,042 | $1,207 |
| 2 | 1874A | Terr/Mtn/No View >25-40 Acres | 19.0000 | 827640.00 | 0.00 | 0.00 | 0.00 | $141,075 | $2,850 |
| 3 | 9808 | Water System, Septic, & Power | 1.0000 | 43560.00 | 0.00 | 0.00 | 1.00 | $22,000 | $0 |
| 4 | 4330-1373S | Residential Sites 1+/- Ac Good Territorial Views | 1.0000 | 43560.00 | 0.00 | 0.00 | 1.00 | $99,000 | $236 |
Roll Value History
| 2025 | N/A | N/A | N/A | N/A | N/A |
| 2024 | $520,353 | $326,566 | $4,293 | $545,646 | $545,646 |
| 2023 | $473,048 | $303,570 | $4,272 | $497,320 | $497,320 |
| 2022 | $468,061 | $288,680 | $4,239 | $492,300 | $492,300 |
| 2021 | $354,592 | $264,449 | $4,239 | $376,081 | $376,081 |
Deed and Sales History
| 1 | 07/27/1998 | SWD | Statutory Warranty Deed | CARSTENSEN, HOWARD G | DENNING, WILLIAM J & JENNENE | 0 | 0 | $155,000.00 | 84938 | 0 |
| 2 | 11/25/1997 | QCD | Quit Claim Deed | CARSTENSEN, FLORENCE K/ES | CARSTENSEN, HOWARD G | 0 | 0 | $0.00 | 83352 | 0 |
Payout Agreement
| No payout information available.. |