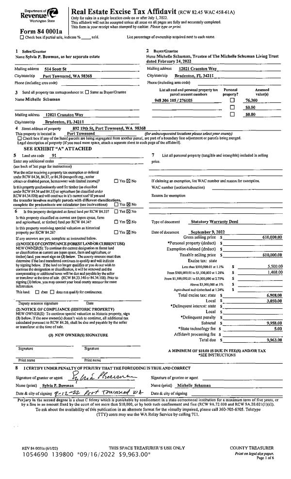
Property
Account |
| Property ID: | 19516 | Abbreviated Legal Description: | S11 T28 R1W TAX 5 W/EASE |
| Parcel # / Geo ID: | 801112006 | Agent Code: | |
| Type: | Real | | |
| Tax Area: | 0211 - 1-49F1E1H2L1 | Land Use Code | 11 |
| Open Space: | N | DFL | N |
| Historic Property: | N | Remodel Property: | N |
| Multi-Family Redevelopment: | N | | |
| Township: | 28N | Section: | 11 |
| Range: | 1W |
Location |
| Address: | 331 DHARMA RD CHIMACUM, WA 98325 | Mapsco: | 194/059 |
| Neighborhood: | S9, S10, & S11 T28N R1W | Map ID: | |
| Neighborhood CD: | 4330 |
Owner |
| Name: | KASSAUNDRA & MARK CARPENTER | Owner ID: | 106146 |
| Mailing Address: | 331 DHARMA RD CHIMACUM, WA 98325-9719 | % Ownership: | 100.0000000000% |
| | | Exemptions: | |
Pay Tax Due
There is currently No Amount Due on this property.
Taxes and Assessment Details
Property Tax Information as of
10/24/2025
Click on "Statement Details" to expand or collapse a tax statement.
* Please enter a valid date ** Please enter a valid date *
Statement Details |
| | TOTAL: | $0.00 | $0.00 | $0.00 | $0.00 | $0.00 | $0.00 |
|
| | $0.00 | $0.00 | $0.00 | $0.00 | $0.00 | $0.00 |
Values
| (+) Improvement Homesite Value: | + | $0 | |
| (+) Improvement Non-Homesite Value: | + | $30,074 | |
| (+) Land Homesite Value: | + | $0 | |
| (+) Land Non-Homesite Value: | + | $189,200 | |
| (+) Curr Use (HS): | + | $0 | $0 |
| (+) Curr Use (NHS): | + | $0 | $0 |
| | | -------------------------- | |
| (=) Market Value: | = | $219,274 | |
| (–) Productivity Loss: | – | $0 | |
| | | -------------------------- | |
| (=) Subtotal: | = | $219,274 | |
| (+) Senior Appraised Value: | + | $0 | |
| (+) Non-Senior Appraised Value: | + | $219,274 | |
| | | -------------------------- | |
| (=) Total Appraised Value: | = | $219,274 | |
| (–) Senior Exemption Loss: | – | $0 | |
| (–) Exemption Loss: | – | $0 | |
| | | -------------------------- | |
| (=) Taxable Value: | = | $219,274 | |
Taxing Jurisdiction
| Owner: | KASSAUNDRA & MARK CARPENTER | | |
| % Ownership: | 100.0000000000% | | |
| Total Value: | N/A | | |
| Tax Area: | 0211 - 1-49F1E1H2L1 |
| CE | COUNTY CURRENT EXPENSE | N/A | N/A | N/A | N/A | | |
| CNTYDD | DEVELOPMENTAL DISABILITIES | N/A | N/A | N/A | N/A | | |
| CNTYVET | VETERANS RELIEF | N/A | N/A | N/A | N/A | | |
| MENTAL | MENTAL HEALTH | N/A | N/A | N/A | N/A | | |
| ROADS | COUNTY ROADS | N/A | N/A | N/A | N/A | | |
| ROADSCU | COUNTY ROADS TO CUR EXP | N/A | N/A | N/A | N/A | | |
| HOSP2CASH | HOSP DIST #2 GENERAL | N/A | N/A | N/A | N/A | | |
| SCH49CP | SCHOOL DIST #49 CAP PROJ | N/A | N/A | N/A | N/A | | |
| SCH49MO | SCHOOL DIST #49 EP & O | N/A | N/A | N/A | N/A | | |
| CONSERVE | CONSERVATION FUTURES | N/A | N/A | N/A | N/A | | |
| EMS1 | FIRE DIST #1 EMS | N/A | N/A | N/A | N/A | | |
| FD1 | FIRE DIST #1 GENERAL | N/A | N/A | N/A | N/A | | |
| LIB1 | LIBRARY DIST #1 GENERAL | N/A | N/A | N/A | N/A | | |
| PORTPT | PORT OF PT GENERAL | N/A | N/A | N/A | N/A | | |
| PORTPTIDD | PORT OF PT IDD 2019 | N/A | N/A | N/A | N/A | | |
| PUD1 | PUD #1 GENERAL | N/A | N/A | N/A | N/A | | |
| STATE | STATE SCHOOL PART 1 | N/A | N/A | N/A | N/A | | |
| STATE2 | STATE SCHOOL PART 2 | N/A | N/A | N/A | N/A | | |
| | Total Tax Rate: | N/A | | | | | |
| | | | | Taxes w/Current Exemptions: | N/A | | |
| | | | | Taxes w/o Exemptions: | N/A | | |
Improvement / Building
| Improvement #1: | Residential Bldg | State Code: | 11 | 480.0 sqft | Value: | $30,074 |
| Bedrooms (#): | 1 | Exterior Wall: | PL/T1 | | Fireplace: | WD ST-GOOD | Floor Construction: | FRAME | | Foundation: | PO&BL | Heating/Cooling: | WD/NO | | Interior Finish: | FIN | Roof Cover: | METAL |
|
| | Type | Description | Class CD | Sub Class CD | Year Built | Area |
| | MA | Main Area | 3- | C1S | 1982 | 480.0 |
| | CDECK | Cabin Deck | 3 | * | 1982 | 120.0 |
| | SHED | Shed (Table Not Dep) | 3 | * | 1982 | 80.0 |
Sketch
Property Image
Land
| 1 | 1572A | Terr/Mtn/No View <6 Acres | 4.0000 | 174240.00 | 0.00 | 0.00 | 0.00 | $79,200 | $0 |
| 2 | 4330-1374S | Residential Sites 1+/- Ac Fair/Avg Terr. Views | 1.0000 | 43560.00 | 0.00 | 0.00 | 1.00 | $110,000 | $0 |
Roll Value History
| 2025 | N/A | N/A | N/A | N/A | N/A |
| 2024 | $28,766 | $180,600 | $0 | $209,366 | $209,366 |
| 2023 | $26,151 | $163,000 | $0 | $189,151 | $189,151 |
| 2022 | $42,016 | $147,500 | $0 | $189,516 | $189,516 |
| 2021 | $17,251 | $76,547 | $0 | $93,798 | $93,798 |
Deed and Sales History
| 1 | 12/10/2021 | SWD | Statutory Warranty Deed | ALFRED W LATHAM JR | KASSAUNDRA & MARK CARPENTER | | | $205,000.00 | 138234 | |
| 2 | 10/23/2012 | SWD | Statutory Warranty Deed | HATHAWAY, CHRIS D | LATHAM, ALFRED/SUSAN | 0 | 0 | $72,500.00 | 118279 | 0 |
Payout Agreement
| No payout information available.. |