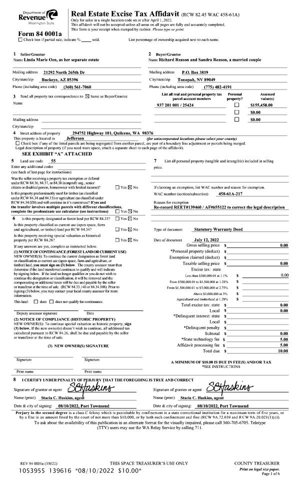
Property
Account |
| Property ID: | 19524 | Abbreviated Legal Description: | S12 T28 R1W N1/2 SE NE LESS E1/2 W/EASE |
| Parcel # / Geo ID: | 801121001 | Agent Code: | |
| Type: | Real | | |
| Tax Area: | 0213 - 1-49F1E1H2L1 | Land Use Code | 11 |
| Open Space: | N | DFL | N |
| Historic Property: | N | Remodel Property: | N |
| Multi-Family Redevelopment: | N | | |
| Township: | 28N | Section: | 12 |
| Range: | 1W |
Location |
| Address: | 552 EMBODY RD PORT LUDLOW, WA 98365 | Mapsco: | 195/012 |
| Neighborhood: | S12 & S13 T28N R1W | Map ID: | |
| Neighborhood CD: | 3120 |
Owner |
| Name: | BRAVERMAN REVOCABLE TRUST | Owner ID: | 102437 |
| Mailing Address: | MARK BRAVERAMN TRUSTEE SUSAN R BRAVERAMN TRUSTEE 552 EMBODY RD PORT LUDLOW, WA 98365-8770 | % Ownership: | 100.0000000000% |
| | | Exemptions: | |
Pay Tax Due
There is currently No Amount Due on this property.
Taxes and Assessment Details
Property Tax Information as of
10/24/2025
Click on "Statement Details" to expand or collapse a tax statement.
* Please enter a valid date ** Please enter a valid date *
Statement Details |
| | TOTAL: | $0.00 | $0.00 | $0.00 | $0.00 | $0.00 | $0.00 |
|
| | $0.00 | $0.00 | $0.00 | $0.00 | $0.00 | $0.00 |
Values
| (+) Improvement Homesite Value: | + | $0 | |
| (+) Improvement Non-Homesite Value: | + | $402,593 | |
| (+) Land Homesite Value: | + | $0 | |
| (+) Land Non-Homesite Value: | + | $232,315 | |
| (+) Curr Use (HS): | + | $0 | $0 |
| (+) Curr Use (NHS): | + | $0 | $0 |
| | | -------------------------- | |
| (=) Market Value: | = | $634,908 | |
| (–) Productivity Loss: | – | $0 | |
| | | -------------------------- | |
| (=) Subtotal: | = | $634,908 | |
| (+) Senior Appraised Value: | + | $0 | |
| (+) Non-Senior Appraised Value: | + | $634,908 | |
| | | -------------------------- | |
| (=) Total Appraised Value: | = | $634,908 | |
| (–) Senior Exemption Loss: | – | $0 | |
| (–) Exemption Loss: | – | $0 | |
| | | -------------------------- | |
| (=) Taxable Value: | = | $634,908 | |
Taxing Jurisdiction
| Owner: | BRAVERMAN REVOCABLE TRUST | | |
| % Ownership: | 100.0000000000% | | |
| Total Value: | N/A | | |
| Tax Area: | 0213 - 1-49F1E1H2L1 |
| CE | COUNTY CURRENT EXPENSE | N/A | N/A | N/A | N/A | | |
| CNTYDD | DEVELOPMENTAL DISABILITIES | N/A | N/A | N/A | N/A | | |
| CNTYVET | VETERANS RELIEF | N/A | N/A | N/A | N/A | | |
| MENTAL | MENTAL HEALTH | N/A | N/A | N/A | N/A | | |
| ROADS | COUNTY ROADS | N/A | N/A | N/A | N/A | | |
| ROADSCU | COUNTY ROADS TO CUR EXP | N/A | N/A | N/A | N/A | | |
| HOSP2CASH | HOSP DIST #2 GENERAL | N/A | N/A | N/A | N/A | | |
| SCH49CP | SCHOOL DIST #49 CAP PROJ | N/A | N/A | N/A | N/A | | |
| SCH49MO | SCHOOL DIST #49 EP & O | N/A | N/A | N/A | N/A | | |
| CONSERVE | CONSERVATION FUTURES | N/A | N/A | N/A | N/A | | |
| EMS1 | FIRE DIST #1 EMS | N/A | N/A | N/A | N/A | | |
| FD1 | FIRE DIST #1 GENERAL | N/A | N/A | N/A | N/A | | |
| LIB1 | LIBRARY DIST #1 GENERAL | N/A | N/A | N/A | N/A | | |
| PORTPT | PORT OF PT GENERAL | N/A | N/A | N/A | N/A | | |
| PORTPTIDD | PORT OF PT IDD 2019 | N/A | N/A | N/A | N/A | | |
| PUD1 | PUD #1 GENERAL | N/A | N/A | N/A | N/A | | |
| STATE | STATE SCHOOL PART 1 | N/A | N/A | N/A | N/A | | |
| STATE2 | STATE SCHOOL PART 2 | N/A | N/A | N/A | N/A | | |
| | Total Tax Rate: | N/A | | | | | |
| | | | | Taxes w/Current Exemptions: | N/A | | |
| | | | | Taxes w/o Exemptions: | N/A | | |
Improvement / Building
| Improvement #1: | Residential Bldg | State Code: | 18 | 0.0 sqft | Value: | $103,573 |
| | Type | Description | Class CD | Sub Class CD | Year Built | Area |
| | CARPTN | Carport W/O Floor | 1 | * | 2005 | 516.0 |
| | BARN | Barn (Table Not Dep) | 2 | * | 2005 | 1414.0 |
| | SHED | Shed (Table Not Dep) | 6 | * | 2005 | 960.0 |
| | OTHER | Other | 3 | * | 2005 | 1335.3 |
| | CARPTN | Carport W/O Floor | 2 | * | 2005 | 432.0 |
| Improvement #2: | Residential Bldg | State Code: | 11 | 1426.0 sqft | Value: | $299,020 |
| Bathrooms (#): | 1 (FULL) | Bedrooms (#): | 2 | | Exterior Wall: | SI/ST | Fireplace: | WD ST-AVG | | Foundation: | CONPR | Heating/Cooling: | OTHER | | Roof Cover: | METAL |   |   |
|
| | Type | Description | Class CD | Sub Class CD | Year Built | Area |
| | MA | Main Area | 3+ | 15SF | 2022 | 906.0 |
| | MA2 | Second Floor Main Area | 3+ | 15SF | 2022 | 520.0 |
| | HWPOR | House Wood Porch | 3 | 15SF | 2022 | 525.0 |
Sketch
Property Image
Land
| 1 | 3120-1375S | Terr/Mtn View Sites 1+/- Acre | 1.0000 | 43560.00 | 0.00 | 0.00 | 1.00 | $115,000 | $0 |
| 2 | 1672A | Terr/Mtn/No View 6-15 Acres | 8.8900 | 387248.40 | 0.00 | 0.00 | 0.00 | $117,315 | $0 |
Roll Value History
| 2025 | N/A | N/A | N/A | N/A | N/A |
| 2024 | $385,818 | $222,214 | $0 | $608,032 | $608,032 |
| 2023 | $284,762 | $219,460 | $0 | $504,222 | $504,222 |
| 2022 | $153,256 | $201,125 | $0 | $354,381 | $354,381 |
| 2021 | $76,910 | $186,819 | $0 | $263,729 | $263,729 |
Deed and Sales History
| 1 | 03/16/2020 | WD | Warranty Deed | MARK & SUSAN BRAVERMAN | BRAVERMAN REVOCABLE TRUST | | | | 134125 | |
| 2 | 12/02/2019 | SWD | Statutory Warranty Deed | CROOKED SHEPHERD LLC | MARK & SUSAN BRAVERMAN | | | $310,000.00 | 133578 | |
| 3 | 08/12/2015 | SWD | Statutory Warranty Deed | J ZACHARY WAILAND | CROOKED SHEPHERD LLC | | | $180,000.00 | 123766 | |
| 4 | 04/09/2007 | DILF | Deed in Lieu of Foreclosure | OLSON, HARVEY T/MARY LOU | WAILAND, ZACHARY/HALEY | | | $0.00 | 109109 | 0 |
| 5 | 06/25/2005 | REC | Real Estate Contract | ANDERSON, ROBERT M/RONA L | OLSON, HARVEY & MARY LOU/ | | | $100,000.00 | 104054 | 0 |
| 6 | 12/29/1992 | SWD | Statutory Warranty Deed | PORTER, C. CLINTON/SHIRLE | PORTER, DAVID C/KAREN C | 0 | 0 | $0.00 | 70210 | 0 |
Payout Agreement
| No payout information available.. |