| 1 | 01/11/2024 | SWD | Statutory Warranty Deed | LEIGH MILES HEARON | DW ARTS LLC | | | $1,700,000.00 | 142135 | |
|   | |
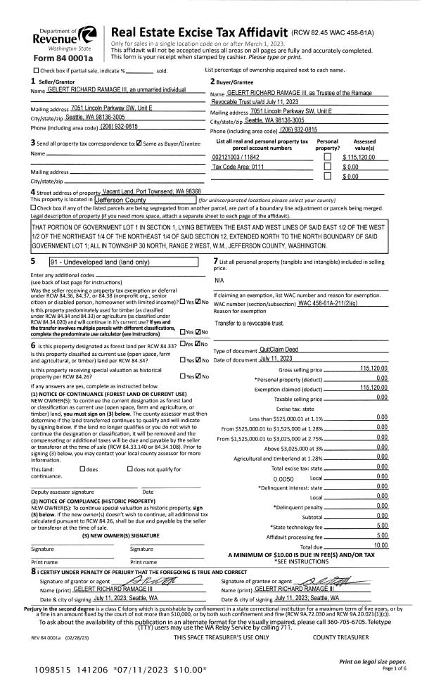
| 2 | 10/17/2023 | QCD | Quit Claim Deed | ALAN IGLITZIN TRSTEE | LEIGH MILES HEARON | | | | 141750 | |
| 3 | 10/24/2018 | CONS EASE | CONSERVATION EASEMENT | LEIGH MILES HEARON | JEFFERSON LAND TRUST | | | | 131265 | RE-RECORD |
| 4 | 09/10/2018 | CONS EASE | CONSERVATION EASEMENT | LEIGH MILES HEARON | JEFFERSON LAND TRUST | | | $70,000.00 | 131089 | |
|   | |
| 5 | 06/19/2018 | QCD | Quit Claim Deed | ALAN IGLITZIN TRSTEE | LEIGH MILES HEARON | | | | 130528 | |
| 6 | 03/12/2010 | QCD | Quit Claim Deed | IGLITZIN, ALAN | A I REVOCAGLE LIVING TRUST, AL | 0 | 0 | $0.00 | 114211 | 0 |
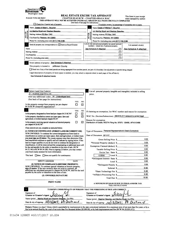
| 7 | 05/25/2000 | QCD | Quit Claim Deed | IGLITZIN-FARRELL LIVING T | IGLITZIN, ALAN | 0 | 0 | $0.00 | 89722 | 0 |
| 8 | 05/25/2000 | QCD | Quit Claim Deed | IGLITZIN-FARRELL LIVING T | IGLITZIN, ALAN | 0 | 0 | $0.00 | 89723 | 0 |
| 9 | 03/30/1998 | QCD | Quit Claim Deed | IGLITZIN, ALAN | IGLITZEN FARRELL LIVING TRUST | 0 | 0 | $0.00 | 84259 | 0 |
| 10 | 12/02/1996 | QCD | Quit Claim Deed | IGLITZIN, ALAN/LYNNE B | IGLITZIN-FARRELL LIVING TRUST | 0 | 0 | $0.00 | 81260 | 0 |
| 11 | 02/07/1995 | QCD | Quit Claim Deed | IGLITZIN, KAREN C/ET AL | IGLITZIN, ALAN/LYNNE | 0 | 0 | $0.00 | 78520 | 0 |
| 12 | 02/07/1995 | QCD | Quit Claim Deed | IGLITZIN, KAREN C/ET AL | IGLITZIN, ALAN/LYNNE | 0 | 0 | $0.00 | 78521 | 0 |