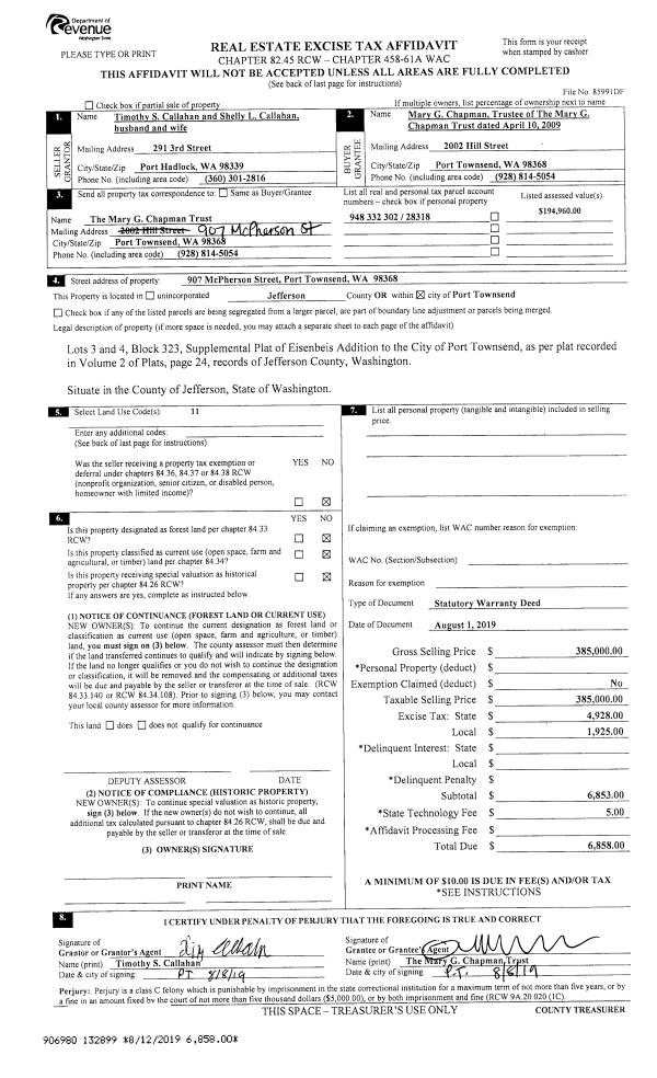
Property
Account |
| Property ID: | 19627 | Abbreviated Legal Description: | S21 T28 R1W SWNW(LY W/CO RD)&SWNW(LY E/CO RD) ENLG BY TX 19 BND TGT W/BLA#91583 LESS N2AC LYING E OF CO RD |
| Parcel # / Geo ID: | 801212004 | Agent Code: | |
| Type: | Real | | |
| Tax Area: | 0221 - 1-49F2E2H2L1 | Land Use Code | 83 |
| Open Space: | Y | DFL | N |
| Historic Property: | N | Remodel Property: | N |
| Multi-Family Redevelopment: | N | | |
| Township: | 28N | Section: | 21 |
| Range: | 1W |
Location |
| Address: | 1340 DABOB RD QUILCENE, WA 98376 | Mapsco: | 197/005 |
| Neighborhood: | S16, S17, S20, & S21 T28N R1W | Map ID: | |
| Neighborhood CD: | 4350 |
Owner |
| Name: | MARK R POKORNY | Owner ID: | 24956 |
| Mailing Address: | TAMARA S POKORNY 1340 DABOB RD QUILCENE, WA 98376-9727 | % Ownership: | 100.0000000000% |
| | | Exemptions: | |
Pay Tax Due
There is currently No Amount Due on this property.
Taxes and Assessment Details
Property Tax Information as of
10/24/2025
Click on "Statement Details" to expand or collapse a tax statement.
* Please enter a valid date ** Please enter a valid date *
Statement Details |
| | TOTAL: | $0.00 | $0.00 | $0.00 | $0.00 | $0.00 | $0.00 |
|
| | $0.00 | $0.00 | $0.00 | $0.00 | $0.00 | $0.00 |
Values
| (+) Improvement Homesite Value: | + | $0 | |
| (+) Improvement Non-Homesite Value: | + | $472,362 | |
| (+) Land Homesite Value: | + | $0 | |
| (+) Land Non-Homesite Value: | + | $40,920 | |
| (+) Curr Use (HS): | + | $0 | $0 |
| (+) Curr Use (NHS): | + | $346,195 | $7,227 |
| | | -------------------------- | |
| (=) Market Value: | = | $859,477 | |
| (–) Productivity Loss: | – | $338,968 | |
| | | -------------------------- | |
| (=) Subtotal: | = | $520,509 | |
| (+) Senior Appraised Value: | + | $0 | |
| (+) Non-Senior Appraised Value: | + | $520,509 | |
| | | -------------------------- | |
| (=) Total Appraised Value: | = | $520,509 | |
| (–) Senior Exemption Loss: | – | $0 | |
| (–) Exemption Loss: | – | $0 | |
| | | -------------------------- | |
| (=) Taxable Value: | = | $520,509 | |
Taxing Jurisdiction
| Owner: | MARK R POKORNY | | |
| % Ownership: | 100.0000000000% | | |
| Total Value: | N/A | | |
| Tax Area: | 0221 - 1-49F2E2H2L1 |
| CE | COUNTY CURRENT EXPENSE | N/A | N/A | N/A | N/A | | |
| CNTYDD | DEVELOPMENTAL DISABILITIES | N/A | N/A | N/A | N/A | | |
| CNTYVET | VETERANS RELIEF | N/A | N/A | N/A | N/A | | |
| MENTAL | MENTAL HEALTH | N/A | N/A | N/A | N/A | | |
| ROADS | COUNTY ROADS | N/A | N/A | N/A | N/A | | |
| ROADSCU | COUNTY ROADS TO CUR EXP | N/A | N/A | N/A | N/A | | |
| HOSP2CASH | HOSP DIST #2 GENERAL | N/A | N/A | N/A | N/A | | |
| SCH49CP | SCHOOL DIST #49 CAP PROJ | N/A | N/A | N/A | N/A | | |
| SCH49MO | SCHOOL DIST #49 EP & O | N/A | N/A | N/A | N/A | | |
| CONSERVE | CONSERVATION FUTURES | N/A | N/A | N/A | N/A | | |
| FD2 | FIRE DIST #2 GENERAL | N/A | N/A | N/A | N/A | | |
| LIB1 | LIBRARY DIST #1 GENERAL | N/A | N/A | N/A | N/A | | |
| PORTPT | PORT OF PT GENERAL | N/A | N/A | N/A | N/A | | |
| PORTPTIDD | PORT OF PT IDD 2019 | N/A | N/A | N/A | N/A | | |
| PUD1 | PUD #1 GENERAL | N/A | N/A | N/A | N/A | | |
| STATE | STATE SCHOOL PART 1 | N/A | N/A | N/A | N/A | | |
| STATE2 | STATE SCHOOL PART 2 | N/A | N/A | N/A | N/A | | |
| EMS2 | FIRE DIST #2 EMS | N/A | N/A | N/A | N/A | | |
| | Total Tax Rate: | N/A | | | | | |
| | | | | Taxes w/Current Exemptions: | N/A | | |
| | | | | Taxes w/o Exemptions: | N/A | | |
Improvement / Building
| Improvement #1: | Residential Bldg | State Code: | 83 | 1585.0 sqft | Value: | $74,138 |
| Bathrooms (#): | 1 (FULL) | Bedrooms (#): | 3 | | Exterior Wall: | SI/ST | Fireplace: | WD ST-FAIR | | Floor Construction: | FRAME | Foundation: | PO&BL | | Heating/Cooling: | WD/NO | Inside Verify: | YES-FIX | | Roof Cover: | METAL |   |   |
|
| | Type | Description | Class CD | Sub Class CD | Year Built | Area |
| | MA | Main Area | 2 | 15SF | 1885 | 1210.0 |
| | MA2 | Second Floor Main Area | 2 | 15SF | 1885 | 375.0 |
| | HWPOR | House Wood Porch | 2 | * | 1885 | 390.0 |
| | BARN | Barn (Table Not Dep) | 1 | * | 1885 | 2000.0 |
| | BARN | Barn (Table Not Dep) | 1 | * | 1885 | 5000.0 |
| | GARAG | Garage (Table Not Dep) | 2 | * | 1994 | 0.0 |
| Improvement #2: | Residential Bldg | State Code: | 11 | 1234.0 sqft | Value: | $398,224 |
| Bathrooms (#): | 2 (FULL) | Bedrooms (#): | 2 | | Exterior Wall: | SI/ST | Floor Construction: | FRAME | | Foundation: | CONPR | Heating/Cooling: | HPUMP | | Roof Cover: | METAL |   |   |
|
| | Type | Description | Class CD | Sub Class CD | Year Built | Area |
| | MA | Main Area | 4+ | 15SF | 2018 | 754.0 |
| | MA2 | Second Floor Main Area | 4 | 15SF | 2018 | 480.0 |
| | BSMTF | House basement finished | 4 | * | 2018 | 754.0 |
| | HDECK | House Deck | 4 | * | 2018 | 180.0 |
Sketch
Property Image
Land
| 1 | 4350-1375S | Residential Sites 1+/- Ac SomeTerritorial Views | 1.0000 | 43560.00 | 0.00 | 0.00 | 1.00 | $115,500 | $236 |
| 2 | 1577A | Terr/Mtn/No View <6 Acres | 4.8000 | 209088.00 | 0.00 | 0.00 | 0.00 | $40,920 | $0 |
| 3 | 1874A | Terr/Mtn/No View >25-40 Acres | 31.0700 | 1353409.20 | 0.00 | 0.00 | 0.00 | $230,695 | $6,991 |
Roll Value History
| 2025 | N/A | N/A | N/A | N/A | N/A |
| 2024 | $451,825 | $369,519 | $7,227 | $498,112 | $498,112 |
| 2023 | $431,287 | $337,955 | $7,227 | $474,514 | $474,514 |
| 2022 | $394,366 | $300,020 | $7,227 | $435,193 | $435,193 |
| 2021 | $298,762 | $273,853 | $7,227 | $339,109 | $339,109 |
Deed and Sales History
| 1 | 11/18/2011 | QCD | Quit Claim Deed | NORTHWEST WATERSHED INSTI | POKORNY, MARK/TAMARA | 0 | 0 | $0.00 | 116806 | 0 |
| 2 | 03/30/2006 | SWD | Statutory Warranty Deed | NORTHWEST WATERSHED INSTI | POKORNY, MARK & TAMARA | | | $466,000.00 | 106313 | 0 |
| 3 | 06/06/2005 | SWD | Statutory Warranty Deed | GETZ, BARBARA J | NORTHWEST WATERSHED INSTITUTE, | | | $0.00 | 104131 | 0 |
| 4 | 06/06/2005 | SWD | Statutory Warranty Deed | GETZ, BARBARA | NORTHWEST WATERSHED INSTITUTE | | | $412,500.00 | 103846 | 0 |
Payout Agreement
| No payout information available.. |