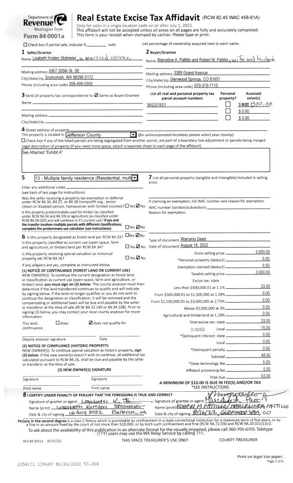
Property
Account |
| Property ID: | 19628 | Abbreviated Legal Description: | S21 T28 R1W TAX 20 BND TGTH THRU BLA#92691 |
| Parcel # / Geo ID: | 801212005 | Agent Code: | |
| Type: | Real | | |
| Tax Area: | 0221 - 1-49F2E2H2L1 | Land Use Code | 11 |
| Open Space: | N | DFL | N |
| Historic Property: | N | Remodel Property: | N |
| Multi-Family Redevelopment: | N | | |
| Township: | 28N | Section: | 21 |
| Range: | 1W |
Location |
| Address: | 1030 DABOB RD QUILCENE, WA 98376 | Mapsco: | 197/032 |
| Neighborhood: | S16, S17, S20, & S21 T28N R1W | Map ID: | |
| Neighborhood CD: | 4350 |
Owner |
| Name: | ELLEN M GRUS | Owner ID: | 97519 |
| Mailing Address: | 1030 DABOB RD QUILCENE, WA 98376-9729 | % Ownership: | 100.0000000000% |
| | | Exemptions: | SNR/DSBL |
Pay Tax Due
There is currently No Amount Due on this property.
Taxes and Assessment Details
Property Tax Information as of
10/24/2025
Click on "Statement Details" to expand or collapse a tax statement.
* Please enter a valid date ** Please enter a valid date *
Statement Details |
| | TOTAL: | $0.00 | $0.00 | $0.00 | $0.00 | $0.00 | $0.00 |
|
| | $0.00 | $0.00 | $0.00 | $0.00 | $0.00 | $0.00 |
Values
| (+) Improvement Homesite Value: | + | $284,670 | |
| (+) Improvement Non-Homesite Value: | + | $0 | |
| (+) Land Homesite Value: | + | $110,968 | |
| (+) Land Non-Homesite Value: | + | $0 | |
| (+) Curr Use (HS): | + | $0 | $0 |
| (+) Curr Use (NHS): | + | $0 | $0 |
| | | -------------------------- | |
| (=) Market Value: | = | $395,638 | |
| (–) Productivity Loss: | – | $0 | |
| | | -------------------------- | |
| (=) Subtotal: | = | $395,638 | |
| (+) Senior Appraised Value: | + | $175,795 | |
| (+) Non-Senior Appraised Value: | + | $0 | |
| | | -------------------------- | |
| (=) Total Appraised Value: | = | $175,795 | |
| (–) Senior Exemption Loss: | – | $105,477 | |
| (–) Exemption Loss: | – | $0 | |
| | | -------------------------- | |
| (=) Taxable Value: | = | $70,318 | |
Taxing Jurisdiction
| Owner: | ELLEN M GRUS | | |
| % Ownership: | 100.0000000000% | | |
| Total Value: | N/A | | |
| Tax Area: | 0221 - 1-49F2E2H2L1 |
| CE | COUNTY CURRENT EXPENSE | N/A | N/A | N/A | N/A | | |
| CNTYDD | DEVELOPMENTAL DISABILITIES | N/A | N/A | N/A | N/A | | |
| CNTYVET | VETERANS RELIEF | N/A | N/A | N/A | N/A | | |
| MENTAL | MENTAL HEALTH | N/A | N/A | N/A | N/A | | |
| ROADS | COUNTY ROADS | N/A | N/A | N/A | N/A | | |
| ROADSCU | COUNTY ROADS TO CUR EXP | N/A | N/A | N/A | N/A | | |
| HOSP2CASH | HOSP DIST #2 GENERAL | N/A | N/A | N/A | N/A | | |
| SCH49CP | SCHOOL DIST #49 CAP PROJ | N/A | N/A | N/A | N/A | | |
| SCH49MO | SCHOOL DIST #49 EP & O | N/A | N/A | N/A | N/A | | |
| CONSERVE | CONSERVATION FUTURES | N/A | N/A | N/A | N/A | | |
| FD2 | FIRE DIST #2 GENERAL | N/A | N/A | N/A | N/A | | |
| LIB1 | LIBRARY DIST #1 GENERAL | N/A | N/A | N/A | N/A | | |
| PORTPT | PORT OF PT GENERAL | N/A | N/A | N/A | N/A | | |
| PORTPTIDD | PORT OF PT IDD 2019 | N/A | N/A | N/A | N/A | | |
| PUD1 | PUD #1 GENERAL | N/A | N/A | N/A | N/A | | |
| STATE | STATE SCHOOL PART 1 | N/A | N/A | N/A | N/A | | |
| STATE2 | STATE SCHOOL PART 2 | N/A | N/A | N/A | N/A | | |
| EMS2 | FIRE DIST #2 EMS | N/A | N/A | N/A | N/A | | |
| | Total Tax Rate: | N/A | | | | | |
| | | | | Taxes w/Current Exemptions: | N/A | | |
| | | | | Taxes w/o Exemptions: | N/A | | |
Improvement / Building
| Improvement #1: | Residential Bldg | State Code: | 11 | 1288.0 sqft | Value: | $284,670 |
| Bathrooms (#): | 2 (FULL) | Bathrooms (#): | 1 (HALF) | | Bedrooms (#): | 4 | Exterior Wall: | SI/ST | | Fireplace: | DBL 2-FAIR | Floor Construction: | FRAME | | Foundation: | CONPR | Heating/Cooling: | F/A | | Roof Cover: | COMP |   |   |
|
| | Type | Description | Class CD | Sub Class CD | Year Built | Area |
| | MA | Main Area | 3+ | 1S | 1976 | 1288.0 |
| | HDECK | House Deck | 3 | * | 1991 | 624.0 |
| | SHED | Shed (Table Not Dep) | 4 | * | 1993 | 192.0 |
| | GARAG | Garage (Table Not Dep) | 4 | * | 1995 | 1152.0 |
| | BSMTF | House basement finished | 3 | * | 1976 | 1288.0 |
Sketch
Property Image
Land
| 1 | 4350-1375S | Residential Sites 1+/- Ac SomeTerritorial Views | 1.0000 | 43560.00 | 0.00 | 0.00 | 1.00 | $104,500 | $0 |
| 2 | 1571A | Terr/Mtn/No View <6 Acres | 0.2800 | 12196.80 | 0.00 | 0.00 | 0.00 | $6,468 | $0 |
Roll Value History
| 2025 | N/A | N/A | N/A | N/A | N/A |
| 2024 | $272,293 | $105,924 | $0 | $378,217 | $70,318 |
| 2023 | $259,916 | $92,100 | $0 | $352,016 | $70,318 |
| 2022 | $248,196 | $71,960 | $0 | $320,156 | $114,267 |
| 2021 | $188,027 | $61,445 | $0 | $249,472 | $114,267 |
Deed and Sales History
| 1 | 06/29/2017 | LOP | Lack of Probate | | | | | | 127991 | |
| 2 | 04/24/2007 | SWD | Statutory Warranty Deed | NEAL, HAROLD F/GLORIA | GRUS, ELLEN/HAWES, M SCOTT | | | $309,266.00 | 109108 | 0 |
| 3 | 07/16/2001 | BLA | Boundary Line Adjustment | ORSBORN, BRIAN/EVELYN | NEAL, HAROLD/GLORIA | | | $0.00 | 92691 | 0 |
| 4 | 03/05/2001 | SWD | Statutory Warranty Deed | ORSBORN, BRIAN/EVELYN | NEAL, HAROLD/GLORIA | | | $1,000.00 | 92692 | 0 |
Payout Agreement
| No payout information available.. |