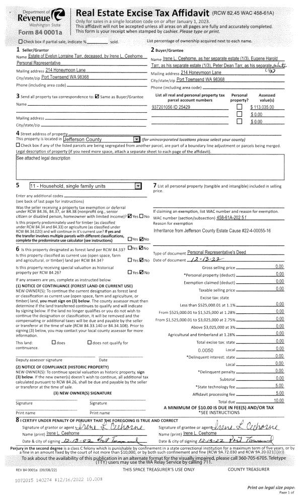
Property
Account |
| Property ID: | 19635 | Abbreviated Legal Description: | S21 T28 R1W S1/2 NW SW(LESS TAX 5 & 22) BND TGTH THRU BLA#104374 |
| Parcel # / Geo ID: | 801213002 | Agent Code: | |
| Type: | Real | | |
| Tax Area: | 0221 - 1-49F2E2H2L1 | Land Use Code | 83 |
| Open Space: | Y | DFL | N |
| Historic Property: | N | Remodel Property: | N |
| Multi-Family Redevelopment: | N | | |
| Township: | 28N | Section: | 21 |
| Range: | 1W |
Location |
| Address: | | Mapsco: | 197/009 |
| Neighborhood: | S16, S17, S20, & S21 T28N R1W | Map ID: | |
| Neighborhood CD: | 4350 |
Owner |
| Name: | THOMAS E JOHNSON REV LIVING TRUST | Owner ID: | 92866 |
| Mailing Address: | THOMAS E JOHNSON TRUSTEE 1561 DABOB RD QUILCENE, WA 98376-9725 | % Ownership: | 100.0000000000% |
| | | Exemptions: | |
Pay Tax Due
There is currently No Amount Due on this property.
Taxes and Assessment Details
Property Tax Information as of
10/24/2025
Click on "Statement Details" to expand or collapse a tax statement.
* Please enter a valid date ** Please enter a valid date *
Statement Details |
| | TOTAL: | $0.00 | $0.00 | $0.00 | $0.00 | $0.00 | $0.00 |
|
| | $0.00 | $0.00 | $0.00 | $0.00 | $0.00 | $0.00 |
Values
| (+) Improvement Homesite Value: | + | $0 | |
| (+) Improvement Non-Homesite Value: | + | $4,479 | |
| (+) Land Homesite Value: | + | $0 | |
| (+) Land Non-Homesite Value: | + | $81,758 | |
| (+) Curr Use (HS): | + | $0 | $0 |
| (+) Curr Use (NHS): | + | $37,200 | $2,255 |
| | | -------------------------- | |
| (=) Market Value: | = | $123,437 | |
| (–) Productivity Loss: | – | $34,945 | |
| | | -------------------------- | |
| (=) Subtotal: | = | $88,492 | |
| (+) Senior Appraised Value: | + | $0 | |
| (+) Non-Senior Appraised Value: | + | $88,492 | |
| | | -------------------------- | |
| (=) Total Appraised Value: | = | $88,492 | |
| (–) Senior Exemption Loss: | – | $0 | |
| (–) Exemption Loss: | – | $0 | |
| | | -------------------------- | |
| (=) Taxable Value: | = | $88,492 | |
Taxing Jurisdiction
| Owner: | THOMAS E JOHNSON REV LIVING TRUST | | |
| % Ownership: | 100.0000000000% | | |
| Total Value: | N/A | | |
| Tax Area: | 0221 - 1-49F2E2H2L1 |
| CE | COUNTY CURRENT EXPENSE | N/A | N/A | N/A | N/A | | |
| CNTYDD | DEVELOPMENTAL DISABILITIES | N/A | N/A | N/A | N/A | | |
| CNTYVET | VETERANS RELIEF | N/A | N/A | N/A | N/A | | |
| MENTAL | MENTAL HEALTH | N/A | N/A | N/A | N/A | | |
| ROADS | COUNTY ROADS | N/A | N/A | N/A | N/A | | |
| ROADSCU | COUNTY ROADS TO CUR EXP | N/A | N/A | N/A | N/A | | |
| HOSP2CASH | HOSP DIST #2 GENERAL | N/A | N/A | N/A | N/A | | |
| SCH49CP | SCHOOL DIST #49 CAP PROJ | N/A | N/A | N/A | N/A | | |
| SCH49MO | SCHOOL DIST #49 EP & O | N/A | N/A | N/A | N/A | | |
| CONSERVE | CONSERVATION FUTURES | N/A | N/A | N/A | N/A | | |
| FD2 | FIRE DIST #2 GENERAL | N/A | N/A | N/A | N/A | | |
| LIB1 | LIBRARY DIST #1 GENERAL | N/A | N/A | N/A | N/A | | |
| PORTPT | PORT OF PT GENERAL | N/A | N/A | N/A | N/A | | |
| PORTPTIDD | PORT OF PT IDD 2019 | N/A | N/A | N/A | N/A | | |
| PUD1 | PUD #1 GENERAL | N/A | N/A | N/A | N/A | | |
| STATE | STATE SCHOOL PART 1 | N/A | N/A | N/A | N/A | | |
| STATE2 | STATE SCHOOL PART 2 | N/A | N/A | N/A | N/A | | |
| EMS2 | FIRE DIST #2 EMS | N/A | N/A | N/A | N/A | | |
| | Total Tax Rate: | N/A | | | | | |
| | | | | Taxes w/Current Exemptions: | N/A | | |
| | | | | Taxes w/o Exemptions: | N/A | | |
Improvement / Building
| Improvement #1: | Residential Bldg | State Code: | 11M | 0.0 sqft | Value: | $4,479 |
Sketch
| No sketches available for this property. |
Property Image
Land
| 1 | 4350-1375S | Residential Sites 1+/- Ac SomeTerritorial Views | 1.0000 | 43560.00 | 0.00 | 0.00 | 1.00 | $53,625 | $0 |
| 2 | 1677A | Terr/Mtn/No View 6-15 Acres | 10.0200 | 436471.20 | 0.00 | 0.00 | 0.00 | $37,200 | $2,255 |
| 3 | 1577A | Terr/Mtn/No View <6 Acres | 3.3000 | 143748.00 | 0.00 | 0.00 | 0.00 | $28,133 | $0 |
Roll Value History
| 2025 | N/A | N/A | N/A | N/A | N/A |
| 2024 | $4,285 | $113,551 | $2,255 | $84,582 | $84,582 |
| 2023 | $4,090 | $106,065 | $2,255 | $79,845 | $79,845 |
| 2022 | $3,895 | $78,160 | $2,255 | $54,250 | $54,250 |
| 2021 | $3,246 | $72,709 | $2,255 | $49,402 | $49,402 |
Deed and Sales History
| 1 | 06/29/2015 | DTH CERT | Death Certificate | GEORGENA F JOHNSON | | | | | 0 | |
| 2 | 11/13/2014 | QCD | Quit Claim Deed | GEORGENA F JOHNSON | THOMAS E JOHNSON REV LIVING TRUST | | | | 122294 | |
| 3 | 08/02/2005 | BLA | Boundary Line Adjustment | | | | | | 121319 | |
| 4 | 08/18/2004 | QCD | Quit Claim Deed | JOHNSON, GEORGENA & THOMA | JOHNSON, DIANE E | 0 | 0 | $0.00 | 104420 | 0 |
Payout Agreement
| No payout information available.. |