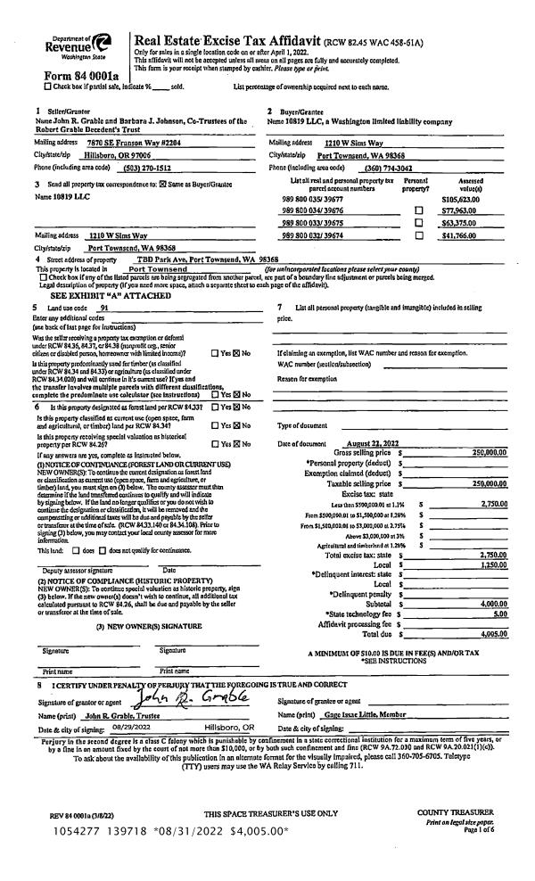
Property
Account |
| Property ID: | 19746 | Abbreviated Legal Description: | S32 T28 R1W TAX 34 |
| Parcel # / Geo ID: | 801322013 | Agent Code: | |
| Type: | Real | | |
| Tax Area: | 0221 - 1-49F2E2H2L1 | Land Use Code | 11 |
| Open Space: | N | DFL | N |
| Historic Property: | N | Remodel Property: | N |
| Multi-Family Redevelopment: | N | | |
| Township: | 28N | Section: | 32 |
| Range: | 1W |
Location |
| Address: | 435 ZION VIEW LN QUILCENE, WA 98376 | Mapsco: | 199/056 |
| Neighborhood: | S32, 33, 34 & 35 T28N R1W | Map ID: | |
| Neighborhood CD: | 4370 |
Owner |
| Name: | ERIC P POTTS | Owner ID: | 25109 |
| Mailing Address: | ANNA REYES POTTS 435 ZION VIEW LN QUILCENE, WA 98376-9743 | % Ownership: | 100.0000000000% |
| | | Exemptions: | |
Pay Tax Due
There is currently No Amount Due on this property.
Taxes and Assessment Details
Property Tax Information as of
10/24/2025
Click on "Statement Details" to expand or collapse a tax statement.
* Please enter a valid date ** Please enter a valid date *
Statement Details |
| | TOTAL: | $0.00 | $0.00 | $0.00 | $0.00 | $0.00 | $0.00 |
|
| | $0.00 | $0.00 | $0.00 | $0.00 | $0.00 | $0.00 |
Values
| (+) Improvement Homesite Value: | + | $0 | |
| (+) Improvement Non-Homesite Value: | + | $424,495 | |
| (+) Land Homesite Value: | + | $0 | |
| (+) Land Non-Homesite Value: | + | $158,169 | |
| (+) Curr Use (HS): | + | $0 | $0 |
| (+) Curr Use (NHS): | + | $0 | $0 |
| | | -------------------------- | |
| (=) Market Value: | = | $582,664 | |
| (–) Productivity Loss: | – | $0 | |
| | | -------------------------- | |
| (=) Subtotal: | = | $582,664 | |
| (+) Senior Appraised Value: | + | $0 | |
| (+) Non-Senior Appraised Value: | + | $582,664 | |
| | | -------------------------- | |
| (=) Total Appraised Value: | = | $582,664 | |
| (–) Senior Exemption Loss: | – | $0 | |
| (–) Exemption Loss: | – | $0 | |
| | | -------------------------- | |
| (=) Taxable Value: | = | $582,664 | |
Taxing Jurisdiction
| Owner: | ERIC P POTTS | | |
| % Ownership: | 100.0000000000% | | |
| Total Value: | N/A | | |
| Tax Area: | 0221 - 1-49F2E2H2L1 |
| CE | COUNTY CURRENT EXPENSE | N/A | N/A | N/A | N/A | | |
| CNTYDD | DEVELOPMENTAL DISABILITIES | N/A | N/A | N/A | N/A | | |
| CNTYVET | VETERANS RELIEF | N/A | N/A | N/A | N/A | | |
| MENTAL | MENTAL HEALTH | N/A | N/A | N/A | N/A | | |
| ROADS | COUNTY ROADS | N/A | N/A | N/A | N/A | | |
| ROADSCU | COUNTY ROADS TO CUR EXP | N/A | N/A | N/A | N/A | | |
| HOSP2CASH | HOSP DIST #2 GENERAL | N/A | N/A | N/A | N/A | | |
| SCH49CP | SCHOOL DIST #49 CAP PROJ | N/A | N/A | N/A | N/A | | |
| SCH49MO | SCHOOL DIST #49 EP & O | N/A | N/A | N/A | N/A | | |
| CONSERVE | CONSERVATION FUTURES | N/A | N/A | N/A | N/A | | |
| FD2 | FIRE DIST #2 GENERAL | N/A | N/A | N/A | N/A | | |
| LIB1 | LIBRARY DIST #1 GENERAL | N/A | N/A | N/A | N/A | | |
| PORTPT | PORT OF PT GENERAL | N/A | N/A | N/A | N/A | | |
| PORTPTIDD | PORT OF PT IDD 2019 | N/A | N/A | N/A | N/A | | |
| PUD1 | PUD #1 GENERAL | N/A | N/A | N/A | N/A | | |
| STATE | STATE SCHOOL PART 1 | N/A | N/A | N/A | N/A | | |
| STATE2 | STATE SCHOOL PART 2 | N/A | N/A | N/A | N/A | | |
| EMS2 | FIRE DIST #2 EMS | N/A | N/A | N/A | N/A | | |
| | Total Tax Rate: | N/A | | | | | |
| | | | | Taxes w/Current Exemptions: | N/A | | |
| | | | | Taxes w/o Exemptions: | N/A | | |
Improvement / Building
| Improvement #1: | Residential Bldg | State Code: | 11 | 1600.0 sqft | Value: | $424,495 |
| Bathrooms (#): | 2 (FULL) | Bedrooms (#): | 3 | | Exterior Wall: | SI/ST | Floor Construction: | FRAME | | Foundation: | CONPR | Heating/Cooling: | ELBB | | Roof Cover: | COMP |   |   |
|
| | Type | Description | Class CD | Sub Class CD | Year Built | Area |
| | MA | Main Area | 3+ | 15SF | 1994 | 1000.0 |
| | MA2 | Second Floor Main Area | 3 | 15SF | 1994 | 600.0 |
| | HWPOR | House Wood Porch | 3 | * | 1994 | 24.0 |
| | GBLTIN | Builtin Garage | 3 | 15SF | 1994 | 360.0 |
| | SHED | Shed (Table Not Dep) | 3 | * | 1994 | 100.0 |
| | CARPTF | Carport W/Floor | 4 | * | 2016 | 720.0 |
| | GDET | Detached Garage | 4 | * | 2016 | 2400.0 |
Sketch
Property Image
Land
| 1 | 4370-1375S | Residential Sites 1+/- Ac SomeTerritorial Views | 1.0000 | 43560.00 | 0.00 | 0.00 | 1.00 | $125,950 | $0 |
| 2 | 1578A | Terr/Mtn/No View <6 Acres | 4.0400 | 175982.40 | 0.00 | 0.00 | 0.00 | $32,219 | $0 |
Roll Value History
| 2025 | N/A | N/A | N/A | N/A | N/A |
| 2024 | $406,039 | $150,980 | $0 | $557,019 | $557,019 |
| 2023 | $387,582 | $137,780 | $0 | $525,362 | $525,362 |
| 2022 | $336,246 | $96,260 | $0 | $432,506 | $432,506 |
| 2021 | $280,205 | $92,463 | $0 | $372,668 | $372,668 |
Deed and Sales History
| 1 | 04/25/2001 | QCD | Quit Claim Deed | POTTS, ERIC PATRICK | POTTS, ERIC, REYES-POTTS, ANNA | 0 | 0 | $0.00 | 92087 | 0 |
| 2 | 04/18/1996 | SWD | Statutory Warranty Deed | DAVIS, RICHARD L | POTTS, ERIC PATRICK | 0 | 0 | $138,000.00 | 79273 | 0 |
Payout Agreement
| No payout information available.. |