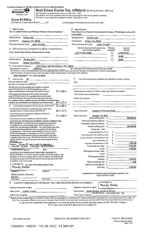
Property
Account |
| Property ID: | 19764 | Abbreviated Legal Description: | S32 T28 R1W TAX 7 |
| Parcel # / Geo ID: | 801324008 | Agent Code: | |
| Type: | Real | | |
| Tax Area: | 0221 - 1-49F2E2H2L1 | Land Use Code | 11 |
| Open Space: | N | DFL | N |
| Historic Property: | N | Remodel Property: | N |
| Multi-Family Redevelopment: | N | | |
| Township: | 28N | Section: | 32 |
| Range: | 1W |
Location |
| Address: | 10697 CENTER RD QUILCENE, WA 98376 | Mapsco: | 199/028 |
| Neighborhood: | S32, 33, 34 & 35 T28N R1W | Map ID: | |
| Neighborhood CD: | 4370 |
Owner |
| Name: | JARED M & MEGHAN L THACKER | Owner ID: | 28757 |
| Mailing Address: | 10697 CENTER RD QUILCENE, WA 98376-9715 | % Ownership: | 100.0000000000% |
| | | Exemptions: | |
Pay Tax Due
There is currently No Amount Due on this property.
Taxes and Assessment Details
Property Tax Information as of
10/24/2025
Click on "Statement Details" to expand or collapse a tax statement.
* Please enter a valid date ** Please enter a valid date *
Statement Details |
| | TOTAL: | $0.00 | $0.00 | $0.00 | $0.00 | $0.00 | $0.00 |
|
| | $0.00 | $0.00 | $0.00 | $0.00 | $0.00 | $0.00 |
Values
| (+) Improvement Homesite Value: | + | $0 | |
| (+) Improvement Non-Homesite Value: | + | $453,770 | |
| (+) Land Homesite Value: | + | $0 | |
| (+) Land Non-Homesite Value: | + | $157,128 | |
| (+) Curr Use (HS): | + | $0 | $0 |
| (+) Curr Use (NHS): | + | $0 | $0 |
| | | -------------------------- | |
| (=) Market Value: | = | $610,898 | |
| (–) Productivity Loss: | – | $0 | |
| | | -------------------------- | |
| (=) Subtotal: | = | $610,898 | |
| (+) Senior Appraised Value: | + | $0 | |
| (+) Non-Senior Appraised Value: | + | $610,898 | |
| | | -------------------------- | |
| (=) Total Appraised Value: | = | $610,898 | |
| (–) Senior Exemption Loss: | – | $0 | |
| (–) Exemption Loss: | – | $0 | |
| | | -------------------------- | |
| (=) Taxable Value: | = | $610,898 | |
Taxing Jurisdiction
| Owner: | JARED M & MEGHAN L THACKER | | |
| % Ownership: | 100.0000000000% | | |
| Total Value: | N/A | | |
| Tax Area: | 0221 - 1-49F2E2H2L1 |
| CE | COUNTY CURRENT EXPENSE | N/A | N/A | N/A | N/A | | |
| CNTYDD | DEVELOPMENTAL DISABILITIES | N/A | N/A | N/A | N/A | | |
| CNTYVET | VETERANS RELIEF | N/A | N/A | N/A | N/A | | |
| MENTAL | MENTAL HEALTH | N/A | N/A | N/A | N/A | | |
| ROADS | COUNTY ROADS | N/A | N/A | N/A | N/A | | |
| ROADSCU | COUNTY ROADS TO CUR EXP | N/A | N/A | N/A | N/A | | |
| HOSP2CASH | HOSP DIST #2 GENERAL | N/A | N/A | N/A | N/A | | |
| SCH49CP | SCHOOL DIST #49 CAP PROJ | N/A | N/A | N/A | N/A | | |
| SCH49MO | SCHOOL DIST #49 EP & O | N/A | N/A | N/A | N/A | | |
| CONSERVE | CONSERVATION FUTURES | N/A | N/A | N/A | N/A | | |
| FD2 | FIRE DIST #2 GENERAL | N/A | N/A | N/A | N/A | | |
| LIB1 | LIBRARY DIST #1 GENERAL | N/A | N/A | N/A | N/A | | |
| PORTPT | PORT OF PT GENERAL | N/A | N/A | N/A | N/A | | |
| PORTPTIDD | PORT OF PT IDD 2019 | N/A | N/A | N/A | N/A | | |
| PUD1 | PUD #1 GENERAL | N/A | N/A | N/A | N/A | | |
| STATE | STATE SCHOOL PART 1 | N/A | N/A | N/A | N/A | | |
| STATE2 | STATE SCHOOL PART 2 | N/A | N/A | N/A | N/A | | |
| EMS2 | FIRE DIST #2 EMS | N/A | N/A | N/A | N/A | | |
| | Total Tax Rate: | N/A | | | | | |
| | | | | Taxes w/Current Exemptions: | N/A | | |
| | | | | Taxes w/o Exemptions: | N/A | | |
Improvement / Building
| Improvement #1: | Residential Bldg | State Code: | 11 | 1160.0 sqft | Value: | $324,473 |
| Bathrooms (#): | 1 (FULL) | Bedrooms (#): | 1 | | Exterior Wall: | SI/ST | Fireplace: | WD ST-GOOD | | Floor Construction: | CONCR | Foundation: | CONPR | | Heating/Cooling: | HPUMP | Roof Cover: | COMP |
|
| | Type | Description | Class CD | Sub Class CD | Year Built | Area |
| | MA | Main Area | 4- | 2S | 2020 | 520.0 |
| | MA2 | Second Floor Main Area | 4 | 2S | 2020 | 640.0 |
| | GATT | House Attached Garage | 4 | 2S | 2020 | 1880.0 |
| | HCPOR | House Concrete Porch | 4 | 2S | 2020 | 78.0 |
| Improvement #2: | Residential Bldg | State Code: | 11 | 1979.0 sqft | Value: | $129,297 |
| Bathrooms (#): | 2 (FULL) | Bedrooms (#): | 2 | | Exterior Wall: | SI/ST | Foundation: | CONPR | | Heating/Cooling: | OTHER | Roof Cover: | COMP |
|
| | Type | Description | Class CD | Sub Class CD | Year Built | Area |
| | MA | Main Area | 4 | 1S | 2024 | 1979.0 |
| | GATT | House Attached Garage | 4 | 1S | 2024 | 625.0 |
Sketch
Property Image
Land
| 1 | 4370-1375S | Residential Sites 1+/- Ac SomeTerritorial Views | 1.0000 | 43560.00 | 0.00 | 0.00 | 1.00 | $104,500 | $0 |
| 2 | 1677A | Terr/Mtn/No View 6-15 Acres | 8.8600 | 385941.60 | 0.00 | 0.00 | 0.00 | $52,628 | $0 |
Roll Value History
| 2025 | N/A | N/A | N/A | N/A | N/A |
| 2024 | $434,040 | $149,986 | $0 | $584,026 | $584,026 |
| 2023 | $296,258 | $136,072 | $0 | $432,330 | $432,330 |
| 2022 | $307,222 | $112,528 | $0 | $419,750 | $419,750 |
| 2021 | $262,750 | $108,988 | $0 | $371,738 | $371,738 |
Deed and Sales History
| 1 | 12/01/2016 | SWD | Statutory Warranty Deed | CEDARLAND FOREST RESOURCES LLC | JARED M & MEGHAN L THACKER | | | $49,000.00 | 126747 | |
| 2 | 06/21/2016 | SWD | Statutory Warranty Deed | FUKUE HILL | CEDARLAND FOREST RESOURCES LLC | | | $90,000.00 | 125684 | |
| 3 | 06/06/1994 | WD | Warranty Deed | HILL, LEWIS GERALD/EST | HILL, FUKUE | 0 | 0 | $0.00 | 74460 | 0 |
Payout Agreement
| No payout information available.. |