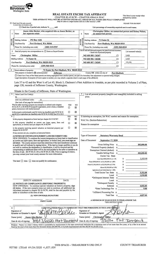
Property
Account |
| Property ID: | 19767 | Abbreviated Legal Description: | S32 T28 R1W TAX 17 |
| Parcel # / Geo ID: | 801324011 | Agent Code: | |
| Type: | Real | | |
| Tax Area: | 0221 - 1-49F2E2H2L1 | Land Use Code | 11 |
| Open Space: | N | DFL | N |
| Historic Property: | N | Remodel Property: | N |
| Multi-Family Redevelopment: | N | | |
| Township: | 28N | Section: | 32 |
| Range: | 1W |
Location |
| Address: | 741 TAISON LN QUILCENE, WA 98376 | Mapsco: | 199/038 |
| Neighborhood: | S32, 33, 34 & 35 T28N R1W | Map ID: | |
| Neighborhood CD: | 4370 |
Owner |
| Name: | ROWEN DELUNA | Owner ID: | 111034 |
| Mailing Address: | 741 TAISON LN QUILCENE, WA 98376-9533 | % Ownership: | 100.0000000000% |
| | | Exemptions: | |
Pay Tax Due
There is currently No Amount Due on this property.
Taxes and Assessment Details
Property Tax Information as of
10/24/2025
Click on "Statement Details" to expand or collapse a tax statement.
* Please enter a valid date ** Please enter a valid date *
Statement Details |
| | TOTAL: | $0.00 | $0.00 | $0.00 | $0.00 | $0.00 | $0.00 |
|
| | $0.00 | $0.00 | $0.00 | $0.00 | $0.00 | $0.00 |
Values
| (+) Improvement Homesite Value: | + | $0 | |
| (+) Improvement Non-Homesite Value: | + | $29,021 | |
| (+) Land Homesite Value: | + | $0 | |
| (+) Land Non-Homesite Value: | + | $137,843 | |
| (+) Curr Use (HS): | + | $0 | $0 |
| (+) Curr Use (NHS): | + | $0 | $0 |
| | | -------------------------- | |
| (=) Market Value: | = | $166,864 | |
| (–) Productivity Loss: | – | $0 | |
| | | -------------------------- | |
| (=) Subtotal: | = | $166,864 | |
| (+) Senior Appraised Value: | + | $0 | |
| (+) Non-Senior Appraised Value: | + | $166,864 | |
| | | -------------------------- | |
| (=) Total Appraised Value: | = | $166,864 | |
| (–) Senior Exemption Loss: | – | $0 | |
| (–) Exemption Loss: | – | $0 | |
| | | -------------------------- | |
| (=) Taxable Value: | = | $166,864 | |
Taxing Jurisdiction
| Owner: | ROWEN DELUNA | | |
| % Ownership: | 100.0000000000% | | |
| Total Value: | N/A | | |
| Tax Area: | 0221 - 1-49F2E2H2L1 |
| CE | COUNTY CURRENT EXPENSE | N/A | N/A | N/A | N/A | | |
| CNTYDD | DEVELOPMENTAL DISABILITIES | N/A | N/A | N/A | N/A | | |
| CNTYVET | VETERANS RELIEF | N/A | N/A | N/A | N/A | | |
| MENTAL | MENTAL HEALTH | N/A | N/A | N/A | N/A | | |
| ROADS | COUNTY ROADS | N/A | N/A | N/A | N/A | | |
| ROADSCU | COUNTY ROADS TO CUR EXP | N/A | N/A | N/A | N/A | | |
| HOSP2CASH | HOSP DIST #2 GENERAL | N/A | N/A | N/A | N/A | | |
| SCH49CP | SCHOOL DIST #49 CAP PROJ | N/A | N/A | N/A | N/A | | |
| SCH49MO | SCHOOL DIST #49 EP & O | N/A | N/A | N/A | N/A | | |
| CONSERVE | CONSERVATION FUTURES | N/A | N/A | N/A | N/A | | |
| FD2 | FIRE DIST #2 GENERAL | N/A | N/A | N/A | N/A | | |
| LIB1 | LIBRARY DIST #1 GENERAL | N/A | N/A | N/A | N/A | | |
| PORTPT | PORT OF PT GENERAL | N/A | N/A | N/A | N/A | | |
| PORTPTIDD | PORT OF PT IDD 2019 | N/A | N/A | N/A | N/A | | |
| PUD1 | PUD #1 GENERAL | N/A | N/A | N/A | N/A | | |
| STATE | STATE SCHOOL PART 1 | N/A | N/A | N/A | N/A | | |
| STATE2 | STATE SCHOOL PART 2 | N/A | N/A | N/A | N/A | | |
| EMS2 | FIRE DIST #2 EMS | N/A | N/A | N/A | N/A | | |
| | Total Tax Rate: | N/A | | | | | |
| | | | | Taxes w/Current Exemptions: | N/A | | |
| | | | | Taxes w/o Exemptions: | N/A | | |
Improvement / Building
| Improvement #1: | Residential Bldg | State Code: | 11 | 792.0 sqft | Value: | $29,021 |
| Bathrooms (#): | 1 (FULL) | Bedrooms (#): | 2 | | Exterior Wall: | PL/T1 | Fireplace: | WD ST-FAIR | | Floor Construction: | FRAME | Foundation: | PO&BL | | Heating/Cooling: | WD/NO | Inside Verify: | YES-FIX | | Interior Finish: | FIN | Roof Cover: | ROLL |
|
| | Type | Description | Class CD | Sub Class CD | Year Built | Area |
| | MA | Main Area | 2+ | C1S | 1980 | 792.0 |
| | CLOFT | Cabin Loft | 2 | * | 1980 | 256.0 |
| | CARPTN | Carport W/O Floor | 2 | * | 1980 | 180.0 |
| | BARN | Barn (Table Not Dep) | 1 | * | 1980 | 768.0 |
Sketch
Property Image
Land
| 1 | 1573A | Terr/Mtn/No View <6 Acres | 3.8400 | 167270.40 | 0.00 | 0.00 | 0.00 | $49,843 | $0 |
| 2 | 4370-1375S | Residential Sites 1+/- Ac SomeTerritorial Views | 1.0000 | 43560.00 | 0.00 | 0.00 | 1.00 | $88,000 | $0 |
Roll Value History
| 2025 | N/A | N/A | N/A | N/A | N/A |
| 2024 | $27,760 | $131,578 | $0 | $159,338 | $159,338 |
| 2023 | $26,498 | $121,008 | $0 | $147,506 | $147,506 |
| 2022 | $31,453 | $71,864 | $0 | $103,317 | $103,317 |
| 2021 | $26,211 | $57,349 | $0 | $83,560 | $83,560 |
Deed and Sales History
| 1 | 06/26/2024 | QCD | Quit Claim Deed | ETHAN WALAT | ROWEN DELUNA | | | | 142795 | |
| 2 | 09/10/2021 | QCD | Quit Claim Deed | ETHAN WALAT | ETHAN WALAT | | | | 137575 | |
| 3 | 05/05/2021 | SWD | Statutory Warranty Deed | DANIEL E RADON | ETHAN WALAT | | | $110,000.00 | 136671 | |
| 4 | 08/31/2020 | QCD | Quit Claim Deed | | | ` | | | 135006 | |
| 5 | 08/23/2011 | QCD | Quit Claim Deed | BELL, VINCENT M | RADON, DAN/NANCY | 0 | 0 | $34,799.00 | 116418 | 0 |
| 6 | 08/07/1996 | QCD | Quit Claim Deed | SHAHDA, MICHAEL J | BELL, VINCENT | 0 | 0 | $0.00 | 80261 | 0 |
| 7 | 04/02/1996 | QCD | Quit Claim Deed | BELL, VINCENT | SHAHDA, MICHAEL J | 0 | 0 | $0.00 | 79159 | 0 |
| 8 | 12/15/1995 | QCD | Quit Claim Deed | WENZEL, MARK S | BELL, VINCENT | 0 | 0 | $39,020.00 | 78443 | 0 |
Payout Agreement
| No payout information available.. |