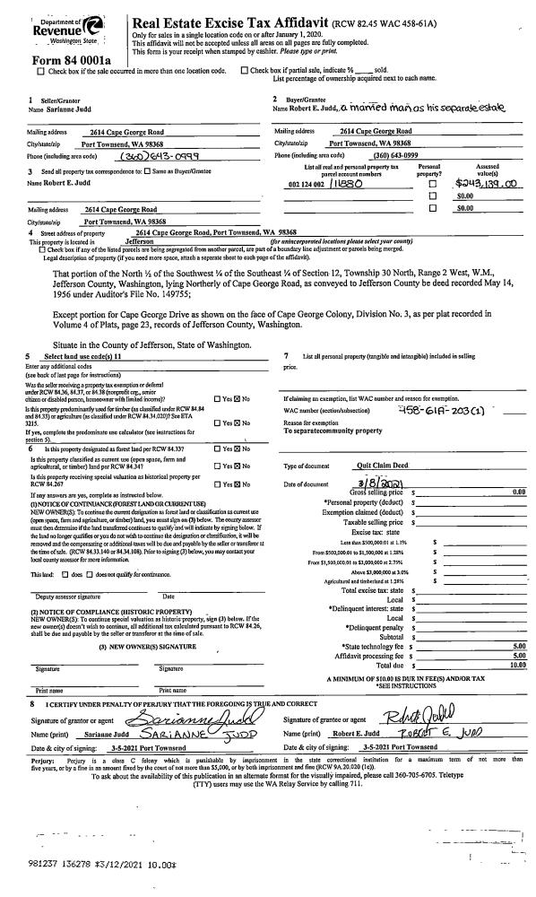
Property
Account |
| Property ID: | 19841 | Abbreviated Legal Description: | S11 T28 R2W TAX 1(ENLGD) LESS R OF W |
| Parcel # / Geo ID: | 802111003 | Agent Code: | |
| Type: | Real | | |
| Tax Area: | 0321 - 1-48F2E2H2C2L1 | Land Use Code | 11 |
| Open Space: | N | DFL | N |
| Historic Property: | N | Remodel Property: | N |
| Multi-Family Redevelopment: | N | | |
| Township: | 28N | Section: | 11 |
| Range: | 2W |
Location |
| Address: | 286254 HIGHWAY 101 QUILCENE, WA 98376 | Mapsco: | 167/045 |
| Neighborhood: | S1 & 2, S11 & 12 T28N R2W & CROCKER LAKE (PLAT) | Map ID: | |
| Neighborhood CD: | 2610 |
Owner |
| Name: | ELI J KNAPP | Owner ID: | 106607 |
| Mailing Address: | 286254 US HIGHWAY 101 QUILCENE, WA 98376-9572 | % Ownership: | 100.0000000000% |
| | | Exemptions: | |
Pay Tax Due
There is currently No Amount Due on this property.
Taxes and Assessment Details
Property Tax Information as of
10/24/2025
Click on "Statement Details" to expand or collapse a tax statement.
* Please enter a valid date ** Please enter a valid date *
Statement Details |
| | TOTAL: | $0.00 | $0.00 | $0.00 | $0.00 | $0.00 | $0.00 |
|
| | $0.00 | $0.00 | $0.00 | $0.00 | $0.00 | $0.00 |
Values
| (+) Improvement Homesite Value: | + | $393,510 | |
| (+) Improvement Non-Homesite Value: | + | $0 | |
| (+) Land Homesite Value: | + | $126,500 | |
| (+) Land Non-Homesite Value: | + | $0 | |
| (+) Curr Use (HS): | + | $0 | $0 |
| (+) Curr Use (NHS): | + | $0 | $0 |
| | | -------------------------- | |
| (=) Market Value: | = | $520,010 | |
| (–) Productivity Loss: | – | $0 | |
| | | -------------------------- | |
| (=) Subtotal: | = | $520,010 | |
| (+) Senior Appraised Value: | + | $0 | |
| (+) Non-Senior Appraised Value: | + | $520,010 | |
| | | -------------------------- | |
| (=) Total Appraised Value: | = | $520,010 | |
| (–) Senior Exemption Loss: | – | $0 | |
| (–) Exemption Loss: | – | $0 | |
| | | -------------------------- | |
| (=) Taxable Value: | = | $520,010 | |
Taxing Jurisdiction
| Owner: | ELI J KNAPP | | |
| % Ownership: | 100.0000000000% | | |
| Total Value: | N/A | | |
| Tax Area: | 0321 - 1-48F2E2H2C2L1 |
| CE | COUNTY CURRENT EXPENSE | N/A | N/A | N/A | N/A | | |
| CNTYDD | DEVELOPMENTAL DISABILITIES | N/A | N/A | N/A | N/A | | |
| CNTYVET | VETERANS RELIEF | N/A | N/A | N/A | N/A | | |
| MENTAL | MENTAL HEALTH | N/A | N/A | N/A | N/A | | |
| ROADS | COUNTY ROADS | N/A | N/A | N/A | N/A | | |
| ROADSCU | COUNTY ROADS TO CUR EXP | N/A | N/A | N/A | N/A | | |
| HOSP2CASH | HOSP DIST #2 GENERAL | N/A | N/A | N/A | N/A | | |
| SCH48MO | SCHOOL DIST #48 EP & O | N/A | N/A | N/A | N/A | | |
| CEM2 | CEMETERY DIST #2 GENERAL | N/A | N/A | N/A | N/A | | |
| CONSERVE | CONSERVATION FUTURES | N/A | N/A | N/A | N/A | | |
| FD2 | FIRE DIST #2 GENERAL | N/A | N/A | N/A | N/A | | |
| LIB1 | LIBRARY DIST #1 GENERAL | N/A | N/A | N/A | N/A | | |
| PORTPT | PORT OF PT GENERAL | N/A | N/A | N/A | N/A | | |
| PORTPTIDD | PORT OF PT IDD 2019 | N/A | N/A | N/A | N/A | | |
| PUD1 | PUD #1 GENERAL | N/A | N/A | N/A | N/A | | |
| STATE | STATE SCHOOL PART 1 | N/A | N/A | N/A | N/A | | |
| STATE2 | STATE SCHOOL PART 2 | N/A | N/A | N/A | N/A | | |
| EMS2 | FIRE DIST #2 EMS | N/A | N/A | N/A | N/A | | |
| | Total Tax Rate: | N/A | | | | | |
| | | | | Taxes w/Current Exemptions: | N/A | | |
| | | | | Taxes w/o Exemptions: | N/A | | |
Improvement / Building
| Improvement #1: | Residential Bldg | State Code: | 11 | 1324.0 sqft | Value: | $393,510 |
| Bathrooms (#): | 1 (FULL) | Bedrooms (#): | 3 | | Exterior Wall: | SI/ST | Floor Construction: | FRAME | | Foundation: | CONPR | Heating/Cooling: | ELBB | | Roof Cover: | COMP |   |   |
|
| | Type | Description | Class CD | Sub Class CD | Year Built | Area |
| | MA | Main Area | 4 | 1S | 0 | 1324.0 |
| | GATT | House Attached Garage | 4 | 1S | 0 | 294.0 |
| | HLOFT | House Loft | 4 | * | 0 | 304.0 |
| | HENCL | House Enclosure | 4 | 1S | 0 | 42.0 |
| | PATIO | House Patio | 2 | * | 0 | 105.0 |
| | HDECK | House Deck | 4 | 1S | 0 | 238.0 |
| | HDECK | House Deck | 4 | 1S | 0 | 120.0 |
| | SHED | Shed (Table Not Dep) | 4 | * | 0 | 160.0 |
Sketch
Property Image
Land
| 1 | 2610-1372S | V Good Terr View Sites 1+ Acre | 0.0000 | 0.00 | 0.00 | 0.00 | 1.00 | $126,500 | $0 |
Roll Value History
| 2025 | N/A | N/A | N/A | N/A | N/A |
| 2024 | $377,114 | $121,000 | $0 | $498,114 | $498,114 |
| 2023 | $360,718 | $110,250 | $0 | $470,968 | $470,968 |
| 2022 | $327,925 | $100,000 | $0 | $427,925 | $427,925 |
| 2021 | $150,673 | $90,000 | $0 | $240,673 | $240,673 |
Deed and Sales History
| 1 | 03/15/2022 | SWD | Statutory Warranty Deed | BARRY & BERNICE BUEHLER FAMILY TRUST | ELI J KNAPP | | | $508,500.00 | 138717 | |
| 2 | 11/15/2019 | TRED | Trustee Deed | BARBARA MOEGLING | BARRY & BERNICE BUEHLER FAMILY TRUST | | | $130,000.00 | 133517 | |
| 3 | 07/05/2000 | QCD | Quit Claim Deed | MOEGLING, DARYL | MOEGLING, BARBARA | 0 | 0 | $0.00 | 90007 | 0 |
Payout Agreement
| No payout information available.. |