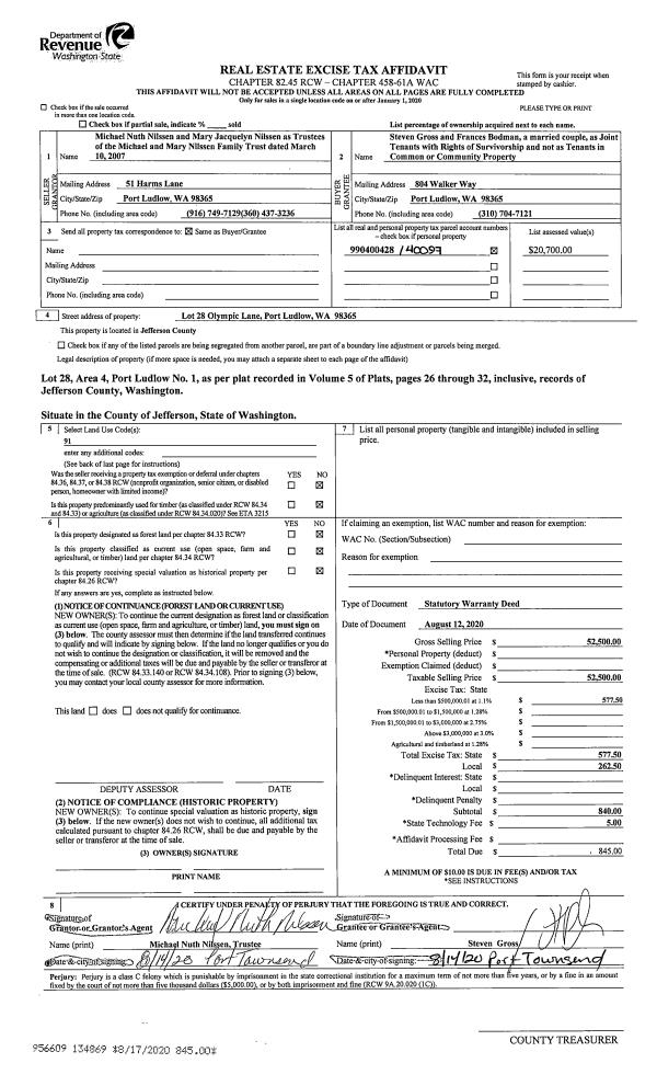
Property
Account |
| Property ID: | 20020 | Abbreviated Legal Description: | S25 T28N R2W TAX 32 BND TGTH THRU SDR2025-00023 TGTH W/SUBJ EASE |
| Parcel # / Geo ID: | 802252011 | Agent Code: | |
| Type: | Real | | |
| Tax Area: | 0324 - 1-48F2E2H2C2L1Z3 | Land Use Code | 19 |
| Open Space: | N | DFL | N |
| Historic Property: | N | Remodel Property: | N |
| Multi-Family Redevelopment: | N | | |
| Township: | 28N | Section: | 25 |
| Range: | 2W |
Location |
| Address: | 723 LELAND VALLEY RD W QUILCENE, WA 98376 | Mapsco: | 171/025 |
| Neighborhood: | S23, 24, 25 & 26 T28N R2W & GARRISON & TAYLOR-JOHNSON SP | Map ID: | |
| Neighborhood CD: | 2630 |
Owner |
| Name: | LAKE LELAND LLC | Owner ID: | 20326 |
| Mailing Address: | C/O TED HUNTER 3333 WALLINGFORD AVE N APT 407 SEATTLE, WA 98103 | % Ownership: | 100.0000000000% |
| | | Exemptions: | |
Pay Tax Due
There is currently No Amount Due on this property.
Taxes and Assessment Details
Property Tax Information as of
10/24/2025
Click on "Statement Details" to expand or collapse a tax statement.
* Please enter a valid date ** Please enter a valid date *
Statement Details |
| | TOTAL: | $0.00 | $0.00 | $0.00 | $0.00 | $0.00 | $0.00 |
|
| | $0.00 | $0.00 | $0.00 | $0.00 | $0.00 | $0.00 |
Values
| (+) Improvement Homesite Value: | + | $0 | |
| (+) Improvement Non-Homesite Value: | + | $27,827 | |
| (+) Land Homesite Value: | + | $0 | |
| (+) Land Non-Homesite Value: | + | $65,044 | |
| (+) Curr Use (HS): | + | $0 | $0 |
| (+) Curr Use (NHS): | + | $0 | $0 |
| | | -------------------------- | |
| (=) Market Value: | = | $92,871 | |
| (–) Productivity Loss: | – | $0 | |
| | | -------------------------- | |
| (=) Subtotal: | = | $92,871 | |
| (+) Senior Appraised Value: | + | $0 | |
| (+) Non-Senior Appraised Value: | + | $92,871 | |
| | | -------------------------- | |
| (=) Total Appraised Value: | = | $92,871 | |
| (–) Senior Exemption Loss: | – | $0 | |
| (–) Exemption Loss: | – | $0 | |
| | | -------------------------- | |
| (=) Taxable Value: | = | $92,871 | |
Taxing Jurisdiction
| Owner: | LAKE LELAND LLC | | |
| % Ownership: | 100.0000000000% | | |
| Total Value: | N/A | | |
| Tax Area: | 0324 - 1-48F2E2H2C2L1Z3 |
| CE | COUNTY CURRENT EXPENSE | N/A | N/A | N/A | N/A | | |
| CNTYDD | DEVELOPMENTAL DISABILITIES | N/A | N/A | N/A | N/A | | |
| CNTYVET | VETERANS RELIEF | N/A | N/A | N/A | N/A | | |
| MENTAL | MENTAL HEALTH | N/A | N/A | N/A | N/A | | |
| ROADS | COUNTY ROADS | N/A | N/A | N/A | N/A | | |
| ROADSCU | COUNTY ROADS TO CUR EXP | N/A | N/A | N/A | N/A | | |
| HOSP2CASH | HOSP DIST #2 GENERAL | N/A | N/A | N/A | N/A | | |
| SCH48MO | SCHOOL DIST #48 EP & O | N/A | N/A | N/A | N/A | | |
| CEM2 | CEMETERY DIST #2 GENERAL | N/A | N/A | N/A | N/A | | |
| CONSERVE | CONSERVATION FUTURES | N/A | N/A | N/A | N/A | | |
| FD2 | FIRE DIST #2 GENERAL | N/A | N/A | N/A | N/A | | |
| LIB1 | LIBRARY DIST #1 GENERAL | N/A | N/A | N/A | N/A | | |
| PORTPT | PORT OF PT GENERAL | N/A | N/A | N/A | N/A | | |
| PORTPTIDD | PORT OF PT IDD 2019 | N/A | N/A | N/A | N/A | | |
| PUD1 | PUD #1 GENERAL | N/A | N/A | N/A | N/A | | |
| STATE | STATE SCHOOL PART 1 | N/A | N/A | N/A | N/A | | |
| STATE2 | STATE SCHOOL PART 2 | N/A | N/A | N/A | N/A | | |
| EMS2 | FIRE DIST #2 EMS | N/A | N/A | N/A | N/A | | |
| | Total Tax Rate: | N/A | | | | | |
| | | | | Taxes w/Current Exemptions: | N/A | | |
| | | | | Taxes w/o Exemptions: | N/A | | |
Improvement / Building
| Improvement #1: | Residential Bldg | State Code: | 19 | 0.0 sqft | Value: | $22,511 |
| | Type | Description | Class CD | Sub Class CD | Year Built | Area |
| | OTHER | Other | 3 | * | 0 | 328.7 |
| | CDECK | Cabin Deck | 2 | * | 0 | 647.0 |
| | SHED | Shed (Table Not Dep) | 4 | C1S | 0 | 120.0 |
| Improvement #2: | Site Improvements | State Code: | 74 | 0.0 sqft | Value: | $5,316 |
| | Type | Description | Class CD | Sub Class CD | Year Built | Area |
| | SHED | Shed (Table Not Dep) | 3 | * | 0 | 228.0 |
| | OTHER | Other | 1 | * | 0 | 600.0 |
Sketch
Property Image
Land
| 1 | 2630-1345S | Good Lake Leland View Sites 1+ Acre | 0.0000 | 0.00 | 0.00 | 0.00 | 1.00 | $60,375 | $0 |
| 2 | 1577A | Terr/Mtn/No View <6 Acres | 0.5800 | 25264.80 | 0.00 | 0.00 | 0.00 | $4,669 | $0 |
Roll Value History
| 2025 | N/A | N/A | N/A | N/A | N/A |
| 2024 | $21,573 | $51,975 | $0 | $73,548 | $73,548 |
| 2023 | $20,635 | $47,250 | $0 | $67,885 | $67,885 |
| 2022 | $18,759 | $47,250 | $0 | $66,009 | $66,009 |
| 2021 | $16,312 | $40,500 | $0 | $56,812 | $56,812 |
Deed and Sales History
| 1 | 03/18/2025 | LOT CERT | LOT CERTIFICATION | LAKE LELAND LLC | LAKE LELAND LLC | | | | 0 | AF#670445 |
| 2 | 06/11/1997 | SWD | Statutory Warranty Deed | | LAKE LELAND LLC | | TX 6 | | 82116 | #116199-LLC |
| 3 | 10/02/2015 | QCD | Quit Claim Deed | | | | | | 125555 | |
| 4 | 10/02/2015 | QCD | Quit Claim Deed | | | | | | 125308 | |
| 5 | 06/15/2011 | QCD | Quit Claim Deed | HUNTER, THEODORE P,, HOLM | LAKE LELAND, LLC | | | $0.00 | 116245 | 0 |
| 6 | 06/15/2011 | QCD | Quit Claim Deed | HUNTER, THEODORE P/RAMONA | LAKE LELAND LLC | | | $0.00 | 116196 | 0 |
| 7 | 08/31/2006 | SWD | Statutory Warranty Deed | PACIFIC ECOLOGICAL INSTIT | HUNTER, THEODORE/HOLMES,RAMONA | 0 | 0 | $0.00 | 107596 | 0 |
| 8 | 06/02/1997 | SWD | Statutory Warranty Deed | CURREN, ALICE CONSTANCE | PACIFIC ENERGY INSTITUTE | 0 | 0 | $15,000.00 | 82085 | 0 |
| 9 | 09/30/1996 | QCD | Quit Claim Deed | THOMAS, MARTHA | CURREN, ALICE CONSTANCE | 0 | 0 | $0.00 | 80513 | 0 |
Payout Agreement
| No payout information available.. |