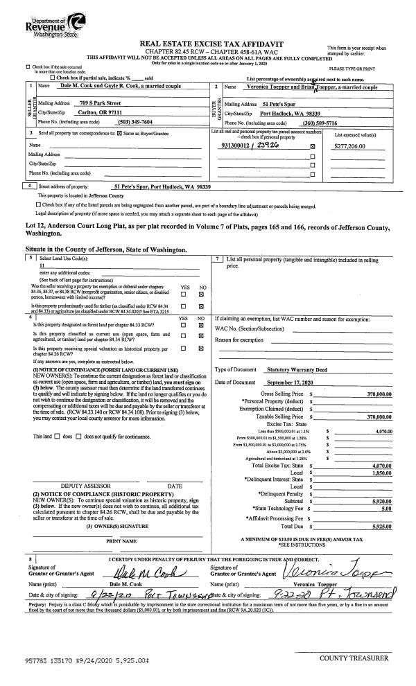
Property
Account |
| Property ID: | 20087 | Abbreviated Legal Description: | S26 T28 R2W TAX 8 & 10 |
| Parcel # / Geo ID: | 802264011 | Agent Code: | |
| Type: | Real | | |
| Tax Area: | 0324 - 1-48F2E2H2C2L1Z3 | Land Use Code | 11 |
| Open Space: | N | DFL | N |
| Historic Property: | N | Remodel Property: | N |
| Multi-Family Redevelopment: | N | | |
| Township: | 28N | Section: | 26 |
| Range: | 2W |
Location |
| Address: | 752 HECTORS WAY QUILCENE, WA 98376 | Mapsco: | 171/081 |
| Neighborhood: | S23, 24, 25 & 26 T28N R2W & GARRISON & TAYLOR-JOHNSON SP | Map ID: | |
| Neighborhood CD: | 2630 |
Owner |
| Name: | PAMELA J ROBERTS | Owner ID: | 25932 |
| Mailing Address: | HOWARD M GILBERT 752 HECTORS WAY QUILCENE, WA 98376-7501 | % Ownership: | 100.0000000000% |
| | | Exemptions: | |
Pay Tax Due
There is currently No Amount Due on this property.
Taxes and Assessment Details
Property Tax Information as of
10/24/2025
Click on "Statement Details" to expand or collapse a tax statement.
* Please enter a valid date ** Please enter a valid date *
Statement Details |
| | TOTAL: | $0.00 | $0.00 | $0.00 | $0.00 | $0.00 | $0.00 |
|
| | $0.00 | $0.00 | $0.00 | $0.00 | $0.00 | $0.00 |
Values
| (+) Improvement Homesite Value: | + | $0 | |
| (+) Improvement Non-Homesite Value: | + | $186,361 | |
| (+) Land Homesite Value: | + | $0 | |
| (+) Land Non-Homesite Value: | + | $186,300 | |
| (+) Curr Use (HS): | + | $0 | $0 |
| (+) Curr Use (NHS): | + | $0 | $0 |
| | | -------------------------- | |
| (=) Market Value: | = | $372,661 | |
| (–) Productivity Loss: | – | $0 | |
| | | -------------------------- | |
| (=) Subtotal: | = | $372,661 | |
| (+) Senior Appraised Value: | + | $0 | |
| (+) Non-Senior Appraised Value: | + | $372,661 | |
| | | -------------------------- | |
| (=) Total Appraised Value: | = | $372,661 | |
| (–) Senior Exemption Loss: | – | $0 | |
| (–) Exemption Loss: | – | $0 | |
| | | -------------------------- | |
| (=) Taxable Value: | = | $372,661 | |
Taxing Jurisdiction
| Owner: | PAMELA J ROBERTS | | |
| % Ownership: | 100.0000000000% | | |
| Total Value: | N/A | | |
| Tax Area: | 0324 - 1-48F2E2H2C2L1Z3 |
| CE | COUNTY CURRENT EXPENSE | N/A | N/A | N/A | N/A | | |
| CNTYDD | DEVELOPMENTAL DISABILITIES | N/A | N/A | N/A | N/A | | |
| CNTYVET | VETERANS RELIEF | N/A | N/A | N/A | N/A | | |
| MENTAL | MENTAL HEALTH | N/A | N/A | N/A | N/A | | |
| ROADS | COUNTY ROADS | N/A | N/A | N/A | N/A | | |
| ROADSCU | COUNTY ROADS TO CUR EXP | N/A | N/A | N/A | N/A | | |
| HOSP2CASH | HOSP DIST #2 GENERAL | N/A | N/A | N/A | N/A | | |
| SCH48MO | SCHOOL DIST #48 EP & O | N/A | N/A | N/A | N/A | | |
| CEM2 | CEMETERY DIST #2 GENERAL | N/A | N/A | N/A | N/A | | |
| CONSERVE | CONSERVATION FUTURES | N/A | N/A | N/A | N/A | | |
| FD2 | FIRE DIST #2 GENERAL | N/A | N/A | N/A | N/A | | |
| LIB1 | LIBRARY DIST #1 GENERAL | N/A | N/A | N/A | N/A | | |
| PORTPT | PORT OF PT GENERAL | N/A | N/A | N/A | N/A | | |
| PORTPTIDD | PORT OF PT IDD 2019 | N/A | N/A | N/A | N/A | | |
| PUD1 | PUD #1 GENERAL | N/A | N/A | N/A | N/A | | |
| STATE | STATE SCHOOL PART 1 | N/A | N/A | N/A | N/A | | |
| STATE2 | STATE SCHOOL PART 2 | N/A | N/A | N/A | N/A | | |
| EMS2 | FIRE DIST #2 EMS | N/A | N/A | N/A | N/A | | |
| | Total Tax Rate: | N/A | | | | | |
| | | | | Taxes w/Current Exemptions: | N/A | | |
| | | | | Taxes w/o Exemptions: | N/A | | |
Improvement / Building
| Improvement #1: | Manufactured Home | State Code: | 11 | 1296.0 sqft | Value: | $186,361 |
| Bathrooms (#): | 2 (FULL) | Bedrooms (#): | 2 | | Exterior Wall: | PL/T1 | Floor Construction: | FRAME | | Foundation: | CONPR | Heating/Cooling: | F/A | | Roof Cover: | METAL |   |   |
|
| | Type | Description | Class CD | Sub Class CD | Year Built | Area |
| | MA | Main Area | 3+ | MFH | 1992 | 1296.0 |
| | OTHER | Other | 3 | * | 1992 | 0.0 |
| | MENCL | MH Enclosure | 3 | MFH | 1992 | 72.0 |
| | MWPOR | MH Wood Porch | 3 | * | 1992 | 108.0 |
| | MDET | MH Detached Garage | 3 | * | 1992 | 624.0 |
| | SHED | Shed (Table Not Dep) | 3 | * | 1992 | 120.0 |
Sketch
Property Image
Land
| 1 | 2630-1415F | Lake Leland Wtrfrnt - Slopes to Rd | 0.0000 | 0.00 | 0.00 | 0.00 | 0.00 | $126,500 | $0 |
| 2 | 2630-1415F | Lake Leland Wtrfrnt - Slopes to Rd | 0.0000 | 0.00 | 0.00 | 0.00 | 0.00 | $59,800 | $0 |
Roll Value History
| 2025 | N/A | N/A | N/A | N/A | N/A |
| 2024 | $178,596 | $178,200 | $0 | $356,796 | $356,796 |
| 2023 | $170,831 | $157,000 | $0 | $327,831 | $327,831 |
| 2022 | $155,301 | $152,000 | $0 | $307,301 | $307,301 |
| 2021 | $135,044 | $136,800 | $0 | $271,844 | $271,844 |
Deed and Sales History
| 1 | 08/06/2001 | SWD | Statutory Warranty Deed | JENSEN, DONNA E | ROBERTS, PAMELA J, GILBERT, HO | 0 | 0 | $183,500.00 | 92848 | 0 |
| 2 | 10/31/2000 | QCD | Quit Claim Deed | JENSEN, JAN C | JENSEN, DONNA E | 0 | 0 | $0.00 | 91539 | 0 |
| 3 | 10/08/1996 | QCD | Quit Claim Deed | JENSEN, KEITH ALLEN | JENSEN, DONNA E/JAN C | 0 | 0 | $0.00 | 80577 | 0 |
| 4 | 01/21/1992 | QCD | Quit Claim Deed | JENSEN, JAN C/CONNA E | JENSEN, KEITH ALLEN | 0 | 0 | $0.00 | 67575 | 0 |
| 5 | 01/21/1992 | QCD | Quit Claim Deed | JENSEN, JAN C/DONNA E | JENSEN, KEITH A | 0 | 0 | $0.00 | 67576 | 0 |
Payout Agreement
| No payout information available.. |