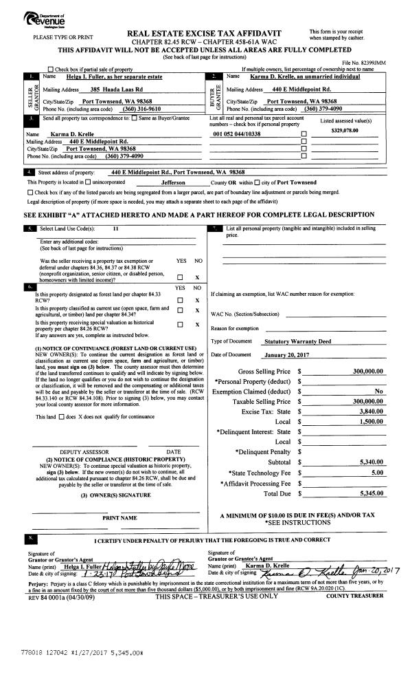
Property
Account |
| Property ID: | 20098 | Abbreviated Legal Description: | S27 T28 R2W N1/2 NW NW(LS E760'), LS TX 2 & 3 |
| Parcel # / Geo ID: | 802272002 | Agent Code: | |
| Type: | Real | | |
| Tax Area: | 0324 - 1-48F2E2H2C2L1Z3 | Land Use Code | 11 |
| Open Space: | N | DFL | N |
| Historic Property: | N | Remodel Property: | N |
| Multi-Family Redevelopment: | N | | |
| Township: | 28N | Section: | 27 |
| Range: | 2W |
Location |
| Address: | 4530 LORDS LAKE LOOP RD QUILCENE, WA 98376 | Mapsco: | 172/006 |
| Neighborhood: | S27, 34 & 35 T28N R2W | Map ID: | |
| Neighborhood CD: | 2640 |
Owner |
| Name: | ALLEN C DIONNE | Owner ID: | 98251 |
| Mailing Address: | PO BOX 250 QUILCENE, WA 98376 | % Ownership: | 100.0000000000% |
| | | Exemptions: | |
Pay Tax Due
There is currently No Amount Due on this property.
Taxes and Assessment Details
Property Tax Information as of
10/24/2025
Click on "Statement Details" to expand or collapse a tax statement.
* Please enter a valid date ** Please enter a valid date *
Statement Details |
| | TOTAL: | $0.00 | $0.00 | $0.00 | $0.00 | $0.00 | $0.00 |
|
| | $0.00 | $0.00 | $0.00 | $0.00 | $0.00 | $0.00 |
Values
| (+) Improvement Homesite Value: | + | $0 | |
| (+) Improvement Non-Homesite Value: | + | $89,212 | |
| (+) Land Homesite Value: | + | $0 | |
| (+) Land Non-Homesite Value: | + | $88,355 | |
| (+) Curr Use (HS): | + | $0 | $0 |
| (+) Curr Use (NHS): | + | $0 | $0 |
| | | -------------------------- | |
| (=) Market Value: | = | $177,567 | |
| (–) Productivity Loss: | – | $0 | |
| | | -------------------------- | |
| (=) Subtotal: | = | $177,567 | |
| (+) Senior Appraised Value: | + | $0 | |
| (+) Non-Senior Appraised Value: | + | $177,567 | |
| | | -------------------------- | |
| (=) Total Appraised Value: | = | $177,567 | |
| (–) Senior Exemption Loss: | – | $0 | |
| (–) Exemption Loss: | – | $0 | |
| | | -------------------------- | |
| (=) Taxable Value: | = | $177,567 | |
Taxing Jurisdiction
| Owner: | ALLEN C DIONNE | | |
| % Ownership: | 100.0000000000% | | |
| Total Value: | N/A | | |
| Tax Area: | 0324 - 1-48F2E2H2C2L1Z3 |
| CE | COUNTY CURRENT EXPENSE | N/A | N/A | N/A | N/A | | |
| CNTYDD | DEVELOPMENTAL DISABILITIES | N/A | N/A | N/A | N/A | | |
| CNTYVET | VETERANS RELIEF | N/A | N/A | N/A | N/A | | |
| MENTAL | MENTAL HEALTH | N/A | N/A | N/A | N/A | | |
| ROADS | COUNTY ROADS | N/A | N/A | N/A | N/A | | |
| ROADSCU | COUNTY ROADS TO CUR EXP | N/A | N/A | N/A | N/A | | |
| HOSP2CASH | HOSP DIST #2 GENERAL | N/A | N/A | N/A | N/A | | |
| SCH48MO | SCHOOL DIST #48 EP & O | N/A | N/A | N/A | N/A | | |
| CEM2 | CEMETERY DIST #2 GENERAL | N/A | N/A | N/A | N/A | | |
| CONSERVE | CONSERVATION FUTURES | N/A | N/A | N/A | N/A | | |
| FD2 | FIRE DIST #2 GENERAL | N/A | N/A | N/A | N/A | | |
| LIB1 | LIBRARY DIST #1 GENERAL | N/A | N/A | N/A | N/A | | |
| PORTPT | PORT OF PT GENERAL | N/A | N/A | N/A | N/A | | |
| PORTPTIDD | PORT OF PT IDD 2019 | N/A | N/A | N/A | N/A | | |
| PUD1 | PUD #1 GENERAL | N/A | N/A | N/A | N/A | | |
| STATE | STATE SCHOOL PART 1 | N/A | N/A | N/A | N/A | | |
| STATE2 | STATE SCHOOL PART 2 | N/A | N/A | N/A | N/A | | |
| EMS2 | FIRE DIST #2 EMS | N/A | N/A | N/A | N/A | | |
| | Total Tax Rate: | N/A | | | | | |
| | | | | Taxes w/Current Exemptions: | N/A | | |
| | | | | Taxes w/o Exemptions: | N/A | | |
Improvement / Building
| Improvement #1: | Residential Bldg | State Code: | 11 | 1592.0 sqft | Value: | $89,212 |
| Bathrooms (#): | 1 (FULL) | Bedrooms (#): | 2 | | Exterior Wall: | SI/ST | Fireplace: | WD ST-FAIR | | Floor Construction: | FRAME | Foundation: | CONPR | | Heating/Cooling: | WD/NO | Roof Cover: | METAL |
|
| | Type | Description | Class CD | Sub Class CD | Year Built | Area |
| | MA | Main Area | 2+ | 2S | 1978 | 872.0 |
| | MA2 | Second Floor Main Area | 2+ | 2S | 1978 | 720.0 |
| | CARPTN | Carport W/O Floor | 1 | * | 1978 | 336.0 |
| | BSMTU | House basement unfinished | 2 | 2S | 1978 | 560.0 |
Sketch
Property Image
Land
| 1 | 2640-1375S | Terr/Mtn/No View Sites 1+/- Acre | 1.0000 | 43560.00 | 0.00 | 0.00 | 1.00 | $74,750 | $0 |
| 2 | 1577A | Terr/Mtn/No View <6 Acres | 1.6900 | 73616.40 | 0.00 | 0.00 | 0.00 | $13,605 | $0 |
Roll Value History
| 2025 | N/A | N/A | N/A | N/A | N/A |
| 2024 | $85,494 | $84,513 | $0 | $170,007 | $170,007 |
| 2023 | $81,777 | $70,985 | $0 | $152,762 | $152,762 |
| 2022 | $74,343 | $65,140 | $0 | $139,483 | $139,483 |
| 2021 | $64,646 | $56,112 | $0 | $120,758 | $120,758 |
Deed and Sales History
| 1 | 10/23/2017 | QCD | Quit Claim Deed | ADAM BETHEL MORIAH | ALLEN C DIONNE | | | | 128933 | |
| 2 | 01/11/2009 | SWD | Statutory Warranty Deed | MILLER, MARY D | MORIAH, ADAM BETHEL, A CORPORA | 0 | 0 | $0.00 | 112437 | 0 |
Payout Agreement
| No payout information available.. |