Property
Account |
| Property ID: | 20148 | Abbreviated Legal Description: | S35 T28 R2W TAX 1(TR 35-1 SURV V13/P223) |
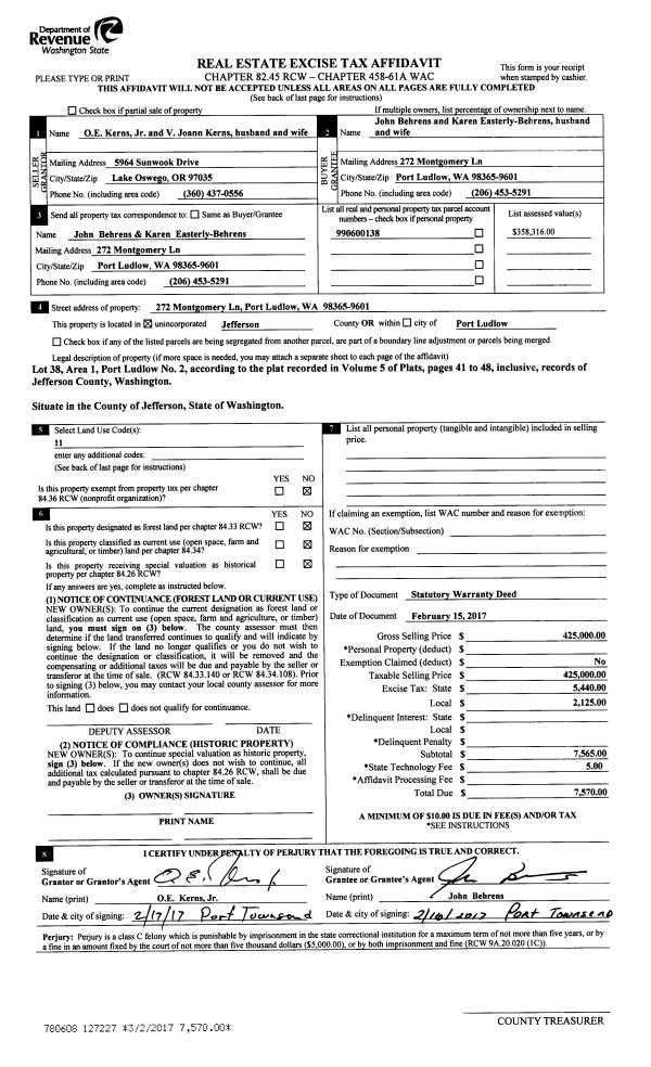
| Parcel # / Geo ID: | 802352001 | Agent Code: | |
| Type: | Real | | |
| Tax Area: | 0324 - 1-48F2E2H2C2L1Z3 | Land Use Code | 11 |
| Open Space: | N | DFL | N |
| Historic Property: | N | Remodel Property: | N |
| Multi-Family Redevelopment: | N | | |
| Township: | 28N | Section: | 35 |
| Range: | 2W |
Location |
| Address: | 1545 RIPLEY CREEK RD QUILCENE, WA 98376 | Mapsco: | 173/004 |
| Neighborhood: | S27, 34 & 35 T28N R2W | Map ID: | |
| Neighborhood CD: | 2640 |
Owner |
| Name: | AJIT & CHETANA DESHMUKH | Owner ID: | 110326 |
| Mailing Address: | 711 122ND AVE NE APT A5 BELLEVUE, WA 98005-3143 | % Ownership: | 100.0000000000% |
| | | Exemptions: | |
Pay Tax Due
There is currently No Amount Due on this property.
Taxes and Assessment Details
Property Tax Information as of
10/24/2025
Click on "Statement Details" to expand or collapse a tax statement.
* Please enter a valid date ** Please enter a valid date *
Statement Details |
| | TOTAL: | $0.00 | $0.00 | $0.00 | $0.00 | $0.00 | $0.00 |
|
| | $0.00 | $0.00 | $0.00 | $0.00 | $0.00 | $0.00 |
Values
| (+) Improvement Homesite Value: | + | $0 | |
| (+) Improvement Non-Homesite Value: | + | $340,739 | |
| (+) Land Homesite Value: | + | $0 | |
| (+) Land Non-Homesite Value: | + | $245,707 | |
| (+) Curr Use (HS): | + | $0 | $0 |
| (+) Curr Use (NHS): | + | $0 | $0 |
| | | -------------------------- | |
| (=) Market Value: | = | $586,446 | |
| (–) Productivity Loss: | – | $0 | |
| | | -------------------------- | |
| (=) Subtotal: | = | $586,446 | |
| (+) Senior Appraised Value: | + | $0 | |
| (+) Non-Senior Appraised Value: | + | $586,446 | |
| | | -------------------------- | |
| (=) Total Appraised Value: | = | $586,446 | |
| (–) Senior Exemption Loss: | – | $0 | |
| (–) Exemption Loss: | – | $0 | |
| | | -------------------------- | |
| (=) Taxable Value: | = | $586,446 | |
Taxing Jurisdiction
| Owner: | AJIT & CHETANA DESHMUKH | | |
| % Ownership: | 100.0000000000% | | |
| Total Value: | N/A | | |
| Tax Area: | 0324 - 1-48F2E2H2C2L1Z3 |
| CE | COUNTY CURRENT EXPENSE | N/A | N/A | N/A | N/A | | |
| CNTYDD | DEVELOPMENTAL DISABILITIES | N/A | N/A | N/A | N/A | | |
| CNTYVET | VETERANS RELIEF | N/A | N/A | N/A | N/A | | |
| MENTAL | MENTAL HEALTH | N/A | N/A | N/A | N/A | | |
| ROADS | COUNTY ROADS | N/A | N/A | N/A | N/A | | |
| ROADSCU | COUNTY ROADS TO CUR EXP | N/A | N/A | N/A | N/A | | |
| HOSP2CASH | HOSP DIST #2 GENERAL | N/A | N/A | N/A | N/A | | |
| SCH48MO | SCHOOL DIST #48 EP & O | N/A | N/A | N/A | N/A | | |
| CEM2 | CEMETERY DIST #2 GENERAL | N/A | N/A | N/A | N/A | | |
| CONSERVE | CONSERVATION FUTURES | N/A | N/A | N/A | N/A | | |
| FD2 | FIRE DIST #2 GENERAL | N/A | N/A | N/A | N/A | | |
| LIB1 | LIBRARY DIST #1 GENERAL | N/A | N/A | N/A | N/A | | |
| PORTPT | PORT OF PT GENERAL | N/A | N/A | N/A | N/A | | |
| PORTPTIDD | PORT OF PT IDD 2019 | N/A | N/A | N/A | N/A | | |
| PUD1 | PUD #1 GENERAL | N/A | N/A | N/A | N/A | | |
| STATE | STATE SCHOOL PART 1 | N/A | N/A | N/A | N/A | | |
| STATE2 | STATE SCHOOL PART 2 | N/A | N/A | N/A | N/A | | |
| EMS2 | FIRE DIST #2 EMS | N/A | N/A | N/A | N/A | | |
| | Total Tax Rate: | N/A | | | | | |
| | | | | Taxes w/Current Exemptions: | N/A | | |
| | | | | Taxes w/o Exemptions: | N/A | | |
Improvement / Building
| Improvement #1: | Residential Bldg | State Code: | 88 | 1246.0 sqft | Value: | $340,739 |
| Bathrooms (#): | 2 (FULL) | Bedrooms (#): | 2 | | Exterior Wall: | SI/ST | Floor Construction: | FRAME | | Foundation: | CONPR | Heating/Cooling: | HPUMP | | Roof Cover: | METAL |   |   |
|
| | Type | Description | Class CD | Sub Class CD | Year Built | Area |
| | MA | Main Area | 4- | 1S | 2002 | 1246.0 |
| | HWPOR | House Wood Porch | 4 | * | 2002 | 210.0 |
| | HCPOR | House Concrete Porch | 4 | * | 2002 | 120.0 |
| | GDET | Detached Garage | 4 | 1S | 2002 | 672.0 |
| | CONCD | Concrete Drive | 3 | * | 2002 | 320.0 |
| | PATIO | House Patio | 3 | * | 2002 | 710.0 |
Sketch
Property Image
Land
| 1 | 2640-1372S | V Good Terr View Sites 1+ Acre | 1.0000 | 43560.00 | 0.00 | 0.00 | 1.00 | $132,250 | $0 |
| 2 | 1777A | Terr/Mtn View >15-25 Acres | 20.7700 | 904741.20 | 0.00 | 0.00 | 0.00 | $113,457 | $0 |
Roll Value History
| 2025 | N/A | N/A | N/A | N/A | N/A |
| 2024 | $326,541 | $235,024 | $0 | $561,565 | $561,565 |
| 2023 | $312,344 | $203,465 | $2,285 | $424,629 | $424,629 |
| 2022 | $283,949 | $188,080 | $2,222 | $391,171 | $391,171 |
| 2021 | $235,154 | $168,372 | $2,222 | $330,976 | $330,976 |
Deed and Sales History
| 1 | 01/25/2024 | SWD | Statutory Warranty Deed | FAY FAMILY REVOCABLE LIVING TRUST | AJIT & CHETANA DESHMUKH | | | $607,000.00 | 142169 | |
| 2 | 12/07/2021 | QCD | Quit Claim Deed | GREGORY A FAY | FAY FAMILY REVOCABLE LIVING TRUST | | | | 138517 | |
| 3 | 07/07/2017 | ADM | Administrator Deed | GREGORY A FAY | GREGORY A FAY | | | | 128074 | |
| 4 | 06/24/1998 | SWD | Statutory Warranty Deed | J T INVESTMENTS | FAY, DAWN MICHELLE/EST | 0 | 0 | $82,500.00 | 84746 | 0 |
| 5 | 03/13/1996 | SWD | Statutory Warranty Deed | PACIFIC FUNDING CORP | J T INVESTMENTS | 0 | 0 | $52,650.00 | 79067 | 0 |
Payout Agreement
| No payout information available.. |