Property
Account |
| Property ID: | 20159 | Abbreviated Legal Description: | S35 T28 R2W TAX 9 (TR 35-5) |
| Parcel # / Geo ID: | 802353003 | Agent Code: | |
| Type: | Real | | |
| Tax Area: | 0324 - 1-48F2E2H2C2L1Z3 | Land Use Code | 88 |
| Open Space: | N | DFL | Y |
| Historic Property: | N | Remodel Property: | N |
| Multi-Family Redevelopment: | N | | |
| Township: | 28N | Section: | 35 |
| Range: | 2W |
Location |
| Address: | 625 RIPLEY CREEK RD QUILCENE, WA 98376 | Mapsco: | 173/010 |
| Neighborhood: | S27, 34 & 35 T28N R2W | Map ID: | |
| Neighborhood CD: | 2640 |
Owner |
| Name: | STEPHANIE DUTTON REVOCABLE TRUST | Owner ID: | 92566 |
| Mailing Address: | STEPHANIE DUTTON TRUSTEE DARREN MCCLELLAND REV LIVING TRUST D MCCLELLAND TRUSTEE PO BOX 712 QUILCENE, WA 98376 | % Ownership: | 100.0000000000% |
| | | Exemptions: | |
Pay Tax Due
There is currently No Amount Due on this property.
Taxes and Assessment Details
Property Tax Information as of
10/24/2025
Click on "Statement Details" to expand or collapse a tax statement.
* Please enter a valid date ** Please enter a valid date *
Statement Details |
| | TOTAL: | $0.00 | $0.00 | $0.00 | $0.00 | $0.00 | $0.00 |
|
| | $0.00 | $0.00 | $0.00 | $0.00 | $0.00 | $0.00 |
Values
| (+) Improvement Homesite Value: | + | $0 | |
| (+) Improvement Non-Homesite Value: | + | $676,866 | |
| (+) Land Homesite Value: | + | $0 | |
| (+) Land Non-Homesite Value: | + | $132,250 | |
| (+) Curr Use (HS): | + | $0 | $0 |
| (+) Curr Use (NHS): | + | $141,673 | $2,906 |
| | | -------------------------- | |
| (=) Market Value: | = | $950,789 | |
| (–) Productivity Loss: | – | $138,767 | |
| | | -------------------------- | |
| (=) Subtotal: | = | $812,022 | |
| (+) Senior Appraised Value: | + | $0 | |
| (+) Non-Senior Appraised Value: | + | $812,022 | |
| | | -------------------------- | |
| (=) Total Appraised Value: | = | $812,022 | |
| (–) Senior Exemption Loss: | – | $0 | |
| (–) Exemption Loss: | – | $0 | |
| | | -------------------------- | |
| (=) Taxable Value: | = | $812,022 | |
Taxing Jurisdiction
| Owner: | STEPHANIE DUTTON REVOCABLE TRUST | | |
| % Ownership: | 100.0000000000% | | |
| Total Value: | N/A | | |
| Tax Area: | 0324 - 1-48F2E2H2C2L1Z3 |
| CE | COUNTY CURRENT EXPENSE | N/A | N/A | N/A | N/A | | |
| CNTYDD | DEVELOPMENTAL DISABILITIES | N/A | N/A | N/A | N/A | | |
| CNTYVET | VETERANS RELIEF | N/A | N/A | N/A | N/A | | |
| MENTAL | MENTAL HEALTH | N/A | N/A | N/A | N/A | | |
| ROADS | COUNTY ROADS | N/A | N/A | N/A | N/A | | |
| ROADSCU | COUNTY ROADS TO CUR EXP | N/A | N/A | N/A | N/A | | |
| HOSP2CASH | HOSP DIST #2 GENERAL | N/A | N/A | N/A | N/A | | |
| SCH48MO | SCHOOL DIST #48 EP & O | N/A | N/A | N/A | N/A | | |
| CEM2 | CEMETERY DIST #2 GENERAL | N/A | N/A | N/A | N/A | | |
| CONSERVE | CONSERVATION FUTURES | N/A | N/A | N/A | N/A | | |
| FD2 | FIRE DIST #2 GENERAL | N/A | N/A | N/A | N/A | | |
| LIB1 | LIBRARY DIST #1 GENERAL | N/A | N/A | N/A | N/A | | |
| PORTPT | PORT OF PT GENERAL | N/A | N/A | N/A | N/A | | |
| PORTPTIDD | PORT OF PT IDD 2019 | N/A | N/A | N/A | N/A | | |
| PUD1 | PUD #1 GENERAL | N/A | N/A | N/A | N/A | | |
| STATE | STATE SCHOOL PART 1 | N/A | N/A | N/A | N/A | | |
| STATE2 | STATE SCHOOL PART 2 | N/A | N/A | N/A | N/A | | |
| EMS2 | FIRE DIST #2 EMS | N/A | N/A | N/A | N/A | | |
| | Total Tax Rate: | N/A | | | | | |
| | | | | Taxes w/Current Exemptions: | N/A | | |
| | | | | Taxes w/o Exemptions: | N/A | | |
Improvement / Building
| Improvement #1: | Residential Bldg | State Code: | 88 | 1592.0 sqft | Value: | $676,866 |
| Bathrooms (#): | 3 (FULL) | Bathrooms (#): | 1 (HALF) | | Bedrooms (#): | 3 | Exterior Wall: | SI/ST | | Fireplace: | SIN 1-GOOD | Floor Construction: | FRAME | | Foundation: | CONPR | Heating/Cooling: | F/A | | Roof Cover: | COMP |   |   |
|
| | Type | Description | Class CD | Sub Class CD | Year Built | Area |
| | MA | Main Area | 5 | 2S | 2003 | 1004.0 |
| | MA2 | Second Floor Main Area | 5 | 2S | 2003 | 588.0 |
| | HBAL | House Balcony | 5 | * | 2003 | 60.0 |
| | HDECK | House Deck | 5 | * | 2003 | 666.0 |
| | GBSMT | Basement Garage | 5 | 2S | 2003 | 424.0 |
| | CARPTF | Carport W/Floor | 5 | * | 2003 | 616.0 |
| | BSMTF | House basement finished | 5 | * | 2003 | 556.0 |
| | HWPOR | House Wood Porch | 5 | * | 2003 | 60.0 |
| | HDECK | House Deck | 1 | * | 2003 | 56.0 |
| | SHED | Shed (Table Not Dep) | 4 | * | 2003 | 200.0 |
| | SHED | Shed (Table Not Dep) | 4 | * | 2003 | 252.0 |
| | OTHER | Other | 5 | * | 2003 | 0.0 |
Sketch
Property Image
Land
| 1 | 2640-1372S | V Good Terr View Sites 1+ Acre | 1.0000 | 43560.00 | 0.00 | 0.00 | 1.00 | $132,250 | $0 |
| 2 | 1771A | Terr/Mtn View >15-25 Acres | 9.8100 | 427323.60 | 0.00 | 0.00 | 0.00 | $69,805 | $1,462 |
| 3 | 1771A | Terr/Mtn View >15-25 Acres | 10.1000 | 439956.00 | 0.00 | 0.00 | 0.00 | $71,868 | $1,444 |
Roll Value History
| 2025 | N/A | N/A | N/A | N/A | N/A |
| 2024 | $648,663 | $262,013 | $2,926 | $778,089 | $778,089 |
| 2023 | $620,461 | $229,460 | $2,886 | $733,347 | $733,347 |
| 2022 | $564,055 | $216,994 | $2,807 | $671,862 | $671,862 |
| 2021 | $477,580 | $201,114 | $2,807 | $573,987 | $573,987 |
Deed and Sales History
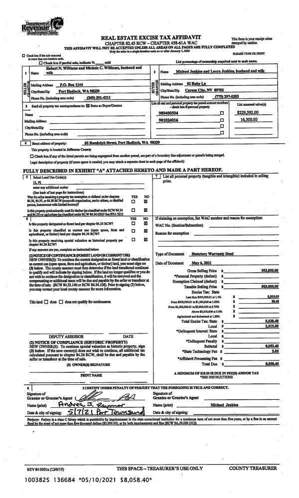
| 1 | 07/27/2021 | QCD | Quit Claim Deed | STEPHANIE DUTTON | STEPHANIE DUTTON REVOCABLE TRUST | | | | 137248 | |
| 2 | 05/24/2021 | SWD | Statutory Warranty Deed | WILLIAM M BISCOMB | STEPHANIE DUTTON | | | $706,000.00 | 136815 | |
| 3 | 11/26/1997 | SWD | Statutory Warranty Deed | BARBER FAMILY TRUST | BISCOMB, WILLIAM M/FLEURDELIZA | 0 | 0 | $62,500.00 | 83427 | 0 |
| 4 | 12/12/1996 | SWD | Statutory Warranty Deed | PACIFIC FUNDING CORP | BARBER TRUST-MINOR CHILDREN J | 0 | 0 | $0.00 | 81026 | 0 |
Payout Agreement
| No payout information available.. |