Property
Account |
| Property ID: | 20188 | Abbreviated Legal Description: | S36 T28 R2W TAX 11 REVISED W/EASE |
| Parcel # / Geo ID: | 802363015 | Agent Code: | |
| Type: | Real | | |
| Tax Area: | 0324 - 1-48F2E2H2C2L1Z3 | Land Use Code | 19 |
| Open Space: | N | DFL | N |
| Historic Property: | N | Remodel Property: | N |
| Multi-Family Redevelopment: | N | | |
| Township: | 28N | Section: | 36 |
| Range: | 2W |
Location |
| Address: | 2532 LELAND VALLEY RD W QUILCENE, WA 98376 | Mapsco: | 173/051 |
| Neighborhood: | S36 T28N R2W | Map ID: | |
| Neighborhood CD: | 2635 |
Owner |
| Name: | KOICHI & KUMIKO KASHIWAYA | Owner ID: | 103162 |
| Mailing Address: | 2532 LELAND VALLEY RD W QUILCENE, WA 98376-7541 | % Ownership: | 100.0000000000% |
| | | Exemptions: | |
Pay Tax Due
There is currently No Amount Due on this property.
Taxes and Assessment Details
Property Tax Information as of
10/24/2025
Click on "Statement Details" to expand or collapse a tax statement.
* Please enter a valid date ** Please enter a valid date *
Statement Details |
| | TOTAL: | $0.00 | $0.00 | $0.00 | $0.00 | $0.00 | $0.00 |
|
| | $0.00 | $0.00 | $0.00 | $0.00 | $0.00 | $0.00 |
Values
| (+) Improvement Homesite Value: | + | $0 | |
| (+) Improvement Non-Homesite Value: | + | $76,243 | |
| (+) Land Homesite Value: | + | $0 | |
| (+) Land Non-Homesite Value: | + | $129,749 | |
| (+) Curr Use (HS): | + | $0 | $0 |
| (+) Curr Use (NHS): | + | $0 | $0 |
| | | -------------------------- | |
| (=) Market Value: | = | $205,992 | |
| (–) Productivity Loss: | – | $0 | |
| | | -------------------------- | |
| (=) Subtotal: | = | $205,992 | |
| (+) Senior Appraised Value: | + | $0 | |
| (+) Non-Senior Appraised Value: | + | $205,992 | |
| | | -------------------------- | |
| (=) Total Appraised Value: | = | $205,992 | |
| (–) Senior Exemption Loss: | – | $0 | |
| (–) Exemption Loss: | – | $0 | |
| | | -------------------------- | |
| (=) Taxable Value: | = | $205,992 | |
Taxing Jurisdiction
| Owner: | KOICHI & KUMIKO KASHIWAYA | | |
| % Ownership: | 100.0000000000% | | |
| Total Value: | N/A | | |
| Tax Area: | 0324 - 1-48F2E2H2C2L1Z3 |
| CE | COUNTY CURRENT EXPENSE | N/A | N/A | N/A | N/A | | |
| CNTYDD | DEVELOPMENTAL DISABILITIES | N/A | N/A | N/A | N/A | | |
| CNTYVET | VETERANS RELIEF | N/A | N/A | N/A | N/A | | |
| MENTAL | MENTAL HEALTH | N/A | N/A | N/A | N/A | | |
| ROADS | COUNTY ROADS | N/A | N/A | N/A | N/A | | |
| ROADSCU | COUNTY ROADS TO CUR EXP | N/A | N/A | N/A | N/A | | |
| HOSP2CASH | HOSP DIST #2 GENERAL | N/A | N/A | N/A | N/A | | |
| SCH48MO | SCHOOL DIST #48 EP & O | N/A | N/A | N/A | N/A | | |
| CEM2 | CEMETERY DIST #2 GENERAL | N/A | N/A | N/A | N/A | | |
| CONSERVE | CONSERVATION FUTURES | N/A | N/A | N/A | N/A | | |
| FD2 | FIRE DIST #2 GENERAL | N/A | N/A | N/A | N/A | | |
| LIB1 | LIBRARY DIST #1 GENERAL | N/A | N/A | N/A | N/A | | |
| PORTPT | PORT OF PT GENERAL | N/A | N/A | N/A | N/A | | |
| PORTPTIDD | PORT OF PT IDD 2019 | N/A | N/A | N/A | N/A | | |
| PUD1 | PUD #1 GENERAL | N/A | N/A | N/A | N/A | | |
| STATE | STATE SCHOOL PART 1 | N/A | N/A | N/A | N/A | | |
| STATE2 | STATE SCHOOL PART 2 | N/A | N/A | N/A | N/A | | |
| EMS2 | FIRE DIST #2 EMS | N/A | N/A | N/A | N/A | | |
| | Total Tax Rate: | N/A | | | | | |
| | | | | Taxes w/Current Exemptions: | N/A | | |
| | | | | Taxes w/o Exemptions: | N/A | | |
Improvement / Building
| Improvement #1: | Residential Bldg | State Code: | 19 | 288.0 sqft | Value: | $76,243 |
| Exterior Wall: | PL/T1 | Floor Construction: | FRAME | | Foundation: | PO&BL | Heating/Cooling: | ELBB | | Interior Finish: | FIN | Roof Cover: | METAL |
|
| | Type | Description | Class CD | Sub Class CD | Year Built | Area |
| | MA | Main Area | 4+ | C1S | 2016 | 288.0 |
| | CDECK | Cabin Deck | 4 | * | 2016 | 72.0 |
| | CCARPTN | Cabin Carport W/O Floor | 4 | * | 2016 | 288.0 |
| | CDET | Cabin Detached Garage | 4 | * | 2016 | 480.0 |
Sketch
Property Image
Land
| 1 | 2635-1374S | Avg+ Terr/Mtn View Sites 1+/- Acre | 1.0000 | 43560.00 | 0.00 | 0.00 | 1.00 | $62,100 | $0 |
| 2 | 1571A | Terr/Mtn/No View <6 Acres | 3.6200 | 157687.20 | 0.00 | 0.00 | 0.00 | $67,649 | $0 |
Roll Value History
| 2025 | N/A | N/A | N/A | N/A | N/A |
| 2024 | $73,066 | $124,108 | $0 | $197,174 | $197,174 |
| 2023 | $69,890 | $108,110 | $0 | $178,000 | $178,000 |
| 2022 | $63,536 | $102,680 | $0 | $166,216 | $166,216 |
| 2021 | $52,618 | $84,468 | $0 | $137,086 | $137,086 |
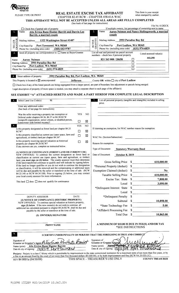
Deed and Sales History
| 1 | 08/18/2020 | SWD | Statutory Warranty Deed | ERIC H & NANCYE K ASLAKSON | KOICHI & KUMIKO KASHIWAYA | | | $150,000.00 | 134926 | |
| 2 | 08/18/2017 | SWD | Statutory Warranty Deed | ROBERT W JACKSON | ERIC H & NANCYE K ASLAKSON | | | $20,000.00 | 128357 | |
| 3 | 10/07/2003 | SWD | Statutory Warranty Deed | PAPRITZ, DALE R | JACKSON, ROBERT | 0 | 0 | $16,000.00 | 98517 | 0 |
| 4 | 01/23/2003 | SWD | Statutory Warranty Deed | PAPRITZ, GORDON R/ENGEL, | PAPRITZ, DALE RICHARD | 0 | 0 | $0.00 | 98933 | 0 |
| 5 | 01/23/2003 | SWD | Statutory Warranty Deed | PAPRITZ, GORDON/ENGEL, ER | PAPRITZ, DALE RICHARD | 0 | 0 | $0.00 | 98472 | 0 |
| 6 | 01/23/2003 | SWD | Statutory Warranty Deed | PAPRITZ, GORDON R | PAPRITZ, DALE RICHARD | 0 | 0 | $0.00 | 96443 | 0 |
Payout Agreement
| No payout information available.. |