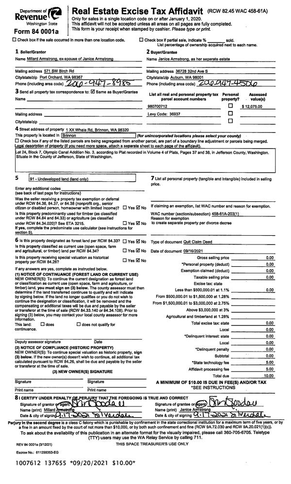
Property
Account |
| Property ID: | 20225 | Abbreviated Legal Description: | S4 & 5 T28 R1E TAX 60 |
| Parcel # / Geo ID: | 821042072 | Agent Code: | |
| Type: | Real | | |
| Tax Area: | 0213 - 1-49F1E1H2L1 | Land Use Code | 11 |
| Open Space: | N | DFL | N |
| Historic Property: | N | Remodel Property: | N |
| Multi-Family Redevelopment: | N | | |
| Township: | 28N | Section: | 5 |
| Range: | 1E |
Location |
| Address: | 6811 OAK BAY RD PORT LUDLOW, WA 98365 | Mapsco: | 149/060 |
| Neighborhood: | S4&5 T28N R1E INC MATS VIEW TERRACE, OLYMPUS BCH & HOLTH SP | Map ID: | |
| Neighborhood CD: | 3312 |
Owner |
| Name: | TRACY L BROWN | Owner ID: | 37480 |
| Mailing Address: | 46 VILLAGE WAY PMB 170 PORT LUDLOW, WA 98365-9762 | % Ownership: | 100.0000000000% |
| | | Exemptions: | SNR/DSBL |
Pay Tax Due
There is currently No Amount Due on this property.
Taxes and Assessment Details
Property Tax Information as of
10/24/2025
Click on "Statement Details" to expand or collapse a tax statement.
* Please enter a valid date ** Please enter a valid date *
Statement Details |
| | TOTAL: | $0.00 | $0.00 | $0.00 | $0.00 | $0.00 | $0.00 |
|
| | $0.00 | $0.00 | $0.00 | $0.00 | $0.00 | $0.00 |
Values
| (+) Improvement Homesite Value: | + | $92,306 | |
| (+) Improvement Non-Homesite Value: | + | $0 | |
| (+) Land Homesite Value: | + | $103,500 | |
| (+) Land Non-Homesite Value: | + | $0 | |
| (+) Curr Use (HS): | + | $0 | $0 |
| (+) Curr Use (NHS): | + | $0 | $0 |
| | | -------------------------- | |
| (=) Market Value: | = | $195,806 | |
| (–) Productivity Loss: | – | $0 | |
| | | -------------------------- | |
| (=) Subtotal: | = | $195,806 | |
| (+) Senior Appraised Value: | + | $106,606 | |
| (+) Non-Senior Appraised Value: | + | $0 | |
| | | -------------------------- | |
| (=) Total Appraised Value: | = | $106,606 | |
| (–) Senior Exemption Loss: | – | $63,964 | |
| (–) Exemption Loss: | – | $0 | |
| | | -------------------------- | |
| (=) Taxable Value: | = | $42,642 | |
Taxing Jurisdiction
| Owner: | TRACY L BROWN | | |
| % Ownership: | 100.0000000000% | | |
| Total Value: | N/A | | |
| Tax Area: | 0213 - 1-49F1E1H2L1 |
| CE | COUNTY CURRENT EXPENSE | N/A | N/A | N/A | N/A | | |
| CNTYDD | DEVELOPMENTAL DISABILITIES | N/A | N/A | N/A | N/A | | |
| CNTYVET | VETERANS RELIEF | N/A | N/A | N/A | N/A | | |
| MENTAL | MENTAL HEALTH | N/A | N/A | N/A | N/A | | |
| ROADS | COUNTY ROADS | N/A | N/A | N/A | N/A | | |
| ROADSCU | COUNTY ROADS TO CUR EXP | N/A | N/A | N/A | N/A | | |
| HOSP2CASH | HOSP DIST #2 GENERAL | N/A | N/A | N/A | N/A | | |
| SCH49CP | SCHOOL DIST #49 CAP PROJ | N/A | N/A | N/A | N/A | | |
| SCH49MO | SCHOOL DIST #49 EP & O | N/A | N/A | N/A | N/A | | |
| CONSERVE | CONSERVATION FUTURES | N/A | N/A | N/A | N/A | | |
| EMS1 | FIRE DIST #1 EMS | N/A | N/A | N/A | N/A | | |
| FD1 | FIRE DIST #1 GENERAL | N/A | N/A | N/A | N/A | | |
| LIB1 | LIBRARY DIST #1 GENERAL | N/A | N/A | N/A | N/A | | |
| PORTPT | PORT OF PT GENERAL | N/A | N/A | N/A | N/A | | |
| PORTPTIDD | PORT OF PT IDD 2019 | N/A | N/A | N/A | N/A | | |
| PUD1 | PUD #1 GENERAL | N/A | N/A | N/A | N/A | | |
| STATE | STATE SCHOOL PART 1 | N/A | N/A | N/A | N/A | | |
| STATE2 | STATE SCHOOL PART 2 | N/A | N/A | N/A | N/A | | |
| | Total Tax Rate: | N/A | | | | | |
| | | | | Taxes w/Current Exemptions: | N/A | | |
| | | | | Taxes w/o Exemptions: | N/A | | |
Improvement / Building
| Improvement #1: | Manufactured Home | State Code: | 11M | 1152.0 sqft | Value: | $92,306 |
| Bathrooms (#): | 2 (FULL) | Exterior Wall: | PL/T1 | | Floor Construction: | FRAME | Foundation: | PO&BL | | Heating/Cooling: | F/A | Inside Verify: | YES-FIX | | Roof Cover: | COMP |   |   |
|
| | Type | Description | Class CD | Sub Class CD | Year Built | Area |
| | MA | Main Area | 3 | MDBL | 1980 | 1152.0 |
| | MDECK | MH Deck | 4 | * | 1980 | 768.0 |
| | SHED | Shed (Table Not Dep) | 5 | * | 1980 | 504.0 |
| | OTHER | Other | * | * | 1980 | 0.0 |
| | MSKIRT_MTL | MH Skirting - Metal/Vinyl | 4 | * | 1980 | 144.0 |
Sketch
Property Image
Land
| 1 | 3312-1165L | Fair to Avg Water/Terr View Lots Olympus Beach | 0.0000 | 0.00 | 0.00 | 0.00 | 1.00 | $103,500 | $0 |
Roll Value History
| 2025 | N/A | N/A | N/A | N/A | N/A |
| 2024 | $88,460 | $99,000 | $0 | $187,460 | $42,642 |
| 2023 | $84,614 | $85,000 | $0 | $169,614 | $42,642 |
| 2022 | $80,768 | $80,000 | $0 | $160,768 | $42,642 |
| 2021 | $64,508 | $68,750 | $0 | $133,258 | $42,642 |
Deed and Sales History
| 1 | 09/22/2017 | QCD | Quit Claim Deed | IRENE E BROWN | TRACY L BROWN | | | $0.00 | 128690 | |
| 2 | 09/22/2017 | LOP | Lack of Probate | FRANK E BROWN | IRENE E BROWN | | | $0.00 | 128647 | |
| 3 | 08/19/1999 | QCD | Quit Claim Deed | ROBINSON, LARRY/PATRICIA | BROWN, FRANK E/IRENE E | 0 | 0 | $80,000.00 | 87656 | 0 |
Payout Agreement
| No payout information available.. |