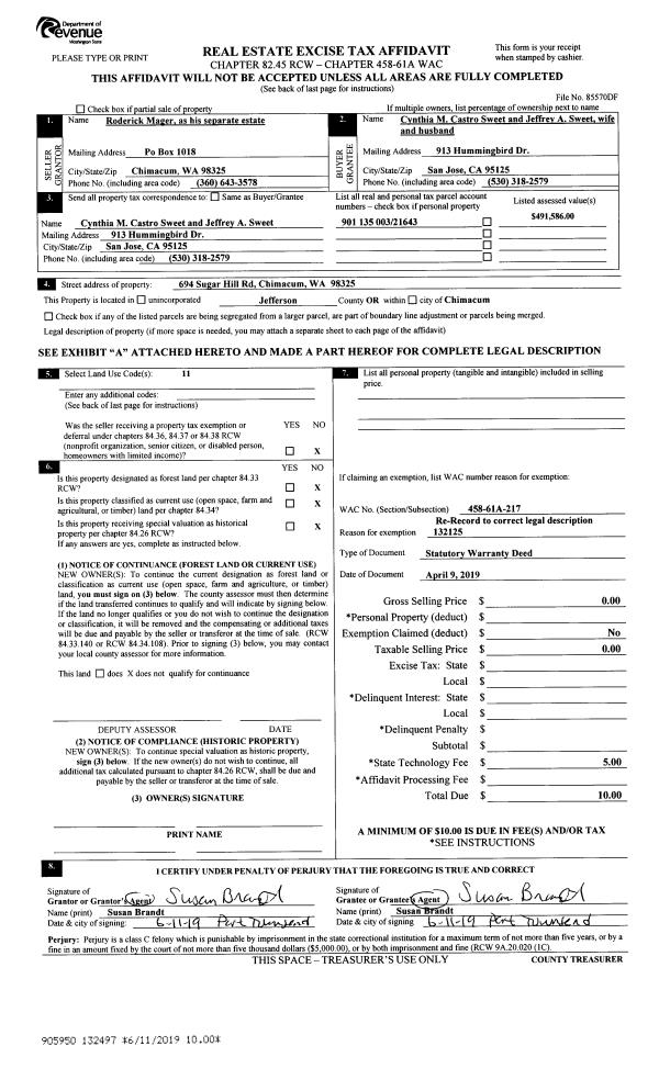
Property
Account |
| Property ID: | 20268 | Abbreviated Legal Description: | MORRIS-AMICK SHORT PLAT LOT 1 (ENLG BY TAX 134) W/PTN TL TAX B FRTG W/S EASE |
| Parcel # / Geo ID: | 821042116 | Agent Code: | |
| Type: | Real | | |
| Tax Area: | 0213 - 1-49F1E1H2L1 | Land Use Code | 11 |
| Open Space: | N | DFL | N |
| Historic Property: | N | Remodel Property: | N |
| Multi-Family Redevelopment: | N | | |
| Township: | 28N | Section: | 4 |
| Range: | 1E |
Location |
| Address: | 6743 OAK BAY RD PORT LUDLOW, WA 98365 | Mapsco: | 237/088 |
| Neighborhood: | S4&5 T28N R1E INC MATS VIEW TERRACE, OLYMPUS BCH & HOLTH SP | Map ID: | |
| Neighborhood CD: | 3312 |
Owner |
| Name: | DAVID JOHN MORRIS | Owner ID: | 91391 |
| Mailing Address: | 6743 OAK BAY ROAD PORT LUDLOW, WA 98365-9442 | % Ownership: | 100.0000000000% |
| | | Exemptions: | |
Pay Tax Due
There is currently No Amount Due on this property.
Taxes and Assessment Details
Property Tax Information as of
10/24/2025
Click on "Statement Details" to expand or collapse a tax statement.
* Please enter a valid date ** Please enter a valid date *
Statement Details |
| | TOTAL: | $0.00 | $0.00 | $0.00 | $0.00 | $0.00 | $0.00 |
|
| | $0.00 | $0.00 | $0.00 | $0.00 | $0.00 | $0.00 |
Values
| (+) Improvement Homesite Value: | + | $0 | |
| (+) Improvement Non-Homesite Value: | + | $1,080,490 | |
| (+) Land Homesite Value: | + | $0 | |
| (+) Land Non-Homesite Value: | + | $562,063 | |
| (+) Curr Use (HS): | + | $0 | $0 |
| (+) Curr Use (NHS): | + | $0 | $0 |
| | | -------------------------- | |
| (=) Market Value: | = | $1,642,553 | |
| (–) Productivity Loss: | – | $0 | |
| | | -------------------------- | |
| (=) Subtotal: | = | $1,642,553 | |
| (+) Senior Appraised Value: | + | $0 | |
| (+) Non-Senior Appraised Value: | + | $1,642,553 | |
| | | -------------------------- | |
| (=) Total Appraised Value: | = | $1,642,553 | |
| (–) Senior Exemption Loss: | – | $0 | |
| (–) Exemption Loss: | – | $0 | |
| | | -------------------------- | |
| (=) Taxable Value: | = | $1,642,553 | |
Taxing Jurisdiction
| Owner: | DAVID JOHN MORRIS | | |
| % Ownership: | 100.0000000000% | | |
| Total Value: | N/A | | |
| Tax Area: | 0213 - 1-49F1E1H2L1 |
| CE | COUNTY CURRENT EXPENSE | N/A | N/A | N/A | N/A | | |
| CNTYDD | DEVELOPMENTAL DISABILITIES | N/A | N/A | N/A | N/A | | |
| CNTYVET | VETERANS RELIEF | N/A | N/A | N/A | N/A | | |
| MENTAL | MENTAL HEALTH | N/A | N/A | N/A | N/A | | |
| ROADS | COUNTY ROADS | N/A | N/A | N/A | N/A | | |
| ROADSCU | COUNTY ROADS TO CUR EXP | N/A | N/A | N/A | N/A | | |
| HOSP2CASH | HOSP DIST #2 GENERAL | N/A | N/A | N/A | N/A | | |
| SCH49CP | SCHOOL DIST #49 CAP PROJ | N/A | N/A | N/A | N/A | | |
| SCH49MO | SCHOOL DIST #49 EP & O | N/A | N/A | N/A | N/A | | |
| CONSERVE | CONSERVATION FUTURES | N/A | N/A | N/A | N/A | | |
| EMS1 | FIRE DIST #1 EMS | N/A | N/A | N/A | N/A | | |
| FD1 | FIRE DIST #1 GENERAL | N/A | N/A | N/A | N/A | | |
| LIB1 | LIBRARY DIST #1 GENERAL | N/A | N/A | N/A | N/A | | |
| PORTPT | PORT OF PT GENERAL | N/A | N/A | N/A | N/A | | |
| PORTPTIDD | PORT OF PT IDD 2019 | N/A | N/A | N/A | N/A | | |
| PUD1 | PUD #1 GENERAL | N/A | N/A | N/A | N/A | | |
| STATE | STATE SCHOOL PART 1 | N/A | N/A | N/A | N/A | | |
| STATE2 | STATE SCHOOL PART 2 | N/A | N/A | N/A | N/A | | |
| | Total Tax Rate: | N/A | | | | | |
| | | | | Taxes w/Current Exemptions: | N/A | | |
| | | | | Taxes w/o Exemptions: | N/A | | |
Improvement / Building
| Improvement #1: | Residential Bldg | State Code: | 11 | 0.0 sqft | Value: | $44,315 |
| Improvement #2: | Residential Bldg | State Code: | 11 | 3010.0 sqft | Value: | $1,036,175 |
| Bathrooms (#): | 5 (FULL) | Bedrooms (#): | 3 | | Exterior Wall: | SI/ST | Foundation: | CONPR | | Heating/Cooling: | F/A | Roof Cover: | METAL |
|
| | Type | Description | Class CD | Sub Class CD | Year Built | Area |
| | MA | Main Area | 5 | 2S | 2019 | 2034.0 |
| | MA2 | Second Floor Main Area | 5 | 2S | 2019 | 976.0 |
| | BSMTF | House basement finished | 5 | 2S | 2019 | 1332.0 |
| | BSMTU | House basement unfinished | 3 | 2S | 2019 | 694.0 |
| | GATT | House Attached Garage | 4 | * | 2019 | 612.0 |
| | HDECK | House Deck | 4 | * | 2019 | 891.0 |
Sketch
| No sketches available for this property. |
Property Image
Land
| 1 | 9301F | Tidelands | 0.0000 | 0.00 | 0.00 | 0.00 | 0.00 | $6,567 | $0 |
| 2 | 3312-1555A | Fair-Avg Water Views <6 Acres | 2.3800 | 103672.80 | 0.00 | 0.00 | 0.00 | $49,266 | $0 |
| 3 | 3312-1127F | Medium to High Bank Wtrft | 0.0000 | 0.00 | 0.00 | 0.00 | 0.00 | $356,500 | $0 |
| 4 | 3312-1127F | Medium to High Bank Wtrft | 0.0000 | 0.00 | 0.00 | 0.00 | 0.00 | $149,730 | $0 |
Roll Value History
| 2025 | N/A | N/A | N/A | N/A | N/A |
| 2024 | $1,035,469 | $537,625 | $0 | $1,573,094 | $1,573,094 |
| 2023 | $990,449 | $483,750 | $0 | $1,474,199 | $1,474,199 |
| 2022 | $945,428 | $473,990 | $0 | $1,419,418 | $1,419,418 |
| 2021 | $767,833 | $437,286 | $0 | $1,205,119 | $1,205,119 |
Deed and Sales History
| 1 | 08/03/2020 | MH | Mobile Home | | | | | | 0 | |
| 2 | 02/14/2014 | SWD | Statutory Warranty Deed | TIMOTHY H MORRIS | DAVID JOHN MORRIS | | | $141,667.00 | 120775 | |
| 3 | 01/27/2014 | SWD | Statutory Warranty Deed | ROBERT W MORRIS | DAVID JOHN MORRIS | | | $141,667.00 | 120774 | |
| 4 | 08/20/2008 | QCD | Quit Claim Deed | MORRIS, ALICE TRUSTEE | MORRIS, DAVID JOHN ET AL | 0 | 0 | $0.00 | 117762 | 0 |
| 5 | 08/20/2008 | QCD | Quit Claim Deed | MORRIS, ALICE J TRUSTEE O | MORRIS, DAVID JOHN, MORRIS, TI | 0 | 0 | $0.00 | 113213 | 0 |
| 6 | 10/14/2004 | QCD | Quit Claim Deed | MORRIS, JACK A/ALICE J | MORRIS, ALICE LIVING TRUST | 0 | 0 | $0.00 | 117761 | 0 |
| 7 | 10/14/2004 | QCD | Quit Claim Deed | MORRIS, JACK A/ALICE J | MORRIS, ALICE J TRUSTEE OF THE | 0 | 0 | $0.00 | 113212 | 0 |
| 8 | 08/12/1993 | SWD | Statutory Warranty Deed | MOE, HAROLD E/MARIANNE | MORRIS, JACK A/ALICE J | 0 | 0 | $50,000.00 | 71917 | 0 |
Payout Agreement
| No payout information available.. |