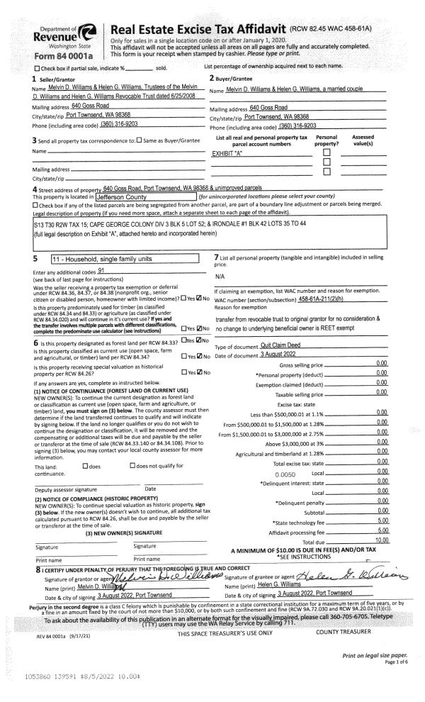
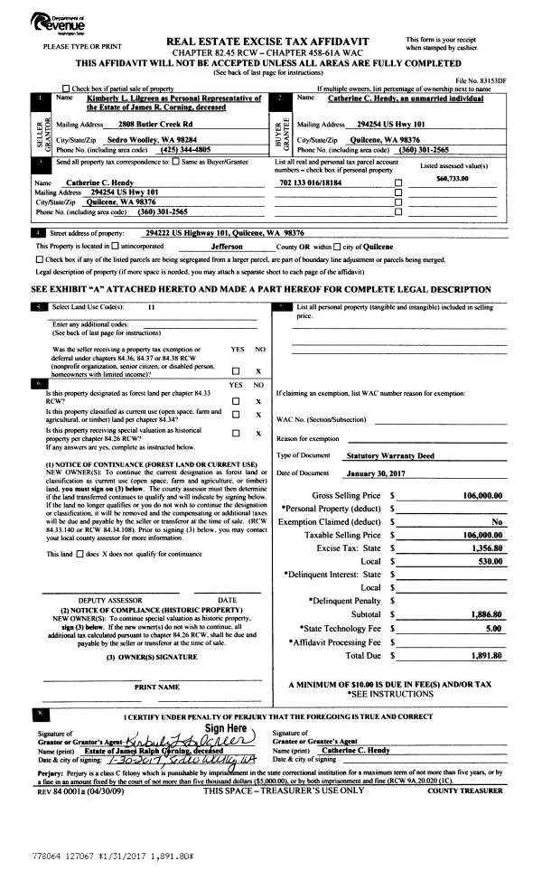
Property
Account |
| Property ID: | 20334 | Abbreviated Legal Description: | S6 T28 R1E GOV LOT 7(W OF CO RD)LS TX 3 SUBJ/EASE #504453 |
| Parcel # / Geo ID: | 821063004 | Agent Code: | |
| Type: | Real | | |
| Tax Area: | 0213 - 1-49F1E1H2L1 | Land Use Code | 83 |
| Open Space: | Y | DFL | N |
| Historic Property: | N | Remodel Property: | N |
| Multi-Family Redevelopment: | N | | |
| Township: | 28N | Section: | 6 |
| Range: | 1E |
Location |
| Address: | 3723 BEAVER VALLEY RD PORT LUDLOW, WA 98365 | Mapsco: | 151/035 |
| Neighborhood: | S6 &7 T28N R1E; R. WITTER SHORT PLAT | Map ID: | |
| Neighborhood CD: | 3315 |
Owner |
| Name: | ORDER OF THE WHITE LOTUS LLC | Owner ID: | 98309 |
| Mailing Address: | 3723 BEAVER VALLEY RD PORT LUDLOW, WA 98365 | % Ownership: | 100.0000000000% |
| | | Exemptions: | |
Pay Tax Due
There is currently No Amount Due on this property.
Taxes and Assessment Details
Property Tax Information as of
10/24/2025
Click on "Statement Details" to expand or collapse a tax statement.
* Please enter a valid date ** Please enter a valid date *
Statement Details |
| | TOTAL: | $0.00 | $0.00 | $0.00 | $0.00 | $0.00 | $0.00 |
|
| | $0.00 | $0.00 | $0.00 | $0.00 | $0.00 | $0.00 |
Values
| (+) Improvement Homesite Value: | + | $0 | |
| (+) Improvement Non-Homesite Value: | + | $427,036 | |
| (+) Land Homesite Value: | + | $0 | |
| (+) Land Non-Homesite Value: | + | $115,000 | |
| (+) Curr Use (HS): | + | $0 | $0 |
| (+) Curr Use (NHS): | + | $47,127 | $4,098 |
| | | -------------------------- | |
| (=) Market Value: | = | $589,163 | |
| (–) Productivity Loss: | – | $43,029 | |
| | | -------------------------- | |
| (=) Subtotal: | = | $546,134 | |
| (+) Senior Appraised Value: | + | $0 | |
| (+) Non-Senior Appraised Value: | + | $546,134 | |
| | | -------------------------- | |
| (=) Total Appraised Value: | = | $546,134 | |
| (–) Senior Exemption Loss: | – | $0 | |
| (–) Exemption Loss: | – | $0 | |
| | | -------------------------- | |
| (=) Taxable Value: | = | $546,134 | |
Taxing Jurisdiction
| Owner: | ORDER OF THE WHITE LOTUS LLC | | |
| % Ownership: | 100.0000000000% | | |
| Total Value: | N/A | | |
| Tax Area: | 0213 - 1-49F1E1H2L1 |
| CE | COUNTY CURRENT EXPENSE | N/A | N/A | N/A | N/A | | |
| CNTYDD | DEVELOPMENTAL DISABILITIES | N/A | N/A | N/A | N/A | | |
| CNTYVET | VETERANS RELIEF | N/A | N/A | N/A | N/A | | |
| MENTAL | MENTAL HEALTH | N/A | N/A | N/A | N/A | | |
| ROADS | COUNTY ROADS | N/A | N/A | N/A | N/A | | |
| ROADSCU | COUNTY ROADS TO CUR EXP | N/A | N/A | N/A | N/A | | |
| HOSP2CASH | HOSP DIST #2 GENERAL | N/A | N/A | N/A | N/A | | |
| SCH49CP | SCHOOL DIST #49 CAP PROJ | N/A | N/A | N/A | N/A | | |
| SCH49MO | SCHOOL DIST #49 EP & O | N/A | N/A | N/A | N/A | | |
| CONSERVE | CONSERVATION FUTURES | N/A | N/A | N/A | N/A | | |
| EMS1 | FIRE DIST #1 EMS | N/A | N/A | N/A | N/A | | |
| FD1 | FIRE DIST #1 GENERAL | N/A | N/A | N/A | N/A | | |
| LIB1 | LIBRARY DIST #1 GENERAL | N/A | N/A | N/A | N/A | | |
| PORTPT | PORT OF PT GENERAL | N/A | N/A | N/A | N/A | | |
| PORTPTIDD | PORT OF PT IDD 2019 | N/A | N/A | N/A | N/A | | |
| PUD1 | PUD #1 GENERAL | N/A | N/A | N/A | N/A | | |
| STATE | STATE SCHOOL PART 1 | N/A | N/A | N/A | N/A | | |
| STATE2 | STATE SCHOOL PART 2 | N/A | N/A | N/A | N/A | | |
| | Total Tax Rate: | N/A | | | | | |
| | | | | Taxes w/Current Exemptions: | N/A | | |
| | | | | Taxes w/o Exemptions: | N/A | | |
Improvement / Building
| Improvement #1: | Residential Bldg | State Code: | 11 | 2074.0 sqft | Value: | $427,036 |
| Bathrooms (#): | 2 (FULL) | Bedrooms (#): | 3 | | Exterior Wall: | SI/ST | Fireplace: | WD ST-GOOD | | Floor Construction: | FRAME | Foundation: | CONPR | | Heating/Cooling: | ELBB | Roof Cover: | COMP |
|
| | Type | Description | Class CD | Sub Class CD | Year Built | Area |
| | MA | Main Area | 3 | 1S | 1979 | 2074.0 |
| | HWPOR | House Wood Porch | 3 | 1S | 1979 | 722.0 |
| | BARN | Barn (Table Not Dep) | 1 | 1S | 1979 | 2304.0 |
| | GDET | Detached Garage | 1 | 1S | 1979 | 1152.0 |
| | BSMTU | House basement unfinished | 2 | 1S | 1979 | 800.0 |
Sketch
| No sketches available for this property. |
Property Image
Land
| 1 | 3315-1375S | Some/No Terr Views 1+/- Acre | 1.0000 | 43560.00 | 0.00 | 0.00 | 1.00 | $115,000 | $0 |
| 2 | 3315-8775A | Terr View Acreage Used Primarily for Pasture | 13.6600 | 595029.60 | 0.00 | 0.00 | 0.00 | $47,127 | $4,098 |
Roll Value History
| 2025 | N/A | N/A | N/A | N/A | N/A |
| 2024 | $409,242 | $155,078 | $4,098 | $523,340 | $523,340 |
| 2023 | $391,449 | $135,980 | $4,098 | $490,547 | $490,547 |
| 2022 | $373,656 | $130,980 | $4,098 | $467,754 | $467,754 |
| 2021 | $202,301 | $96,650 | $4,098 | $268,899 | $268,899 |
Deed and Sales History
| 1 | 11/13/2017 | SWD | Statutory Warranty Deed | CATHERINE B SAYERS | ORDER OF THE WHITE LOTUS LLC | | | $495,000.00 | 129044 | |
| 2 | 03/12/2013 | SWD | Statutory Warranty Deed | GARY E & MARGARET A WALTERS | CATHERINE B SAYERS | | | $370,000.00 | 118907 | |
Payout Agreement
| No payout information available.. |