Property
Account |
| Property ID: | 20351 | Abbreviated Legal Description: | S6 T28 R1E TAX 22 WITH & SUBJ TO EASE |
| Parcel # / Geo ID: | 821063023 | Agent Code: | |
| Type: | Real | | |
| Tax Area: | 0213 - 1-49F1E1H2L1 | Land Use Code | 19 |
| Open Space: | N | DFL | N |
| Historic Property: | N | Remodel Property: | N |
| Multi-Family Redevelopment: | N | | |
| Township: | 28N | Section: | 6 |
| Range: | 1E |
Location |
| Address: | 491 NO NAME RD PORT LUDLOW, WA 98365 | Mapsco: | 151/085 |
| Neighborhood: | S6 &7 T28N R1E; R. WITTER SHORT PLAT | Map ID: | |
| Neighborhood CD: | 3315 |
Owner |
| Name: | TRAVIS SKINNER | Owner ID: | 112888 |
| Mailing Address: | 3883 CENTERVIEW RD LUMMI ISLAND, WA 98262-8665 | % Ownership: | 100.0000000000% |
| | | Exemptions: | |
Pay Tax Due
There is currently No Amount Due on this property.
Taxes and Assessment Details
Property Tax Information as of
10/24/2025
Click on "Statement Details" to expand or collapse a tax statement.
* Please enter a valid date ** Please enter a valid date *
Statement Details |
| | TOTAL: | $0.00 | $0.00 | $0.00 | $0.00 | $0.00 | $0.00 |
|
| | $0.00 | $0.00 | $0.00 | $0.00 | $0.00 | $0.00 |
Values
| (+) Improvement Homesite Value: | + | $14,286 | |
| (+) Improvement Non-Homesite Value: | + | $0 | |
| (+) Land Homesite Value: | + | $157,613 | |
| (+) Land Non-Homesite Value: | + | $0 | |
| (+) Curr Use (HS): | + | $0 | $0 |
| (+) Curr Use (NHS): | + | $0 | $0 |
| | | -------------------------- | |
| (=) Market Value: | = | $171,899 | |
| (–) Productivity Loss: | – | $0 | |
| | | -------------------------- | |
| (=) Subtotal: | = | $171,899 | |
| (+) Senior Appraised Value: | + | $0 | |
| (+) Non-Senior Appraised Value: | + | $171,899 | |
| | | -------------------------- | |
| (=) Total Appraised Value: | = | $171,899 | |
| (–) Senior Exemption Loss: | – | $0 | |
| (–) Exemption Loss: | – | $0 | |
| | | -------------------------- | |
| (=) Taxable Value: | = | $171,899 | |
Taxing Jurisdiction
| Owner: | TRAVIS SKINNER | | |
| % Ownership: | 100.0000000000% | | |
| Total Value: | N/A | | |
| Tax Area: | 0213 - 1-49F1E1H2L1 |
| CE | COUNTY CURRENT EXPENSE | N/A | N/A | N/A | N/A | | |
| CNTYDD | DEVELOPMENTAL DISABILITIES | N/A | N/A | N/A | N/A | | |
| CNTYVET | VETERANS RELIEF | N/A | N/A | N/A | N/A | | |
| MENTAL | MENTAL HEALTH | N/A | N/A | N/A | N/A | | |
| ROADS | COUNTY ROADS | N/A | N/A | N/A | N/A | | |
| ROADSCU | COUNTY ROADS TO CUR EXP | N/A | N/A | N/A | N/A | | |
| HOSP2CASH | HOSP DIST #2 GENERAL | N/A | N/A | N/A | N/A | | |
| SCH49CP | SCHOOL DIST #49 CAP PROJ | N/A | N/A | N/A | N/A | | |
| SCH49MO | SCHOOL DIST #49 EP & O | N/A | N/A | N/A | N/A | | |
| CONSERVE | CONSERVATION FUTURES | N/A | N/A | N/A | N/A | | |
| EMS1 | FIRE DIST #1 EMS | N/A | N/A | N/A | N/A | | |
| FD1 | FIRE DIST #1 GENERAL | N/A | N/A | N/A | N/A | | |
| LIB1 | LIBRARY DIST #1 GENERAL | N/A | N/A | N/A | N/A | | |
| PORTPT | PORT OF PT GENERAL | N/A | N/A | N/A | N/A | | |
| PORTPTIDD | PORT OF PT IDD 2019 | N/A | N/A | N/A | N/A | | |
| PUD1 | PUD #1 GENERAL | N/A | N/A | N/A | N/A | | |
| STATE | STATE SCHOOL PART 1 | N/A | N/A | N/A | N/A | | |
| STATE2 | STATE SCHOOL PART 2 | N/A | N/A | N/A | N/A | | |
| | Total Tax Rate: | N/A | | | | | |
| | | | | Taxes w/Current Exemptions: | N/A | | |
| | | | | Taxes w/o Exemptions: | N/A | | |
Improvement / Building
| Improvement #1: | Residential Bldg | State Code: | 19 | 512.0 sqft | Value: | $14,286 |
| Exterior Wall: | PL/T1 | Floor Construction: | FRAME | | Foundation: | PO&BL | Heating/Cooling: | WD/NO | | Interior Finish: | FIN | Roof Cover: | COMP |
|
Sketch
| No sketches available for this property. |
Property Image
Land
| 1 | 3315-1375S | Some/No Terr Views 1+/- Acre | 1.0000 | 43560.00 | 0.00 | 0.00 | 1.00 | $86,250 | $0 |
| 2 | 1572A | Terr/Mtn/No View <6 Acres | 3.9400 | 171626.40 | 0.00 | 0.00 | 0.00 | $71,363 | $0 |
Roll Value History
| 2025 | N/A | N/A | N/A | N/A | N/A |
| 2024 | $13,691 | $113,922 | $0 | $127,613 | $127,613 |
| 2023 | $13,096 | $102,580 | $0 | $115,676 | $9,036 |
| 2022 | $12,500 | $99,610 | $0 | $112,110 | $9,036 |
| 2021 | $14,161 | $69,625 | $0 | $83,786 | $9,036 |
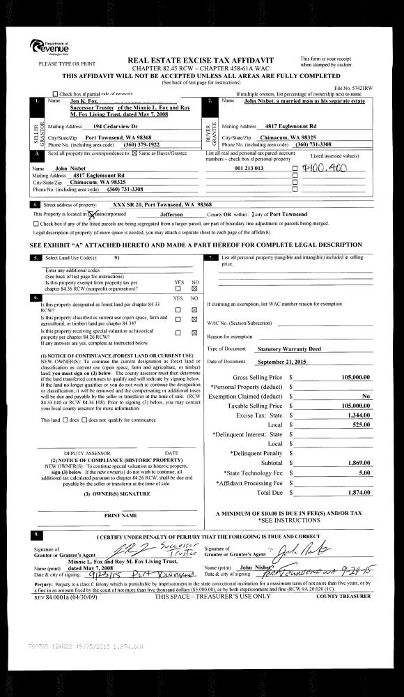
Deed and Sales History
| 1 | 06/28/2025 | SWD | Statutory Warranty Deed | BECKY EVASICK | TRAVIS SKINNER | | | $205,000.00 | 144538 | |
| 2 | 01/19/1993 | SWD | Statutory Warranty Deed | RADEBAUGH, GEORGE | EVASICK, PETER/BECKY | 0 | 0 | $30,000.00 | 70303 | 0 |
Payout Agreement
| No payout information available.. |