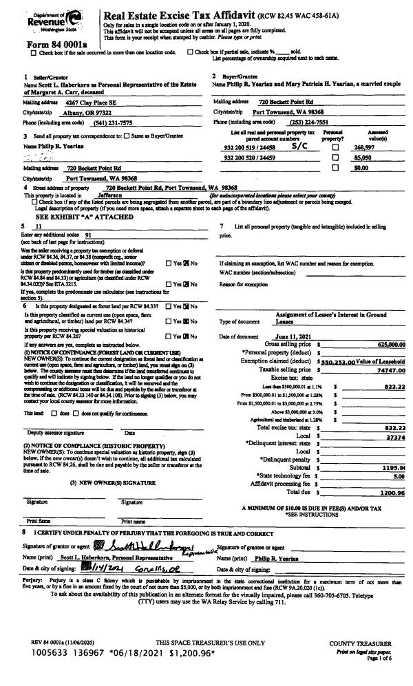
Property
Account |
| Property ID: | 20378 | Abbreviated Legal Description: | S8 T28 R1E N1/2 NW NE LESS TAX 57,58 |
| Parcel # / Geo ID: | 821081001 | Agent Code: | |
| Type: | Real | | |
| Tax Area: | 0213 - 1-49F1E1H2L1 | Land Use Code | 11 |
| Open Space: | N | DFL | N |
| Historic Property: | N | Remodel Property: | N |
| Multi-Family Redevelopment: | N | | |
| Township: | 28N | Section: | 8 |
| Range: | 1E |
Location |
| Address: | 2241 SWANSONVILLE RD PORT LUDLOW, WA 98365 | Mapsco: | 152/030 |
| Neighborhood: | S8 T28N R1E OUT SIDE MPR (SWANSONVILLE AREA LESS PL PLATS) | Map ID: | |
| Neighborhood CD: | 3325 |
Owner |
| Name: | SAMUEL B SWANSON II | Owner ID: | 104017 |
| Mailing Address: | 1136 NW CLONINGER CT SILVERDALE, WA 98383-8625 | % Ownership: | 100.0000000000% |
| | | Exemptions: | |
Pay Tax Due
There is currently No Amount Due on this property.
Taxes and Assessment Details
Property Tax Information as of
10/24/2025
Click on "Statement Details" to expand or collapse a tax statement.
* Please enter a valid date ** Please enter a valid date *
Statement Details |
| | TOTAL: | $0.00 | $0.00 | $0.00 | $0.00 | $0.00 | $0.00 |
|
| | $0.00 | $0.00 | $0.00 | $0.00 | $0.00 | $0.00 |
Values
| (+) Improvement Homesite Value: | + | $0 | |
| (+) Improvement Non-Homesite Value: | + | $1,369 | |
| (+) Land Homesite Value: | + | $0 | |
| (+) Land Non-Homesite Value: | + | $206,378 | |
| (+) Curr Use (HS): | + | $0 | $0 |
| (+) Curr Use (NHS): | + | $0 | $0 |
| | | -------------------------- | |
| (=) Market Value: | = | $207,747 | |
| (–) Productivity Loss: | – | $0 | |
| | | -------------------------- | |
| (=) Subtotal: | = | $207,747 | |
| (+) Senior Appraised Value: | + | $0 | |
| (+) Non-Senior Appraised Value: | + | $207,747 | |
| | | -------------------------- | |
| (=) Total Appraised Value: | = | $207,747 | |
| (–) Senior Exemption Loss: | – | $0 | |
| (–) Exemption Loss: | – | $0 | |
| | | -------------------------- | |
| (=) Taxable Value: | = | $207,747 | |
Taxing Jurisdiction
| Owner: | SAMUEL B SWANSON II | | |
| % Ownership: | 100.0000000000% | | |
| Total Value: | N/A | | |
| Tax Area: | 0213 - 1-49F1E1H2L1 |
| CE | COUNTY CURRENT EXPENSE | N/A | N/A | N/A | N/A | | |
| CNTYDD | DEVELOPMENTAL DISABILITIES | N/A | N/A | N/A | N/A | | |
| CNTYVET | VETERANS RELIEF | N/A | N/A | N/A | N/A | | |
| MENTAL | MENTAL HEALTH | N/A | N/A | N/A | N/A | | |
| ROADS | COUNTY ROADS | N/A | N/A | N/A | N/A | | |
| ROADSCU | COUNTY ROADS TO CUR EXP | N/A | N/A | N/A | N/A | | |
| HOSP2CASH | HOSP DIST #2 GENERAL | N/A | N/A | N/A | N/A | | |
| SCH49CP | SCHOOL DIST #49 CAP PROJ | N/A | N/A | N/A | N/A | | |
| SCH49MO | SCHOOL DIST #49 EP & O | N/A | N/A | N/A | N/A | | |
| CONSERVE | CONSERVATION FUTURES | N/A | N/A | N/A | N/A | | |
| EMS1 | FIRE DIST #1 EMS | N/A | N/A | N/A | N/A | | |
| FD1 | FIRE DIST #1 GENERAL | N/A | N/A | N/A | N/A | | |
| LIB1 | LIBRARY DIST #1 GENERAL | N/A | N/A | N/A | N/A | | |
| PORTPT | PORT OF PT GENERAL | N/A | N/A | N/A | N/A | | |
| PORTPTIDD | PORT OF PT IDD 2019 | N/A | N/A | N/A | N/A | | |
| PUD1 | PUD #1 GENERAL | N/A | N/A | N/A | N/A | | |
| STATE | STATE SCHOOL PART 1 | N/A | N/A | N/A | N/A | | |
| STATE2 | STATE SCHOOL PART 2 | N/A | N/A | N/A | N/A | | |
| | Total Tax Rate: | N/A | | | | | |
| | | | | Taxes w/Current Exemptions: | N/A | | |
| | | | | Taxes w/o Exemptions: | N/A | | |
Improvement / Building
| Improvement #1: | Residential Bldg | State Code: | 11 | 432.0 sqft | Value: | $1,369 |
| Bathrooms (#): | 1 (FULL) | Bedrooms (#): | 1 | | Exterior Wall: | SI/ST | Floor Construction: | FRAME | | Foundation: | PO&BL | Heating/Cooling: | OTHER | | Inside Verify: | YES-FIX | Interior Finish: | FIN | | Roof Cover: | ROLL |   |   |
|
| | Type | Description | Class CD | Sub Class CD | Year Built | Area |
| | MA | Main Area | 2 | C1S | 1994 | 432.0 |
| | SHED | Shed (Table Not Dep) | 2 | * | 1994 | 288.0 |
Sketch
Property Image
Land
| 1 | 1673A | Terr/Mtn/No View 6-15 Acres | 10.5600 | 459993.60 | 0.00 | 0.00 | 0.00 | $85,378 | $0 |
| 2 | 3325-1374S | Fair-Avg Terr Views 1+/- Acre | 1.0000 | 43560.00 | 0.00 | 0.00 | 1.00 | $121,000 | $0 |
Roll Value History
| 2025 | N/A | N/A | N/A | N/A | N/A |
| 2024 | $1,369 | $206,378 | $0 | $207,747 | $207,747 |
| 2023 | $1,309 | $178,920 | $0 | $180,229 | $180,229 |
| 2022 | $1,250 | $166,528 | $0 | $167,778 | $167,778 |
| 2021 | $16,520 | $139,883 | $0 | $156,403 | $156,403 |
Deed and Sales History
| 1 | 01/15/2021 | QCD | Quit Claim Deed | VALHALLA PROPERTY DEVELOPMENT LLC | SAMUEL B SWANSON II | | | | 135959 | |
| 2 | 07/17/2015 | QCD | Quit Claim Deed | SAMUEL B SWANSON | VALHALLA PROPERTY DEVELOPMENT LLC | | | | 123638 | |
| 3 | 07/17/2015 | QCD | Quit Claim Deed | JEAN E SWANSON TRUSTEE | SAMUEL B SWANSON | | | | 123637 | |
Payout Agreement
| No payout information available.. |