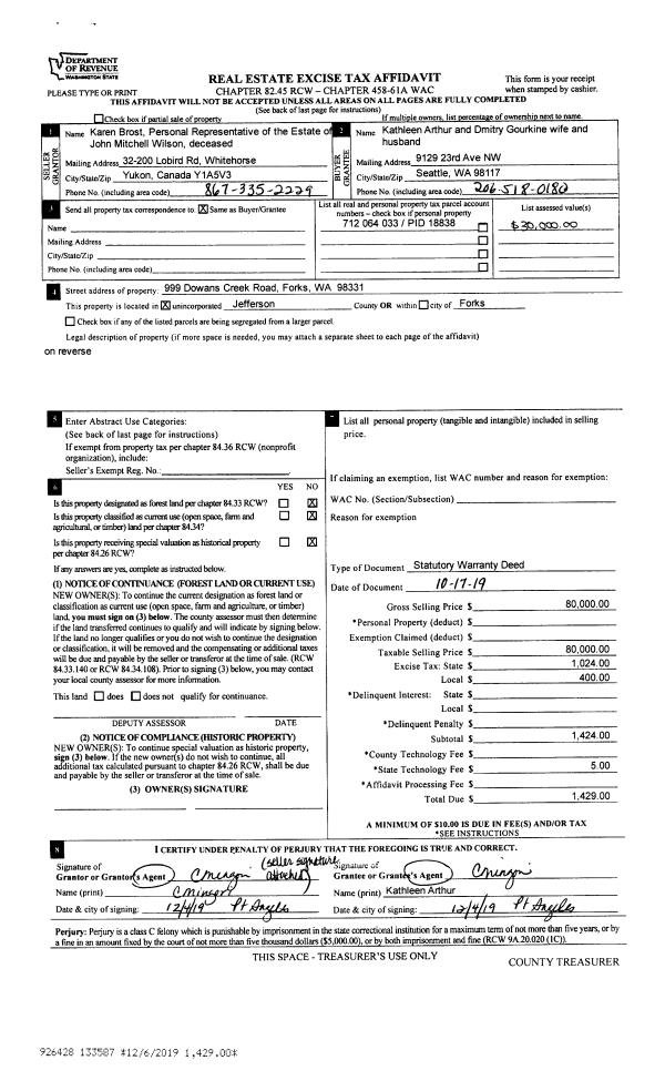
Property
Account |
| Property ID: | 20426 | Abbreviated Legal Description: | S8 T28 R1E TAX NO. 1 |
| Parcel # / Geo ID: | 821082013 | Agent Code: | |
| Type: | Real | | |
| Tax Area: | 0213 - 1-49F1E1H2L1 | Land Use Code | 11 |
| Open Space: | N | DFL | N |
| Historic Property: | N | Remodel Property: | N |
| Multi-Family Redevelopment: | N | | |
| Township: | 28N | Section: | 8 |
| Range: | 1E |
Location |
| Address: | 51 REUBEN JOHNSON RD PORT LUDLOW, WA 98365 | Mapsco: | 153/001 |
| Neighborhood: | S8 T28N R1E OUT SIDE MPR (SWANSONVILLE AREA LESS PL PLATS) | Map ID: | |
| Neighborhood CD: | 3325 |
Owner |
| Name: | ELYSIA HAYS | Owner ID: | 103231 |
| Mailing Address: | 51 REUBEN JOHNSON RD PORT LUDLOW, WA 98365-8713 | % Ownership: | 100.0000000000% |
| | | Exemptions: | |
Pay Tax Due
There is currently No Amount Due on this property.
Taxes and Assessment Details
Property Tax Information as of
10/24/2025
Click on "Statement Details" to expand or collapse a tax statement.
* Please enter a valid date ** Please enter a valid date *
Statement Details |
| | TOTAL: | $0.00 | $0.00 | $0.00 | $0.00 | $0.00 | $0.00 |
|
| | $0.00 | $0.00 | $0.00 | $0.00 | $0.00 | $0.00 |
Values
| (+) Improvement Homesite Value: | + | $0 | |
| (+) Improvement Non-Homesite Value: | + | $415,467 | |
| (+) Land Homesite Value: | + | $0 | |
| (+) Land Non-Homesite Value: | + | $121,000 | |
| (+) Curr Use (HS): | + | $0 | $0 |
| (+) Curr Use (NHS): | + | $0 | $0 |
| | | -------------------------- | |
| (=) Market Value: | = | $536,467 | |
| (–) Productivity Loss: | – | $0 | |
| | | -------------------------- | |
| (=) Subtotal: | = | $536,467 | |
| (+) Senior Appraised Value: | + | $0 | |
| (+) Non-Senior Appraised Value: | + | $536,467 | |
| | | -------------------------- | |
| (=) Total Appraised Value: | = | $536,467 | |
| (–) Senior Exemption Loss: | – | $0 | |
| (–) Exemption Loss: | – | $0 | |
| | | -------------------------- | |
| (=) Taxable Value: | = | $536,467 | |
Taxing Jurisdiction
| Owner: | ELYSIA HAYS | | |
| % Ownership: | 100.0000000000% | | |
| Total Value: | N/A | | |
| Tax Area: | 0213 - 1-49F1E1H2L1 |
| CE | COUNTY CURRENT EXPENSE | N/A | N/A | N/A | N/A | | |
| CNTYDD | DEVELOPMENTAL DISABILITIES | N/A | N/A | N/A | N/A | | |
| CNTYVET | VETERANS RELIEF | N/A | N/A | N/A | N/A | | |
| MENTAL | MENTAL HEALTH | N/A | N/A | N/A | N/A | | |
| ROADS | COUNTY ROADS | N/A | N/A | N/A | N/A | | |
| ROADSCU | COUNTY ROADS TO CUR EXP | N/A | N/A | N/A | N/A | | |
| HOSP2CASH | HOSP DIST #2 GENERAL | N/A | N/A | N/A | N/A | | |
| SCH49CP | SCHOOL DIST #49 CAP PROJ | N/A | N/A | N/A | N/A | | |
| SCH49MO | SCHOOL DIST #49 EP & O | N/A | N/A | N/A | N/A | | |
| CONSERVE | CONSERVATION FUTURES | N/A | N/A | N/A | N/A | | |
| EMS1 | FIRE DIST #1 EMS | N/A | N/A | N/A | N/A | | |
| FD1 | FIRE DIST #1 GENERAL | N/A | N/A | N/A | N/A | | |
| LIB1 | LIBRARY DIST #1 GENERAL | N/A | N/A | N/A | N/A | | |
| PORTPT | PORT OF PT GENERAL | N/A | N/A | N/A | N/A | | |
| PORTPTIDD | PORT OF PT IDD 2019 | N/A | N/A | N/A | N/A | | |
| PUD1 | PUD #1 GENERAL | N/A | N/A | N/A | N/A | | |
| STATE | STATE SCHOOL PART 1 | N/A | N/A | N/A | N/A | | |
| STATE2 | STATE SCHOOL PART 2 | N/A | N/A | N/A | N/A | | |
| | Total Tax Rate: | N/A | | | | | |
| | | | | Taxes w/Current Exemptions: | N/A | | |
| | | | | Taxes w/o Exemptions: | N/A | | |
Improvement / Building
| Improvement #1: | Residential Bldg | State Code: | 11 | 2163.0 sqft | Value: | $415,467 |
| Exterior Wall: | SI/ST | Fireplace: | WD ST-GOOD | | Floor Construction: | FRAME | Foundation: | PO&BL | | Heating/Cooling: | ELBB | Roof Cover: | METAL |
|
| | Type | Description | Class CD | Sub Class CD | Year Built | Area |
| | MA | Main Area | 4+ | 15SF | 1920 | 1379.0 |
| | MA2 | Second Floor Main Area | 4+ | 15SF | 1920 | 784.0 |
| | HWPOR | House Wood Porch | 4 | * | 1920 | 204.0 |
| | HDECK | House Deck | 4 | * | 1920 | 336.0 |
| | GBSMT | Basement Garage | 4 | 15SF | 1920 | 672.0 |
| | CARPT | Carport (Table Not Dep) | 1 | * | 1920 | 210.0 |
| | GARAG | Garage (Table Not Dep) | 3 | * | 1920 | 1080.0 |
| | ASPHD | Asphalt Drive | 4 | * | 1920 | 500.0 |
Sketch
Property Image
Land
| 1 | 3325-1374S | Fair-Avg Terr Views 1+/- Acre | 0.0000 | 0.00 | 0.00 | 0.00 | 1.00 | $121,000 | $0 |
Roll Value History
| 2025 | N/A | N/A | N/A | N/A | N/A |
| 2024 | $415,467 | $121,000 | $0 | $536,467 | $536,467 |
| 2023 | $397,404 | $105,000 | $0 | $502,404 | $502,404 |
| 2022 | $379,340 | $100,000 | $0 | $479,340 | $479,340 |
| 2021 | $312,984 | $89,063 | $0 | $402,047 | $402,047 |
Deed and Sales History
| 1 | 03/07/2019 | SWD | Statutory Warranty Deed | HAYS FAMILY TRUST | ELYSIA HAYS | | | | 135014 | |
| 2 | 02/27/2019 | SWD | Statutory Warranty Deed | KEITH & CONSTANCE HAYS | HAYS FAMILY TRUST | | | | 131852 | |
| 3 | 09/22/2017 | SWD | Statutory Warranty Deed | JULIA & ROBERT KILCULLEN | KEITH & CONSTANCE HAYS | | | $375,000.00 | 128646 | |
| 4 | 12/03/2015 | SPWD | Special Warranty Deed | PENNYMAC CORP | JULIA & ROBERT KILCULLEN | | | $272,000.00 | 124639 | |
| 5 | 02/13/2014 | QCD | Quit Claim Deed | CITIBANK N.A. TRSTE FOR CMLTI ASSET TRUST | PENNYMAC CORP | | | | 120793 | |
| 6 | 11/19/2013 | TRED | Trustee Deed | BISHOP, MARSHALL & WEIBEL | CITIBANK N.A. TRSTE FOR CMLTI ASSET TRUST | | | | 120327 | |
| 7 | 07/24/2007 | SWD | Statutory Warranty Deed | FISCHER, GERALDINE M/TODD | ALLEN, BRETT D/APRIL T | | | $270,000.00 | 109745 | 0 |
| 8 | 02/15/2006 | QCD | Quit Claim Deed | FISCHER, GERALDINE M | FISCHER, GERALDINE/TODD | 0 | 0 | $0.00 | 106060 | 0 |
| 9 | 12/09/2004 | SWD | Statutory Warranty Deed | ANDERSON, DAVID W/SANDRA | FISCHER, GERALDINE M | 0 | 0 | $182,500.00 | 102243 | 0 |
| 10 | 12/09/2004 | QCD | Quit Claim Deed | FISCHER, TODD D | FISCHER, GERALDINE M | 0 | 0 | $0.00 | 102244 | 0 |
Payout Agreement
| No payout information available.. |