Property
Account |
| Property ID: | 20473 | Abbreviated Legal Description: | PORT LUDLOW NO 6 LOT 5 V9/P40-41 8/17-28N-R1E |
| Parcel # / Geo ID: | 821085005 | Agent Code: | |
| Type: | Real | | |
| Tax Area: | 0213 - 1-49F1E1H2L1 | Land Use Code | 11 |
| Open Space: | N | DFL | N |
| Historic Property: | N | Remodel Property: | N |
| Multi-Family Redevelopment: | N | | |
| Township: | 28N | Section: | 8 |
| Range: | 1E |
Location |
| Address: | 501 OSPREY RIDGE DR PORT LUDLOW, WA 98365 | Mapsco: | 253/082 |
| Neighborhood: | PORT LUDLOW #6 / S8 T28N R1E | Map ID: | |
| Neighborhood CD: | 3336 |
Owner |
| Name: | KIARA KUKES | Owner ID: | 105011 |
| Mailing Address: | 501 OSPREY RIDGE DR PORT LUDLOW, WA 98365-8788 | % Ownership: | 100.0000000000% |
| | | Exemptions: | |
Pay Tax Due
There is currently No Amount Due on this property.
Taxes and Assessment Details
Property Tax Information as of
10/24/2025
Click on "Statement Details" to expand or collapse a tax statement.
* Please enter a valid date ** Please enter a valid date *
Statement Details |
| | TOTAL: | $0.00 | $0.00 | $0.00 | $0.00 | $0.00 | $0.00 |
|
| | $0.00 | $0.00 | $0.00 | $0.00 | $0.00 | $0.00 |
Values
| (+) Improvement Homesite Value: | + | $0 | |
| (+) Improvement Non-Homesite Value: | + | $884,989 | |
| (+) Land Homesite Value: | + | $0 | |
| (+) Land Non-Homesite Value: | + | $194,590 | |
| (+) Curr Use (HS): | + | $0 | $0 |
| (+) Curr Use (NHS): | + | $0 | $0 |
| | | -------------------------- | |
| (=) Market Value: | = | $1,079,579 | |
| (–) Productivity Loss: | – | $0 | |
| | | -------------------------- | |
| (=) Subtotal: | = | $1,079,579 | |
| (+) Senior Appraised Value: | + | $0 | |
| (+) Non-Senior Appraised Value: | + | $1,079,579 | |
| | | -------------------------- | |
| (=) Total Appraised Value: | = | $1,079,579 | |
| (–) Senior Exemption Loss: | – | $0 | |
| (–) Exemption Loss: | – | $0 | |
| | | -------------------------- | |
| (=) Taxable Value: | = | $1,079,579 | |
Taxing Jurisdiction
| Owner: | KIARA KUKES | | |
| % Ownership: | 100.0000000000% | | |
| Total Value: | N/A | | |
| Tax Area: | 0213 - 1-49F1E1H2L1 |
| CE | COUNTY CURRENT EXPENSE | N/A | N/A | N/A | N/A | | |
| CNTYDD | DEVELOPMENTAL DISABILITIES | N/A | N/A | N/A | N/A | | |
| CNTYVET | VETERANS RELIEF | N/A | N/A | N/A | N/A | | |
| MENTAL | MENTAL HEALTH | N/A | N/A | N/A | N/A | | |
| ROADS | COUNTY ROADS | N/A | N/A | N/A | N/A | | |
| ROADSCU | COUNTY ROADS TO CUR EXP | N/A | N/A | N/A | N/A | | |
| HOSP2CASH | HOSP DIST #2 GENERAL | N/A | N/A | N/A | N/A | | |
| SCH49CP | SCHOOL DIST #49 CAP PROJ | N/A | N/A | N/A | N/A | | |
| SCH49MO | SCHOOL DIST #49 EP & O | N/A | N/A | N/A | N/A | | |
| CONSERVE | CONSERVATION FUTURES | N/A | N/A | N/A | N/A | | |
| EMS1 | FIRE DIST #1 EMS | N/A | N/A | N/A | N/A | | |
| FD1 | FIRE DIST #1 GENERAL | N/A | N/A | N/A | N/A | | |
| LIB1 | LIBRARY DIST #1 GENERAL | N/A | N/A | N/A | N/A | | |
| PORTPT | PORT OF PT GENERAL | N/A | N/A | N/A | N/A | | |
| PORTPTIDD | PORT OF PT IDD 2019 | N/A | N/A | N/A | N/A | | |
| PUD1 | PUD #1 GENERAL | N/A | N/A | N/A | N/A | | |
| STATE | STATE SCHOOL PART 1 | N/A | N/A | N/A | N/A | | |
| STATE2 | STATE SCHOOL PART 2 | N/A | N/A | N/A | N/A | | |
| | Total Tax Rate: | N/A | | | | | |
| | | | | Taxes w/Current Exemptions: | N/A | | |
| | | | | Taxes w/o Exemptions: | N/A | | |
Improvement / Building
| Improvement #1: | Residential Bldg | State Code: | 11 | 2120.0 sqft | Value: | $884,989 |
| Bathrooms (#): | 2 (FULL) | Bathrooms (#): | 1 (HALF) | | Bedrooms (#): | 3 | Exterior Wall: | SI/ST | | Fireplace: | SIN 1-GOOD | Fireplace: | WD ST-GOOD | | Floor Construction: | FRAME | Foundation: | CONPR | | Heating/Cooling: | HPUMP | Inside Verify: | YES-FIX | | Roof Cover: | COMP |   |   |
|
| | Type | Description | Class CD | Sub Class CD | Year Built | Area |
| | MA | Main Area | 5 | 1S | 1990 | 2120.0 |
| | HWPOR | House Wood Porch | 5 | * | 1990 | 240.0 |
| | HDECK | House Deck | 5 | * | 1990 | 884.0 |
| | GATT | House Attached Garage | 5 | 1S | 1990 | 720.0 |
| | BARN | Barn (Table Not Dep) | 5 | * | 1990 | 1500.0 |
| | OTHER | Other | * | * | 1990 | 0.0 |
| | ASPHD | Asphalt Drive | 5 | * | 1990 | 1970.0 |
| | ADDN | Addition (Table Not Dep) | 3 | ADU | 1990 | 1500.0 |
Sketch
| No sketches available for this property. |
Property Image
Land
| 1 | 3336-1365S | Fair/Filtered Wtr/Terr View Sites 1+/- Acre in MPR | 1.0000 | 43560.00 | 0.00 | 0.00 | 1.00 | $159,500 | $0 |
| 2 | 1577A | Terr/Mtn/No View <6 Acres | 4.4000 | 191664.00 | 0.00 | 0.00 | 1.00 | $35,090 | $0 |
Roll Value History
| 2025 | N/A | N/A | N/A | N/A | N/A |
| 2024 | $884,989 | $185,745 | $0 | $1,070,734 | $1,070,734 |
| 2023 | $848,115 | $170,800 | $0 | $1,018,915 | $1,018,915 |
| 2022 | $734,419 | $163,600 | $0 | $898,019 | $898,019 |
| 2021 | $535,560 | $145,600 | $0 | $681,160 | $681,160 |
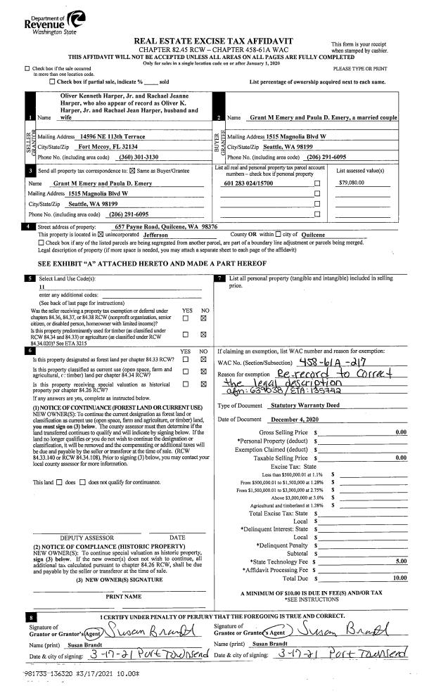
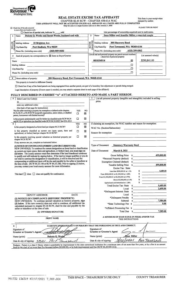
Deed and Sales History
| 1 | 06/11/2021 | QCD | Quit Claim Deed | DANNY BAIRD | KIARA KUKES | | | | 136937 | |
| 2 | 06/11/2021 | SWD | Statutory Warranty Deed | DOUGLAS S HENDERSON TRSTE | KIARA KUKES | | | $974,000.00 | 136989 | |
| 3 | 01/27/2011 | QCD | Quit Claim Deed | HENDERSON, DOUGLAS S/LIND | HENDERSON, DOUGLAS S/LINDA E F | 0 | 0 | $0.00 | 115498 | 0 |
| 4 | 09/14/2004 | SWD | Statutory Warranty Deed | HILBERT, KATHLEEN | HENDERSON, DOUGLAS S/LINDA E | 0 | 0 | $537,500.00 | 101521 | 0 |
Payout Agreement
| No payout information available.. |