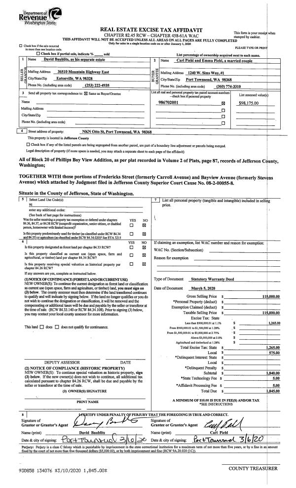
Property
Account |
| Property ID: | 20578 | Abbreviated Legal Description: | PORT LUDLOW NO 6 LOT 8 V9/P40-41 8/17-28N-R1E |
| Parcel # / Geo ID: | 821175001 | Agent Code: | |
| Type: | Real | | |
| Tax Area: | 0213 - 1-49F1E1H2L1 | Land Use Code | 11 |
| Open Space: | N | DFL | N |
| Historic Property: | N | Remodel Property: | N |
| Multi-Family Redevelopment: | N | | |
| Township: | 28N | Section: | 17 |
| Range: | 1E |
Location |
| Address: | 353 OSPREY RIDGE DR PORT LUDLOW, WA 98365 | Mapsco: | 253/085 |
| Neighborhood: | PORT LUDLOW #6 / S8 T28N R1E | Map ID: | |
| Neighborhood CD: | 3336 |
Owner |
| Name: | WILFRED SHELLY LITZLER LIVING TRUST | Owner ID: | 103756 |
| Mailing Address: | WILFRED S LITZLER TRUSTEE SANDRA M LITZLER TRUSTEE 353 OSPREY RIDGE DR PORT LUDLOW, WA 98365 | % Ownership: | 100.0000000000% |
| | | Exemptions: | |
Pay Tax Due
There is currently No Amount Due on this property.
Taxes and Assessment Details
Property Tax Information as of
10/24/2025
Click on "Statement Details" to expand or collapse a tax statement.
* Please enter a valid date ** Please enter a valid date *
Statement Details |
| | TOTAL: | $0.00 | $0.00 | $0.00 | $0.00 | $0.00 | $0.00 |
|
| | $0.00 | $0.00 | $0.00 | $0.00 | $0.00 | $0.00 |
Values
| (+) Improvement Homesite Value: | + | $0 | |
| (+) Improvement Non-Homesite Value: | + | $788,728 | |
| (+) Land Homesite Value: | + | $0 | |
| (+) Land Non-Homesite Value: | + | $241,448 | |
| (+) Curr Use (HS): | + | $0 | $0 |
| (+) Curr Use (NHS): | + | $0 | $0 |
| | | -------------------------- | |
| (=) Market Value: | = | $1,030,176 | |
| (–) Productivity Loss: | – | $0 | |
| | | -------------------------- | |
| (=) Subtotal: | = | $1,030,176 | |
| (+) Senior Appraised Value: | + | $0 | |
| (+) Non-Senior Appraised Value: | + | $1,030,176 | |
| | | -------------------------- | |
| (=) Total Appraised Value: | = | $1,030,176 | |
| (–) Senior Exemption Loss: | – | $0 | |
| (–) Exemption Loss: | – | $0 | |
| | | -------------------------- | |
| (=) Taxable Value: | = | $1,030,176 | |
Taxing Jurisdiction
| Owner: | WILFRED SHELLY LITZLER LIVING TRUST | | |
| % Ownership: | 100.0000000000% | | |
| Total Value: | N/A | | |
| Tax Area: | 0213 - 1-49F1E1H2L1 |
| CE | COUNTY CURRENT EXPENSE | N/A | N/A | N/A | N/A | | |
| CNTYDD | DEVELOPMENTAL DISABILITIES | N/A | N/A | N/A | N/A | | |
| CNTYVET | VETERANS RELIEF | N/A | N/A | N/A | N/A | | |
| MENTAL | MENTAL HEALTH | N/A | N/A | N/A | N/A | | |
| ROADS | COUNTY ROADS | N/A | N/A | N/A | N/A | | |
| ROADSCU | COUNTY ROADS TO CUR EXP | N/A | N/A | N/A | N/A | | |
| HOSP2CASH | HOSP DIST #2 GENERAL | N/A | N/A | N/A | N/A | | |
| SCH49CP | SCHOOL DIST #49 CAP PROJ | N/A | N/A | N/A | N/A | | |
| SCH49MO | SCHOOL DIST #49 EP & O | N/A | N/A | N/A | N/A | | |
| CONSERVE | CONSERVATION FUTURES | N/A | N/A | N/A | N/A | | |
| EMS1 | FIRE DIST #1 EMS | N/A | N/A | N/A | N/A | | |
| FD1 | FIRE DIST #1 GENERAL | N/A | N/A | N/A | N/A | | |
| LIB1 | LIBRARY DIST #1 GENERAL | N/A | N/A | N/A | N/A | | |
| PORTPT | PORT OF PT GENERAL | N/A | N/A | N/A | N/A | | |
| PORTPTIDD | PORT OF PT IDD 2019 | N/A | N/A | N/A | N/A | | |
| PUD1 | PUD #1 GENERAL | N/A | N/A | N/A | N/A | | |
| STATE | STATE SCHOOL PART 1 | N/A | N/A | N/A | N/A | | |
| STATE2 | STATE SCHOOL PART 2 | N/A | N/A | N/A | N/A | | |
| | Total Tax Rate: | N/A | | | | | |
| | | | | Taxes w/Current Exemptions: | N/A | | |
| | | | | Taxes w/o Exemptions: | N/A | | |
Improvement / Building
| Improvement #1: | Residential Bldg | State Code: | 11 | 1793.0 sqft | Value: | $788,728 |
| Bathrooms (#): | 3 (FULL) | Bedrooms (#): | 4 | | Exterior Wall: | SI/ST | Fireplace: | SIN 1-GOOD | | Floor Construction: | FRAME | Foundation: | CONPR | | Heating/Cooling: | HPUMP | Inside Verify: | YES-FIX | | Roof Cover: | COMP |   |   |
|
| | Type | Description | Class CD | Sub Class CD | Year Built | Area |
| | MA | Main Area | 5 | 1S | 2004 | 1793.0 |
| | PATIO | House Patio | 4 | * | 2004 | 850.0 |
| | HCPOR | House Concrete Porch | 4 | * | 2004 | 309.0 |
| | GATT | House Attached Garage | 4 | 1S | 2004 | 550.0 |
| | BARN | Barn (Table Not Dep) | 3 | * | 2004 | 1728.0 |
| | BSMTF | House basement finished | 4 | * | 2004 | 1112.8 |
| | GARAG | Garage (Table Not Dep) | 4 | * | 2004 | 1200.0 |
| | HRPO | House Roof Patio | 4 | * | 2004 | 576.0 |
| | CONCD | Concrete Drive | 4 | * | 2004 | 800.0 |
| | BSMTU | House basement unfinished | 4 | * | 2004 | 599.2 |
Sketch
| No sketches available for this property. |
Property Image
Land
| 1 | 3336-1365S | Fair/Filtered Wtr/Terr View Sites 1+/- Acre in MPR | 1.0000 | 43560.00 | 0.00 | 0.00 | 1.00 | $159,500 | $0 |
| 2 | 1572A | Terr/Mtn/No View <6 Acres | 4.7300 | 206038.80 | 0.00 | 0.00 | 1.00 | $81,948 | $0 |
Roll Value History
| 2025 | N/A | N/A | N/A | N/A | N/A |
| 2024 | $788,728 | $230,473 | $0 | $1,019,201 | $1,019,201 |
| 2023 | $755,864 | $210,950 | $0 | $966,814 | $966,814 |
| 2022 | $723,000 | $196,490 | $0 | $919,490 | $919,490 |
| 2021 | $532,365 | $172,341 | $0 | $704,706 | $704,706 |
Deed and Sales History
| 1 | 11/24/2020 | QCD | Quit Claim Deed | WILFRED S LITZLER | WILFRED SHELLY LITZLER LIVING TRUST | | | | 135626 | |
| 2 | 06/01/2018 | SWD | Statutory Warranty Deed | RICHARD & JUDITH SMITH LIVING TRUST | WILFRED S LITZLER | | | $829,000.00 | 130354 | |
| 3 | 03/08/2011 | QCD | Quit Claim Deed | SMITH, RICHARD E/JUDITH A | SMITH LIVING TRUST | 0 | 0 | $0.00 | 115663 | 0 |
| 4 | 02/21/2001 | SWD | Statutory Warranty Deed | DWYER, DAVID S/NANCY M | SMITH, RICHARD E/JUDITH A | 0 | 0 | $95,000.00 | 91683 | 0 |
Payout Agreement
| No payout information available.. |