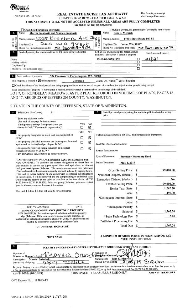
Property
Account |
| Property ID: | 20592 | Abbreviated Legal Description: | S18 T28 R1E TAX 24 |
| Parcel # / Geo ID: | 821181012 | Agent Code: | |
| Type: | Real | | |
| Tax Area: | 0203 - 1-49E1H2L1 | Land Use Code | 88 |
| Open Space: | N | DFL | Y |
| Historic Property: | N | Remodel Property: | N |
| Multi-Family Redevelopment: | N | | |
| Township: | 28N | Section: | 18 |
| Range: | 1E |
Location |
| Address: | | Mapsco: | 157/047 |
| Neighborhood: | S18 & S19 T28N R1E (LESS MPR) | Map ID: | |
| Neighborhood CD: | 3320 |
Owner |
| Name: | CLEAVER WOOD PROPERTIES | Owner ID: | 101942 |
| Mailing Address: | 16380 CANDY LOOP NE POULSBO, WA 98370-7866 | % Ownership: | 100.0000000000% |
| | | Exemptions: | |
Pay Tax Due
There is currently No Amount Due on this property.
Taxes and Assessment Details
Property Tax Information as of
10/24/2025
Click on "Statement Details" to expand or collapse a tax statement.
* Please enter a valid date ** Please enter a valid date *
Statement Details |
| | TOTAL: | $0.00 | $0.00 | $0.00 | $0.00 | $0.00 | $0.00 |
|
| | $0.00 | $0.00 | $0.00 | $0.00 | $0.00 | $0.00 |
Values
| (+) Improvement Homesite Value: | + | $0 | |
| (+) Improvement Non-Homesite Value: | + | $0 | |
| (+) Land Homesite Value: | + | $0 | |
| (+) Land Non-Homesite Value: | + | $0 | |
| (+) Curr Use (HS): | + | $0 | $0 |
| (+) Curr Use (NHS): | + | $340,240 | $4,673 |
| | | -------------------------- | |
| (=) Market Value: | = | $340,240 | |
| (–) Productivity Loss: | – | $335,567 | |
| | | -------------------------- | |
| (=) Subtotal: | = | $4,673 | |
| (+) Senior Appraised Value: | + | $0 | |
| (+) Non-Senior Appraised Value: | + | $4,673 | |
| | | -------------------------- | |
| (=) Total Appraised Value: | = | $4,673 | |
| (–) Senior Exemption Loss: | – | $0 | |
| (–) Exemption Loss: | – | $0 | |
| | | -------------------------- | |
| (=) Taxable Value: | = | $4,673 | |
Taxing Jurisdiction
| Owner: | CLEAVER WOOD PROPERTIES | | |
| % Ownership: | 100.0000000000% | | |
| Total Value: | N/A | | |
| Tax Area: | 0203 - 1-49E1H2L1 |
| CE | COUNTY CURRENT EXPENSE | N/A | N/A | N/A | N/A | | |
| CNTYDD | DEVELOPMENTAL DISABILITIES | N/A | N/A | N/A | N/A | | |
| CNTYVET | VETERANS RELIEF | N/A | N/A | N/A | N/A | | |
| MENTAL | MENTAL HEALTH | N/A | N/A | N/A | N/A | | |
| ROADS | COUNTY ROADS | N/A | N/A | N/A | N/A | | |
| ROADSCU | COUNTY ROADS TO CUR EXP | N/A | N/A | N/A | N/A | | |
| HOSP2CASH | HOSP DIST #2 GENERAL | N/A | N/A | N/A | N/A | | |
| SCH49CP | SCHOOL DIST #49 CAP PROJ | N/A | N/A | N/A | N/A | | |
| SCH49MO | SCHOOL DIST #49 EP & O | N/A | N/A | N/A | N/A | | |
| CONSERVE | CONSERVATION FUTURES | N/A | N/A | N/A | N/A | | |
| EMS1 | FIRE DIST #1 EMS | N/A | N/A | N/A | N/A | | |
| LIB1 | LIBRARY DIST #1 GENERAL | N/A | N/A | N/A | N/A | | |
| PORTPT | PORT OF PT GENERAL | N/A | N/A | N/A | N/A | | |
| PORTPTIDD | PORT OF PT IDD 2019 | N/A | N/A | N/A | N/A | | |
| PUD1 | PUD #1 GENERAL | N/A | N/A | N/A | N/A | | |
| STATE | STATE SCHOOL PART 1 | N/A | N/A | N/A | N/A | | |
| STATE2 | STATE SCHOOL PART 2 | N/A | N/A | N/A | N/A | | |
| | Total Tax Rate: | N/A | | | | | |
| | | | | Taxes w/Current Exemptions: | N/A | | |
| | | | | Taxes w/o Exemptions: | N/A | | |
Improvement / Building
Sketch
| No sketches available for this property. |
Property Image
Land
| 1 | 3320-1375S | Some/No Terr Views 1+/- Acre | 1.0000 | 43560.00 | 0.00 | 0.00 | 1.00 | $80,500 | $145 |
| 2 | 1973A | Terr/Mtn/No View >40 Acres | 3.8800 | 169012.80 | 0.00 | 0.00 | 0.00 | $25,657 | $563 |
| 3 | 1973A | Terr/Mtn/No View >40 Acres | 35.4000 | 1542024.00 | 0.00 | 0.00 | 0.00 | $234,083 | $3,965 |
Roll Value History
| 2025 | N/A | N/A | N/A | N/A | N/A |
| 2024 | $0 | $325,446 | $4,677 | $4,677 | $4,677 |
| 2023 | $0 | $286,040 | $4,597 | $4,597 | $4,597 |
| 2022 | $0 | $266,400 | $4,471 | $4,471 | $4,471 |
| 2021 | $0 | $246,400 | $4,471 | $4,471 | $4,471 |
Deed and Sales History
| 1 | 11/06/2019 | SWD | Statutory Warranty Deed | | | | | | 133736 | |
| 2 | 11/06/2019 | SWD | Statutory Warranty Deed | OPG PROPERTIES LLC | CLEAVER WOOD PROPERTIES | | | $1,100,000.00 | 133460 | |
|   | |
| 3 | 08/22/2005 | QCD | Quit Claim Deed | POPE RESOURCES | OPG PROPERTIES LLC | 0 | 0 | $0.00 | 104581 | 0 |
Payout Agreement
| No payout information available.. |