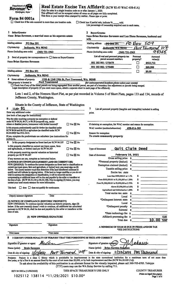
Property
Account |
| Property ID: | 20654 | Abbreviated Legal Description: | S23 T28 R1E LOT 1 (S100') |
| Parcel # / Geo ID: | 821233001 | Agent Code: | |
| Type: | Real | | |
| Tax Area: | 0213 - 1-49F1E1H2L1 | Land Use Code | 11 |
| Open Space: | N | DFL | N |
| Historic Property: | N | Remodel Property: | N |
| Multi-Family Redevelopment: | N | | |
| Township: | 28N | Section: | 23 |
| Range: | 1E |
Location |
| Address: | 301 SHORE RD PORT LUDLOW, WA 98365 | Mapsco: | 158/040 |
| Neighborhood: | WHITE ROCK COVE TRCTS DIV I, II, III, & IV; S26,25 T28N R1E | Map ID: | |
| Neighborhood CD: | 3370 |
Owner |
| Name: | MARA I MAUCH | Owner ID: | 21827 |
| Mailing Address: | 301 SHORE DR PORT LUDLOW, WA 98365-9320 | % Ownership: | 100.0000000000% |
| | | Exemptions: | |
Pay Tax Due
There is currently No Amount Due on this property.
Taxes and Assessment Details
Property Tax Information as of
10/24/2025
Click on "Statement Details" to expand or collapse a tax statement.
* Please enter a valid date ** Please enter a valid date *
Statement Details |
| | TOTAL: | $0.00 | $0.00 | $0.00 | $0.00 | $0.00 | $0.00 |
|
| | $0.00 | $0.00 | $0.00 | $0.00 | $0.00 | $0.00 |
Values
| (+) Improvement Homesite Value: | + | $0 | |
| (+) Improvement Non-Homesite Value: | + | $397,931 | |
| (+) Land Homesite Value: | + | $0 | |
| (+) Land Non-Homesite Value: | + | $231,000 | |
| (+) Curr Use (HS): | + | $0 | $0 |
| (+) Curr Use (NHS): | + | $0 | $0 |
| | | -------------------------- | |
| (=) Market Value: | = | $628,931 | |
| (–) Productivity Loss: | – | $0 | |
| | | -------------------------- | |
| (=) Subtotal: | = | $628,931 | |
| (+) Senior Appraised Value: | + | $0 | |
| (+) Non-Senior Appraised Value: | + | $628,931 | |
| | | -------------------------- | |
| (=) Total Appraised Value: | = | $628,931 | |
| (–) Senior Exemption Loss: | – | $0 | |
| (–) Exemption Loss: | – | $0 | |
| | | -------------------------- | |
| (=) Taxable Value: | = | $628,931 | |
Taxing Jurisdiction
| Owner: | MARA I MAUCH | | |
| % Ownership: | 100.0000000000% | | |
| Total Value: | N/A | | |
| Tax Area: | 0213 - 1-49F1E1H2L1 |
| CE | COUNTY CURRENT EXPENSE | N/A | N/A | N/A | N/A | | |
| CNTYDD | DEVELOPMENTAL DISABILITIES | N/A | N/A | N/A | N/A | | |
| CNTYVET | VETERANS RELIEF | N/A | N/A | N/A | N/A | | |
| MENTAL | MENTAL HEALTH | N/A | N/A | N/A | N/A | | |
| ROADS | COUNTY ROADS | N/A | N/A | N/A | N/A | | |
| ROADSCU | COUNTY ROADS TO CUR EXP | N/A | N/A | N/A | N/A | | |
| HOSP2CASH | HOSP DIST #2 GENERAL | N/A | N/A | N/A | N/A | | |
| SCH49CP | SCHOOL DIST #49 CAP PROJ | N/A | N/A | N/A | N/A | | |
| SCH49MO | SCHOOL DIST #49 EP & O | N/A | N/A | N/A | N/A | | |
| CONSERVE | CONSERVATION FUTURES | N/A | N/A | N/A | N/A | | |
| EMS1 | FIRE DIST #1 EMS | N/A | N/A | N/A | N/A | | |
| FD1 | FIRE DIST #1 GENERAL | N/A | N/A | N/A | N/A | | |
| LIB1 | LIBRARY DIST #1 GENERAL | N/A | N/A | N/A | N/A | | |
| PORTPT | PORT OF PT GENERAL | N/A | N/A | N/A | N/A | | |
| PORTPTIDD | PORT OF PT IDD 2019 | N/A | N/A | N/A | N/A | | |
| PUD1 | PUD #1 GENERAL | N/A | N/A | N/A | N/A | | |
| STATE | STATE SCHOOL PART 1 | N/A | N/A | N/A | N/A | | |
| STATE2 | STATE SCHOOL PART 2 | N/A | N/A | N/A | N/A | | |
| | Total Tax Rate: | N/A | | | | | |
| | | | | Taxes w/Current Exemptions: | N/A | | |
| | | | | Taxes w/o Exemptions: | N/A | | |
Improvement / Building
| Improvement #1: | Residential Bldg | State Code: | 11 | 2432.0 sqft | Value: | $397,931 |
| Bedrooms (#): | 3 | Exterior Wall: | SI/ST | | Foundation: | CONPR | Heating/Cooling: | ELBB | | Roof Cover: | COMP |   |   |
|
| | Type | Description | Class CD | Sub Class CD | Year Built | Area |
| | MA | Main Area | 4- | 15SF | 2013 | 1896.0 |
| | MA2 | Second Floor Main Area | 3 | 15SF | 2013 | 536.0 |
| | GATT | House Attached Garage | 3 | 15SF | 2013 | 648.0 |
| | HWPOR | House Wood Porch | 3 | * | 2013 | 48.0 |
| | HDECK | House Deck | 3 | * | 2013 | 816.0 |
| | HCPOR | House Concrete Porch | 3 | * | 2013 | 175.0 |
| | SHED | Shed (Table Not Dep) | 3 | * | 2019 | 240.0 |
| | SHED | Shed (Table Not Dep) | 3 | * | 2013 | 96.0 |
Sketch
Property Image
Land
| 1 | 3370-1525F | Medium to High Bank Wtrfrt along Hood Canal | 0.0000 | 0.00 | 0.00 | 0.00 | 0.00 | $231,000 | $0 |
Roll Value History
| 2025 | N/A | N/A | N/A | N/A | N/A |
| 2024 | $380,630 | $220,500 | $0 | $601,130 | $601,130 |
| 2023 | $380,630 | $215,250 | $0 | $595,880 | $595,880 |
| 2022 | $415,232 | $200,000 | $0 | $615,232 | $615,232 |
| 2021 | $286,402 | $168,000 | $0 | $454,402 | $454,402 |
Deed and Sales History
| 1 | 09/13/2018 | QCD | Quit Claim Deed | | | | | | 131251 | |
| 2 | 09/13/2018 | GRTD | Grant Deed | | | | | | 131250 | |
| 3 | 10/07/2011 | QCD | Quit Claim Deed | GRUBER, FRANZ/JANICE J | MAUCH, MARA I | 0 | 0 | $0.00 | 116610 | 0 |
| 4 | 10/07/2011 | QCD | Quit Claim Deed | GRUBER, FRAN/JANICE J | MAUCH, MARA I | 0 | 0 | $0.00 | 116671 | 0 |
| 5 | 04/09/2002 | QCD | Quit Claim Deed | GLEN & DEBBIE CIGANIK | ROBERT MCCLELLAND TRUST | 0 | 0 | $0.00 | 94718 | 0 |
| 6 | 04/19/2001 | SWD | Statutory Warranty Deed | MCCLELLAND, ROBERT L TRUS | GRUBER, FRANZ/JANICE J | 0 | 0 | $105,000.00 | 92058 | 0 |
| 7 | 12/22/1993 | TRED | Trustee Deed | MCCLELLAND, ROBET LLOYD | MCCLELLAND, ROBERT L/TRUST | 0 | 0 | $0.00 | 73241 | 0 |
Payout Agreement
| No payout information available.. |