Property
Account |
| Property ID: | 20657 | Abbreviated Legal Description: | S26 T28 R1E GOV LOT 1(S200' OF N300')TL TX L |
| Parcel # / Geo ID: | 821262003 | Agent Code: | |
| Type: | Real | | |
| Tax Area: | 0213 - 1-49F1E1H2L1 | Land Use Code | 11 |
| Open Space: | N | DFL | N |
| Historic Property: | N | Remodel Property: | N |
| Multi-Family Redevelopment: | N | | |
| Township: | 28N | Section: | 26 |
| Range: | 1E |
Location |
| Address: | 102 E FIR ST PORT LUDLOW, WA 98365 | Mapsco: | 158/063 |
| Neighborhood: | WHITE ROCK COVE TRCTS DIV I, II, III, & IV; S26,25 T28N R1E | Map ID: | |
| Neighborhood CD: | 3370 |
Owner |
| Name: | FRANZ M GRUBER | Owner ID: | 50611 |
| Mailing Address: | 102 E FIR ST PORT LUDLOW, WA 98365-8773 | % Ownership: | 100.0000000000% |
| | | Exemptions: | SNR/DSBL |
Pay Tax Due
There is currently No Amount Due on this property.
Taxes and Assessment Details
Property Tax Information as of
10/24/2025
Click on "Statement Details" to expand or collapse a tax statement.
* Please enter a valid date ** Please enter a valid date *
Statement Details |
| | TOTAL: | $0.00 | $0.00 | $0.00 | $0.00 | $0.00 | $0.00 |
|
| | $0.00 | $0.00 | $0.00 | $0.00 | $0.00 | $0.00 |
Values
| (+) Improvement Homesite Value: | + | $288,122 | |
| (+) Improvement Non-Homesite Value: | + | $21,158 | |
| (+) Land Homesite Value: | + | $626,285 | |
| (+) Land Non-Homesite Value: | + | $0 | |
| (+) Curr Use (HS): | + | $0 | $0 |
| (+) Curr Use (NHS): | + | $0 | $0 |
| | | -------------------------- | |
| (=) Market Value: | = | $935,565 | |
| (–) Productivity Loss: | – | $0 | |
| | | -------------------------- | |
| (=) Subtotal: | = | $935,565 | |
| (+) Senior Appraised Value: | + | $579,645 | |
| (+) Non-Senior Appraised Value: | + | $21,158 | |
| | | -------------------------- | |
| (=) Total Appraised Value: | = | $600,803 | |
| (–) Senior Exemption Loss: | – | $347,787 | |
| (–) Exemption Loss: | – | $0 | |
| | | -------------------------- | |
| (=) Taxable Value: | = | $253,016 | |
Taxing Jurisdiction
| Owner: | FRANZ M GRUBER | | |
| % Ownership: | 100.0000000000% | | |
| Total Value: | N/A | | |
| Tax Area: | 0213 - 1-49F1E1H2L1 |
| CE | COUNTY CURRENT EXPENSE | N/A | N/A | N/A | N/A | | |
| CNTYDD | DEVELOPMENTAL DISABILITIES | N/A | N/A | N/A | N/A | | |
| CNTYVET | VETERANS RELIEF | N/A | N/A | N/A | N/A | | |
| MENTAL | MENTAL HEALTH | N/A | N/A | N/A | N/A | | |
| ROADS | COUNTY ROADS | N/A | N/A | N/A | N/A | | |
| ROADSCU | COUNTY ROADS TO CUR EXP | N/A | N/A | N/A | N/A | | |
| HOSP2CASH | HOSP DIST #2 GENERAL | N/A | N/A | N/A | N/A | | |
| SCH49CP | SCHOOL DIST #49 CAP PROJ | N/A | N/A | N/A | N/A | | |
| SCH49MO | SCHOOL DIST #49 EP & O | N/A | N/A | N/A | N/A | | |
| CONSERVE | CONSERVATION FUTURES | N/A | N/A | N/A | N/A | | |
| EMS1 | FIRE DIST #1 EMS | N/A | N/A | N/A | N/A | | |
| FD1 | FIRE DIST #1 GENERAL | N/A | N/A | N/A | N/A | | |
| LIB1 | LIBRARY DIST #1 GENERAL | N/A | N/A | N/A | N/A | | |
| PORTPT | PORT OF PT GENERAL | N/A | N/A | N/A | N/A | | |
| PORTPTIDD | PORT OF PT IDD 2019 | N/A | N/A | N/A | N/A | | |
| PUD1 | PUD #1 GENERAL | N/A | N/A | N/A | N/A | | |
| STATE | STATE SCHOOL PART 1 | N/A | N/A | N/A | N/A | | |
| STATE2 | STATE SCHOOL PART 2 | N/A | N/A | N/A | N/A | | |
| | Total Tax Rate: | N/A | | | | | |
| | | | | Taxes w/Current Exemptions: | N/A | | |
| | | | | Taxes w/o Exemptions: | N/A | | |
Improvement / Building
| Improvement #1: | Manufactured Home | State Code: | 11 | 1638.0 sqft | Value: | $288,122 |
| Bathrooms (#): | 3 (FULL) | Bedrooms (#): | 3 | | Exterior Wall: | MASON | Fireplace: | WD ST-GOOD | | Floor Construction: | FRAME | Foundation: | CONPR | | Heating/Cooling: | HPUMP | Inside Verify: | YES | | Roof Cover: | COMP |   |   |
|
| | Type | Description | Class CD | Sub Class CD | Year Built | Area |
| | MA | Main Area | 3- | 1S | 1980 | 1638.0 |
| | BSMTF | House basement finished | 2 | * | 1980 | 1084.0 |
| | GBLTIN | Builtin Garage | 3 | * | 1980 | 504.0 |
| | HENCL | House Enclosure | 3 | * | 1980 | 364.0 |
| | HDECK | House Deck | 3 | * | 1980 | 716.0 |
| | CARPTN | Carport W/O Floor | 2 | * | 1980 | 960.0 |
| | PATIO | House Patio | 3 | * | 1980 | 300.0 |
| Improvement #2: | Residential Bldg | State Code: | 18 | 0.0 sqft | Value: | $21,158 |
Sketch
Property Image
Land
| 1 | 3370-1525F | Medium to High Bank Wtrfrt along Hood Canal | 0.0000 | 0.00 | 0.00 | 0.00 | 0.00 | $389,400 | $0 |
| 2 | 3370-1525F | Medium to High Bank Wtrfrt along Hood Canal | 0.0000 | 0.00 | 0.00 | 0.00 | 0.00 | $231,660 | $0 |
| 3 | 9301F | Tidelands | 0.0000 | 0.00 | 0.00 | 0.00 | 0.00 | $5,225 | $0 |
Roll Value History
| 2025 | N/A | N/A | N/A | N/A | N/A |
| 2024 | $295,833 | $597,818 | $0 | $893,651 | $252,096 |
| 2023 | $295,833 | $592,568 | $0 | $888,401 | $252,096 |
| 2022 | $322,727 | $559,350 | $0 | $882,077 | $253,936 |
| 2021 | $265,181 | $468,060 | $0 | $733,241 | $521,040 |
Deed and Sales History
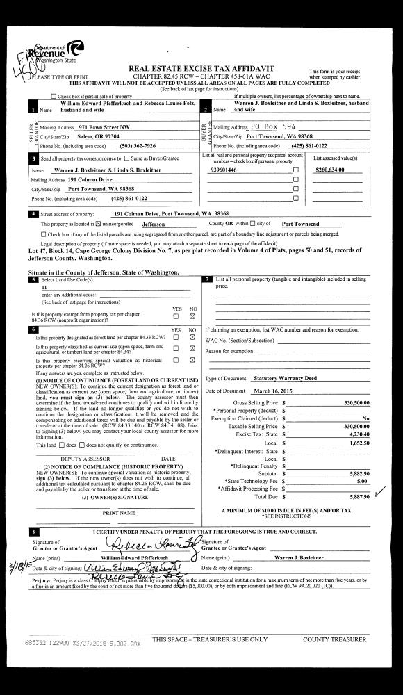
| 1 | 01/05/2016 | QCD | Quit Claim Deed | | | | | | 124900 | |
| 2 | 04/09/2002 | QCD | Quit Claim Deed | FRANZ GRUBER | GRUBER, FRANZ & JANICE J | 0 | 0 | $0.00 | 94719 | 0 |
Payout Agreement
| No payout information available.. |