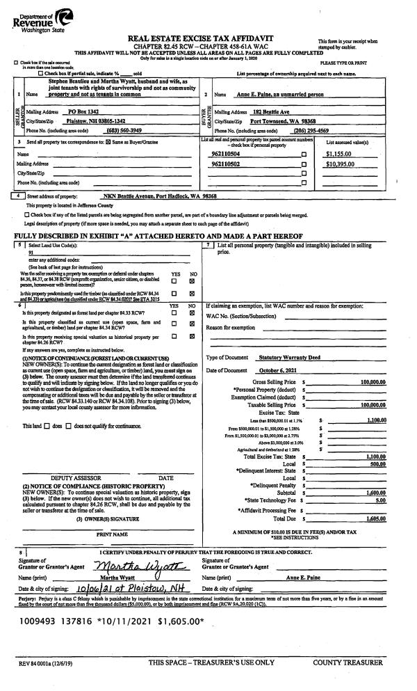
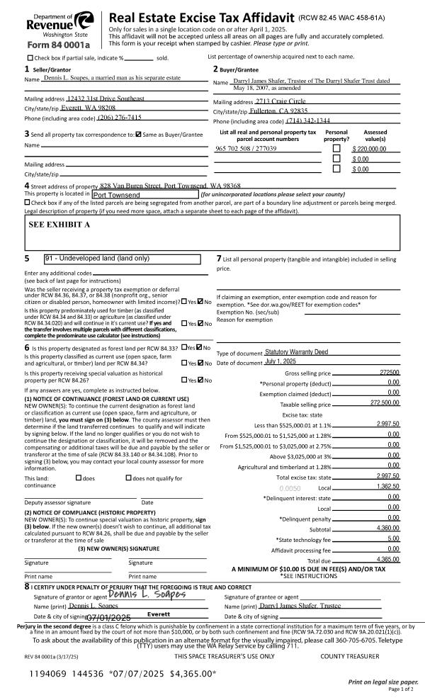
Property
Account |
| Property ID: | 20710 | Abbreviated Legal Description: | S27 T28 R1E TAX 2 |
| Parcel # / Geo ID: | 821271007 | Agent Code: | |
| Type: | Real | | |
| Tax Area: | 0213 - 1-49F1E1H2L1 | Land Use Code | 11 |
| Open Space: | N | DFL | N |
| Historic Property: | N | Remodel Property: | N |
| Multi-Family Redevelopment: | N | | |
| Township: | 28N | Section: | 27 |
| Range: | 1E |
Location |
| Address: | 930 ANDY COOPER RD PORT LUDLOW, WA 98365 | Mapsco: | 159/011 |
| Neighborhood: | S27 - S32 T28N R1E (LESS MPR) & SHORT PLATS | Map ID: | |
| Neighborhood CD: | 3390 |
Owner |
| Name: | MEGAN & SHAWN MC LAUGHLIN | Owner ID: | 96255 |
| Mailing Address: | 930 ANDY COOPER PORT LUDLOW, WA 98365-8759 | % Ownership: | 100.0000000000% |
| | | Exemptions: | |
Pay Tax Due
There is currently No Amount Due on this property.
Taxes and Assessment Details
Property Tax Information as of
10/24/2025
Click on "Statement Details" to expand or collapse a tax statement.
* Please enter a valid date ** Please enter a valid date *
Statement Details |
| | TOTAL: | $0.00 | $0.00 | $0.00 | $0.00 | $0.00 | $0.00 |
|
| | $0.00 | $0.00 | $0.00 | $0.00 | $0.00 | $0.00 |
Values
| (+) Improvement Homesite Value: | + | $0 | |
| (+) Improvement Non-Homesite Value: | + | $402,886 | |
| (+) Land Homesite Value: | + | $0 | |
| (+) Land Non-Homesite Value: | + | $131,208 | |
| (+) Curr Use (HS): | + | $0 | $0 |
| (+) Curr Use (NHS): | + | $0 | $0 |
| | | -------------------------- | |
| (=) Market Value: | = | $534,094 | |
| (–) Productivity Loss: | – | $0 | |
| | | -------------------------- | |
| (=) Subtotal: | = | $534,094 | |
| (+) Senior Appraised Value: | + | $0 | |
| (+) Non-Senior Appraised Value: | + | $534,094 | |
| | | -------------------------- | |
| (=) Total Appraised Value: | = | $534,094 | |
| (–) Senior Exemption Loss: | – | $0 | |
| (–) Exemption Loss: | – | $0 | |
| | | -------------------------- | |
| (=) Taxable Value: | = | $534,094 | |
Taxing Jurisdiction
| Owner: | MEGAN & SHAWN MC LAUGHLIN | | |
| % Ownership: | 100.0000000000% | | |
| Total Value: | N/A | | |
| Tax Area: | 0213 - 1-49F1E1H2L1 |
| CE | COUNTY CURRENT EXPENSE | N/A | N/A | N/A | N/A | | |
| CNTYDD | DEVELOPMENTAL DISABILITIES | N/A | N/A | N/A | N/A | | |
| CNTYVET | VETERANS RELIEF | N/A | N/A | N/A | N/A | | |
| MENTAL | MENTAL HEALTH | N/A | N/A | N/A | N/A | | |
| ROADS | COUNTY ROADS | N/A | N/A | N/A | N/A | | |
| ROADSCU | COUNTY ROADS TO CUR EXP | N/A | N/A | N/A | N/A | | |
| HOSP2CASH | HOSP DIST #2 GENERAL | N/A | N/A | N/A | N/A | | |
| SCH49CP | SCHOOL DIST #49 CAP PROJ | N/A | N/A | N/A | N/A | | |
| SCH49MO | SCHOOL DIST #49 EP & O | N/A | N/A | N/A | N/A | | |
| CONSERVE | CONSERVATION FUTURES | N/A | N/A | N/A | N/A | | |
| EMS1 | FIRE DIST #1 EMS | N/A | N/A | N/A | N/A | | |
| FD1 | FIRE DIST #1 GENERAL | N/A | N/A | N/A | N/A | | |
| LIB1 | LIBRARY DIST #1 GENERAL | N/A | N/A | N/A | N/A | | |
| PORTPT | PORT OF PT GENERAL | N/A | N/A | N/A | N/A | | |
| PORTPTIDD | PORT OF PT IDD 2019 | N/A | N/A | N/A | N/A | | |
| PUD1 | PUD #1 GENERAL | N/A | N/A | N/A | N/A | | |
| STATE | STATE SCHOOL PART 1 | N/A | N/A | N/A | N/A | | |
| STATE2 | STATE SCHOOL PART 2 | N/A | N/A | N/A | N/A | | |
| | Total Tax Rate: | N/A | | | | | |
| | | | | Taxes w/Current Exemptions: | N/A | | |
| | | | | Taxes w/o Exemptions: | N/A | | |
Improvement / Building
| Improvement #1: | Residential Bldg | State Code: | 11 | 1162.0 sqft | Value: | $402,886 |
| Bathrooms (#): | 2 (FULL) | Bedrooms (#): | 4 | | Exterior Wall: | PL/T1 | Fireplace: | WD ST-GOOD | | Floor Construction: | FRAME | Foundation: | CONPR | | Heating/Cooling: | HPUMP | Inside Verify: | YES | | Roof Cover: | COMP |   |   |
|
| | Type | Description | Class CD | Sub Class CD | Year Built | Area |
| | MA | Main Area | 4+ | 15SF | 1969 | 1162.0 |
| | HDECK | House Deck | 4 | * | 1969 | 441.0 |
| | CARPTF | Carport W/Floor | 4 | * | 1969 | 446.0 |
| | HLOFT | House Loft | 4 | 15SF | 1969 | 288.0 |
| | BSMTF | House basement finished | 4 | 15SF | 1969 | 1036.0 |
| | ASPHD | Asphalt Drive | 4 | * | 2018 | 2500.0 |
Sketch
Property Image
Land
| 1 | 3390-1355S | Average Wtr View Sites 1+/- Acre | 1.0000 | 43560.00 | 0.00 | 0.00 | 1.00 | $121,000 | $0 |
| 2 | 1577A | Terr/Mtn/No View <6 Acres | 1.2800 | 55756.80 | 0.00 | 0.00 | 0.00 | $10,208 | $0 |
Roll Value History
| 2025 | N/A | N/A | N/A | N/A | N/A |
| 2024 | $386,099 | $125,244 | $0 | $511,343 | $511,343 |
| 2023 | $369,312 | $113,960 | $0 | $483,272 | $483,272 |
| 2022 | $369,312 | $108,320 | $0 | $477,632 | $477,632 |
| 2021 | $282,940 | $76,140 | $0 | $359,080 | $359,080 |
Deed and Sales History
| 1 | 09/27/2016 | SWD | Statutory Warranty Deed | GEORGE T SMITH JR | MEGAN & SHAWN MC LAUGHLIN | | | $470,000.00 | 126434 | |
|   | |
| 2 | 07/03/2006 | QCD | Quit Claim Deed | SMITH, JUSTINE K | SMITH, JUSTINE K, DUNSTON, STE | | | $0.00 | 107027 | 0 |
| 3 | 11/16/2005 | SWD | Statutory Warranty Deed | WILDE, DALE S/LISA C | SMITH JR, GEORGE/ROBERTA | 0 | 0 | $425,000.00 | 105432 | 0 |
|   | |
| 4 | 12/18/1995 | QCD | Quit Claim Deed | 1031 EXCHANGE COORDINATOR | WILDE, DALE S/LISA C | 0 | 0 | $0.00 | 78482 | 0 |
| 5 | 12/30/1994 | SWD | Statutory Warranty Deed | HANSEN, PAUL L | C1031 EXCHANGE COORDINATORS | 0 | 0 | $199,500.00 | 75977 | 0 |
| 6 | 12/23/1994 | QCD | Quit Claim Deed | HANSEN, HARRIET B | HANSEN, PAUL L | 0 | 0 | $0.00 | 75976 | 0 |
| 7 | 10/22/1993 | SPWD | Special Warranty Deed | MICHAELS, KATHERINE | HANSEN, PAUL L | 0 | 0 | $0.00 | 72683 | 0 |
Payout Agreement
| No payout information available.. |