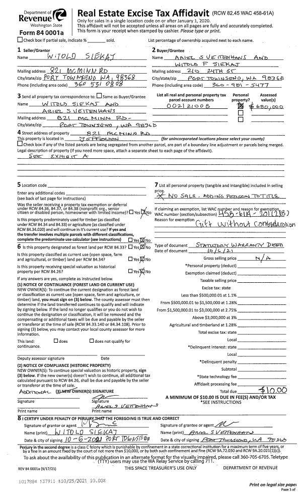
Property
Account |
| Property ID: | 20780 | Abbreviated Legal Description: | S33 T28 R1E TAX 34 |
| Parcel # / Geo ID: | 821333016 | Agent Code: | |
| Type: | Real | | |
| Tax Area: | 0213 - 1-49F1E1H2L1 | Land Use Code | 11 |
| Open Space: | N | DFL | N |
| Historic Property: | N | Remodel Property: | N |
| Multi-Family Redevelopment: | N | | |
| Township: | 28N | Section: | 33 |
| Range: | 1E |
Location |
| Address: | 3466 TEAL LAKE RD PORT LUDLOW, WA 98365 | Mapsco: | 160/074 |
| Neighborhood: | S33 T28 R1E;SHINE PLTS;WATNEY'S S;TEAL/SANTY/SHAW/JAKUM/CARL | Map ID: | |
| Neighborhood CD: | 3385 |
Owner |
| Name: | STEPHEN P PHELPS | Owner ID: | 102455 |
| Mailing Address: | 3466 TEAL LAKE RD PORT LUDLOW, WA 98365-9515 | % Ownership: | 100.0000000000% |
| | | Exemptions: | |
Pay Tax Due
There is currently No Amount Due on this property.
Taxes and Assessment Details
Property Tax Information as of
10/24/2025
Click on "Statement Details" to expand or collapse a tax statement.
* Please enter a valid date ** Please enter a valid date *
Statement Details |
| | TOTAL: | $0.00 | $0.00 | $0.00 | $0.00 | $0.00 | $0.00 |
|
| | $0.00 | $0.00 | $0.00 | $0.00 | $0.00 | $0.00 |
Values
| (+) Improvement Homesite Value: | + | $0 | |
| (+) Improvement Non-Homesite Value: | + | $182,969 | |
| (+) Land Homesite Value: | + | $0 | |
| (+) Land Non-Homesite Value: | + | $88,000 | |
| (+) Curr Use (HS): | + | $0 | $0 |
| (+) Curr Use (NHS): | + | $0 | $0 |
| | | -------------------------- | |
| (=) Market Value: | = | $270,969 | |
| (–) Productivity Loss: | – | $0 | |
| | | -------------------------- | |
| (=) Subtotal: | = | $270,969 | |
| (+) Senior Appraised Value: | + | $0 | |
| (+) Non-Senior Appraised Value: | + | $270,969 | |
| | | -------------------------- | |
| (=) Total Appraised Value: | = | $270,969 | |
| (–) Senior Exemption Loss: | – | $0 | |
| (–) Exemption Loss: | – | $0 | |
| | | -------------------------- | |
| (=) Taxable Value: | = | $270,969 | |
Taxing Jurisdiction
| Owner: | STEPHEN P PHELPS | | |
| % Ownership: | 100.0000000000% | | |
| Total Value: | N/A | | |
| Tax Area: | 0213 - 1-49F1E1H2L1 |
| CE | COUNTY CURRENT EXPENSE | N/A | N/A | N/A | N/A | | |
| CNTYDD | DEVELOPMENTAL DISABILITIES | N/A | N/A | N/A | N/A | | |
| CNTYVET | VETERANS RELIEF | N/A | N/A | N/A | N/A | | |
| MENTAL | MENTAL HEALTH | N/A | N/A | N/A | N/A | | |
| ROADS | COUNTY ROADS | N/A | N/A | N/A | N/A | | |
| ROADSCU | COUNTY ROADS TO CUR EXP | N/A | N/A | N/A | N/A | | |
| HOSP2CASH | HOSP DIST #2 GENERAL | N/A | N/A | N/A | N/A | | |
| SCH49CP | SCHOOL DIST #49 CAP PROJ | N/A | N/A | N/A | N/A | | |
| SCH49MO | SCHOOL DIST #49 EP & O | N/A | N/A | N/A | N/A | | |
| CONSERVE | CONSERVATION FUTURES | N/A | N/A | N/A | N/A | | |
| EMS1 | FIRE DIST #1 EMS | N/A | N/A | N/A | N/A | | |
| FD1 | FIRE DIST #1 GENERAL | N/A | N/A | N/A | N/A | | |
| LIB1 | LIBRARY DIST #1 GENERAL | N/A | N/A | N/A | N/A | | |
| PORTPT | PORT OF PT GENERAL | N/A | N/A | N/A | N/A | | |
| PORTPTIDD | PORT OF PT IDD 2019 | N/A | N/A | N/A | N/A | | |
| PUD1 | PUD #1 GENERAL | N/A | N/A | N/A | N/A | | |
| STATE | STATE SCHOOL PART 1 | N/A | N/A | N/A | N/A | | |
| STATE2 | STATE SCHOOL PART 2 | N/A | N/A | N/A | N/A | | |
| | Total Tax Rate: | N/A | | | | | |
| | | | | Taxes w/Current Exemptions: | N/A | | |
| | | | | Taxes w/o Exemptions: | N/A | | |
Improvement / Building
| Improvement #1: | Manufactured Home | State Code: | 11 | 1296.0 sqft | Value: | $182,969 |
| Bathrooms (#): | 2 (FULL) | Bedrooms (#): | 3 | | Exterior Wall: | PL/T1 | Floor Construction: | FRAME | | Foundation: | PO&BL | Heating/Cooling: | HPUMP | | Inside Verify: | YES | Roof Cover: | COMP |
|
| | Type | Description | Class CD | Sub Class CD | Year Built | Area |
| | MA | Main Area | 4- | MDBL | 1999 | 1296.0 |
| | GARAG | Garage (Table Not Dep) | 3 | * | 2000 | 672.0 |
| | ADDN | Addition (Table Not Dep) | 4 | * | 2007 | 300.0 |
| | SHED | Shed (Table Not Dep) | 4 | * | 1999 | 192.0 |
| | MRPO | MH Roof Porch | 4 | MDBL | 1999 | 60.0 |
| | MSKIRT_WD | MH Skirting - Wood | 4 | MDBL | 1999 | 150.0 |
Sketch
Property Image
Land
| 1 | 3385-1265S | Fair/Filtered Wtr View Sites .5+/- Acre. | 0.0000 | 0.00 | 0.00 | 0.00 | 1.00 | $88,000 | $0 |
Roll Value History
| 2025 | N/A | N/A | N/A | N/A | N/A |
| 2024 | $175,345 | $84,000 | $0 | $259,345 | $259,345 |
| 2023 | $167,721 | $75,000 | $0 | $242,721 | $242,721 |
| 2022 | $167,721 | $70,000 | $0 | $237,721 | $237,721 |
| 2021 | $141,967 | $47,250 | $0 | $189,217 | $189,217 |
Deed and Sales History
| 1 | 03/23/2020 | SWD | Statutory Warranty Deed | | | | | | 134305 | |
| 2 | 03/23/2020 | SWD | Statutory Warranty Deed | E LOUISE COLE | STEPHEN P PHELPS | | | $150,000.00 | 134154 | |
| 3 | 11/09/2006 | QCD | Quit Claim Deed | COLE, E LOUISE | COLE, E LOUISE & LARRIE | 0 | 0 | $0.00 | 108084 | 0 |
| 4 | 09/25/2006 | QCD | Quit Claim Deed | MORGAN, CLIFFORD T ESTATE | COLE, E LOUISE | 0 | 0 | $0.00 | 107773 | 0 |
| 5 | 07/25/2006 | QCD | Quit Claim Deed | MORGAN, CLIFFORD T ESTATE | COLE, E LOUISE | | | $0.00 | 107175 | 0 |
| 6 | 01/13/2004 | SWD | Statutory Warranty Deed | HAGERMAN, KENNETH/DELORES | MORGAN, CLIFFORD T | 0 | 0 | $129,960.00 | 99305 | 0 |
| 7 | 03/19/1998 | SWD | Statutory Warranty Deed | SHIPLEY, FRANCES E | HAGERMAN, KENNETH A/DELORES M | 0 | 0 | $10,000.00 | 84053 | 0 |
Payout Agreement
| No payout information available.. |