Property
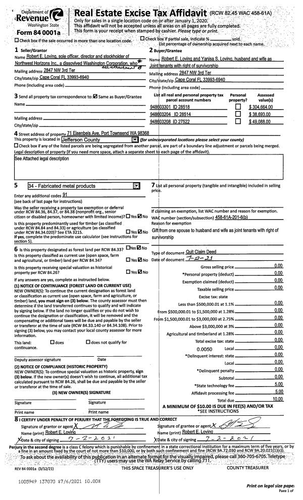
Account |
| Property ID: | 20848 | Abbreviated Legal Description: | S33 T28 R1E TAX 46(REVISED V256/P572) |
| Parcel # / Geo ID: | 821334047 | Agent Code: | |
| Type: | Real | | |
| Tax Area: | 0213 - 1-49F1E1H2L1 | Land Use Code | 11 |
| Open Space: | N | DFL | N |
| Historic Property: | N | Remodel Property: | N |
| Multi-Family Redevelopment: | N | | |
| Township: | 28N | Section: | 33 |
| Range: | 1E |
Location |
| Address: | 192 HUCKLEBERRY LN PORT LUDLOW, WA 98365 | Mapsco: | 161/011 |
| Neighborhood: | S33 T28 R1E;SHINE PLTS;WATNEY'S S;TEAL/SANTY/SHAW/JAKUM/CARL | Map ID: | |
| Neighborhood CD: | 3385 |
Owner |
| Name: | SEAN L DEDITIUS | Owner ID: | 14360 |
| Mailing Address: | MARIA A DEDITIUS PO BOX 307 COSMOPOLIS, WA 98537-0307 | % Ownership: | 100.0000000000% |
| | | Exemptions: | |
Pay Tax Due
There is currently No Amount Due on this property.
Taxes and Assessment Details
Property Tax Information as of
10/24/2025
Click on "Statement Details" to expand or collapse a tax statement.
* Please enter a valid date ** Please enter a valid date *
Statement Details |
| | TOTAL: | $0.00 | $0.00 | $0.00 | $0.00 | $0.00 | $0.00 |
|
| | $0.00 | $0.00 | $0.00 | $0.00 | $0.00 | $0.00 |
Values
| (+) Improvement Homesite Value: | + | $0 | |
| (+) Improvement Non-Homesite Value: | + | $130,750 | |
| (+) Land Homesite Value: | + | $0 | |
| (+) Land Non-Homesite Value: | + | $99,000 | |
| (+) Curr Use (HS): | + | $0 | $0 |
| (+) Curr Use (NHS): | + | $0 | $0 |
| | | -------------------------- | |
| (=) Market Value: | = | $229,750 | |
| (–) Productivity Loss: | – | $0 | |
| | | -------------------------- | |
| (=) Subtotal: | = | $229,750 | |
| (+) Senior Appraised Value: | + | $0 | |
| (+) Non-Senior Appraised Value: | + | $229,750 | |
| | | -------------------------- | |
| (=) Total Appraised Value: | = | $229,750 | |
| (–) Senior Exemption Loss: | – | $0 | |
| (–) Exemption Loss: | – | $0 | |
| | | -------------------------- | |
| (=) Taxable Value: | = | $229,750 | |
Taxing Jurisdiction
| Owner: | SEAN L DEDITIUS | | |
| % Ownership: | 100.0000000000% | | |
| Total Value: | N/A | | |
| Tax Area: | 0213 - 1-49F1E1H2L1 |
| CE | COUNTY CURRENT EXPENSE | N/A | N/A | N/A | N/A | | |
| CNTYDD | DEVELOPMENTAL DISABILITIES | N/A | N/A | N/A | N/A | | |
| CNTYVET | VETERANS RELIEF | N/A | N/A | N/A | N/A | | |
| MENTAL | MENTAL HEALTH | N/A | N/A | N/A | N/A | | |
| ROADS | COUNTY ROADS | N/A | N/A | N/A | N/A | | |
| ROADSCU | COUNTY ROADS TO CUR EXP | N/A | N/A | N/A | N/A | | |
| HOSP2CASH | HOSP DIST #2 GENERAL | N/A | N/A | N/A | N/A | | |
| SCH49CP | SCHOOL DIST #49 CAP PROJ | N/A | N/A | N/A | N/A | | |
| SCH49MO | SCHOOL DIST #49 EP & O | N/A | N/A | N/A | N/A | | |
| CONSERVE | CONSERVATION FUTURES | N/A | N/A | N/A | N/A | | |
| EMS1 | FIRE DIST #1 EMS | N/A | N/A | N/A | N/A | | |
| FD1 | FIRE DIST #1 GENERAL | N/A | N/A | N/A | N/A | | |
| LIB1 | LIBRARY DIST #1 GENERAL | N/A | N/A | N/A | N/A | | |
| PORTPT | PORT OF PT GENERAL | N/A | N/A | N/A | N/A | | |
| PORTPTIDD | PORT OF PT IDD 2019 | N/A | N/A | N/A | N/A | | |
| PUD1 | PUD #1 GENERAL | N/A | N/A | N/A | N/A | | |
| STATE | STATE SCHOOL PART 1 | N/A | N/A | N/A | N/A | | |
| STATE2 | STATE SCHOOL PART 2 | N/A | N/A | N/A | N/A | | |
| | Total Tax Rate: | N/A | | | | | |
| | | | | Taxes w/Current Exemptions: | N/A | | |
| | | | | Taxes w/o Exemptions: | N/A | | |
Improvement / Building
| Improvement #1: | Manufactured Home | State Code: | 11M | 1440.0 sqft | Value: | $130,750 |
| Bathrooms (#): | 2 (FULL) | Bedrooms (#): | 3 | | Exterior Wall: | PL/T1 | Fireplace: | WD ST-GOOD | | Floor Construction: | FRAME | Foundation: | CONPR | | Heating/Cooling: | F/A | Inside Verify: | YES | | Roof Cover: | COMP |   |   |
|
| | Type | Description | Class CD | Sub Class CD | Year Built | Area |
| | MA | Main Area | 4+ | MDBL | 1979 | 1440.0 |
| | PATIO | House Patio | 4 | * | 1979 | 207.0 |
Sketch
Property Image
Land
| 1 | 3385-1255S | Fair/Avg Wtr View Sites .5+/- Acre. | 0.0000 | 0.00 | 0.00 | 0.00 | 1.00 | $99,000 | $0 |
Roll Value History
| 2025 | N/A | N/A | N/A | N/A | N/A |
| 2024 | $125,302 | $94,500 | $0 | $219,802 | $219,802 |
| 2023 | $119,854 | $85,000 | $0 | $204,854 | $204,854 |
| 2022 | $119,854 | $80,000 | $0 | $199,854 | $199,854 |
| 2021 | $87,266 | $60,750 | $0 | $148,016 | $148,016 |
Deed and Sales History
| 1 | 12/09/2003 | SWD | Statutory Warranty Deed | BALDWIN, GREG/TRUSTEE | DEDITIUS, SEAN L & MARIA A | 0 | 0 | $128,500.00 | 99075 | 0 |
| 2 | 03/15/2002 | REC | Real Estate Contract | HAGERMAN, KENNETH A/DELOR | BETA TRUST ACCOUNT | 0 | 0 | $21,000.00 | 94210 | 0 |
| 3 | 03/15/2002 | REC | Real Estate Contract | HAGERMAN, KENNETH A/DELOR | BETA TRUST | 0 | 0 | $0.00 | 94559 | 0 |
| 4 | 03/18/1998 | SWD | Statutory Warranty Deed | SHIPLEY, FRANCES ELIZABET | HAGERMAN, KENNETH A/DELORES M | 0 | 0 | $19,000.00 | 84050 | 0 |
Payout Agreement
| No payout information available.. |