Property
Account |
| Property ID: | 20850 | Abbreviated Legal Description: | S33 T28 R1E TAX 48 |
| Parcel # / Geo ID: | 821334049 | Agent Code: | |
| Type: | Real | | |
| Tax Area: | 0213 - 1-49F1E1H2L1 | Land Use Code | 11 |
| Open Space: | N | DFL | N |
| Historic Property: | N | Remodel Property: | N |
| Multi-Family Redevelopment: | N | | |
| Township: | 28N | Section: | 33 |
| Range: | 1E |
Location |
| Address: | 153 BLUEBERRY HILL RD PORT LUDLOW, WA 98365 | Mapsco: | 161/013 |
| Neighborhood: | S33 T28 R1E;SHINE PLTS;WATNEY'S S;TEAL/SANTY/SHAW/JAKUM/CARL | Map ID: | |
| Neighborhood CD: | 3385 |
Owner |
| Name: | DUSTIN & SHELBIE HAYES | Owner ID: | 106365 |
| Mailing Address: | 153 BLUEBERRY HILL RD PORT LUDLOW, WA 98365-9501 | % Ownership: | 100.0000000000% |
| | | Exemptions: | |
Pay Tax Due
There is currently No Amount Due on this property.
Taxes and Assessment Details
Property Tax Information as of
10/24/2025
Click on "Statement Details" to expand or collapse a tax statement.
* Please enter a valid date ** Please enter a valid date *
Statement Details |
| | TOTAL: | $0.00 | $0.00 | $0.00 | $0.00 | $0.00 | $0.00 |
|
| | $0.00 | $0.00 | $0.00 | $0.00 | $0.00 | $0.00 |
Values
| (+) Improvement Homesite Value: | + | $0 | |
| (+) Improvement Non-Homesite Value: | + | $231,730 | |
| (+) Land Homesite Value: | + | $0 | |
| (+) Land Non-Homesite Value: | + | $115,500 | |
| (+) Curr Use (HS): | + | $0 | $0 |
| (+) Curr Use (NHS): | + | $0 | $0 |
| | | -------------------------- | |
| (=) Market Value: | = | $347,230 | |
| (–) Productivity Loss: | – | $0 | |
| | | -------------------------- | |
| (=) Subtotal: | = | $347,230 | |
| (+) Senior Appraised Value: | + | $0 | |
| (+) Non-Senior Appraised Value: | + | $347,230 | |
| | | -------------------------- | |
| (=) Total Appraised Value: | = | $347,230 | |
| (–) Senior Exemption Loss: | – | $0 | |
| (–) Exemption Loss: | – | $0 | |
| | | -------------------------- | |
| (=) Taxable Value: | = | $347,230 | |
Taxing Jurisdiction
| Owner: | DUSTIN & SHELBIE HAYES | | |
| % Ownership: | 100.0000000000% | | |
| Total Value: | N/A | | |
| Tax Area: | 0213 - 1-49F1E1H2L1 |
| CE | COUNTY CURRENT EXPENSE | N/A | N/A | N/A | N/A | | |
| CNTYDD | DEVELOPMENTAL DISABILITIES | N/A | N/A | N/A | N/A | | |
| CNTYVET | VETERANS RELIEF | N/A | N/A | N/A | N/A | | |
| MENTAL | MENTAL HEALTH | N/A | N/A | N/A | N/A | | |
| ROADS | COUNTY ROADS | N/A | N/A | N/A | N/A | | |
| ROADSCU | COUNTY ROADS TO CUR EXP | N/A | N/A | N/A | N/A | | |
| HOSP2CASH | HOSP DIST #2 GENERAL | N/A | N/A | N/A | N/A | | |
| SCH49CP | SCHOOL DIST #49 CAP PROJ | N/A | N/A | N/A | N/A | | |
| SCH49MO | SCHOOL DIST #49 EP & O | N/A | N/A | N/A | N/A | | |
| CONSERVE | CONSERVATION FUTURES | N/A | N/A | N/A | N/A | | |
| EMS1 | FIRE DIST #1 EMS | N/A | N/A | N/A | N/A | | |
| FD1 | FIRE DIST #1 GENERAL | N/A | N/A | N/A | N/A | | |
| LIB1 | LIBRARY DIST #1 GENERAL | N/A | N/A | N/A | N/A | | |
| PORTPT | PORT OF PT GENERAL | N/A | N/A | N/A | N/A | | |
| PORTPTIDD | PORT OF PT IDD 2019 | N/A | N/A | N/A | N/A | | |
| PUD1 | PUD #1 GENERAL | N/A | N/A | N/A | N/A | | |
| STATE | STATE SCHOOL PART 1 | N/A | N/A | N/A | N/A | | |
| STATE2 | STATE SCHOOL PART 2 | N/A | N/A | N/A | N/A | | |
| | Total Tax Rate: | N/A | | | | | |
| | | | | Taxes w/Current Exemptions: | N/A | | |
| | | | | Taxes w/o Exemptions: | N/A | | |
Improvement / Building
| Improvement #1: | Manufactured Home | State Code: | 11M | 1960.0 sqft | Value: | $231,730 |
| Bathrooms (#): | 2 (FULL) | Bedrooms (#): | 3 | | Exterior Wall: | PL/T1 | Fireplace: | PROPS-GOOD | | Floor Construction: | FRAME | Foundation: | PO&BL | | Heating/Cooling: | F/A | Inside Verify: | NO | | Roof Cover: | COMP |   |   |
|
| | Type | Description | Class CD | Sub Class CD | Year Built | Area |
| | MA | Main Area | 4+ | MDBL | 1988 | 1960.0 |
| | MWPOR | MH Wood Porch | 4 | * | 1988 | 64.0 |
| | MDECK | MH Deck | 4 | * | 1988 | 336.0 |
| | SHED | Shed (Table Not Dep) | 4 | * | 1988 | 80.0 |
| | MSKIRT_WD | MH Skirting - Wood | 4 | * | 1988 | 196.0 |
| | MDECK | MH Deck | 4 | | 1988 | 40.0 |
Sketch
Property Image
Land
| 1 | 3385-1265S | Fair/Filtered Wtr View Sites .5+/- Acre. | 0.0000 | 0.00 | 0.00 | 0.00 | 1.00 | $115,500 | $0 |
Roll Value History
| 2025 | N/A | N/A | N/A | N/A | N/A |
| 2024 | $222,074 | $110,250 | $0 | $332,324 | $332,324 |
| 2023 | $212,419 | $100,000 | $0 | $312,419 | $312,419 |
| 2022 | $212,419 | $95,000 | $0 | $307,419 | $307,419 |
| 2021 | $87,696 | $47,250 | $0 | $134,946 | $134,946 |
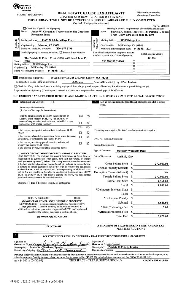
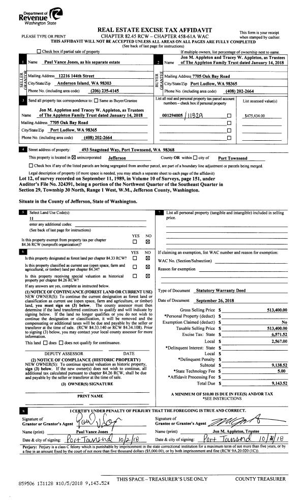
Deed and Sales History
| 1 | 11/10/2021 | SWD | Statutory Warranty Deed | MAYNARD REAL ESTATE LLC | DUSTIN & SHELBIE HAYES | | | $360,500.00 | 138466 | |
| 2 | 07/06/2021 | TRED | Trustee Deed | OLYMPIC FIRST LLC | MAYNARD REAL ESTATE LLC | | | $210,000.00 | 137078 | |
| 3 | 10/23/2019 | SPWD | Special Warranty Deed | SECRETARY OF HOUSING & URBAN DEVELOPMENT | OLYMPIC FIRST LLC | | | $89,762.00 | 133391 | |
| 4 | 11/27/2018 | BSD | Bargain and Sale Deed | US BANK NA TRUMAN 2016 SC6 TITLE TRUST | SECRETARY OF HOUSING & URBAN DEVELOPMENT | | | $105,654.00 | 132280 | |
| 5 | 10/15/2018 | TRED | Trustee Deed | ROBERTA P DRAKE | US BANK NA TRUMAN 2016 SC6 TITLE TRUST | | | | 131215 | |
| 6 | 04/26/2005 | SWD | Statutory Warranty Deed | MAKI, RICHARD A/KATHRYN A | DRAKE, ROBERTA P | | | $117,000.00 | 103339 | 0 |
Payout Agreement
| No payout information available.. |