Property
Account |
| Property ID: | 20883 | Abbreviated Legal Description: | S33 T28 R1E TAX 78 |
| Parcel # / Geo ID: | 821334086 | Agent Code: | |
| Type: | Real | | |
| Tax Area: | 0213 - 1-49F1E1H2L1 | Land Use Code | 11 |
| Open Space: | N | DFL | N |
| Historic Property: | N | Remodel Property: | N |
| Multi-Family Redevelopment: | N | | |
| Township: | 28N | Section: | 33 |
| Range: | 1E |
Location |
| Address: | 277 SCENIC VIEW LN PORT LUDLOW, WA 98365 | Mapsco: | 162/009 |
| Neighborhood: | S33 T28 R1E;SHINE PLTS;WATNEY'S S;TEAL/SANTY/SHAW/JAKUM/CARL | Map ID: | |
| Neighborhood CD: | 3385 |
Owner |
| Name: | MARY & GARY MCALISTER | Owner ID: | 100958 |
| Mailing Address: | 277 SCENIC VIEW LN PORT LUDLOW, WA 98365-8207 | % Ownership: | 100.0000000000% |
| | | Exemptions: | |
Pay Tax Due
There is currently No Amount Due on this property.
Taxes and Assessment Details
Property Tax Information as of
10/24/2025
Click on "Statement Details" to expand or collapse a tax statement.
* Please enter a valid date ** Please enter a valid date *
Statement Details |
| | TOTAL: | $0.00 | $0.00 | $0.00 | $0.00 | $0.00 | $0.00 |
|
| | $0.00 | $0.00 | $0.00 | $0.00 | $0.00 | $0.00 |
Values
| (+) Improvement Homesite Value: | + | $0 | |
| (+) Improvement Non-Homesite Value: | + | $409,681 | |
| (+) Land Homesite Value: | + | $0 | |
| (+) Land Non-Homesite Value: | + | $214,157 | |
| (+) Curr Use (HS): | + | $0 | $0 |
| (+) Curr Use (NHS): | + | $0 | $0 |
| | | -------------------------- | |
| (=) Market Value: | = | $623,838 | |
| (–) Productivity Loss: | – | $0 | |
| | | -------------------------- | |
| (=) Subtotal: | = | $623,838 | |
| (+) Senior Appraised Value: | + | $0 | |
| (+) Non-Senior Appraised Value: | + | $623,838 | |
| | | -------------------------- | |
| (=) Total Appraised Value: | = | $623,838 | |
| (–) Senior Exemption Loss: | – | $0 | |
| (–) Exemption Loss: | – | $0 | |
| | | -------------------------- | |
| (=) Taxable Value: | = | $623,838 | |
Taxing Jurisdiction
| Owner: | MARY & GARY MCALISTER | | |
| % Ownership: | 100.0000000000% | | |
| Total Value: | N/A | | |
| Tax Area: | 0213 - 1-49F1E1H2L1 |
| CE | COUNTY CURRENT EXPENSE | N/A | N/A | N/A | N/A | | |
| CNTYDD | DEVELOPMENTAL DISABILITIES | N/A | N/A | N/A | N/A | | |
| CNTYVET | VETERANS RELIEF | N/A | N/A | N/A | N/A | | |
| MENTAL | MENTAL HEALTH | N/A | N/A | N/A | N/A | | |
| ROADS | COUNTY ROADS | N/A | N/A | N/A | N/A | | |
| ROADSCU | COUNTY ROADS TO CUR EXP | N/A | N/A | N/A | N/A | | |
| HOSP2CASH | HOSP DIST #2 GENERAL | N/A | N/A | N/A | N/A | | |
| SCH49CP | SCHOOL DIST #49 CAP PROJ | N/A | N/A | N/A | N/A | | |
| SCH49MO | SCHOOL DIST #49 EP & O | N/A | N/A | N/A | N/A | | |
| CONSERVE | CONSERVATION FUTURES | N/A | N/A | N/A | N/A | | |
| EMS1 | FIRE DIST #1 EMS | N/A | N/A | N/A | N/A | | |
| FD1 | FIRE DIST #1 GENERAL | N/A | N/A | N/A | N/A | | |
| LIB1 | LIBRARY DIST #1 GENERAL | N/A | N/A | N/A | N/A | | |
| PORTPT | PORT OF PT GENERAL | N/A | N/A | N/A | N/A | | |
| PORTPTIDD | PORT OF PT IDD 2019 | N/A | N/A | N/A | N/A | | |
| PUD1 | PUD #1 GENERAL | N/A | N/A | N/A | N/A | | |
| STATE | STATE SCHOOL PART 1 | N/A | N/A | N/A | N/A | | |
| STATE2 | STATE SCHOOL PART 2 | N/A | N/A | N/A | N/A | | |
| | Total Tax Rate: | N/A | | | | | |
| | | | | Taxes w/Current Exemptions: | N/A | | |
| | | | | Taxes w/o Exemptions: | N/A | | |
Improvement / Building
| Improvement #1: | Residential Bldg | State Code: | 11 | 1056.0 sqft | Value: | $250,922 |
| Bathrooms (#): | 3 (FULL) | Bedrooms (#): | 2 | | Exterior Wall: | PL/T1 | Fireplace: | WD ST-GOOD | | Floor Construction: | FRAME | Foundation: | CONPR | | Heating/Cooling: | ELBB | Inside Verify: | NO | | Roof Cover: | COMP |   |   |
|
| | Type | Description | Class CD | Sub Class CD | Year Built | Area |
| | MA | Main Area | 3 | 2S | 2002 | 624.0 |
| | MA2 | Second Floor Main Area | 3- | 2S | 2002 | 432.0 |
| | BSMTF | House basement finished | 3 | 2S | 2002 | 624.0 |
| | HWPOR | House Wood Porch | 3 | * | 2002 | 16.0 |
| | HDECK | House Deck | 3 | * | 2002 | 492.0 |
| | HBAL | House Balcony | 3 | * | 2002 | 144.0 |
| | HBAL | House Balcony | 3 | * | 2002 | 144.0 |
| | SHED | Shed (Table Not Dep) | 4 | * | 2002 | 100.0 |
| Improvement #2: | Residential Bldg | State Code: | 11 | 1271.0 sqft | Value: | $158,759 |
| Bathrooms (#): | 2 (FULL) | Bedrooms (#): | 2 | | Exterior Wall: | SI/ST | Floor Construction: | FRAME | | Foundation: | CONPR | Heating/Cooling: | HPUMP | | Interior Finish: | FIN | Roof Cover: | COMP |
|
| | Type | Description | Class CD | Sub Class CD | Year Built | Area |
| | MA | Main Area | 5 | ADU | 2021 | 1271.0 |
| | GATT | House Attached Garage | 5 | ADU | 2021 | 607.0 |
Sketch
Property Image
Land
| 1 | 3385-1345S | Good Wtr View Sites 1+/- Acre | 1.0000 | 43560.00 | 0.00 | 0.00 | 1.00 | $154,550 | $0 |
| 2 | 3385-1555A | Avg Water Views <6 Acres | 3.7500 | 163350.00 | 0.00 | 0.00 | 0.00 | $59,607 | $0 |
Roll Value History
| 2025 | N/A | N/A | N/A | N/A | N/A |
| 2024 | $392,611 | $204,422 | $0 | $597,033 | $597,033 |
| 2023 | $372,449 | $189,688 | $0 | $562,137 | $562,137 |
| 2022 | $351,868 | $178,313 | $0 | $530,181 | $530,181 |
| 2021 | $167,726 | $160,819 | $0 | $328,545 | $328,545 |
Deed and Sales History
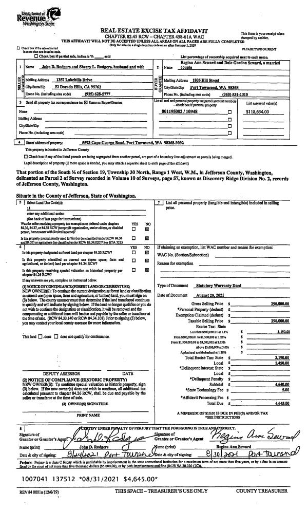
| 1 | 05/03/2019 | SWD | Statutory Warranty Deed | MARY MCALISTER | MARY & GARY MCALISTER | | | | 132272 | |
| 2 | 10/10/2014 | QCD | Quit Claim Deed | | | | | | 122029 | |
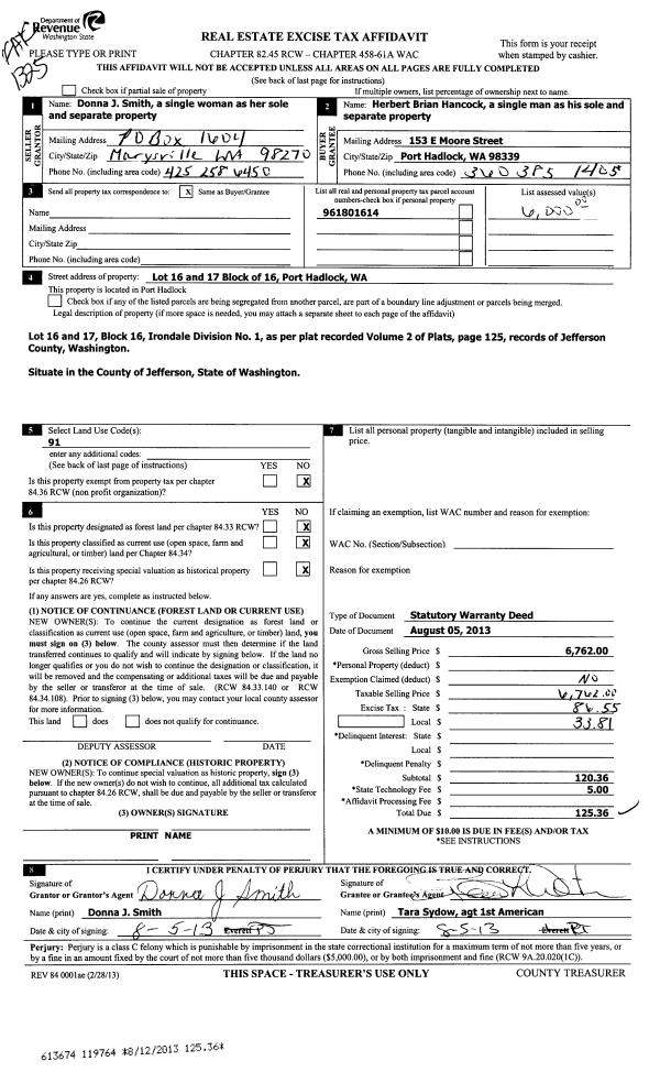
| 3 | 10/08/2014 | SWD | Statutory Warranty Deed | DALE J ETHRIDGE | MARY MCALISTER | | | $225,000.00 | 122028 | |
| 4 | 10/08/2014 | SWD | Statutory Warranty Deed | | | | | | 122206 | |
| 5 | 08/03/2004 | SWD | Statutory Warranty Deed | ANTON, DONALD L & BILLIE | ETHRIDGE, DALE/RUSSELL, TARA | 0 | 0 | $196,000.00 | 101103 | 0 |
| 6 | 04/04/2002 | QCD | Quit Claim Deed | MICHAEL W WOGOMAN | DONALD L/BILLIE J ANTON | 0 | 0 | $0.00 | 94405 | 0 |
| 7 | 11/16/1999 | SWD | Statutory Warranty Deed | ANTON, DONALD/BILLIE | WOGOMAN, MICHAEL | 0 | 0 | $0.00 | 88363 | 0 |
Payout Agreement
| No payout information available.. |