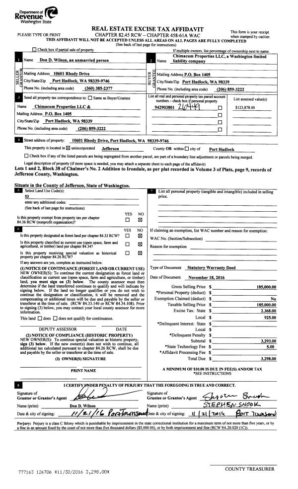
Property
Account |
| Property ID: | 20884 | Abbreviated Legal Description: | S33 T28 R1E TAX 79 (LS TX 84) |
| Parcel # / Geo ID: | 821334087 | Agent Code: | |
| Type: | Real | | |
| Tax Area: | 0213 - 1-49F1E1H2L1 | Land Use Code | 11 |
| Open Space: | N | DFL | N |
| Historic Property: | N | Remodel Property: | N |
| Multi-Family Redevelopment: | N | | |
| Township: | 28N | Section: | 33 |
| Range: | 1E |
Location |
| Address: | 223 SCENIC VIEW LN PORT LUDLOW, WA 98365 | Mapsco: | 162/010 |
| Neighborhood: | S33 T28 R1E;SHINE PLTS;WATNEY'S S;TEAL/SANTY/SHAW/JAKUM/CARL | Map ID: | |
| Neighborhood CD: | 3385 |
Owner |
| Name: | JERROLD D GAMER | Owner ID: | 48399 |
| Mailing Address: | 223 SCENIC VIEW LN PORT LUDLOW, WA 98365-8207 | % Ownership: | 100.0000000000% |
| | | Exemptions: | |
Pay Tax Due
There is currently No Amount Due on this property.
Taxes and Assessment Details
Property Tax Information as of
10/24/2025
Click on "Statement Details" to expand or collapse a tax statement.
* Please enter a valid date ** Please enter a valid date *
Statement Details |
| | TOTAL: | $0.00 | $0.00 | $0.00 | $0.00 | $0.00 | $0.00 |
|
| | $0.00 | $0.00 | $0.00 | $0.00 | $0.00 | $0.00 |
Values
| (+) Improvement Homesite Value: | + | $0 | |
| (+) Improvement Non-Homesite Value: | + | $612,007 | |
| (+) Land Homesite Value: | + | $0 | |
| (+) Land Non-Homesite Value: | + | $184,925 | |
| (+) Curr Use (HS): | + | $0 | $0 |
| (+) Curr Use (NHS): | + | $0 | $0 |
| | | -------------------------- | |
| (=) Market Value: | = | $796,932 | |
| (–) Productivity Loss: | – | $0 | |
| | | -------------------------- | |
| (=) Subtotal: | = | $796,932 | |
| (+) Senior Appraised Value: | + | $0 | |
| (+) Non-Senior Appraised Value: | + | $796,932 | |
| | | -------------------------- | |
| (=) Total Appraised Value: | = | $796,932 | |
| (–) Senior Exemption Loss: | – | $0 | |
| (–) Exemption Loss: | – | $0 | |
| | | -------------------------- | |
| (=) Taxable Value: | = | $796,932 | |
Taxing Jurisdiction
| Owner: | JERROLD D GAMER | | |
| % Ownership: | 100.0000000000% | | |
| Total Value: | N/A | | |
| Tax Area: | 0213 - 1-49F1E1H2L1 |
| CE | COUNTY CURRENT EXPENSE | N/A | N/A | N/A | N/A | | |
| CNTYDD | DEVELOPMENTAL DISABILITIES | N/A | N/A | N/A | N/A | | |
| CNTYVET | VETERANS RELIEF | N/A | N/A | N/A | N/A | | |
| MENTAL | MENTAL HEALTH | N/A | N/A | N/A | N/A | | |
| ROADS | COUNTY ROADS | N/A | N/A | N/A | N/A | | |
| ROADSCU | COUNTY ROADS TO CUR EXP | N/A | N/A | N/A | N/A | | |
| HOSP2CASH | HOSP DIST #2 GENERAL | N/A | N/A | N/A | N/A | | |
| SCH49CP | SCHOOL DIST #49 CAP PROJ | N/A | N/A | N/A | N/A | | |
| SCH49MO | SCHOOL DIST #49 EP & O | N/A | N/A | N/A | N/A | | |
| CONSERVE | CONSERVATION FUTURES | N/A | N/A | N/A | N/A | | |
| EMS1 | FIRE DIST #1 EMS | N/A | N/A | N/A | N/A | | |
| FD1 | FIRE DIST #1 GENERAL | N/A | N/A | N/A | N/A | | |
| LIB1 | LIBRARY DIST #1 GENERAL | N/A | N/A | N/A | N/A | | |
| PORTPT | PORT OF PT GENERAL | N/A | N/A | N/A | N/A | | |
| PORTPTIDD | PORT OF PT IDD 2019 | N/A | N/A | N/A | N/A | | |
| PUD1 | PUD #1 GENERAL | N/A | N/A | N/A | N/A | | |
| STATE | STATE SCHOOL PART 1 | N/A | N/A | N/A | N/A | | |
| STATE2 | STATE SCHOOL PART 2 | N/A | N/A | N/A | N/A | | |
| | Total Tax Rate: | N/A | | | | | |
| | | | | Taxes w/Current Exemptions: | N/A | | |
| | | | | Taxes w/o Exemptions: | N/A | | |
Improvement / Building
| Improvement #1: | Residential Bldg | State Code: | 11 | 2575.0 sqft | Value: | $612,007 |
| Bathrooms (#): | 2 (FULL) | Bedrooms (#): | 3 | | Exterior Wall: | SI/ST | Fireplace: | WD ST-GOOD | | Floor Construction: | FRAME | Foundation: | CONPR | | Heating/Cooling: | HPUMP | Inside Verify: | YES | | Roof Cover: | TILE |   |   |
|
| | Type | Description | Class CD | Sub Class CD | Year Built | Area |
| | MA | Main Area | 4- | 1S | 1991 | 2575.0 |
| | HWPOR | House Wood Porch | 4 | * | 1991 | 24.0 |
| | HCPOR | House Concrete Porch | 4 | * | 1991 | 91.0 |
| | HDECK | House Deck | 4 | * | 1991 | 642.0 |
| | GATT | House Attached Garage | 4 | * | 1991 | 576.0 |
| | SHED | Shed (Table Not Dep) | 4 | * | 1991 | 180.0 |
| | OTHER | Other | 4 | * | 1991 | 0.0 |
| | ASPHD | Asphalt Drive | 3 | * | 1991 | 1500.0 |
| | HRPO | House Roof Patio | 4 | * | 1991 | 80.0 |
| | GARAG | Garage (Table Not Dep) | 4 | * | 2020 | 1248.0 |
Sketch
Property Image
Land
| 1 | 3385-1345S | Good Wtr View Sites 1+/- Acre | 1.0000 | 43560.00 | 0.00 | 0.00 | 1.00 | $161,700 | $0 |
| 2 | 3385-1555A | Avg Water Views <6 Acres | 1.3800 | 60112.80 | 0.00 | 0.00 | 0.00 | $23,225 | $0 |
Roll Value History
| 2025 | N/A | N/A | N/A | N/A | N/A |
| 2024 | $586,507 | $176,520 | $0 | $763,027 | $763,027 |
| 2023 | $561,007 | $163,114 | $0 | $724,121 | $724,121 |
| 2022 | $561,007 | $155,630 | $0 | $716,637 | $716,637 |
| 2021 | $394,170 | $140,292 | $0 | $534,462 | $534,462 |
Deed and Sales History
| 1 | 05/20/2004 | CPA | Community Property Agreement | | | | | | 128566 | |
| 2 | 05/20/2004 | QCD | Quit Claim Deed | GAMER, JERROLD D | GAMER, JERROLD/RUSSELL, SARAH | 0 | 0 | $0.00 | 100319 | 0 |
| 3 | 10/14/1998 | SWD | Statutory Warranty Deed | SWILLEY, JOHN R/TERRI L | GAMER, JERROLD D | 0 | 0 | $283,000.00 | 85615 | 0 |
Payout Agreement
| No payout information available.. |