Property
Account |
| Property ID: | 20904 | Abbreviated Legal Description: | S34 T28 R1E TAX 55 & TL TAX A(LS A-1 - A-5) |
| Parcel # / Geo ID: | 821343001 | Agent Code: | |
| Type: | Real | | |
| Tax Area: | 0213 - 1-49F1E1H2L1 | Land Use Code | 11 |
| Open Space: | N | DFL | N |
| Historic Property: | N | Remodel Property: | N |
| Multi-Family Redevelopment: | N | | |
| Township: | 28N | Section: | 34 |
| Range: | 1E |
Location |
| Address: | 701 SHINE RD PORT LUDLOW, WA 98365 | Mapsco: | 164/019 |
| Neighborhood: | S34 T28N R1E/SHORT PLATS/MADRONA VISTA | Map ID: | |
| Neighborhood CD: | 3380 |
Owner |
| Name: | SMOYSHINE LLC | Owner ID: | 104799 |
| Mailing Address: | 701 SHINE RD PORT LUDLOW, WA 98365-9284 | % Ownership: | 100.0000000000% |
| | | Exemptions: | |
Pay Tax Due
There is currently No Amount Due on this property.
Taxes and Assessment Details
Property Tax Information as of
10/24/2025
Click on "Statement Details" to expand or collapse a tax statement.
* Please enter a valid date ** Please enter a valid date *
Statement Details |
| | TOTAL: | $0.00 | $0.00 | $0.00 | $0.00 | $0.00 | $0.00 |
|
| | $0.00 | $0.00 | $0.00 | $0.00 | $0.00 | $0.00 |
Values
| (+) Improvement Homesite Value: | + | $0 | |
| (+) Improvement Non-Homesite Value: | + | $804,574 | |
| (+) Land Homesite Value: | + | $0 | |
| (+) Land Non-Homesite Value: | + | $544,545 | |
| (+) Curr Use (HS): | + | $0 | $0 |
| (+) Curr Use (NHS): | + | $0 | $0 |
| | | -------------------------- | |
| (=) Market Value: | = | $1,349,119 | |
| (–) Productivity Loss: | – | $0 | |
| | | -------------------------- | |
| (=) Subtotal: | = | $1,349,119 | |
| (+) Senior Appraised Value: | + | $0 | |
| (+) Non-Senior Appraised Value: | + | $1,349,119 | |
| | | -------------------------- | |
| (=) Total Appraised Value: | = | $1,349,119 | |
| (–) Senior Exemption Loss: | – | $0 | |
| (–) Exemption Loss: | – | $0 | |
| | | -------------------------- | |
| (=) Taxable Value: | = | $1,349,119 | |
Taxing Jurisdiction
| Owner: | SMOYSHINE LLC | | |
| % Ownership: | 100.0000000000% | | |
| Total Value: | N/A | | |
| Tax Area: | 0213 - 1-49F1E1H2L1 |
| CE | COUNTY CURRENT EXPENSE | N/A | N/A | N/A | N/A | | |
| CNTYDD | DEVELOPMENTAL DISABILITIES | N/A | N/A | N/A | N/A | | |
| CNTYVET | VETERANS RELIEF | N/A | N/A | N/A | N/A | | |
| MENTAL | MENTAL HEALTH | N/A | N/A | N/A | N/A | | |
| ROADS | COUNTY ROADS | N/A | N/A | N/A | N/A | | |
| ROADSCU | COUNTY ROADS TO CUR EXP | N/A | N/A | N/A | N/A | | |
| HOSP2CASH | HOSP DIST #2 GENERAL | N/A | N/A | N/A | N/A | | |
| SCH49CP | SCHOOL DIST #49 CAP PROJ | N/A | N/A | N/A | N/A | | |
| SCH49MO | SCHOOL DIST #49 EP & O | N/A | N/A | N/A | N/A | | |
| CONSERVE | CONSERVATION FUTURES | N/A | N/A | N/A | N/A | | |
| EMS1 | FIRE DIST #1 EMS | N/A | N/A | N/A | N/A | | |
| FD1 | FIRE DIST #1 GENERAL | N/A | N/A | N/A | N/A | | |
| LIB1 | LIBRARY DIST #1 GENERAL | N/A | N/A | N/A | N/A | | |
| PORTPT | PORT OF PT GENERAL | N/A | N/A | N/A | N/A | | |
| PORTPTIDD | PORT OF PT IDD 2019 | N/A | N/A | N/A | N/A | | |
| PUD1 | PUD #1 GENERAL | N/A | N/A | N/A | N/A | | |
| STATE | STATE SCHOOL PART 1 | N/A | N/A | N/A | N/A | | |
| STATE2 | STATE SCHOOL PART 2 | N/A | N/A | N/A | N/A | | |
| | Total Tax Rate: | N/A | | | | | |
| | | | | Taxes w/Current Exemptions: | N/A | | |
| | | | | Taxes w/o Exemptions: | N/A | | |
Improvement / Building
| Improvement #1: | Residential Bldg | State Code: | 11 | 2827.0 sqft | Value: | $804,574 |
| Bathrooms (#): | 2 (FULL) | Bedrooms (#): | 2 | | Exterior Wall: | SI/ST | Fireplace: | PROPS-GOOD | | Fireplace: | WD ST-GOOD | Floor Construction: | FRAME | | Foundation: | CONPR | Heating/Cooling: | HPUMP | | Inside Verify: | NO | Roof Cover: | COMP |
|
| | Type | Description | Class CD | Sub Class CD | Year Built | Area |
| | MA | Main Area | 5 | 15SF | 1990 | 1794.0 |
| | MA2 | Second Floor Main Area | 5 | 15SF | 1990 | 1033.0 |
| | PATIO | House Patio | 5 | * | 1990 | 160.0 |
| | HWPOR | House Wood Porch | 5 | * | 1990 | 120.0 |
| | HCPOR | House Concrete Porch | 5 | * | 1990 | 72.0 |
| | HDECK | House Deck | 5 | * | 1990 | 450.0 |
| | GDET | Detached Garage | 4 | 15SF | 1990 | 720.0 |
| | CARPTN | Carport W/O Floor | 4 | * | 1990 | 180.0 |
| | SHED | Shed (Table Not Dep) | 4 | * | 1990 | 120.0 |
| | OTHER | Other | 4 | * | 1990 | 0.0 |
| | HLOFT | House Loft | 4 | * | 1990 | 300.0 |
Sketch
Property Image
Land
| 1 | 9301F | Tidelands | 0.0000 | 0.00 | 0.00 | 0.00 | 0.00 | $6,776 | $0 |
| 2 | 3380-1341S | Excellent Wtr View Sites 1+/- Acre N of Shine Rd | 1.0000 | 43560.00 | 0.00 | 0.00 | 1.00 | $408,250 | $0 |
| 3 | 3380-1528F | Narrow Wtrfrt Strip Between Shine Rd and Beach | 0.0000 | 0.00 | 0.00 | 0.00 | 0.00 | $28,750 | $0 |
| 4 | 3380-1528F | Narrow Wtrfrt Strip Between Shine Rd and Beach | 0.0000 | 0.00 | 0.00 | 0.00 | 0.00 | $2,099 | $0 |
| 5 | 3380-1545A | Good Water Views <6 Acres | 3.9000 | 169884.00 | 0.00 | 0.00 | 0.00 | $98,670 | $0 |
Roll Value History
| 2025 | N/A | N/A | N/A | N/A | N/A |
| 2024 | $771,050 | $520,869 | $0 | $1,291,919 | $1,291,919 |
| 2023 | $771,050 | $468,517 | $0 | $1,239,567 | $1,239,567 |
| 2022 | $737,526 | $455,717 | $0 | $1,193,243 | $1,193,243 |
| 2021 | $444,920 | $413,090 | $0 | $858,010 | $858,010 |
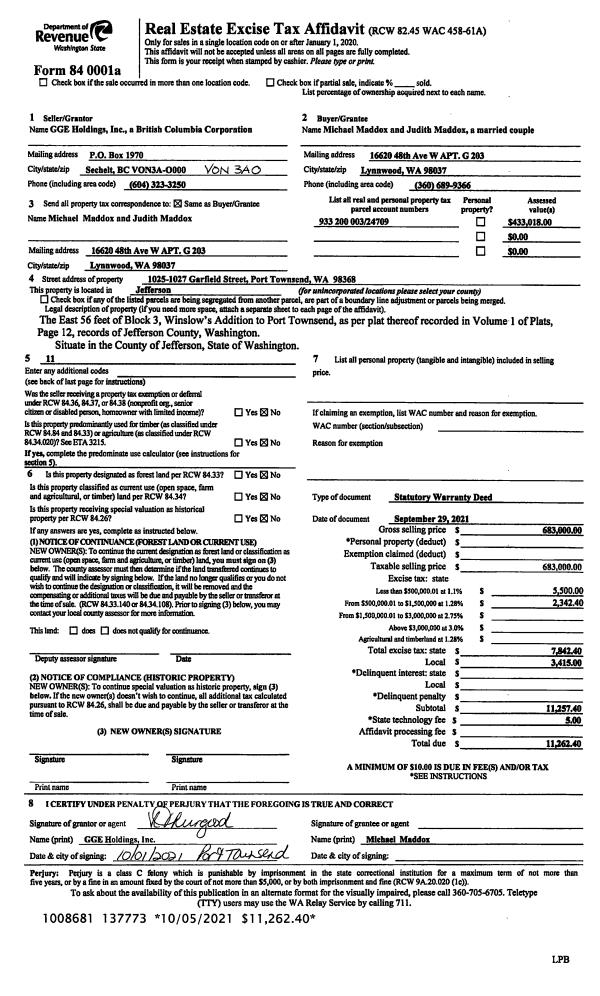
Deed and Sales History
| 1 | 05/14/2021 | SWD | Statutory Warranty Deed | | | | | | 136922 | |
| 2 | 05/14/2021 | SWD | Statutory Warranty Deed | MARK A BYL | SMOYSHINE LLC | | | $1,500,000.00 | 136755 | |
| 3 | 06/21/2006 | SWD | Statutory Warranty Deed | STROUD, DAVID ESTATE OF | BYL, MARK & JOAN | | | $630,000.00 | 106975 | 0 |
Payout Agreement
| No payout information available.. |