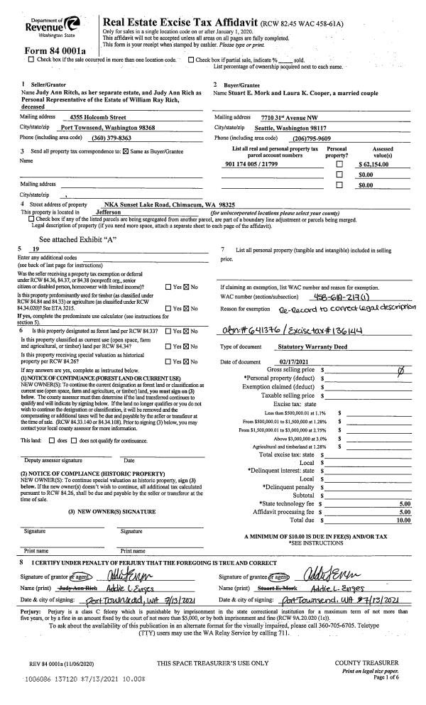
Property
Account |
| Property ID: | 20938 | Abbreviated Legal Description: | S34 T28 R1E S1/2 SE NW SE SUBJ TO EASE |
| Parcel # / Geo ID: | 821344005 | Agent Code: | |
| Type: | Real | | |
| Tax Area: | 0213 - 1-49F1E1H2L1 | Land Use Code | 11 |
| Open Space: | N | DFL | N |
| Historic Property: | N | Remodel Property: | N |
| Multi-Family Redevelopment: | N | | |
| Township: | 28N | Section: | 34 |
| Range: | 1E |
Location |
| Address: | 10 GARTEN RD PORT LUDLOW, WA 98365 | Mapsco: | 163/028 |
| Neighborhood: | S34 T28N R1E/SHORT PLATS/MADRONA VISTA | Map ID: | |
| Neighborhood CD: | 3380 |
Owner |
| Name: | MICHEL L FEELY | Owner ID: | 96089 |
| Mailing Address: | 10 GARTEN RD PORT LUDLOW, WA 98365 | % Ownership: | 100.0000000000% |
| | | Exemptions: | |
Pay Tax Due
There is currently No Amount Due on this property.
Taxes and Assessment Details
Property Tax Information as of
10/24/2025
Click on "Statement Details" to expand or collapse a tax statement.
* Please enter a valid date ** Please enter a valid date *
Statement Details |
| | TOTAL: | $0.00 | $0.00 | $0.00 | $0.00 | $0.00 | $0.00 |
|
| | $0.00 | $0.00 | $0.00 | $0.00 | $0.00 | $0.00 |
Values
| (+) Improvement Homesite Value: | + | $55,532 | |
| (+) Improvement Non-Homesite Value: | + | $26,038 | |
| (+) Land Homesite Value: | + | $147,683 | |
| (+) Land Non-Homesite Value: | + | $0 | |
| (+) Curr Use (HS): | + | $0 | $0 |
| (+) Curr Use (NHS): | + | $0 | $0 |
| | | -------------------------- | |
| (=) Market Value: | = | $229,253 | |
| (–) Productivity Loss: | – | $0 | |
| | | -------------------------- | |
| (=) Subtotal: | = | $229,253 | |
| (+) Senior Appraised Value: | + | $0 | |
| (+) Non-Senior Appraised Value: | + | $229,253 | |
| | | -------------------------- | |
| (=) Total Appraised Value: | = | $229,253 | |
| (–) Senior Exemption Loss: | – | $0 | |
| (–) Exemption Loss: | – | $0 | |
| | | -------------------------- | |
| (=) Taxable Value: | = | $229,253 | |
Taxing Jurisdiction
| Owner: | MICHEL L FEELY | | |
| % Ownership: | 100.0000000000% | | |
| Total Value: | N/A | | |
| Tax Area: | 0213 - 1-49F1E1H2L1 |
| CE | COUNTY CURRENT EXPENSE | N/A | N/A | N/A | N/A | | |
| CNTYDD | DEVELOPMENTAL DISABILITIES | N/A | N/A | N/A | N/A | | |
| CNTYVET | VETERANS RELIEF | N/A | N/A | N/A | N/A | | |
| MENTAL | MENTAL HEALTH | N/A | N/A | N/A | N/A | | |
| ROADS | COUNTY ROADS | N/A | N/A | N/A | N/A | | |
| ROADSCU | COUNTY ROADS TO CUR EXP | N/A | N/A | N/A | N/A | | |
| HOSP2CASH | HOSP DIST #2 GENERAL | N/A | N/A | N/A | N/A | | |
| SCH49CP | SCHOOL DIST #49 CAP PROJ | N/A | N/A | N/A | N/A | | |
| SCH49MO | SCHOOL DIST #49 EP & O | N/A | N/A | N/A | N/A | | |
| CONSERVE | CONSERVATION FUTURES | N/A | N/A | N/A | N/A | | |
| EMS1 | FIRE DIST #1 EMS | N/A | N/A | N/A | N/A | | |
| FD1 | FIRE DIST #1 GENERAL | N/A | N/A | N/A | N/A | | |
| LIB1 | LIBRARY DIST #1 GENERAL | N/A | N/A | N/A | N/A | | |
| PORTPT | PORT OF PT GENERAL | N/A | N/A | N/A | N/A | | |
| PORTPTIDD | PORT OF PT IDD 2019 | N/A | N/A | N/A | N/A | | |
| PUD1 | PUD #1 GENERAL | N/A | N/A | N/A | N/A | | |
| STATE | STATE SCHOOL PART 1 | N/A | N/A | N/A | N/A | | |
| STATE2 | STATE SCHOOL PART 2 | N/A | N/A | N/A | N/A | | |
| | Total Tax Rate: | N/A | | | | | |
| | | | | Taxes w/Current Exemptions: | N/A | | |
| | | | | Taxes w/o Exemptions: | N/A | | |
Improvement / Building
| Improvement #1: | Manufactured Home | State Code: | 11M | 924.0 sqft | Value: | $55,532 |
| Bathrooms (#): | 2 (FULL) | Bedrooms (#): | 3 | | Exterior Wall: | METAL | Fireplace: | WD ST-GOOD | | Floor Construction: | FRAME | Foundation: | PO&BL | | Heating/Cooling: | F/A | Inside Verify: | YES | | Roof Cover: | BLTUP |   |   |
|
| | Type | Description | Class CD | Sub Class CD | Year Built | Area |
| | MA | Main Area | 2 | MSG | 1984 | 924.0 |
| | MWPOR | MH Wood Porch | 2 | * | 1984 | 390.0 |
| | CARPTF | Carport W/Floor | 2 | * | 1984 | 385.0 |
| | MRPO | MH Roof Porch | 2 | * | 1984 | 32.0 |
| | MADDN | MH Addition | 2 | * | 1984 | 209.0 |
| | MADDN | MH Addition | 2 | * | 1984 | 220.0 |
| | MSKIRT_MTL | MH Skirting - Metal/Vinyl | 2 | * | 1984 | 160.0 |
| Improvement #2: | Manufactured Home | State Code: | 11M | 0.0 sqft | Value: | $26,038 |
Sketch
Property Image
Land
| 1 | 3380-1565A | No or Some Wtr/Terr Views <6 Acres | 3.3400 | 145490.40 | 0.00 | 0.00 | 0.00 | $49,933 | $0 |
| 2 | 3380-1365S | Fair Wtr View Sites 1+/- Acre | 1.0000 | 43560.00 | 0.00 | 0.00 | 1.00 | $97,750 | $0 |
Roll Value History
| 2025 | N/A | N/A | N/A | N/A | N/A |
| 2024 | $78,172 | $141,262 | $0 | $219,434 | $219,434 |
| 2023 | $78,172 | $123,420 | $0 | $201,592 | $201,592 |
| 2022 | $74,773 | $111,740 | $0 | $186,513 | $186,513 |
| 2021 | $75,180 | $94,568 | $0 | $169,748 | $169,748 |
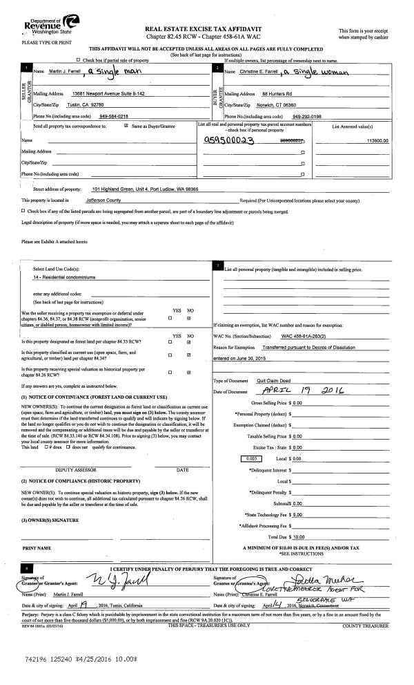
Deed and Sales History
| 1 | 09/07/2016 | QCD | Quit Claim Deed | DEAN PRITCHETT | MICHEL L FEELY | | | $50,000.00 | 126236 | |
|   | |
| 2 | 09/16/1996 | QCD | Quit Claim Deed | SHERMAN, WILLIAM A | PRITCHETT, DEAN | 0 | 0 | $80,000.00 | 80381 | 0 |
|   | |
| 3 | 08/08/1994 | QCD | Quit Claim Deed | SHERMAN, GEORGE/EST | SHERMAN, WILLIAM | 0 | 0 | $0.00 | 74892 | 0 |
| 4 | 06/06/1994 | QCD | Quit Claim Deed | FIELDS, DOROTHY | SHERMAN, GEORGE/EST | 0 | 0 | $0.00 | 74890 | 0 |
| 5 | 04/27/1994 | QCD | Quit Claim Deed | SHERMAN, ALVIN D | SHERMAN, GEORGE/EST | 0 | 0 | $0.00 | 74891 | 0 |
Payout Agreement
| No payout information available.. |