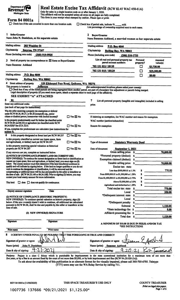
Property
Account |
| Property ID: | 20955 | Abbreviated Legal Description: | S34 T28 R1E TAX 21 |
| Parcel # / Geo ID: | 821344030 | Agent Code: | |
| Type: | Real | | |
| Tax Area: | 0213 - 1-49F1E1H2L1 | Land Use Code | 11 |
| Open Space: | N | DFL | N |
| Historic Property: | N | Remodel Property: | N |
| Multi-Family Redevelopment: | N | | |
| Township: | 28N | Section: | 34 |
| Range: | 1E |
Location |
| Address: | 222 STARK RD PORT LUDLOW, WA 98365 | Mapsco: | 163/068 |
| Neighborhood: | S34 T28N R1E/SHORT PLATS/MADRONA VISTA | Map ID: | |
| Neighborhood CD: | 3380 |
Owner |
| Name: | BRADY C & LYDIA J BLAKE | Owner ID: | 107247 |
| Mailing Address: | 222 STARK RD PORT LUDLOW, WA 98365-9513 | % Ownership: | 100.0000000000% |
| | | Exemptions: | |
Pay Tax Due
There is currently No Amount Due on this property.
Taxes and Assessment Details
Property Tax Information as of
10/24/2025
Click on "Statement Details" to expand or collapse a tax statement.
* Please enter a valid date ** Please enter a valid date *
Statement Details |
| | TOTAL: | $0.00 | $0.00 | $0.00 | $0.00 | $0.00 | $0.00 |
|
| | $0.00 | $0.00 | $0.00 | $0.00 | $0.00 | $0.00 |
Values
| (+) Improvement Homesite Value: | + | $0 | |
| (+) Improvement Non-Homesite Value: | + | $17,382 | |
| (+) Land Homesite Value: | + | $0 | |
| (+) Land Non-Homesite Value: | + | $94,588 | |
| (+) Curr Use (HS): | + | $0 | $0 |
| (+) Curr Use (NHS): | + | $0 | $0 |
| | | -------------------------- | |
| (=) Market Value: | = | $111,970 | |
| (–) Productivity Loss: | – | $0 | |
| | | -------------------------- | |
| (=) Subtotal: | = | $111,970 | |
| (+) Senior Appraised Value: | + | $0 | |
| (+) Non-Senior Appraised Value: | + | $111,970 | |
| | | -------------------------- | |
| (=) Total Appraised Value: | = | $111,970 | |
| (–) Senior Exemption Loss: | – | $0 | |
| (–) Exemption Loss: | – | $0 | |
| | | -------------------------- | |
| (=) Taxable Value: | = | $111,970 | |
Taxing Jurisdiction
| Owner: | BRADY C & LYDIA J BLAKE | | |
| % Ownership: | 100.0000000000% | | |
| Total Value: | N/A | | |
| Tax Area: | 0213 - 1-49F1E1H2L1 |
| CE | COUNTY CURRENT EXPENSE | N/A | N/A | N/A | N/A | | |
| CNTYDD | DEVELOPMENTAL DISABILITIES | N/A | N/A | N/A | N/A | | |
| CNTYVET | VETERANS RELIEF | N/A | N/A | N/A | N/A | | |
| MENTAL | MENTAL HEALTH | N/A | N/A | N/A | N/A | | |
| ROADS | COUNTY ROADS | N/A | N/A | N/A | N/A | | |
| ROADSCU | COUNTY ROADS TO CUR EXP | N/A | N/A | N/A | N/A | | |
| HOSP2CASH | HOSP DIST #2 GENERAL | N/A | N/A | N/A | N/A | | |
| SCH49CP | SCHOOL DIST #49 CAP PROJ | N/A | N/A | N/A | N/A | | |
| SCH49MO | SCHOOL DIST #49 EP & O | N/A | N/A | N/A | N/A | | |
| CONSERVE | CONSERVATION FUTURES | N/A | N/A | N/A | N/A | | |
| EMS1 | FIRE DIST #1 EMS | N/A | N/A | N/A | N/A | | |
| FD1 | FIRE DIST #1 GENERAL | N/A | N/A | N/A | N/A | | |
| LIB1 | LIBRARY DIST #1 GENERAL | N/A | N/A | N/A | N/A | | |
| PORTPT | PORT OF PT GENERAL | N/A | N/A | N/A | N/A | | |
| PORTPTIDD | PORT OF PT IDD 2019 | N/A | N/A | N/A | N/A | | |
| PUD1 | PUD #1 GENERAL | N/A | N/A | N/A | N/A | | |
| STATE | STATE SCHOOL PART 1 | N/A | N/A | N/A | N/A | | |
| STATE2 | STATE SCHOOL PART 2 | N/A | N/A | N/A | N/A | | |
| | Total Tax Rate: | N/A | | | | | |
| | | | | Taxes w/Current Exemptions: | N/A | | |
| | | | | Taxes w/o Exemptions: | N/A | | |
Improvement / Building
| Improvement #1: | Manufactured Home | State Code: | 11 | 550.0 sqft | Value: | $17,382 |
| Bathrooms (#): | 1 (FULL) | Bedrooms (#): | 2 | | Exterior Wall: | METAL | Fireplace: | WD ST-GOOD | | Floor Construction: | FRAME | Foundation: | PO&BL | | Heating/Cooling: | F/A | Inside Verify: | NO | | Roof Cover: | METAL |   |   |
|
| | Type | Description | Class CD | Sub Class CD | Year Built | Area |
| | MA | Main Area | 2 | MSG | 1965 | 550.0 |
| | MDECK | MH Deck | 2 | * | 1965 | 108.0 |
| | ADDN | Addition (Table Not Dep) | 1 | * | 1965 | 240.0 |
| | MRPO | MH Roof Porch | 2 | * | 1965 | 168.0 |
Sketch
Property Image
Land
| 1 | 3380-1365S | Fair Wtr View Sites 1+/- Acre | 0.0000 | 0.00 | 0.00 | 0.00 | 1.00 | $94,588 | $0 |
Roll Value History
| 2025 | N/A | N/A | N/A | N/A | N/A |
| 2024 | $16,658 | $90,475 | $0 | $107,133 | $107,133 |
| 2023 | $16,658 | $77,250 | $0 | $93,908 | $93,908 |
| 2022 | $15,933 | $72,250 | $0 | $88,183 | $88,183 |
| 2021 | $15,128 | $58,725 | $0 | $73,853 | $73,853 |
Deed and Sales History
| 1 | 06/23/2022 | SWD | Statutory Warranty Deed | MICHEL L FEELY | BRADY C & LYDIA J BLAKE | | | $110,000.00 | 139384 | |
| 2 | 09/07/2016 | QCD | Quit Claim Deed | DEAN PRITCHETT | MICHEL L FEELY | | | $50,000.00 | 126236 | |
|   | |
| 3 | 09/16/1996 | QCD | Quit Claim Deed | SHERMAN, WILLIAM A | PRITCHETT, DEAN | 0 | 0 | $80,000.00 | 80381 | 0 |
|   | |
| 4 | 08/08/1994 | QCD | Quit Claim Deed | SHERMAN, GEORGE/EST | SHERMAN, WILLIAM | 0 | 0 | $0.00 | 74892 | 0 |
| 5 | 06/06/1994 | QCD | Quit Claim Deed | FIELDS, DOROTHY | SHERMAN, GEORGE/EST | 0 | 0 | $0.00 | 74890 | 0 |
| 6 | 04/27/1994 | QCD | Quit Claim Deed | SHERMAN, ALVIN D | SHERMAN, GEORGE/EST | 0 | 0 | $0.00 | 74891 | 0 |
Payout Agreement
| No payout information available.. |