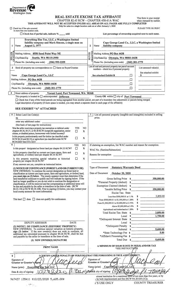
Property
Account |
| Property ID: | 21009 | Abbreviated Legal Description: | HOSFELDT SHORT PLAT LOT 1 SUBJ/OPEN SPACE |
| Parcel # / Geo ID: | 821351026 | Agent Code: | |
| Type: | Real | | |
| Tax Area: | 0213 - 1-49F1E1H2L1 | Land Use Code | 11 |
| Open Space: | N | DFL | N |
| Historic Property: | N | Remodel Property: | N |
| Multi-Family Redevelopment: | N | | |
| Township: | 28N | Section: | 35 |
| Range: | 1E |
Location |
| Address: | 5175 PARADISE BAY RD PORT LUDLOW, WA 98365 | Mapsco: | 233/038 |
| Neighborhood: | BRIDGE VIEW EST.; OLYMPIC RIDGE; S35 T28N R1E; BROOKS,PRINCE | Map ID: | |
| Neighborhood CD: | 3375 |
Owner |
| Name: | JOSEPH P & ANUSHA M FERNANDO | Owner ID: | 105571 |
| Mailing Address: | 15309 179TH AVE NE WOODINVILLE, WA 98072-6388 | % Ownership: | 100.0000000000% |
| | | Exemptions: | |
Pay Tax Due
There is currently No Amount Due on this property.
Taxes and Assessment Details
Property Tax Information as of
10/24/2025
Click on "Statement Details" to expand or collapse a tax statement.
* Please enter a valid date ** Please enter a valid date *
Statement Details |
| | TOTAL: | $0.00 | $0.00 | $0.00 | $0.00 | $0.00 | $0.00 |
|
| | $0.00 | $0.00 | $0.00 | $0.00 | $0.00 | $0.00 |
Values
| (+) Improvement Homesite Value: | + | $0 | |
| (+) Improvement Non-Homesite Value: | + | $768,571 | |
| (+) Land Homesite Value: | + | $0 | |
| (+) Land Non-Homesite Value: | + | $186,530 | |
| (+) Curr Use (HS): | + | $0 | $0 |
| (+) Curr Use (NHS): | + | $0 | $0 |
| | | -------------------------- | |
| (=) Market Value: | = | $955,101 | |
| (–) Productivity Loss: | – | $0 | |
| | | -------------------------- | |
| (=) Subtotal: | = | $955,101 | |
| (+) Senior Appraised Value: | + | $0 | |
| (+) Non-Senior Appraised Value: | + | $955,101 | |
| | | -------------------------- | |
| (=) Total Appraised Value: | = | $955,101 | |
| (–) Senior Exemption Loss: | – | $0 | |
| (–) Exemption Loss: | – | $0 | |
| | | -------------------------- | |
| (=) Taxable Value: | = | $955,101 | |
Taxing Jurisdiction
| Owner: | JOSEPH P & ANUSHA M FERNANDO | | |
| % Ownership: | 100.0000000000% | | |
| Total Value: | N/A | | |
| Tax Area: | 0213 - 1-49F1E1H2L1 |
| CE | COUNTY CURRENT EXPENSE | N/A | N/A | N/A | N/A | | |
| CNTYDD | DEVELOPMENTAL DISABILITIES | N/A | N/A | N/A | N/A | | |
| CNTYVET | VETERANS RELIEF | N/A | N/A | N/A | N/A | | |
| MENTAL | MENTAL HEALTH | N/A | N/A | N/A | N/A | | |
| ROADS | COUNTY ROADS | N/A | N/A | N/A | N/A | | |
| ROADSCU | COUNTY ROADS TO CUR EXP | N/A | N/A | N/A | N/A | | |
| HOSP2CASH | HOSP DIST #2 GENERAL | N/A | N/A | N/A | N/A | | |
| SCH49CP | SCHOOL DIST #49 CAP PROJ | N/A | N/A | N/A | N/A | | |
| SCH49MO | SCHOOL DIST #49 EP & O | N/A | N/A | N/A | N/A | | |
| CONSERVE | CONSERVATION FUTURES | N/A | N/A | N/A | N/A | | |
| EMS1 | FIRE DIST #1 EMS | N/A | N/A | N/A | N/A | | |
| FD1 | FIRE DIST #1 GENERAL | N/A | N/A | N/A | N/A | | |
| LIB1 | LIBRARY DIST #1 GENERAL | N/A | N/A | N/A | N/A | | |
| PORTPT | PORT OF PT GENERAL | N/A | N/A | N/A | N/A | | |
| PORTPTIDD | PORT OF PT IDD 2019 | N/A | N/A | N/A | N/A | | |
| PUD1 | PUD #1 GENERAL | N/A | N/A | N/A | N/A | | |
| STATE | STATE SCHOOL PART 1 | N/A | N/A | N/A | N/A | | |
| STATE2 | STATE SCHOOL PART 2 | N/A | N/A | N/A | N/A | | |
| | Total Tax Rate: | N/A | | | | | |
| | | | | Taxes w/Current Exemptions: | N/A | | |
| | | | | Taxes w/o Exemptions: | N/A | | |
Improvement / Building
| Improvement #1: | Residential Bldg | State Code: | 11 | 3216.0 sqft | Value: | $768,571 |
| Bathrooms (#): | 3 (FULL) | Bedrooms (#): | 3 | | Exterior Wall: | LOG | Fireplace: | WD ST-GOOD | | Floor Construction: | FRAME | Foundation: | CONPR | | Heating/Cooling: | F/A | Inside Verify: | NO | | Roof Cover: | COMP |   |   |
|
| | Type | Description | Class CD | Sub Class CD | Year Built | Area |
| | MA | Main Area | 5- | 15SF | 1996 | 1808.0 |
| | MA2 | Second Floor Main Area | 5- | 15SF | 1996 | 1408.0 |
| | HWPOR | House Wood Porch | 4 | * | 1996 | 858.0 |
| | HDECK | House Deck | 4 | * | 1996 | 270.0 |
| | CARPTN | Carport W/O Floor | 4 | * | 1996 | 1152.0 |
| | GARAG | Garage (Table Not Dep) | 3 | * | 1996 | 2280.0 |
Sketch
Property Image
Land
| 1 | 3375-1373S | Terr/Filtered Wtr Views 1+/- Acre | 1.0000 | 43560.00 | 0.00 | 0.00 | 1.00 | $126,500 | $0 |
| 2 | 1675A | Terr/Mtn/No View 6-15 Acres | 7.2000 | 313632.00 | 0.00 | 0.00 | 0.00 | $60,030 | $0 |
Roll Value History
| 2025 | N/A | N/A | N/A | N/A | N/A |
| 2024 | $736,547 | $178,420 | $0 | $914,967 | $914,967 |
| 2023 | $704,524 | $163,170 | $0 | $867,694 | $867,694 |
| 2022 | $768,571 | $146,800 | $0 | $915,371 | $915,371 |
| 2021 | $555,310 | $121,200 | $0 | $676,510 | $676,510 |
Deed and Sales History
| 1 | 09/06/2021 | SWD | Statutory Warranty Deed | JAMES DICKASON | JOSEPH P & ANUSHA M FERNANDO | | | $895,000.00 | 137596 | |
| 2 | 05/03/2021 | SWD | Statutory Warranty Deed | MICHAEL E CLOSSER | JAMES DICKASON | | | $895,000.00 | 136667 | |
| 3 | 12/03/2019 | QCD | Quit Claim Deed | | | | | | 133622 | |
| 4 | 12/03/2019 | SWD | Statutory Warranty Deed | KAREN S HOSFELDT | MICHAEL E CLOSSER | | | $680,000.00 | 133621 | |
| 5 | 09/18/2018 | PRD | Personal Representatives Deed | | | | | | 131137 | |
Payout Agreement
| No payout information available.. |