Property
Account |
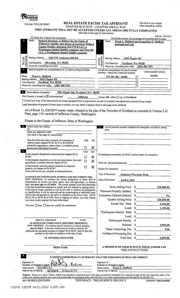
| Property ID: | 21017 | Abbreviated Legal Description: | RONALD BYERS SHORT PLAT LOT A WITH & SUBJ/EASE |
| Parcel # / Geo ID: | 821353004 | Agent Code: | |
| Type: | Real | | |
| Tax Area: | 0213 - 1-49F1E1H2L1 | Land Use Code | 11 |
| Open Space: | N | DFL | N |
| Historic Property: | N | Remodel Property: | N |
| Multi-Family Redevelopment: | N | | |
| Township: | 28N | Section: | 35 |
| Range: | 1E |
Location |
| Address: | 130 HOODSVIEW CT PORT LUDLOW, WA 98365 | Mapsco: | 226/094 |
| Neighborhood: | BRIDGE VIEW EST.; OLYMPIC RIDGE; S35 T28N R1E; BROOKS,PRINCE | Map ID: | |
| Neighborhood CD: | 3375 |
Owner |
| Name: | ROBERT S SULLIVAN & W WAYNE RITCHIE | Owner ID: | 111458 |
| Mailing Address: | 130 HOODS VIEW CT PORT LUDLOW, WA 98365-9538 | % Ownership: | 100.0000000000% |
| | | Exemptions: | |
Pay Tax Due
There is currently No Amount Due on this property.
Taxes and Assessment Details
Property Tax Information as of
10/24/2025
Click on "Statement Details" to expand or collapse a tax statement.
* Please enter a valid date ** Please enter a valid date *
Statement Details |
| | TOTAL: | $0.00 | $0.00 | $0.00 | $0.00 | $0.00 | $0.00 |
|
| | $0.00 | $0.00 | $0.00 | $0.00 | $0.00 | $0.00 |
Values
| (+) Improvement Homesite Value: | + | $0 | |
| (+) Improvement Non-Homesite Value: | + | $686,442 | |
| (+) Land Homesite Value: | + | $0 | |
| (+) Land Non-Homesite Value: | + | $322,736 | |
| (+) Curr Use (HS): | + | $0 | $0 |
| (+) Curr Use (NHS): | + | $0 | $0 |
| | | -------------------------- | |
| (=) Market Value: | = | $1,009,178 | |
| (–) Productivity Loss: | – | $0 | |
| | | -------------------------- | |
| (=) Subtotal: | = | $1,009,178 | |
| (+) Senior Appraised Value: | + | $0 | |
| (+) Non-Senior Appraised Value: | + | $1,009,178 | |
| | | -------------------------- | |
| (=) Total Appraised Value: | = | $1,009,178 | |
| (–) Senior Exemption Loss: | – | $0 | |
| (–) Exemption Loss: | – | $0 | |
| | | -------------------------- | |
| (=) Taxable Value: | = | $1,009,178 | |
Taxing Jurisdiction
| Owner: | ROBERT S SULLIVAN & W WAYNE RITCHIE | | |
| % Ownership: | 100.0000000000% | | |
| Total Value: | N/A | | |
| Tax Area: | 0213 - 1-49F1E1H2L1 |
| CE | COUNTY CURRENT EXPENSE | N/A | N/A | N/A | N/A | | |
| CNTYDD | DEVELOPMENTAL DISABILITIES | N/A | N/A | N/A | N/A | | |
| CNTYVET | VETERANS RELIEF | N/A | N/A | N/A | N/A | | |
| MENTAL | MENTAL HEALTH | N/A | N/A | N/A | N/A | | |
| ROADS | COUNTY ROADS | N/A | N/A | N/A | N/A | | |
| ROADSCU | COUNTY ROADS TO CUR EXP | N/A | N/A | N/A | N/A | | |
| HOSP2CASH | HOSP DIST #2 GENERAL | N/A | N/A | N/A | N/A | | |
| SCH49CP | SCHOOL DIST #49 CAP PROJ | N/A | N/A | N/A | N/A | | |
| SCH49MO | SCHOOL DIST #49 EP & O | N/A | N/A | N/A | N/A | | |
| CONSERVE | CONSERVATION FUTURES | N/A | N/A | N/A | N/A | | |
| EMS1 | FIRE DIST #1 EMS | N/A | N/A | N/A | N/A | | |
| FD1 | FIRE DIST #1 GENERAL | N/A | N/A | N/A | N/A | | |
| LIB1 | LIBRARY DIST #1 GENERAL | N/A | N/A | N/A | N/A | | |
| PORTPT | PORT OF PT GENERAL | N/A | N/A | N/A | N/A | | |
| PORTPTIDD | PORT OF PT IDD 2019 | N/A | N/A | N/A | N/A | | |
| PUD1 | PUD #1 GENERAL | N/A | N/A | N/A | N/A | | |
| STATE | STATE SCHOOL PART 1 | N/A | N/A | N/A | N/A | | |
| STATE2 | STATE SCHOOL PART 2 | N/A | N/A | N/A | N/A | | |
| | Total Tax Rate: | N/A | | | | | |
| | | | | Taxes w/Current Exemptions: | N/A | | |
| | | | | Taxes w/o Exemptions: | N/A | | |
Improvement / Building
| Improvement #1: | Residential Bldg | State Code: | 11 | 2395.0 sqft | Value: | $507,359 |
| Bathrooms (#): | 2 (FULL) | Bedrooms (#): | 2 | | Exterior Wall: | SI/ST | Fireplace: | SIN 1-GOOD | | Floor Construction: | FRAME | Foundation: | CONPR | | Heating/Cooling: | F/A | Inside Verify: | YES | | Roof Cover: | COMP |   |   |
|
| | Type | Description | Class CD | Sub Class CD | Year Built | Area |
| | MA | Main Area | 4+ | 15SF | 1993 | 1825.0 |
| | MA2 | Second Floor Main Area | 4+ | 15SF | 1993 | 570.0 |
| | HDECK | House Deck | 4 | * | 1993 | 780.0 |
| | HCPOR | House Concrete Porch | 4 | * | 1993 | 74.0 |
| | HWPOR | House Wood Porch | 4 | * | 1993 | 98.0 |
| | GATT | House Attached Garage | 4 | * | 1993 | 528.0 |
| | ASPHD | Asphalt Drive | 4 | * | 1993 | 20000.0 |
| Improvement #2: | Residential Bldg | State Code: | 11 | 967.0 sqft | Value: | $179,083 |
| Bathrooms (#): | 1 (FULL) | Bedrooms (#): | 1 | | Exterior Wall: | SI/ST | Fireplace: | WD ST-GOOD | | Floor Construction: | FRAME | Foundation: | CONPR | | Heating/Cooling: | ELBB | Inside Verify: | YES | | Roof Cover: | COMP |   |   |
|
| | Type | Description | Class CD | Sub Class CD | Year Built | Area |
| | MA | Main Area | 3+ | 15SF | 1990 | 967.0 |
| | PATIO | House Patio | 4 | * | 1990 | 400.0 |
| | GBLTIN | Builtin Garage | 4 | 15SF | 1990 | 1152.0 |
Sketch
Property Image
Land
| 1 | 3375-1343S | V Good Wtr View Sites 1+/- Acre | 1.0000 | 43560.00 | 0.00 | 0.00 | 1.00 | $281,750 | $0 |
| 2 | 3375-1545A | Good Water Views <6 Acres | 1.9800 | 86248.80 | 0.00 | 0.00 | 0.00 | $40,986 | $0 |
Roll Value History
| 2025 | N/A | N/A | N/A | N/A | N/A |
| 2024 | $657,840 | $308,704 | $0 | $966,544 | $966,544 |
| 2023 | $629,239 | $284,172 | $0 | $913,411 | $913,411 |
| 2022 | $686,442 | $257,670 | $0 | $944,112 | $944,112 |
| 2021 | $541,063 | $233,700 | $0 | $774,763 | $774,763 |
Deed and Sales History
| 1 | 09/09/2024 | QCD | Quit Claim Deed | ROBERT S SULLIVAN | ROBERT S SULLIVAN & W WAYNE RITCHIE | | | | 143190 | |
| 2 | 08/11/2016 | SWD | Statutory Warranty Deed | RAYMOND E LUNDY | ROBERT S SULLIVAN | | | $734,000.00 | 126068 | |
| 3 | 08/06/1996 | SWD | Statutory Warranty Deed | BYERS FAMILY 94 REVOC TRU | LUNDY, RAYMOND E/JANET A | 0 | 0 | $400,000.00 | 80165 | 0 |
Payout Agreement
| No payout information available.. |