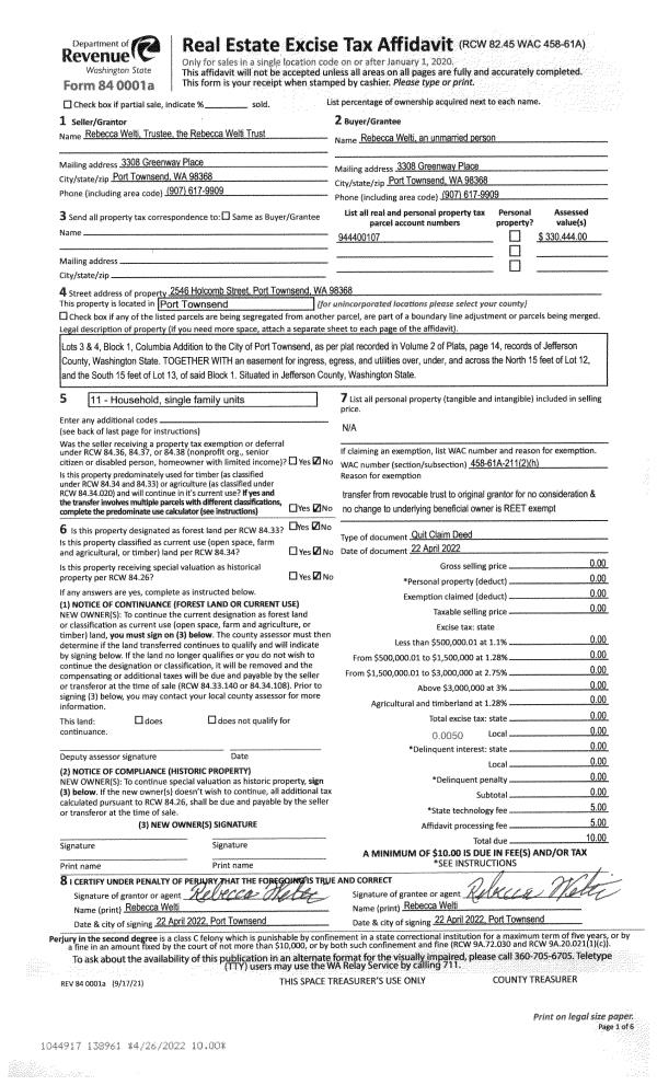
Property
Account |
| Property ID: | 21056 | Abbreviated Legal Description: | BRIDGE VIEW ESTATE TR DIV III LOT 22 V10/P53 |
| Parcel # / Geo ID: | 821355034 | Agent Code: | |
| Type: | Real | | |
| Tax Area: | 0213 - 1-49F1E1H2L1 | Land Use Code | 11 |
| Open Space: | N | DFL | N |
| Historic Property: | N | Remodel Property: | N |
| Multi-Family Redevelopment: | N | | |
| Township: | 28N | Section: | 35 |
| Range: | 1E |
Location |
| Address: | 514 BYWATER WAY PORT LUDLOW, WA 98365 | Mapsco: | 249/069 |
| Neighborhood: | BRIDGE VIEW EST.; OLYMPIC RIDGE; S35 T28N R1E; BROOKS,PRINCE | Map ID: | |
| Neighborhood CD: | 3375 |
Owner |
| Name: | JACOB K & JULIA J FULTON | Owner ID: | 91759 |
| Mailing Address: | 514 BYWATER WAY PORT LUDLOW, WA 98365-8222 | % Ownership: | 100.0000000000% |
| | | Exemptions: | |
Pay Tax Due
There is currently No Amount Due on this property.
Taxes and Assessment Details
Property Tax Information as of
10/24/2025
Click on "Statement Details" to expand or collapse a tax statement.
* Please enter a valid date ** Please enter a valid date *
Statement Details |
| | TOTAL: | $0.00 | $0.00 | $0.00 | $0.00 | $0.00 | $0.00 |
|
| | $0.00 | $0.00 | $0.00 | $0.00 | $0.00 | $0.00 |
Values
| (+) Improvement Homesite Value: | + | $568,405 | |
| (+) Improvement Non-Homesite Value: | + | $0 | |
| (+) Land Homesite Value: | + | $148,373 | |
| (+) Land Non-Homesite Value: | + | $0 | |
| (+) Curr Use (HS): | + | $0 | $0 |
| (+) Curr Use (NHS): | + | $0 | $0 |
| | | -------------------------- | |
| (=) Market Value: | = | $716,778 | |
| (–) Productivity Loss: | – | $0 | |
| | | -------------------------- | |
| (=) Subtotal: | = | $716,778 | |
| (+) Senior Appraised Value: | + | $0 | |
| (+) Non-Senior Appraised Value: | + | $716,778 | |
| | | -------------------------- | |
| (=) Total Appraised Value: | = | $716,778 | |
| (–) Senior Exemption Loss: | – | $0 | |
| (–) Exemption Loss: | – | $0 | |
| | | -------------------------- | |
| (=) Taxable Value: | = | $716,778 | |
Taxing Jurisdiction
| Owner: | JACOB K & JULIA J FULTON | | |
| % Ownership: | 100.0000000000% | | |
| Total Value: | N/A | | |
| Tax Area: | 0213 - 1-49F1E1H2L1 |
| CE | COUNTY CURRENT EXPENSE | N/A | N/A | N/A | N/A | | |
| CNTYDD | DEVELOPMENTAL DISABILITIES | N/A | N/A | N/A | N/A | | |
| CNTYVET | VETERANS RELIEF | N/A | N/A | N/A | N/A | | |
| MENTAL | MENTAL HEALTH | N/A | N/A | N/A | N/A | | |
| ROADS | COUNTY ROADS | N/A | N/A | N/A | N/A | | |
| ROADSCU | COUNTY ROADS TO CUR EXP | N/A | N/A | N/A | N/A | | |
| HOSP2CASH | HOSP DIST #2 GENERAL | N/A | N/A | N/A | N/A | | |
| SCH49CP | SCHOOL DIST #49 CAP PROJ | N/A | N/A | N/A | N/A | | |
| SCH49MO | SCHOOL DIST #49 EP & O | N/A | N/A | N/A | N/A | | |
| CONSERVE | CONSERVATION FUTURES | N/A | N/A | N/A | N/A | | |
| EMS1 | FIRE DIST #1 EMS | N/A | N/A | N/A | N/A | | |
| FD1 | FIRE DIST #1 GENERAL | N/A | N/A | N/A | N/A | | |
| LIB1 | LIBRARY DIST #1 GENERAL | N/A | N/A | N/A | N/A | | |
| PORTPT | PORT OF PT GENERAL | N/A | N/A | N/A | N/A | | |
| PORTPTIDD | PORT OF PT IDD 2019 | N/A | N/A | N/A | N/A | | |
| PUD1 | PUD #1 GENERAL | N/A | N/A | N/A | N/A | | |
| STATE | STATE SCHOOL PART 1 | N/A | N/A | N/A | N/A | | |
| STATE2 | STATE SCHOOL PART 2 | N/A | N/A | N/A | N/A | | |
| | Total Tax Rate: | N/A | | | | | |
| | | | | Taxes w/Current Exemptions: | N/A | | |
| | | | | Taxes w/o Exemptions: | N/A | | |
Improvement / Building
| Improvement #1: | Residential Bldg | State Code: | 11 | 1940.0 sqft | Value: | $568,405 |
| Bathrooms (#): | 3 (FULL) | Bedrooms (#): | 3 | | Exterior Wall: | SI/ST | Fireplace: | PROPS-GOOD | | Floor Construction: | FRAME | Foundation: | CONPR | | Heating/Cooling: | F/A | Inside Verify: | YES | | Roof Cover: | COMP |   |   |
|
| | Type | Description | Class CD | Sub Class CD | Year Built | Area |
| | MA | Main Area | 4 | 15SF | 1993 | 1310.0 |
| | MA2 | Second Floor Main Area | 4 | 15SF | 1993 | 630.0 |
| | HBAL | House Balcony | 4 | * | 1993 | 84.0 |
| | HDECK | House Deck | 4 | * | 1993 | 100.0 |
| | SHED | Shed (Table Not Dep) | 4 | * | 1993 | 80.0 |
| | SHED | Shed (Table Not Dep) | 4 | * | 1993 | 54.0 |
| | BSMTF | House basement finished | 4 | * | 1993 | 1260.0 |
| | HADDN | House Addition | 4 | 1S | 1993 | 192.0 |
| | HDECK | House Deck | 4 | * | 2024 | 96.0 |
| | HDECK | House Deck | 4 | * | 2025 | 324.0 |
Sketch
Property Image
Land
| 1 | 3375-1365S | Fair Wtr View Sites 1+/- Acre | 1.0000 | 43560.00 | 0.00 | 0.00 | 1.00 | $109,250 | $0 |
| 2 | 1575A | Terr/Mtn/No View <6 Acres | 5.0400 | 219542.40 | 0.00 | 0.00 | 0.00 | $39,123 | $0 |
Roll Value History
| 2025 | N/A | N/A | N/A | N/A | N/A |
| 2024 | $494,256 | $141,922 | $0 | $636,178 | $636,178 |
| 2023 | $382,534 | $128,237 | $0 | $510,771 | $510,771 |
| 2022 | $417,310 | $113,350 | $0 | $530,660 | $530,660 |
| 2021 | $306,384 | $99,816 | $0 | $406,200 | $406,200 |
Deed and Sales History
| 1 | 04/28/2014 | SWD | Statutory Warranty Deed | BRUCE W BLACK | JACOB K & JULIA J FULTON | | | $345,000.00 | 121102 | |
| 2 | 06/23/2008 | SWD | Statutory Warranty Deed | DUNIVAN, CHARLES PAUL | BLACK, BRUCE W | | | $165,000.00 | 111503 | 0 |
| 3 | 12/01/2001 | QCD | Quit Claim Deed | DUNIVAN, BEVERLEY | DUNIVAN, CHARLES PAUL | 0 | 0 | $0.00 | 110479 | 0 |
Payout Agreement
| No payout information available.. |