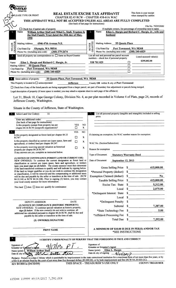
Property
Account |
| Property ID: | 21073 | Abbreviated Legal Description: | OLYMPIC RIDGE ESTATES PARCEL 15 SURVEY 10/178 |
| Parcel # / Geo ID: | 821355051 | Agent Code: | |
| Type: | Real | | |
| Tax Area: | 0213 - 1-49F1E1H2L1 | Land Use Code | 11 |
| Open Space: | N | DFL | N |
| Historic Property: | N | Remodel Property: | N |
| Multi-Family Redevelopment: | N | | |
| Township: | 28N | Section: | 35 |
| Range: | 1E |
Location |
| Address: | 583 OLYMPIC RIDGE DR PORT LUDLOW, WA 98365 | Mapsco: | 252/015 |
| Neighborhood: | BRIDGE VIEW EST.; OLYMPIC RIDGE; S35 T28N R1E; BROOKS,PRINCE | Map ID: | |
| Neighborhood CD: | 3375 |
Owner |
| Name: | DOUGLAS R & PATRICIA D HANSEN | Owner ID: | 93428 |
| Mailing Address: | 583 OLYMPIC RIDGE DR PORT LUDLOW, WA 98365-9555 | % Ownership: | 100.0000000000% |
| | | Exemptions: | |
Pay Tax Due
There is currently No Amount Due on this property.
Taxes and Assessment Details
Property Tax Information as of
10/24/2025
Click on "Statement Details" to expand or collapse a tax statement.
* Please enter a valid date ** Please enter a valid date *
Statement Details |
| | TOTAL: | $0.00 | $0.00 | $0.00 | $0.00 | $0.00 | $0.00 |
|
| | $0.00 | $0.00 | $0.00 | $0.00 | $0.00 | $0.00 |
Values
| (+) Improvement Homesite Value: | + | $0 | |
| (+) Improvement Non-Homesite Value: | + | $501,785 | |
| (+) Land Homesite Value: | + | $0 | |
| (+) Land Non-Homesite Value: | + | $250,183 | |
| (+) Curr Use (HS): | + | $0 | $0 |
| (+) Curr Use (NHS): | + | $0 | $0 |
| | | -------------------------- | |
| (=) Market Value: | = | $751,968 | |
| (–) Productivity Loss: | – | $0 | |
| | | -------------------------- | |
| (=) Subtotal: | = | $751,968 | |
| (+) Senior Appraised Value: | + | $0 | |
| (+) Non-Senior Appraised Value: | + | $751,968 | |
| | | -------------------------- | |
| (=) Total Appraised Value: | = | $751,968 | |
| (–) Senior Exemption Loss: | – | $0 | |
| (–) Exemption Loss: | – | $0 | |
| | | -------------------------- | |
| (=) Taxable Value: | = | $751,968 | |
Taxing Jurisdiction
| Owner: | DOUGLAS R & PATRICIA D HANSEN | | |
| % Ownership: | 100.0000000000% | | |
| Total Value: | N/A | | |
| Tax Area: | 0213 - 1-49F1E1H2L1 |
| CE | COUNTY CURRENT EXPENSE | N/A | N/A | N/A | N/A | | |
| CNTYDD | DEVELOPMENTAL DISABILITIES | N/A | N/A | N/A | N/A | | |
| CNTYVET | VETERANS RELIEF | N/A | N/A | N/A | N/A | | |
| MENTAL | MENTAL HEALTH | N/A | N/A | N/A | N/A | | |
| ROADS | COUNTY ROADS | N/A | N/A | N/A | N/A | | |
| ROADSCU | COUNTY ROADS TO CUR EXP | N/A | N/A | N/A | N/A | | |
| HOSP2CASH | HOSP DIST #2 GENERAL | N/A | N/A | N/A | N/A | | |
| SCH49CP | SCHOOL DIST #49 CAP PROJ | N/A | N/A | N/A | N/A | | |
| SCH49MO | SCHOOL DIST #49 EP & O | N/A | N/A | N/A | N/A | | |
| CONSERVE | CONSERVATION FUTURES | N/A | N/A | N/A | N/A | | |
| EMS1 | FIRE DIST #1 EMS | N/A | N/A | N/A | N/A | | |
| FD1 | FIRE DIST #1 GENERAL | N/A | N/A | N/A | N/A | | |
| LIB1 | LIBRARY DIST #1 GENERAL | N/A | N/A | N/A | N/A | | |
| PORTPT | PORT OF PT GENERAL | N/A | N/A | N/A | N/A | | |
| PORTPTIDD | PORT OF PT IDD 2019 | N/A | N/A | N/A | N/A | | |
| PUD1 | PUD #1 GENERAL | N/A | N/A | N/A | N/A | | |
| STATE | STATE SCHOOL PART 1 | N/A | N/A | N/A | N/A | | |
| STATE2 | STATE SCHOOL PART 2 | N/A | N/A | N/A | N/A | | |
| | Total Tax Rate: | N/A | | | | | |
| | | | | Taxes w/Current Exemptions: | N/A | | |
| | | | | Taxes w/o Exemptions: | N/A | | |
Improvement / Building
| Improvement #1: | Residential Bldg | State Code: | 11 | 1810.0 sqft | Value: | $501,785 |
| Bathrooms (#): | 2 (FULL) | Bedrooms (#): | 3 | | Exterior Wall: | SI/ST | Fireplace: | PROPS-GOOD | | Floor Construction: | FRAME | Foundation: | CONPR | | Heating/Cooling: | F/A | Inside Verify: | YES | | Roof Cover: | COMP |   |   |
|
| | Type | Description | Class CD | Sub Class CD | Year Built | Area |
| | MA | Main Area | 5+ | 15SF | 1994 | 1810.0 |
| | PATIO | House Patio | 5 | * | 1994 | 600.0 |
| | HCPOR | House Concrete Porch | 5 | * | 1994 | 36.0 |
| | GDET | Detached Garage | 5 | * | 1994 | 528.0 |
| | SHED | Shed (Table Not Dep) | 4 | * | 1994 | 160.0 |
| | HLOFT | House Loft | 5 | 15SF | 1994 | 220.0 |
| | HCPOR | House Concrete Porch | 5 | * | 1994 | 220.0 |
Sketch
Property Image
Land
| 1 | 3375-1555A | Avg Water Views <6 Acres | 1.7700 | 77101.20 | 0.00 | 0.00 | 0.00 | $30,533 | $0 |
| 2 | 3375-1345S | Good Wtr View Sites 1+/- Acre | 1.0000 | 43560.00 | 0.00 | 0.00 | 1.00 | $219,650 | $0 |
Roll Value History
| 2025 | N/A | N/A | N/A | N/A | N/A |
| 2024 | $480,877 | $239,305 | $0 | $720,182 | $720,182 |
| 2023 | $459,969 | $223,178 | $0 | $683,147 | $683,147 |
| 2022 | $501,785 | $204,010 | $0 | $705,795 | $705,795 |
| 2021 | $355,865 | $177,240 | $0 | $533,105 | $533,105 |
Deed and Sales History
| 1 | 04/07/2015 | SWD | Statutory Warranty Deed | BRIAN J MALLABON | DOUGLAS R & PATRICIA D HANSEN | | | $465,000.00 | 123014 | |
| 2 | 11/02/2010 | SWD | Statutory Warranty Deed | DUNN, ROGER E/JANET WILL | MALLABON, BRIAN J/MARIANNE E | 0 | 0 | $449,000.00 | 115153 | 0 |
| 3 | 10/29/1993 | SWD | Statutory Warranty Deed | O'NEILL, ROBERT D/JULIE L | DUNN/WILLIAMS | 0 | 0 | $105,000.00 | 72515 | 0 |
Payout Agreement
| No payout information available.. |