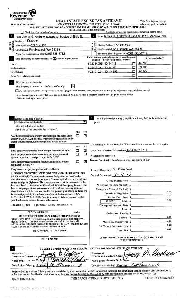
Property
Account |
| Property ID: | 21115 | Abbreviated Legal Description: | S1 T29 R1W TAX 20 & TL TAX B-7 WITH-SUBJ/EASE |
| Parcel # / Geo ID: | 901014004 | Agent Code: | |
| Type: | Real | | |
| Tax Area: | 0211 - 1-49F1E1H2L1 | Land Use Code | 11 |
| Open Space: | N | DFL | N |
| Historic Property: | N | Remodel Property: | N |
| Multi-Family Redevelopment: | N | | |
| Township: | 29N | Section: | 1 |
| Range: | 1W |
Location |
| Address: | 141 CEDAR LN PORT HADLOCK, WA 98339 | Mapsco: | 201/014 |
| Neighborhood: | S1 T29N R1W & WILLIAM-LIEN SHORT PLAT | Map ID: | |
| Neighborhood CD: | 4200 |
Owner |
| Name: | BRYCE & ELIZABETH ADAMS | Owner ID: | 111222 |
| Mailing Address: | 141 CEDAR LN PORT HADLOCK, WA 98339-9714 | % Ownership: | 100.0000000000% |
| | | Exemptions: | |
Pay Tax Due
There is currently No Amount Due on this property.
Taxes and Assessment Details
Property Tax Information as of
10/24/2025
Click on "Statement Details" to expand or collapse a tax statement.
* Please enter a valid date ** Please enter a valid date *
Statement Details |
| | TOTAL: | $0.00 | $0.00 | $0.00 | $0.00 | $0.00 | $0.00 |
|
| | $0.00 | $0.00 | $0.00 | $0.00 | $0.00 | $0.00 |
Values
| (+) Improvement Homesite Value: | + | $0 | |
| (+) Improvement Non-Homesite Value: | + | $872,764 | |
| (+) Land Homesite Value: | + | $0 | |
| (+) Land Non-Homesite Value: | + | $401,480 | |
| (+) Curr Use (HS): | + | $0 | $0 |
| (+) Curr Use (NHS): | + | $0 | $0 |
| | | -------------------------- | |
| (=) Market Value: | = | $1,274,244 | |
| (–) Productivity Loss: | – | $0 | |
| | | -------------------------- | |
| (=) Subtotal: | = | $1,274,244 | |
| (+) Senior Appraised Value: | + | $0 | |
| (+) Non-Senior Appraised Value: | + | $1,274,244 | |
| | | -------------------------- | |
| (=) Total Appraised Value: | = | $1,274,244 | |
| (–) Senior Exemption Loss: | – | $0 | |
| (–) Exemption Loss: | – | $0 | |
| | | -------------------------- | |
| (=) Taxable Value: | = | $1,274,244 | |
Taxing Jurisdiction
| Owner: | BRYCE & ELIZABETH ADAMS | | |
| % Ownership: | 100.0000000000% | | |
| Total Value: | N/A | | |
| Tax Area: | 0211 - 1-49F1E1H2L1 |
| CE | COUNTY CURRENT EXPENSE | N/A | N/A | N/A | N/A | | |
| CNTYDD | DEVELOPMENTAL DISABILITIES | N/A | N/A | N/A | N/A | | |
| CNTYVET | VETERANS RELIEF | N/A | N/A | N/A | N/A | | |
| MENTAL | MENTAL HEALTH | N/A | N/A | N/A | N/A | | |
| ROADS | COUNTY ROADS | N/A | N/A | N/A | N/A | | |
| ROADSCU | COUNTY ROADS TO CUR EXP | N/A | N/A | N/A | N/A | | |
| HOSP2CASH | HOSP DIST #2 GENERAL | N/A | N/A | N/A | N/A | | |
| SCH49CP | SCHOOL DIST #49 CAP PROJ | N/A | N/A | N/A | N/A | | |
| SCH49MO | SCHOOL DIST #49 EP & O | N/A | N/A | N/A | N/A | | |
| CONSERVE | CONSERVATION FUTURES | N/A | N/A | N/A | N/A | | |
| EMS1 | FIRE DIST #1 EMS | N/A | N/A | N/A | N/A | | |
| FD1 | FIRE DIST #1 GENERAL | N/A | N/A | N/A | N/A | | |
| LIB1 | LIBRARY DIST #1 GENERAL | N/A | N/A | N/A | N/A | | |
| PORTPT | PORT OF PT GENERAL | N/A | N/A | N/A | N/A | | |
| PORTPTIDD | PORT OF PT IDD 2019 | N/A | N/A | N/A | N/A | | |
| PUD1 | PUD #1 GENERAL | N/A | N/A | N/A | N/A | | |
| STATE | STATE SCHOOL PART 1 | N/A | N/A | N/A | N/A | | |
| STATE2 | STATE SCHOOL PART 2 | N/A | N/A | N/A | N/A | | |
| | Total Tax Rate: | N/A | | | | | |
| | | | | Taxes w/Current Exemptions: | N/A | | |
| | | | | Taxes w/o Exemptions: | N/A | | |
Improvement / Building
| Improvement #1: | Residential Bldg | State Code: | 11 | 2381.0 sqft | Value: | $702,540 |
| Bathrooms (#): | 2 (FULL) | Bathrooms (#): | 1 (HALF) | | Bedrooms (#): | 2 | Exterior Wall: | SI/ST | | Fireplace: | WD ST-GOOD | Floor Construction: | FRAME | | Foundation: | CONPR | Heating/Cooling: | HTWTR | | Inside Verify: | YES-FIX | Roof Cover: | COMP |
|
| | Type | Description | Class CD | Sub Class CD | Year Built | Area |
| | MA | Main Area | 5 | 1S | 1981 | 2381.0 |
| | HDECK | House Deck | 4 | * | 1981 | 992.0 |
| | HENCL | House Enclosure | 4 | * | 1981 | 119.0 |
| | GATT | House Attached Garage | 4 | 1S | 1981 | 660.0 |
| | CARPT | Carport (Table Not Dep) | 3 | * | 1981 | 640.0 |
| | GARAG | Garage (Table Not Dep) | 6 | * | 1981 | 1552.0 |
| | HRPO | House Roof Patio | 4 | * | 1981 | 322.0 |
| | OTHER | Other | 4 | * | 1981 | 0.0 |
| Improvement #2: | Residential Bldg | State Code: | 11 | 515.0 sqft | Value: | $170,224 |
| Bathrooms (#): | 1 (FULL) | Bedrooms (#): | 1 | | Exterior Wall: | SI/ST | Fireplace: | WD ST-GOOD | | Floor Construction: | FRAME | Foundation: | CONPR | | Heating/Cooling: | ELBB | Inside Verify: | YES-FIX | | Roof Cover: | COMP |   |   |
|
| | Type | Description | Class CD | Sub Class CD | Year Built | Area |
| | MA | Main Area | 5 | 1S | 2003 | 515.0 |
| | HWPOR | House Wood Porch | 4 | * | 2003 | 32.0 |
| | CARPTN | Carport W/O Floor | 4 | * | 2003 | 325.0 |
| | ADDN | Addition (Table Not Dep) | 4 | * | 2003 | 285.0 |
Sketch
| No sketches available for this property. |
Property Image
Land
| 1 | 9301F | Tidelands | 0.0000 | 0.00 | 0.00 | 0.00 | 0.00 | $5,480 | $0 |
| 2 | 4200-1125F | Low/Medium Bank Wtrfrt on PT Bay | 0.0000 | 0.00 | 0.00 | 0.00 | 0.00 | $253,000 | $0 |
| 3 | 4200-1125F | Low/Medium Bank Wtrfrt on PT Bay | 0.0000 | 0.00 | 0.00 | 0.00 | 0.00 | $143,000 | $0 |
Roll Value History
| 2025 | N/A | N/A | N/A | N/A | N/A |
| 2024 | $833,093 | $383,231 | $0 | $1,216,324 | $1,216,324 |
| 2023 | $840,625 | $359,982 | $0 | $1,200,607 | $1,200,607 |
| 2022 | $683,636 | $354,982 | $0 | $1,038,618 | $1,038,618 |
| 2021 | $566,158 | $340,325 | $0 | $906,483 | $906,483 |
Deed and Sales History
| 1 | 08/06/2024 | SWD | Statutory Warranty Deed | LARRANCE LIVING TRUST | BRYCE & ELIZABETH ADAMS | | | $1,225,000.00 | 143004 | |
| 2 | 10/27/2023 | QCD | Quit Claim Deed | LISA GROFF | LARRANCE LIVING TRUST | | | | 141834 | |
| 3 | 04/21/2020 | QCD | Quit Claim Deed | | | | | | 134250 | |
| 4 | 06/18/2014 | SWD | Statutory Warranty Deed | SCOTT GRAEBEL | DANAE A LARRANCE TRUSTEE | | | $810,000.00 | 121402 | |
| 5 | 06/01/2001 | QCD | Quit Claim Deed | GRAEBEL, SCOTT C/LINDA LE | GRAEBEL, SCOTT C/LINDA LEE REV | 0 | 0 | $0.00 | 92309 | 0 |
Payout Agreement
| No payout information available.. |