Property
Account |
| Property ID: | 21202 | Abbreviated Legal Description: | S2 T29 R1W TAX NO. 65 |
| Parcel # / Geo ID: | 901024040 | Agent Code: | |
| Type: | Real | | |
| Tax Area: | 0211 - 1-49F1E1H2L1 | Land Use Code | 59 |
| Open Space: | N | DFL | N |
| Historic Property: | N | Remodel Property: | N |
| Multi-Family Redevelopment: | N | | |
| Township: | 29N | Section: | 2 |
| Range: | 1W |
Location |
| Address: | 103 CHIMACUM RD PORT HADLOCK, WA 98339 | Mapsco: | 203/017 |
| Neighborhood: | HADLOCK COMMERCIAL CENTER | Map ID: | |
| Neighborhood CD: | 4210C |
Owner |
| Name: | TODD W HARALSON | Owner ID: | 17503 |
| Mailing Address: | VICKI J KELAS 472 SENTINEL FIRS RD PORT HADLOCK, WA 98339-9736 | % Ownership: | 100.0000000000% |
| | | Exemptions: | |
Pay Tax Due
There is currently No Amount Due on this property.
Taxes and Assessment Details
Property Tax Information as of
10/24/2025
Click on "Statement Details" to expand or collapse a tax statement.
* Please enter a valid date ** Please enter a valid date *
Statement Details |
| | TOTAL: | $0.00 | $0.00 | $0.00 | $0.00 | $0.00 | $0.00 |
|
| | $0.00 | $0.00 | $0.00 | $0.00 | $0.00 | $0.00 |
Values
| (+) Improvement Homesite Value: | + | $0 | |
| (+) Improvement Non-Homesite Value: | + | $89,676 | |
| (+) Land Homesite Value: | + | $0 | |
| (+) Land Non-Homesite Value: | + | $127,668 | |
| (+) Curr Use (HS): | + | $0 | $0 |
| (+) Curr Use (NHS): | + | $0 | $0 |
| | | -------------------------- | |
| (=) Market Value: | = | $217,344 | |
| (–) Productivity Loss: | – | $0 | |
| | | -------------------------- | |
| (=) Subtotal: | = | $217,344 | |
| (+) Senior Appraised Value: | + | $0 | |
| (+) Non-Senior Appraised Value: | + | $217,344 | |
| | | -------------------------- | |
| (=) Total Appraised Value: | = | $217,344 | |
| (–) Senior Exemption Loss: | – | $0 | |
| (–) Exemption Loss: | – | $0 | |
| | | -------------------------- | |
| (=) Taxable Value: | = | $217,344 | |
Taxing Jurisdiction
| Owner: | TODD W HARALSON | | |
| % Ownership: | 100.0000000000% | | |
| Total Value: | N/A | | |
| Tax Area: | 0211 - 1-49F1E1H2L1 |
| CE | COUNTY CURRENT EXPENSE | N/A | N/A | N/A | N/A | | |
| CNTYDD | DEVELOPMENTAL DISABILITIES | N/A | N/A | N/A | N/A | | |
| CNTYVET | VETERANS RELIEF | N/A | N/A | N/A | N/A | | |
| MENTAL | MENTAL HEALTH | N/A | N/A | N/A | N/A | | |
| ROADS | COUNTY ROADS | N/A | N/A | N/A | N/A | | |
| ROADSCU | COUNTY ROADS TO CUR EXP | N/A | N/A | N/A | N/A | | |
| HOSP2CASH | HOSP DIST #2 GENERAL | N/A | N/A | N/A | N/A | | |
| SCH49CP | SCHOOL DIST #49 CAP PROJ | N/A | N/A | N/A | N/A | | |
| SCH49MO | SCHOOL DIST #49 EP & O | N/A | N/A | N/A | N/A | | |
| CONSERVE | CONSERVATION FUTURES | N/A | N/A | N/A | N/A | | |
| EMS1 | FIRE DIST #1 EMS | N/A | N/A | N/A | N/A | | |
| FD1 | FIRE DIST #1 GENERAL | N/A | N/A | N/A | N/A | | |
| LIB1 | LIBRARY DIST #1 GENERAL | N/A | N/A | N/A | N/A | | |
| PORTPT | PORT OF PT GENERAL | N/A | N/A | N/A | N/A | | |
| PORTPTIDD | PORT OF PT IDD 2019 | N/A | N/A | N/A | N/A | | |
| PUD1 | PUD #1 GENERAL | N/A | N/A | N/A | N/A | | |
| STATE | STATE SCHOOL PART 1 | N/A | N/A | N/A | N/A | | |
| STATE2 | STATE SCHOOL PART 2 | N/A | N/A | N/A | N/A | | |
| | Total Tax Rate: | N/A | | | | | |
| | | | | Taxes w/Current Exemptions: | N/A | | |
| | | | | Taxes w/o Exemptions: | N/A | | |
Improvement / Building
| Improvement #1: | Commercial/Industrial/Government Bldg | State Code: | 59 | 1844.0 sqft | Value: | $89,676 |
Sketch
| No sketches available for this property. |
Property Image
Land
| 1 | 4210-6275Q | Commercial Frtg Hadlock Center (Secondary) | 0.2875 | 12524.00 | 0.00 | 0.00 | 0.00 | $127,668 | $0 |
Roll Value History
| 2025 | N/A | N/A | N/A | N/A | N/A |
| 2024 | $89,676 | $127,668 | $0 | $217,344 | $217,344 |
| 2023 | $89,676 | $122,668 | $0 | $212,344 | $212,344 |
| 2022 | $86,061 | $92,620 | $0 | $178,681 | $178,681 |
| 2021 | $86,061 | $75,096 | $0 | $161,157 | $161,157 |
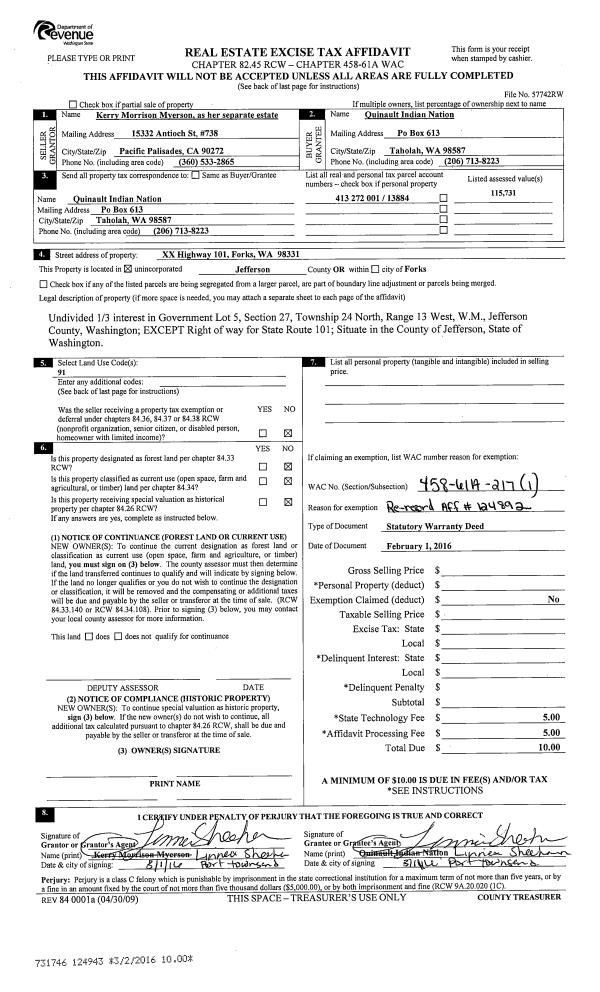
Deed and Sales History
| 1 | 09/01/2016 | REC | Real Estate Contract | | | | | | 126753 | |
| 2 | 09/01/2016 | REC | Real Estate Contract | HOWARD FAMILY HOLDING TRUST | TODD W HARALSON | | | $165,000.00 | 126217 | |
| 3 | 12/03/2012 | QCD | Quit Claim Deed | | | | | | 118961 | |
Payout Agreement
| No payout information available.. |