Property
Account |
| Property ID: | 21289 | Abbreviated Legal Description: | S3 T29 R1W TAX 37 |
| Parcel # / Geo ID: | 901033007 | Agent Code: | |
| Type: | Real | | |
| Tax Area: | 0211 - 1-49F1E1H2L1 | Land Use Code | 11 |
| Open Space: | N | DFL | N |
| Historic Property: | N | Remodel Property: | N |
| Multi-Family Redevelopment: | N | | |
| Township: | 29N | Section: | 3 |
| Range: | 1W |
Location |
| Address: | 255 KENNEDY RD PORT HADLOCK, WA 98339 | Mapsco: | 205/020 |
| Neighborhood: | S3 & S4 T29N R1W; SOMERVILLE; HESSIAN GARDENS | Map ID: | |
| Neighborhood CD: | 4220 |
Owner |
| Name: | ALFRED W LATHAM JR | Owner ID: | 20517 |
| Mailing Address: | SUSAN P LATHAM 255 KENNEDY RD PORT HADLOCK, WA 98339-9719 | % Ownership: | 100.0000000000% |
| | | Exemptions: | |
Pay Tax Due
There is currently No Amount Due on this property.
Taxes and Assessment Details
Property Tax Information as of
10/24/2025
Click on "Statement Details" to expand or collapse a tax statement.
* Please enter a valid date ** Please enter a valid date *
Statement Details |
| | TOTAL: | $0.00 | $0.00 | $0.00 | $0.00 | $0.00 | $0.00 |
|
| | $0.00 | $0.00 | $0.00 | $0.00 | $0.00 | $0.00 |
Values
| (+) Improvement Homesite Value: | + | $0 | |
| (+) Improvement Non-Homesite Value: | + | $386,147 | |
| (+) Land Homesite Value: | + | $0 | |
| (+) Land Non-Homesite Value: | + | $103,147 | |
| (+) Curr Use (HS): | + | $0 | $0 |
| (+) Curr Use (NHS): | + | $0 | $0 |
| | | -------------------------- | |
| (=) Market Value: | = | $489,294 | |
| (–) Productivity Loss: | – | $0 | |
| | | -------------------------- | |
| (=) Subtotal: | = | $489,294 | |
| (+) Senior Appraised Value: | + | $0 | |
| (+) Non-Senior Appraised Value: | + | $489,294 | |
| | | -------------------------- | |
| (=) Total Appraised Value: | = | $489,294 | |
| (–) Senior Exemption Loss: | – | $0 | |
| (–) Exemption Loss: | – | $0 | |
| | | -------------------------- | |
| (=) Taxable Value: | = | $489,294 | |
Taxing Jurisdiction
| Owner: | ALFRED W LATHAM JR | | |
| % Ownership: | 100.0000000000% | | |
| Total Value: | N/A | | |
| Tax Area: | 0211 - 1-49F1E1H2L1 |
| CE | COUNTY CURRENT EXPENSE | N/A | N/A | N/A | N/A | | |
| CNTYDD | DEVELOPMENTAL DISABILITIES | N/A | N/A | N/A | N/A | | |
| CNTYVET | VETERANS RELIEF | N/A | N/A | N/A | N/A | | |
| MENTAL | MENTAL HEALTH | N/A | N/A | N/A | N/A | | |
| ROADS | COUNTY ROADS | N/A | N/A | N/A | N/A | | |
| ROADSCU | COUNTY ROADS TO CUR EXP | N/A | N/A | N/A | N/A | | |
| HOSP2CASH | HOSP DIST #2 GENERAL | N/A | N/A | N/A | N/A | | |
| SCH49CP | SCHOOL DIST #49 CAP PROJ | N/A | N/A | N/A | N/A | | |
| SCH49MO | SCHOOL DIST #49 EP & O | N/A | N/A | N/A | N/A | | |
| CONSERVE | CONSERVATION FUTURES | N/A | N/A | N/A | N/A | | |
| EMS1 | FIRE DIST #1 EMS | N/A | N/A | N/A | N/A | | |
| FD1 | FIRE DIST #1 GENERAL | N/A | N/A | N/A | N/A | | |
| LIB1 | LIBRARY DIST #1 GENERAL | N/A | N/A | N/A | N/A | | |
| PORTPT | PORT OF PT GENERAL | N/A | N/A | N/A | N/A | | |
| PORTPTIDD | PORT OF PT IDD 2019 | N/A | N/A | N/A | N/A | | |
| PUD1 | PUD #1 GENERAL | N/A | N/A | N/A | N/A | | |
| STATE | STATE SCHOOL PART 1 | N/A | N/A | N/A | N/A | | |
| STATE2 | STATE SCHOOL PART 2 | N/A | N/A | N/A | N/A | | |
| | Total Tax Rate: | N/A | | | | | |
| | | | | Taxes w/Current Exemptions: | N/A | | |
| | | | | Taxes w/o Exemptions: | N/A | | |
Improvement / Building
| Improvement #1: | Residential Bldg | State Code: | 11 | 1248.0 sqft | Value: | $386,147 |
| Bathrooms (#): | 1 (FULL) | Bedrooms (#): | 2 | | Exterior Wall: | SI/ST | Foundation: | CONPR | | Heating/Cooling: | ELBB | Roof Cover: | COMP |
|
| | Type | Description | Class CD | Sub Class CD | Year Built | Area |
| | MA | Main Area | 5- | 1S | 2021 | 1248.0 |
| | GATT | House Attached Garage | 5 | 1S | 2021 | 440.0 |
| | HWPOR | House Wood Porch | 5 | 1S | 2021 | 96.0 |
| | SOLAR | Solar Panel | 5 | 1S | 2021 | 0.0 |
| | SHED | Shed (Table Not Dep) | 4 | 1S | 2021 | 0.0 |
Sketch
Property Image
Land
| 1 | 1574A | Terr/Mtn/No View <6 Acres | 3.0700 | 133729.20 | 0.00 | 0.00 | 0.00 | $37,147 | $0 |
| 2 | 4220-1375S | Residential Sites 1+/- Ac SomeTerritorial Views | 1.0000 | 43560.00 | 0.00 | 0.00 | 1.00 | $66,000 | $0 |
Roll Value History
| 2025 | N/A | N/A | N/A | N/A | N/A |
| 2024 | $368,595 | $98,459 | $0 | $467,054 | $467,054 |
| 2023 | $351,043 | $87,235 | $0 | $438,278 | $438,278 |
| 2022 | $327,238 | $79,165 | $0 | $406,403 | $406,403 |
| 2021 | $58,101 | $53,298 | $0 | $111,399 | $111,399 |
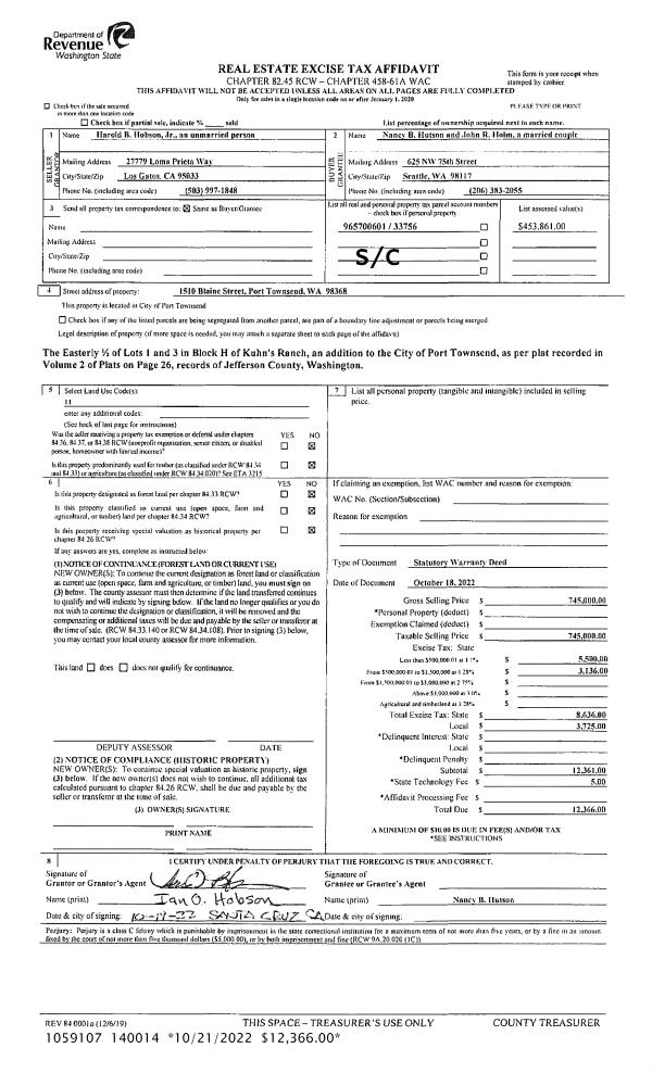
Deed and Sales History
| 1 | 09/05/2009 | SWD | Statutory Warranty Deed | ORCAS ANTHROPOSOPHICAL TR | LATHAM ALFRED W / SUSAN P | 0 | 0 | $52,000.00 | 113363 | 0 |
| 2 | 10/02/2007 | SWD | Statutory Warranty Deed | MCNISH, LESLIE/FLANAGAN, | ORCAS ANTHROPOSOPHICAL TRUST | 0 | 0 | $46,000.00 | 110128 | 0 |
| 3 | 08/01/2003 | SWD | Statutory Warranty Deed | JOHNSON, JUDITH B | MCNISH, LESLIE | 0 | 0 | $38,240.00 | 97971 | 0 |
| 4 | 07/31/1995 | WD | Warranty Deed | GRAY, NANCY J | JOHNSON, AARON & ET AL/TRUST | 0 | 0 | $0.00 | 77466 | 0 |
| 5 | 01/05/1994 | REC | Real Estate Contract | JOHNSON, AARON/ARNE/KIMBE | GRAY, NANCY J | 0 | 0 | $28,000.00 | 73106 | 0 |
Payout Agreement
| No payout information available.. |