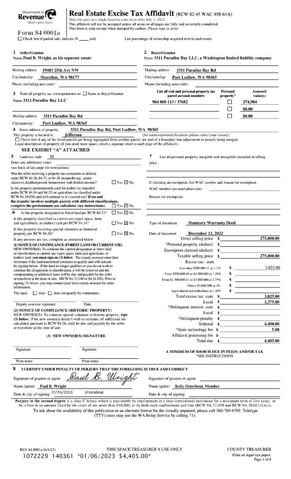
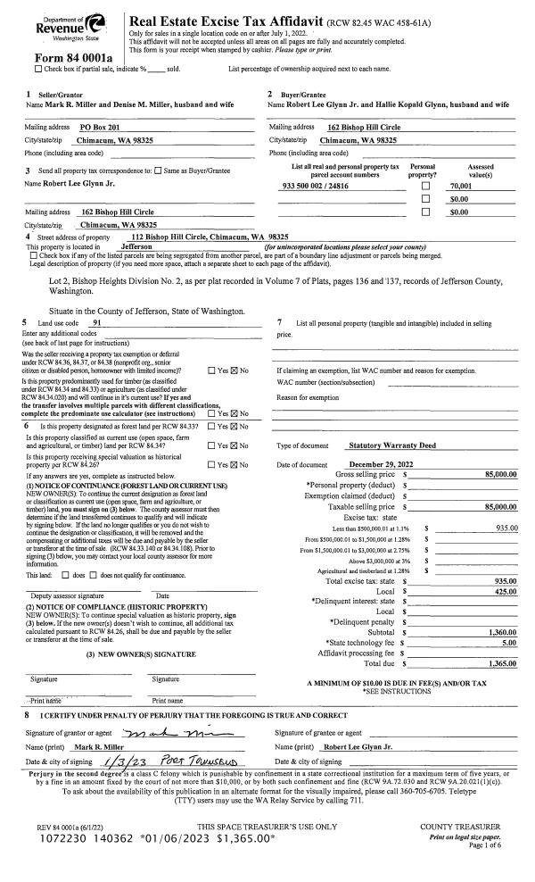
Property
Account |
| Property ID: | 21298 | Abbreviated Legal Description: | S3 T29 R1W TAX 31 |
| Parcel # / Geo ID: | 901034010 | Agent Code: | |
| Type: | Real | | |
| Tax Area: | 0211 - 1-49F1E1H2L1 | Land Use Code | 11 |
| Open Space: | N | DFL | N |
| Historic Property: | N | Remodel Property: | N |
| Multi-Family Redevelopment: | N | | |
| Township: | 29N | Section: | 3 |
| Range: | 1W |
Location |
| Address: | 249 KENNEDY RD PORT HADLOCK, WA 98339 | Mapsco: | 205/017 |
| Neighborhood: | S3 & S4 T29N R1W; SOMERVILLE; HESSIAN GARDENS | Map ID: | |
| Neighborhood CD: | 4220 |
Owner |
| Name: | DEAN J CROWE | Owner ID: | 104308 |
| Mailing Address: | 249 KENNEDY RD PORT HADLOCK, WA 98339-9719 | % Ownership: | 100.0000000000% |
| | | Exemptions: | |
Pay Tax Due
There is currently No Amount Due on this property.
Taxes and Assessment Details
Property Tax Information as of
10/24/2025
Click on "Statement Details" to expand or collapse a tax statement.
* Please enter a valid date ** Please enter a valid date *
Statement Details |
| | TOTAL: | $0.00 | $0.00 | $0.00 | $0.00 | $0.00 | $0.00 |
|
| | $0.00 | $0.00 | $0.00 | $0.00 | $0.00 | $0.00 |
Values
| (+) Improvement Homesite Value: | + | $0 | |
| (+) Improvement Non-Homesite Value: | + | $284,636 | |
| (+) Land Homesite Value: | + | $0 | |
| (+) Land Non-Homesite Value: | + | $184,113 | |
| (+) Curr Use (HS): | + | $0 | $0 |
| (+) Curr Use (NHS): | + | $0 | $0 |
| | | -------------------------- | |
| (=) Market Value: | = | $468,749 | |
| (–) Productivity Loss: | – | $0 | |
| | | -------------------------- | |
| (=) Subtotal: | = | $468,749 | |
| (+) Senior Appraised Value: | + | $0 | |
| (+) Non-Senior Appraised Value: | + | $468,749 | |
| | | -------------------------- | |
| (=) Total Appraised Value: | = | $468,749 | |
| (–) Senior Exemption Loss: | – | $0 | |
| (–) Exemption Loss: | – | $0 | |
| | | -------------------------- | |
| (=) Taxable Value: | = | $468,749 | |
Taxing Jurisdiction
| Owner: | DEAN J CROWE | | |
| % Ownership: | 100.0000000000% | | |
| Total Value: | N/A | | |
| Tax Area: | 0211 - 1-49F1E1H2L1 |
| CE | COUNTY CURRENT EXPENSE | N/A | N/A | N/A | N/A | | |
| CNTYDD | DEVELOPMENTAL DISABILITIES | N/A | N/A | N/A | N/A | | |
| CNTYVET | VETERANS RELIEF | N/A | N/A | N/A | N/A | | |
| MENTAL | MENTAL HEALTH | N/A | N/A | N/A | N/A | | |
| ROADS | COUNTY ROADS | N/A | N/A | N/A | N/A | | |
| ROADSCU | COUNTY ROADS TO CUR EXP | N/A | N/A | N/A | N/A | | |
| HOSP2CASH | HOSP DIST #2 GENERAL | N/A | N/A | N/A | N/A | | |
| SCH49CP | SCHOOL DIST #49 CAP PROJ | N/A | N/A | N/A | N/A | | |
| SCH49MO | SCHOOL DIST #49 EP & O | N/A | N/A | N/A | N/A | | |
| CONSERVE | CONSERVATION FUTURES | N/A | N/A | N/A | N/A | | |
| EMS1 | FIRE DIST #1 EMS | N/A | N/A | N/A | N/A | | |
| FD1 | FIRE DIST #1 GENERAL | N/A | N/A | N/A | N/A | | |
| LIB1 | LIBRARY DIST #1 GENERAL | N/A | N/A | N/A | N/A | | |
| PORTPT | PORT OF PT GENERAL | N/A | N/A | N/A | N/A | | |
| PORTPTIDD | PORT OF PT IDD 2019 | N/A | N/A | N/A | N/A | | |
| PUD1 | PUD #1 GENERAL | N/A | N/A | N/A | N/A | | |
| STATE | STATE SCHOOL PART 1 | N/A | N/A | N/A | N/A | | |
| STATE2 | STATE SCHOOL PART 2 | N/A | N/A | N/A | N/A | | |
| | Total Tax Rate: | N/A | | | | | |
| | | | | Taxes w/Current Exemptions: | N/A | | |
| | | | | Taxes w/o Exemptions: | N/A | | |
Improvement / Building
| Improvement #1: | Residential Bldg | State Code: | 11 | 1322.0 sqft | Value: | $235,448 |
| Bedrooms (#): | 2 | Exterior Wall: | SI/ST | | Floor Construction: | CONCR | Foundation: | CONPR | | Heating/Cooling: | HTWTR | Roof Cover: | METAL |
|
| | Type | Description | Class CD | Sub Class CD | Year Built | Area |
| | MA | Main Area | 4- | 15SF | 2012 | 906.0 |
| | MA2 | Second Floor Main Area | 4- | 15SF | 2012 | 416.0 |
| Improvement #2: | Residential Bldg | State Code: | 11 | 256.0 sqft | Value: | $49,188 |
| Exterior Wall: | PL/T1 | Floor Construction: | FRAME | | Foundation: | PO&BL | Heating/Cooling: | ELBB | | Roof Cover: | METAL |   |   |
|
| | Type | Description | Class CD | Sub Class CD | Year Built | Area |
| | MA | Main Area | 2 | 1S | 2012 | 256.0 |
| | SHED | Shed (Table Not Dep) | 4 | | 2012 | 128.0 |
| | HWPOR | House Wood Porch | 2 | * | 2012 | 96.0 |
| | CARPTN | Carport W/O Floor | 2 | ADU | 2012 | 132.0 |
Sketch
| No sketches available for this property. |
Property Image
Land
| 1 | 1674A | Terr/Mtn/No View 6-15 Acres | 10.2500 | 446490.00 | 0.00 | 0.00 | 0.00 | $107,113 | $0 |
| 2 | 4220-1375S | Residential Sites 1+/- Ac SomeTerritorial Views | 1.0000 | 43560.00 | 0.00 | 0.00 | 1.00 | $77,000 | $0 |
Roll Value History
| 2025 | N/A | N/A | N/A | N/A | N/A |
| 2024 | $271,698 | $175,744 | $0 | $447,442 | $447,442 |
| 2023 | $258,760 | $157,250 | $0 | $416,010 | $416,010 |
| 2022 | $217,788 | $142,000 | $0 | $359,788 | $359,788 |
| 2021 | $179,990 | $126,368 | $0 | $306,358 | $306,358 |
Deed and Sales History
| 1 | 03/09/2021 | QCD | Quit Claim Deed | BETHANY AXTMAN | DEAN J CROWE | | | | 136260 | |
| 2 | 05/20/2015 | QCD | Quit Claim Deed | | | | | | 123247 | |
| 3 | 04/08/2008 | SWD | Statutory Warranty Deed | SNYDER, WILLIAM/LAURA/LUK | AXTMAN, BETHANY | | | $159,000.00 | 111095 | 0 |
| 4 | 05/10/2005 | SWD | Statutory Warranty Deed | JOHNSON, JUDITH B | SNYDER, WILLIAM/LAURA/LUKE | | | $0.00 | 103613 | 0 |
| 5 | 05/10/2005 | SWD | Statutory Warranty Deed | JOHNSON, JUDITH B | SNYDER, WILLIAM/LAURA/LUKE | | | $86,000.00 | 103485 | 0 |
| 6 | 06/27/2003 | QCD | Quit Claim Deed | JOHNSON, JUDITH/TRUSTEE | JOHNSON, AARON/ARNE/KIMBERLY | 0 | 0 | $0.00 | 97679 | 0 |
Payout Agreement
| No payout information available.. |