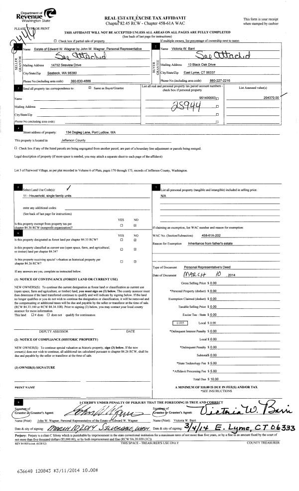
Property
Account |
| Property ID: | 21430 | Abbreviated Legal Description: | S10 T29 R1W TAX NO. 20 (S 1/2) |
| Parcel # / Geo ID: | 901101011 | Agent Code: | |
| Type: | Real | | |
| Tax Area: | 0211 - 1-49F1E1H2L1 | Land Use Code | 11 |
| Open Space: | N | DFL | N |
| Historic Property: | N | Remodel Property: | N |
| Multi-Family Redevelopment: | N | | |
| Township: | 29N | Section: | 10 |
| Range: | 1W |
Location |
| Address: | 10342 RHODY DR CHIMACUM, WA 98325 | Mapsco: | 206/020 |
| Neighborhood: | S9,10 T29N R1W; NICHOLSON'S, ROGER'S LP; FINNERTY, PUGET SP | Map ID: | |
| Neighborhood CD: | 4230 |
Owner |
| Name: | TRAVIS W LOPEMAN | Owner ID: | 61706 |
| Mailing Address: | PO BOX 181 CHIMACUM, WA 98325 | % Ownership: | 100.0000000000% |
| | | Exemptions: | |
Pay Tax Due
There is currently No Amount Due on this property.
Taxes and Assessment Details
Property Tax Information as of
10/24/2025
Click on "Statement Details" to expand or collapse a tax statement.
* Please enter a valid date ** Please enter a valid date *
Statement Details |
| | TOTAL: | $0.00 | $0.00 | $0.00 | $0.00 | $0.00 | $0.00 |
|
| | $0.00 | $0.00 | $0.00 | $0.00 | $0.00 | $0.00 |
Values
| (+) Improvement Homesite Value: | + | $133,687 | |
| (+) Improvement Non-Homesite Value: | + | $0 | |
| (+) Land Homesite Value: | + | $95,733 | |
| (+) Land Non-Homesite Value: | + | $0 | |
| (+) Curr Use (HS): | + | $0 | $0 |
| (+) Curr Use (NHS): | + | $0 | $0 |
| | | -------------------------- | |
| (=) Market Value: | = | $229,420 | |
| (–) Productivity Loss: | – | $0 | |
| | | -------------------------- | |
| (=) Subtotal: | = | $229,420 | |
| (+) Senior Appraised Value: | + | $0 | |
| (+) Non-Senior Appraised Value: | + | $229,420 | |
| | | -------------------------- | |
| (=) Total Appraised Value: | = | $229,420 | |
| (–) Senior Exemption Loss: | – | $0 | |
| (–) Exemption Loss: | – | $0 | |
| | | -------------------------- | |
| (=) Taxable Value: | = | $229,420 | |
Taxing Jurisdiction
| Owner: | TRAVIS W LOPEMAN | | |
| % Ownership: | 100.0000000000% | | |
| Total Value: | N/A | | |
| Tax Area: | 0211 - 1-49F1E1H2L1 |
| CE | COUNTY CURRENT EXPENSE | N/A | N/A | N/A | N/A | | |
| CNTYDD | DEVELOPMENTAL DISABILITIES | N/A | N/A | N/A | N/A | | |
| CNTYVET | VETERANS RELIEF | N/A | N/A | N/A | N/A | | |
| MENTAL | MENTAL HEALTH | N/A | N/A | N/A | N/A | | |
| ROADS | COUNTY ROADS | N/A | N/A | N/A | N/A | | |
| ROADSCU | COUNTY ROADS TO CUR EXP | N/A | N/A | N/A | N/A | | |
| HOSP2CASH | HOSP DIST #2 GENERAL | N/A | N/A | N/A | N/A | | |
| SCH49CP | SCHOOL DIST #49 CAP PROJ | N/A | N/A | N/A | N/A | | |
| SCH49MO | SCHOOL DIST #49 EP & O | N/A | N/A | N/A | N/A | | |
| CONSERVE | CONSERVATION FUTURES | N/A | N/A | N/A | N/A | | |
| EMS1 | FIRE DIST #1 EMS | N/A | N/A | N/A | N/A | | |
| FD1 | FIRE DIST #1 GENERAL | N/A | N/A | N/A | N/A | | |
| LIB1 | LIBRARY DIST #1 GENERAL | N/A | N/A | N/A | N/A | | |
| PORTPT | PORT OF PT GENERAL | N/A | N/A | N/A | N/A | | |
| PORTPTIDD | PORT OF PT IDD 2019 | N/A | N/A | N/A | N/A | | |
| PUD1 | PUD #1 GENERAL | N/A | N/A | N/A | N/A | | |
| STATE | STATE SCHOOL PART 1 | N/A | N/A | N/A | N/A | | |
| STATE2 | STATE SCHOOL PART 2 | N/A | N/A | N/A | N/A | | |
| | Total Tax Rate: | N/A | | | | | |
| | | | | Taxes w/Current Exemptions: | N/A | | |
| | | | | Taxes w/o Exemptions: | N/A | | |
Improvement / Building
| Improvement #1: | Manufactured Home | State Code: | 11 | 1344.0 sqft | Value: | $133,687 |
| Bathrooms (#): | 2 (FULL) | Bedrooms (#): | 2 | | Exterior Wall: | METAL | Floor Construction: | FRAME | | Foundation: | PO&BL | Heating/Cooling: | F/A | | Roof Cover: | COMP |   |   |
|
| | Type | Description | Class CD | Sub Class CD | Year Built | Area |
| | MA | Main Area | 3+ | MDBL | 1974 | 1344.0 |
| | MDECK | MH Deck | 3 | * | 1974 | 408.0 |
| | MSKIRT_WD | MH Skirting - Wood | 3 | * | 1974 | 160.0 |
| | GARAG | Garage (Table Not Dep) | 3 | * | 1974 | 960.0 |
Sketch
Property Image
Land
| 1 | 4230-1375S | Residential Sites 1+/- Ac SomeTerritorial Views | 1.0000 | 43560.00 | 0.00 | 0.00 | 1.00 | $93,500 | $0 |
| 2 | 1578A | Terr/Mtn/No View <6 Acres | 0.2800 | 12196.80 | 0.00 | 0.00 | 0.00 | $2,233 | $0 |
Roll Value History
| 2025 | N/A | N/A | N/A | N/A | N/A |
| 2024 | $127,611 | $91,382 | $0 | $218,993 | $218,993 |
| 2023 | $127,611 | $81,960 | $0 | $209,571 | $209,571 |
| 2022 | $128,288 | $76,820 | $0 | $205,108 | $205,108 |
| 2021 | $118,786 | $69,277 | $0 | $188,063 | $188,063 |
Deed and Sales History
| 1 | 09/09/2024 | QCD | Quit Claim Deed | WILLIAM LOPEMAN | TRAVIS W LOPEMAN | | | | 143199 | |
| 2 | 06/20/2017 | SWD | Statutory Warranty Deed | RONALD R RIGGLE | WILLIAM LOPEMAN | | | $150,000.00 | 127941 | |
| 3 | 06/30/2015 | QCD | Quit Claim Deed | PATTI L SHUFF | RONALD R RIGGLE | | | $50,000.00 | 123450 | |
| 4 | 08/25/2014 | QCD | Quit Claim Deed | | | | | | 121785 | |
| 5 | 06/19/2013 | QCD | Quit Claim Deed | | | | | | 120175 | |
| 6 | 06/17/2013 | QCD | Quit Claim Deed | | | | | | 120174 | |
| 7 | 06/21/2013 | QCD | Quit Claim Deed | | | | | | 120173 | |
| 8 | 11/15/2004 | QCD | Quit Claim Deed | TRAISTER ESTATE, DOROTHY | SHUFF ET AL, PATTI L | 0 | 0 | $0.00 | 102022 | 0 |
Payout Agreement
| No payout information available.. |