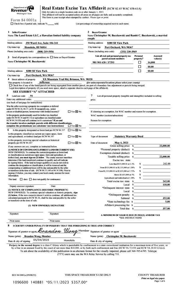
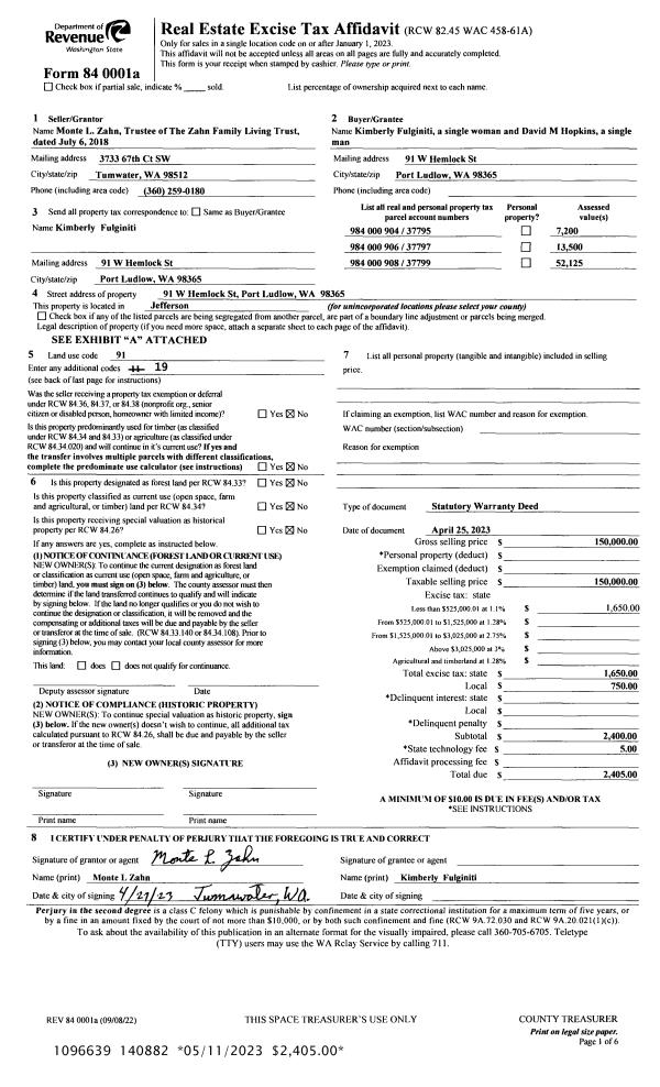
Property
Account |
| Property ID: | 21450 | Abbreviated Legal Description: | S10 T29 R1W TAX 75 BND BY BLA #96924 |
| Parcel # / Geo ID: | 901101042 | Agent Code: | |
| Type: | Real | | |
| Tax Area: | 0211 - 1-49F1E1H2L1 | Land Use Code | 11 |
| Open Space: | N | DFL | N |
| Historic Property: | N | Remodel Property: | N |
| Multi-Family Redevelopment: | N | | |
| Township: | 29N | Section: | 10 |
| Range: | 1W |
Location |
| Address: | 10347 RHODY DR CHIMACUM, WA 98325 | Mapsco: | 207/027 |
| Neighborhood: | S9,10 T29N R1W; NICHOLSON'S, ROGER'S LP; FINNERTY, PUGET SP | Map ID: | |
| Neighborhood CD: | 4230 |
Owner |
| Name: | JUSTIN J BENTO | Owner ID: | 11363 |
| Mailing Address: | 10347 RHODY DR CHIMACUM, WA 98325 | % Ownership: | 100.0000000000% |
| | | Exemptions: | |
Pay Tax Due
There is currently No Amount Due on this property.
Taxes and Assessment Details
Property Tax Information as of
10/24/2025
Click on "Statement Details" to expand or collapse a tax statement.
* Please enter a valid date ** Please enter a valid date *
Statement Details |
| | TOTAL: | $0.00 | $0.00 | $0.00 | $0.00 | $0.00 | $0.00 |
|
| | $0.00 | $0.00 | $0.00 | $0.00 | $0.00 | $0.00 |
Values
| (+) Improvement Homesite Value: | + | $0 | |
| (+) Improvement Non-Homesite Value: | + | $512,839 | |
| (+) Land Homesite Value: | + | $0 | |
| (+) Land Non-Homesite Value: | + | $97,727 | |
| (+) Curr Use (HS): | + | $0 | $0 |
| (+) Curr Use (NHS): | + | $0 | $0 |
| | | -------------------------- | |
| (=) Market Value: | = | $610,566 | |
| (–) Productivity Loss: | – | $0 | |
| | | -------------------------- | |
| (=) Subtotal: | = | $610,566 | |
| (+) Senior Appraised Value: | + | $0 | |
| (+) Non-Senior Appraised Value: | + | $610,566 | |
| | | -------------------------- | |
| (=) Total Appraised Value: | = | $610,566 | |
| (–) Senior Exemption Loss: | – | $0 | |
| (–) Exemption Loss: | – | $0 | |
| | | -------------------------- | |
| (=) Taxable Value: | = | $610,566 | |
Taxing Jurisdiction
| Owner: | JUSTIN J BENTO | | |
| % Ownership: | 100.0000000000% | | |
| Total Value: | N/A | | |
| Tax Area: | 0211 - 1-49F1E1H2L1 |
| CE | COUNTY CURRENT EXPENSE | N/A | N/A | N/A | N/A | | |
| CNTYDD | DEVELOPMENTAL DISABILITIES | N/A | N/A | N/A | N/A | | |
| CNTYVET | VETERANS RELIEF | N/A | N/A | N/A | N/A | | |
| MENTAL | MENTAL HEALTH | N/A | N/A | N/A | N/A | | |
| ROADS | COUNTY ROADS | N/A | N/A | N/A | N/A | | |
| ROADSCU | COUNTY ROADS TO CUR EXP | N/A | N/A | N/A | N/A | | |
| HOSP2CASH | HOSP DIST #2 GENERAL | N/A | N/A | N/A | N/A | | |
| SCH49CP | SCHOOL DIST #49 CAP PROJ | N/A | N/A | N/A | N/A | | |
| SCH49MO | SCHOOL DIST #49 EP & O | N/A | N/A | N/A | N/A | | |
| CONSERVE | CONSERVATION FUTURES | N/A | N/A | N/A | N/A | | |
| EMS1 | FIRE DIST #1 EMS | N/A | N/A | N/A | N/A | | |
| FD1 | FIRE DIST #1 GENERAL | N/A | N/A | N/A | N/A | | |
| LIB1 | LIBRARY DIST #1 GENERAL | N/A | N/A | N/A | N/A | | |
| PORTPT | PORT OF PT GENERAL | N/A | N/A | N/A | N/A | | |
| PORTPTIDD | PORT OF PT IDD 2019 | N/A | N/A | N/A | N/A | | |
| PUD1 | PUD #1 GENERAL | N/A | N/A | N/A | N/A | | |
| STATE | STATE SCHOOL PART 1 | N/A | N/A | N/A | N/A | | |
| STATE2 | STATE SCHOOL PART 2 | N/A | N/A | N/A | N/A | | |
| | Total Tax Rate: | N/A | | | | | |
| | | | | Taxes w/Current Exemptions: | N/A | | |
| | | | | Taxes w/o Exemptions: | N/A | | |
Improvement / Building
| Improvement #1: | Residential Bldg | State Code: | 11 | 2856.0 sqft | Value: | $512,839 |
| Bathrooms (#): | 3 (FULL) | Bedrooms (#): | 3 | | Exterior Wall: | SI/ST | Fireplace: | SIN 2-GOOD | | Floor Construction: | FRAME | Foundation: | CONPR | | Heating/Cooling: | ELBB | Roof Cover: | COMP |
|
| | Type | Description | Class CD | Sub Class CD | Year Built | Area |
| | MA | Main Area | 4 | 15SF | 1993 | 2080.0 |
| | MA2 | Second Floor Main Area | 4 | 15SF | 1993 | 776.0 |
| | HWPOR | House Wood Porch | 4 | * | 1993 | 384.0 |
| | HCPOR | House Concrete Porch | 4 | * | 1993 | 384.0 |
| | HDECK | House Deck | 4 | * | 1993 | 292.0 |
| | GDET | Detached Garage | 3 | 15SF | 1993 | 1344.0 |
| | CARPTN | Carport W/O Floor | 3 | * | 1993 | 672.0 |
| | HLOFT | House Loft | 3 | * | 1993 | 270.0 |
Sketch
Property Image
Land
| 1 | 1578A | Terr/Mtn/No View <6 Acres | 0.5300 | 23086.80 | 0.00 | 0.00 | 0.00 | $4,227 | $0 |
| 2 | 4230-1375S | Residential Sites 1+/- Ac SomeTerritorial Views | 1.0000 | 43560.00 | 0.00 | 0.00 | 1.00 | $93,500 | $0 |
Roll Value History
| 2025 | N/A | N/A | N/A | N/A | N/A |
| 2024 | $489,528 | $93,285 | $0 | $582,813 | $582,813 |
| 2023 | $489,528 | $83,710 | $0 | $573,238 | $573,238 |
| 2022 | $431,328 | $78,445 | $0 | $509,773 | $509,773 |
| 2021 | $399,378 | $71,065 | $0 | $470,443 | $470,443 |
Deed and Sales History
| 1 | 05/23/2016 | SWD | Statutory Warranty Deed | RONALD BRYANT | JUSTIN J BENTO | | | $345,000.00 | 125526 | |
| 2 | 08/25/2005 | SWD | Statutory Warranty Deed | VANNESS, CRAIG T & MARIA | BRYANT, RONALD & KRISTEN | 0 | 0 | $367,500.00 | 104592 | 0 |
Payout Agreement
| No payout information available.. |